Hoppa till innehåll
Stiftelsevägen 4
Såld 05 feb 2025
 
Slutpris
2 450 000 kr

Stiftelsevägen 4, Valbo

Kvadratsmart villa perfekt för generationsboende eller uthyrning!

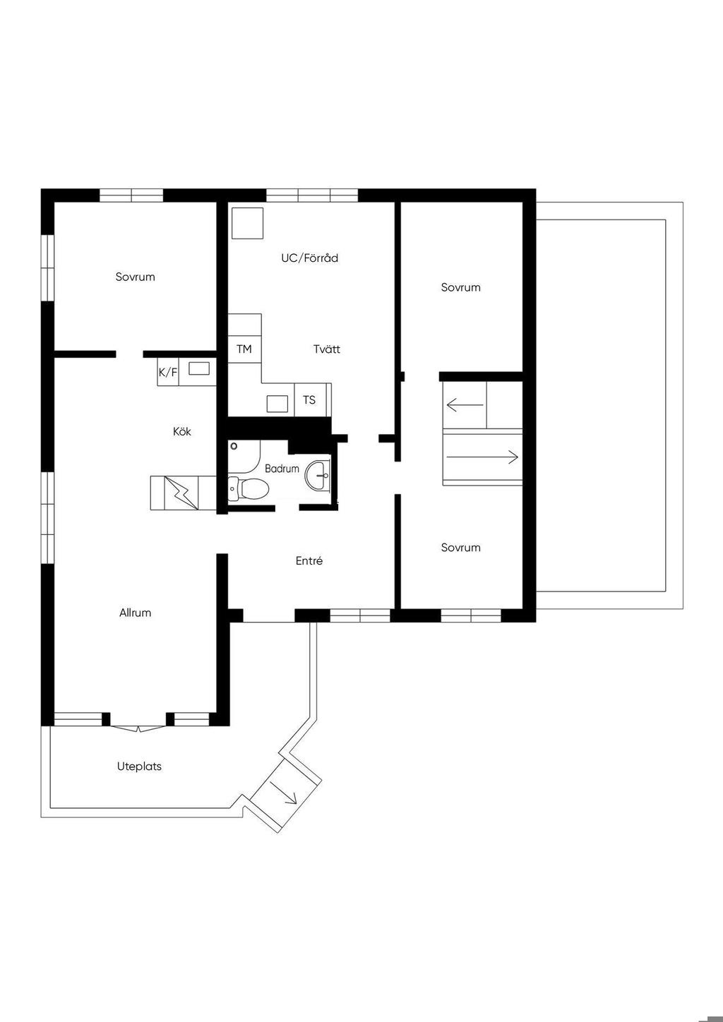
  • Typ: Villa, 1-plan med källare i souterräng
  • Rum: 4, varav 2-5 sovrum
  • Boarea: 100 m2
  • Biarea: 60 m2
  • Tomtarea: 1 410 m2
  • Byggnadsår: 1945
  • Driftkostnad: 36 000 kr/år
  • Upplåtelseform: Äganderätt

Planritning

Karta och område

Stiftelsevägen 4, Valbo

Trygg affär - Varudeklarerad Villa

Kundernas omdömen

2026-03-29
Det har varit en resa med väntan och ibland oro hos oss men Magnus har varit stöttande och sagt sitt lugnt i båten och han rodde den i hamn som den skickliga och duktiga mäklare han är stort tack Magnus
Inger C
2026-03-29
Magnus är jättetrevlig i sitt sätt att ta hand om både säljare och köpare. Vi hade inga speciella förväntningar mer än att vårt hus blev sålt. Och det blev det. : ) Vi är jättenöjda.
Mats D
2026-02-19
Att sälja sitt hem är läskigt. Så mycket är oklart och går inte att påverka. Då är en mäklare som Magnus perfekt. Pedagogisk, lugn, reko, realistisk. Utan hans hjälp hade vi knappast orkat ta oss igenom säljprocessen. Nu är vi...
Margareta N
2026-02-17
Vi fick vårat hus sålt inom drygt en vecka från att annonsen gick ut. Det hela gick hur smidigt som helst.
Gustaf D
2026-02-11
Mycket saklig och hjälpsam, bra att förklara vad som händer under köpets gång
Anna-Brita A
2025-11-16
Vi är mycket nöjd med Magnus han har hela tiden besvarat alla våra frågor har inget negativt att säga han är engagerad och vi känner oss trygga med honom.
Inger C
2025-11-14
Gott bemötande. Gav bra råd. Allt gick supersmidigt med försäljningen av vår bostad.
Zophie L
2025-09-23
Vi kände oss trygga med att anlita Magnus, när vi skulle sälja vårt hus. Han har erfarenheten och mycket god lokal kännedom i området. Efter ett engagerat och smidigt arbete sålde han vårt hus, trots den tuffa marknaden. Vi är myc...
Mari-Ann S
2025-09-23
Mycket positiv. Magnus har gjort sitt yttersta för att visa bostaden, besvara frågor om objektet och möjliggöra affären. Vi är så nöjda att det kändes självklart att anlita Magnus även för försäljningen av vår egen bostad.
Stefan L
 
Steg 1/3 - Bostadsuppgifter
Steg 2/3 - Välj tid för mötet
Steg 3/3 - Kontaktuppgifter
Steg 4/4 - Slutför bokning
Steg 3/3 - Kontaktuppgifter

Boka tid med en mäklare för värdering

1. Fyll i dina bostadsuppgifter
2. Välj tid och mäklare i kalendern
3. Mäklaren ringer innan besöket

Boka tid med en mäklare som passar dig och din bostad

Så här går det till
1. Fyll i dina bostadsuppgifter
2. Välj tid och mäklare i kalendern
3. Mäklaren ringer innan besöket
Vi ringer dig för att boka en tid
Vi hittade inga lediga tider just nu. Fyll i dina kontaktuppgifter nedan så ringer vi upp för att boka in en passande tid.
Vi ringer dig för att en boka tid
Vi hittade inga lediga tider. Men det är inga problem, vi ringer upp för att hitta en passande tid.
Fyll i dina kontaktuppgifter
Dubbelkolla att uppgifterna stämmer så att mäklaren kan nå dig innan mötet.
Fyll i dina kontaktuppgifter
Vänligen fyll i dina uppgifter nedan så ringer vi upp dig för att boka en tid.
Mäklare:
Tid:

Hur kontaktar vi dig?

Oj, något gick fel. Försök gärna igen. 

En muntlig värdering är oftast gratis, men om du bor långt bort från vårt kontor kan en mindre avgift tillkomma. I så fall stämmer mäklaren av det med dig innan.

Vi tar en avgift för en skriftlig värdering för exempelvis bolån. Prata med din mäklare för att få ytterligare information om detta.

Du förbinder dig inte till någonting när du bokar en tid.

Hämtar tider...
Ett ögonblick!
Tack, dina uppgifter är sparade!
Lägg till gärna till epost för att inte missa något.

Liknande sålda bostäder

Liknande bostäder till salu

Lediga tider: mån 6/4 och ons 8/4