Hoppa till innehåll
Välkommen till Björkavägen 17!
Såld 14 jan 2026
 
Slutpris
2 095 000 kr

Björkavägen 17, Djurås

Liten kringbyggd gårdsfastighet – perfekt för både permanent- och fritidsboende

  • Typ: Villa, 1,5 plan
  • Rum: 3, varav 2 sovrum
  • Boarea: 90 m2
  • Tomtarea: 1 058 m2
  • Byggnadsår: 1966
  • Driftkostnad: 60 409 kr/år
  • Upplåtelseform: Äganderätt

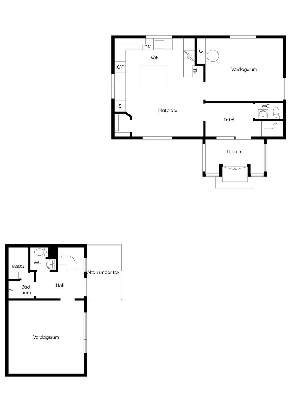
Planritning

Karta och område

Björkavägen 17, Djurås

Trygg affär - Varudeklarerad Villa

Kundernas omdömen

Reco-betyg: 4,9 av 5 baserat på 299 kundomdömen
Verifiering av kundrelationen sker när vi genom vårt affärssystem delar kundens kontaktuppgifter så att Reco kan samla in verifierade omdömen via e-post eller SMS. Widgeten visar de senaste 4:orna och 5:orna, och snittbetyget beräknas som totalt betyg dividerat med totalt antal omdömen.
 
Steg 1/3 - Bostadsuppgifter
Steg 2/3 - Välj tid för mötet
Steg 3/3 - Kontaktuppgifter
Steg 4/4 - Slutför bokning
Steg 3/3 - Kontaktuppgifter

Boka tid med en mäklare för värdering

Välj bostadstyp

Fyll i adress

Så här går det till
1. Fyll i dina bostadsuppgifter
2. Välj tid och mäklare i kalendern
3. Mäklaren ringer innan besöket
Så här går det till
1. Fyll i dina bostadsuppgifter
2. Välj tid och mäklare i kalendern
3. Mäklaren ringer innan besöket
Vill du hellre bli kontaktad för rådgivning?
Vi ringer upp dig och ser hur vi kan hjälpa dig vidare.
Vi ringer dig för att boka en tid
Vi hittade inga lediga tider just nu. Fyll i dina kontaktuppgifter nedan så ringer vi upp för att boka in en passande tid.
Vi ringer dig för att en boka tid
Vi hittade inga lediga tider. Men det är inga problem, vi ringer upp för att hitta en passande tid.
Fyll i dina kontaktuppgifter
Dubbelkolla att uppgifterna stämmer så att mäklaren kan nå dig innan mötet.
Fyll i dina kontaktuppgifter
Vänligen fyll i dina uppgifter nedan så ringer vi upp dig för att boka en tid.
Mäklare:
Tid:

Hur kontaktar vi dig?

Vill du hellre bli kontaktad för rådgivning?
Vi ringer upp dig och ser hur vi kan hjälpa dig vidare.

Oj, något gick fel. Försök gärna igen. 

En muntlig värdering är oftast gratis, men om du bor långt bort från vårt kontor kan en mindre avgift tillkomma. I så fall stämmer mäklaren av det med dig innan.

Vi tar en avgift för en skriftlig värdering för exempelvis bolån. Prata med din mäklare för att få ytterligare information om detta.

Du förbinder dig inte till någonting när du bokar en tid.

Hämtar tider...
Ett ögonblick!
Tack, dina uppgifter är sparade!
Lägg till gärna till epost för att inte missa något.

Liknande sålda bostäder

Liknande bostäder till salu

Lediga tider: mån 8/6 och ons 10/6