 
                
                            Såld 19 apr 2024
                        
                    Kontakta ansvarig mäklare
                                    
                                        William Nordenstam
                                    
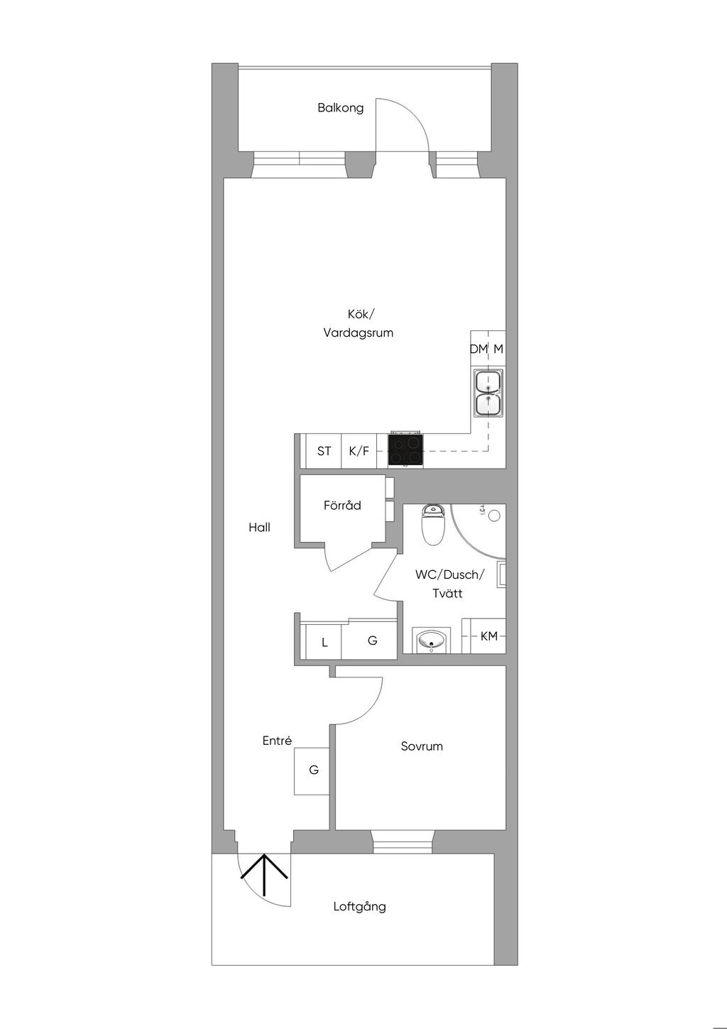
                                Planritning
 
                                Viss avvikelse kan förekomma. Skala och mått kan avvika från verkligheten.
Fullskärm