Hoppa till innehåll
Såld 14 jul 2025
Slutpris
3 700 000 kr

Alvernas väg 17, Älvängen

Ljus och rymlig bostadsrättsvilla om 120 kvm med insynsskyddat läge på omtyckta Alvernas väg!

  • Typ: Villa
  • Rum: 5, varav 4 sovrum
  • Boarea: 120 m2
  • Lägenhetsnummer: 17
  • Byggnadsår: 2017
  • Månadsavgift: 6 611 kr
  • Upplåtelseform: Bostadsrätt

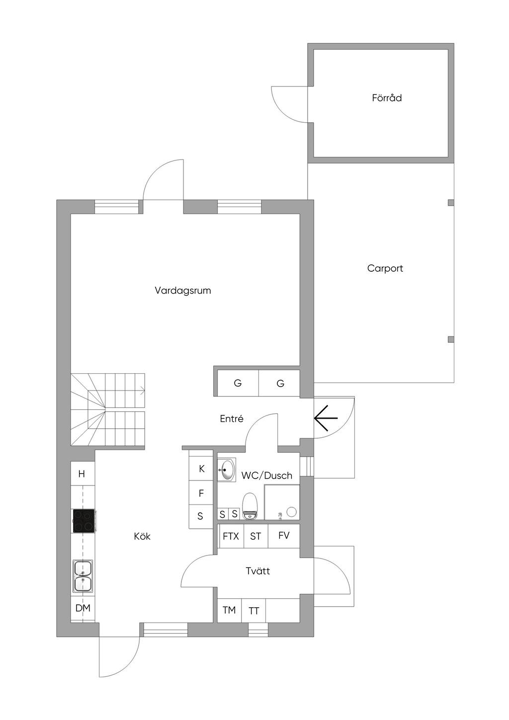
Planritning

Karta och område

Alvernas väg 17, Älvängen

Kundernas omdömen

2025-12-02
Kändes kunnig, var lugn och guidade oss professionellt genom köpet
Eva H
2025-12-02
Försäljningen av vår lägenhet gick väldigt smidigt och bra. Julia var proffsig och lätt att ha kontakt med.
Fredrik J
2025-11-18
Vi vill rikta ett stort och varmt tack till Julia för hennes fantastiska arbete genom hela försäljningsprocessen. Julia har varit professionell, lyhörd och engagerad, och hennes sätt att kommunicera har gjort att jag ständigt känt...
Anela M
2025-11-15
Julia var suverän och professionell i allt kring köp av lägenhet snabb i återkopplingen, vilket jag gillar. Tack än en gång detta blir så bra för oss! ⭐️⭐️⭐️⭐️⭐️
Malin B
2025-11-10
Allt gick jättefort och smidigt! Från första mötet till signerat kontrakt tog det bara någon vecka. Hon skötte allt professionellt och jag fick ett bra pris för min lägenhet.
Samuel L
2025-11-10
Julia har varit en otroligt bra mäklare genom snabba och genuina svar till oss som köpare. Dessutom väldigt trevligt och lättsam att prata med!
Louise S
2025-11-06
Julia är en mycket kompetent och professionell mäklare. Hon förklarade tydligt varje steg i processen, både vid försäljningen av vår lägenhet och köpet av vår nya bostad. Hennes djupa marknadskunskap och trygga vägledning gjorde h...
Martha V
2025-11-05
Professionell, lyhörd, flexibel, klarade sitt uppdrag. Julia var lätt att samarbeta med. Hon återkopplade under hela perioden och gjorde mig delaktig i planeringen. Tack….
Ida V
2025-10-31
Mycket kunnig i sitt arbete. Lyssnar och svarar på alla frågor. Omtänksam och alltid ett leende som man får ett förtroende för
Carina K
 
Steg 1/4 - Bostadsuppgifter
Steg 2/4 - Välj tid för mötet
Steg 3/4 - Kontaktuppgifter
Steg 4/4 - Slutför bokning
Steg 3/3 - Kontaktuppgifter

Boka tid med en mäklare för värdering

1. Fyll i dina bostadsuppgifter
2. Välj tid och mäklare i kalendern
3. Mäklaren ringer innan besöket

Boka tid med en mäklare som passar dig och din bostad

Så här går det till
1. Fyll i dina bostadsuppgifter
2. Välj tid och mäklare i kalendern
3. Mäklaren ringer innan besöket
Vi ringer dig för att boka en tid
Vi hittade inga lediga tider just nu. Fyll i dina kontaktuppgifter nedan så ringer vi upp för att boka in en passande tid.
Vi ringer dig för att en boka tid
Vi hittade inga lediga tider. Men det är inga problem, vi ringer upp för att hitta en passande tid.
Fyll i dina kontaktuppgifter
Vi behöver dem för att kunna kontakta dig inför mötet.
Fyll i dina kontaktuppgifter
Vänligen fyll i dina uppgifter nedan så ringer vi upp dig för att boka en tid.
Mäklare:
Tid:

Hur kontaktar vi dig?

Oj, något gick fel. Försök gärna igen. 

En muntlig värdering är oftast gratis, men om du bor långt bort från vårt kontor kan en mindre avgift tillkomma. I så fall stämmer mäklaren av det med dig innan.

Vi tar en avgift för en skriftlig värdering för exempelvis bolån. Prata med din mäklare för att få ytterligare information om detta.

Du förbinder dig inte till någonting när du bokar en tid.

Hämtar tider...
Ett ögonblick!
Tack, dina uppgifter är sparade!
Ditt möte är bokat!
Mäklare:
Datum:
Tid:
kl.
Adress:
Lägg till gärna till epost för att inte missa något.

Liknande sålda bostäder

Liknande bostäder till salu