Hoppa till innehåll
Vardagsrum mot balkong med eftermiddag/kvällssol
Såld 20 mar 2026
 
Slutpris ej tillgängligt
-kontakta mäklaren för mer information

Grindvägen 12A, Norrtälje

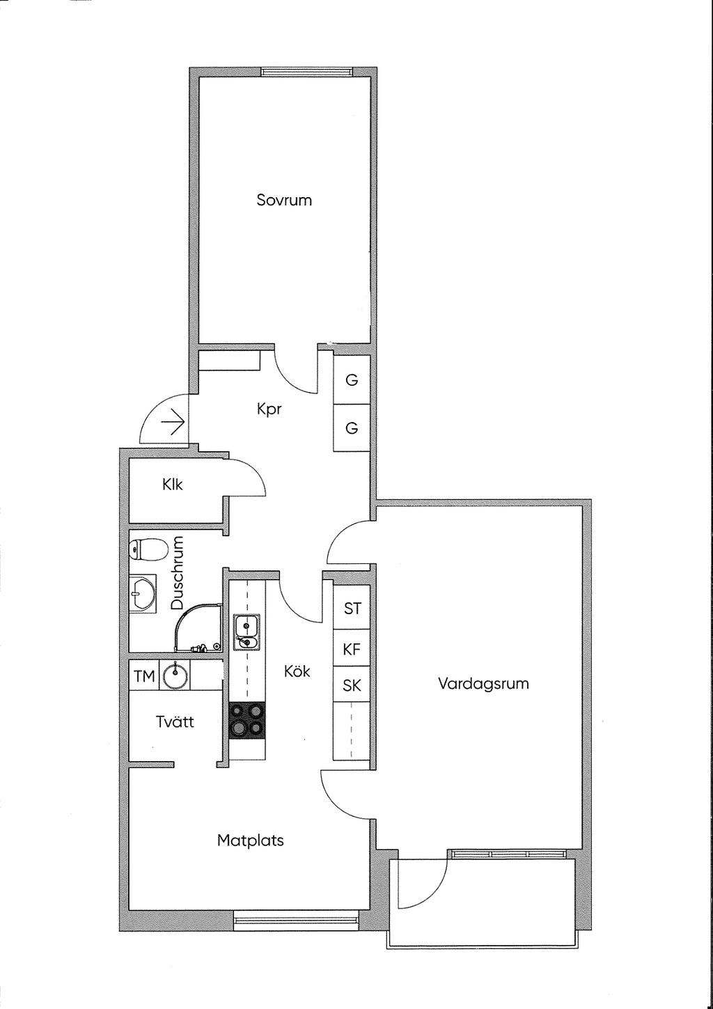
Stor och välplanerad tvårumslägenhet om hela 67,7 kvm i Grind !

  • Typ: Bostadsrättslägenhet
  • Rum: 2, varav 1 sovrum
  • Boarea: 67,7 m2
  • Lägenhetsnummer: 126
  • Byggnadsår: 1964
  • Månadsavgift: 5 245 kr
  • Driftkostnad: 350 kr/månad
  • Upplåtelseform: Bostadsrätt
  • Våning: 2 av 5
  • Hiss: Ja

Planritning

Karta och område

Grindvägen 12A, Norrtälje

Kundernas omdömen

2026-02-23
Vi är mycket nöjda med den hjälp vi fick av Anders vid försäljningen av vårt fritidshus. Hans kompetens, engagemang och tydlighet gjorde att vi kände oss trygga genom hela processen.
Louise Elisabeth Ulrica K
2026-02-06
Anders är pålitlig och man känner sig trygg med att göra äfferer med honom. Vänlig,påläst och smidig i sitt agerande. Kan varmt rekommendera honom.
Hans E
2025-12-26
Träffades aldrig men han var trevlig i telefon
Johan W
2025-12-26
Anders har varit behjälplig vid två av våra försäljningar, 2020 och 2025. Han har varit väldigt engagerad och personlig. Han har dessutom värderat vår nuvarande bostad i samband med större renoveringar. Vi har väldigt stort förtr...
Benita R
2025-11-16
Kunnig, snabb i återkoppling, tydlig. En toppenmäklare!
Annika H
2025-11-16
Allt var bara positivt. En engagerad mäklare, intresserad av både mig som säljare och även köpare . Rekommenderar varmt. Mvh Siv lindblom
Siv Margareta L
2025-09-15
Anders jobbade hårt och målmedvetet för att sälja min lägenhet i Norrtälje. Jag som säljare upplevde Anders som närvarande och han informerade sakligt och tydligt kring status i hela försäljningsprocessen. Nästa gång jag ska sälja...
Patrik L
2025-09-10
Vi var mycket nöjda med Anders som med engagemang och lyhördhet ledde oss genom vårt köp av ett fritidshus.
Anna W
2025-09-06
Anders lägger ner all energi på ditt objekt. Kunnig snabb och är på din sida som säljare. Behjälplig med allt. Anders är toppen 👍🏻
Jonny J
 
Steg 1/3 - Bostadsuppgifter
Steg 2/3 - Välj tid för mötet
Steg 3/3 - Kontaktuppgifter
Steg 4/4 - Slutför bokning
Steg 3/3 - Kontaktuppgifter

Boka tid med en mäklare för värdering

1. Fyll i dina bostadsuppgifter
2. Välj tid och mäklare i kalendern
3. Mäklaren ringer innan besöket

Boka tid med en mäklare som passar dig och din bostad

Så här går det till
1. Fyll i dina bostadsuppgifter
2. Välj tid och mäklare i kalendern
3. Mäklaren ringer innan besöket
Vi ringer dig för att boka en tid
Vi hittade inga lediga tider just nu. Fyll i dina kontaktuppgifter nedan så ringer vi upp för att boka in en passande tid.
Vi ringer dig för att en boka tid
Vi hittade inga lediga tider. Men det är inga problem, vi ringer upp för att hitta en passande tid.
Fyll i dina kontaktuppgifter
Dubbelkolla att uppgifterna stämmer så att mäklaren kan nå dig innan mötet.
Fyll i dina kontaktuppgifter
Vänligen fyll i dina uppgifter nedan så ringer vi upp dig för att boka en tid.
Mäklare:
Tid:

Hur kontaktar vi dig?

Oj, något gick fel. Försök gärna igen. 

En muntlig värdering är oftast gratis, men om du bor långt bort från vårt kontor kan en mindre avgift tillkomma. I så fall stämmer mäklaren av det med dig innan.

Vi tar en avgift för en skriftlig värdering för exempelvis bolån. Prata med din mäklare för att få ytterligare information om detta.

Du förbinder dig inte till någonting när du bokar en tid.

Hämtar tider...
Ett ögonblick!
Tack, dina uppgifter är sparade!
Lägg till gärna till epost för att inte missa något.

Liknande sålda bostäder

Liknande bostäder till salu