Hoppa till innehåll
Såld 13 jan 2023
Slutpris
2 975 000 kr

Körsångarvägen 79, Skogås

Radhus i grönskande område nära skolor och kommunikationer

  • Typ: Radhus
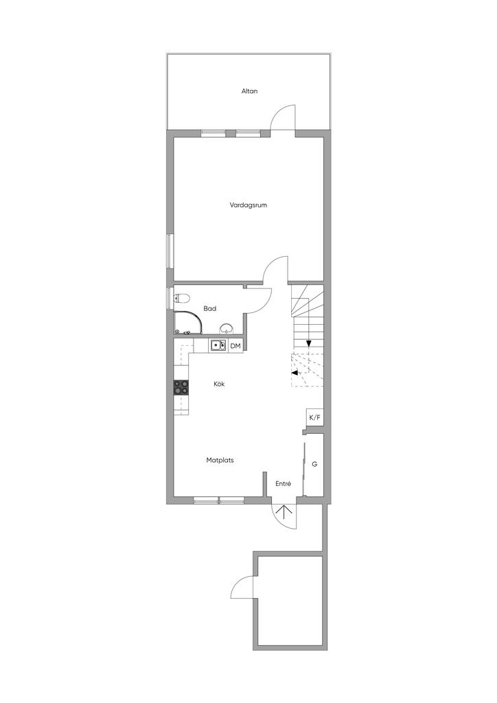
  • Rum: 3, varav 2 sovrum
  • Boarea: 84,5 m2
  • Lägenhetsnummer: 231282002-0532
  • Byggnadsår: 1984
  • Månadsavgift: 5 813 kr
  • Driftkostnad: 1 320 kr/månad
  • Upplåtelseform: Bostadsrätt

Planritning

Karta och område

Körsångarvägen 79, Skogås

Kundernas omdömen

2025-11-19
Bra medlare. Vi fick till en affär efter att vart rätt långt ifrån varandra från början. Rekommenderas!
Jim H
2025-10-23
Vi kände oss så trygga i Victor Samuelssons händer! Så kunnig och professionell i yrket som mäklare! Så trevlig och omhändertagande!
Britt K
2025-10-12
Bästa mäklaren, toppen service - guldstjärna!
Gustav W
2025-10-08
Victor Samuelsson was very nice and respectful towards us. He really helped us by providing the information we asked for and contacted us regularly. We are truly thankful to buy the house through him.
Shahnaz S
2025-10-07
Victor är kunnig, driven, och är mycket engagerad. Rekommenderas starkt!
Peter F
2025-10-01
Duktig, peppig, rolig och hjälpsam. Han är så bra 🙌
Marina F
2025-09-29
Victor jobbar hårt för sin kund, har ett väldigt gott bemötande och håller en uppdaterad längs hela processen. Victor jobbar aktivt för att möta kundens önskemål och behov i försäljningen. Vi är mycket nöjda med Victor och skulle ...
Gabriella B
2025-09-29
Rak och ärlig, väldigt hjälpsam och trevlig
Stefan N
2025-08-29
Victor kan jag rekommendera till vem som. Trevlig,bra på att förklara hur allt gick/går till tydlig i talet! Superbra mäklare!
Margaretha H
 
Steg 1/4 - Bostadsuppgifter
Steg 2/4 - Välj tid för mötet
Steg 3/4 - Kontaktuppgifter
Steg 4/4 - Slutför bokning
Steg 3/3 - Kontaktuppgifter

Boka tid med en mäklare för värdering

1. Fyll i dina bostadsuppgifter
2. Välj tid och mäklare i kalendern
3. Mäklaren ringer innan besöket

Boka tid med en mäklare som passar dig och din bostad

Så här går det till
1. Fyll i dina bostadsuppgifter
2. Välj tid och mäklare i kalendern
3. Mäklaren ringer innan besöket
Vi ringer dig för att boka en tid
Vi hittade inga lediga tider just nu. Fyll i dina kontaktuppgifter nedan så ringer vi upp för att boka in en passande tid.
Vi ringer dig för att en boka tid
Vi hittade inga lediga tider. Men det är inga problem, vi ringer upp för att hitta en passande tid.
Fyll i dina kontaktuppgifter
Vi behöver dem för att kunna kontakta dig inför mötet.
Fyll i dina kontaktuppgifter
Vänligen fyll i dina uppgifter nedan så ringer vi upp dig för att boka en tid.
Mäklare:
Tid:

Hur kontaktar vi dig?

Oj, något gick fel. Försök gärna igen. 

En muntlig värdering är oftast gratis, men om du bor långt bort från vårt kontor kan en mindre avgift tillkomma. I så fall stämmer mäklaren av det med dig innan.

Vi tar en avgift för en skriftlig värdering för exempelvis bolån. Prata med din mäklare för att få ytterligare information om detta.

Du förbinder dig inte till någonting när du bokar en tid.

Hämtar tider...
Ett ögonblick!
Tack, dina uppgifter är sparade!
Ditt möte är bokat!
Mäklare:
Datum:
Tid:
kl.
Adress:
Lägg till gärna till epost för att inte missa något.

Liknande sålda bostäder

Liknande bostäder till salu