
Såld 17 nov 2023
Slutpris
4 450 000 kr
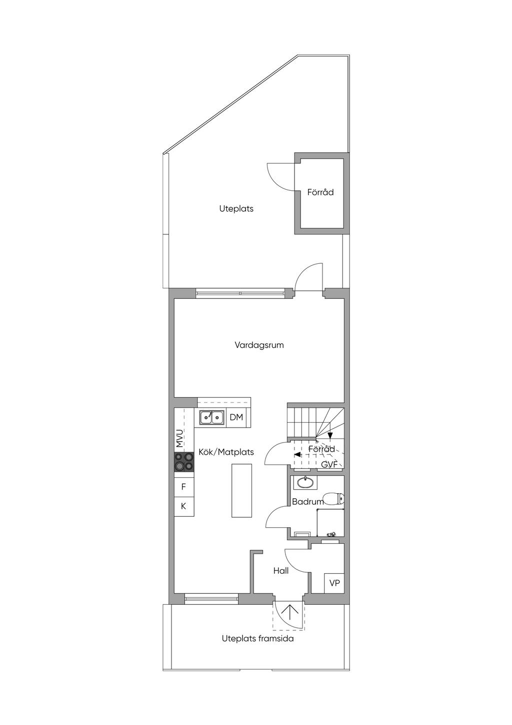
Gavelradhus i nyskick med fint läge i Vega
Lediga tider:
mån 20/10 och tis 21/10