Hoppa till innehåll
Mariestad

Mariagatan 34

Kommersiell fastighet med utvecklingspotential i Katthavet, Mariestad

  • Typ: Hyreslokal
  • Tomtarea: 3 792 m2

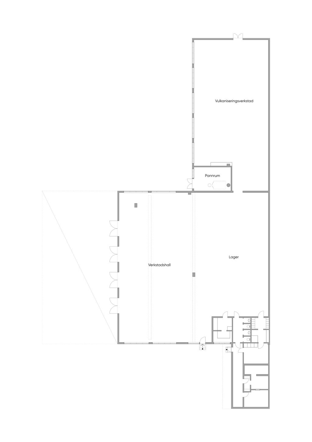
Nu erbjuds möjlighet att förvärva en kommersiell fastighet i Katthavet – ett strategiskt beläget och etablerat verksamhetsområde i Mariestad med god tillgänglighet för både transporter och personal. Fastigheten omfattar en tomtareal om 3 792 kvm och bebyggs av en verkstadslokal med tillhörande lager- och kontorsdel om totalt cirka 901 kvm.

Lokalerna är i dagsläget outhyrda, vilket ger köparen stor flexibilitet att anpassa fastigheten efter egen verksamhet eller utveckla fastigheten för uthyrning. Byggnaden lämpar sig väl för exempelvis verkstad, lager, lätt industri eller annan verksamhet som efterfrågar funktionella och lättillgängliga ytor.

Området Katthavet är ett etablerat industrikluster som enligt Mariestads kommuns fördjupade översiktsplan är utpekat som ett prioriterat utvecklingsområde med betydande potential för framtida stadsomvandling. Planinriktningen möjliggör utveckling av en modern och tät blandstad där bostäder, handel och verksamheter kan kombineras.

Detaljplanearbete pågår inom området, vilket på sikt kan möjliggöra uppförande av nya bostäder samt lokaler för centrumändamål i bottenplan. Detta skapar förutsättningar för långsiktig värdeutveckling och ger fastigheten potential att dra nytta av förändrade användningsmöjligheter i takt med områdets utveckling och ökade attraktivitet.

En fastighet som erbjuder möjligheter för såväl egen etablering som investering med framtida utvecklingspotential.

Fastighet förvärvas genom köp av bolag.

För mer information kontakta ansvarig fastighetsmäklare.

Om Fastigheten

Sammanfattning

Typ: Hyreslokal
Tomtarea: 3 792 m2
Tomtareauppgift enligt: Lantmäteriet

Tomt/balkong/uteplats

Uppgrusat och hårdgjort för tyngre trafik

Allmänt

Län: Västra Götaland
Kommun: Mariestad
Fastighetsbeteckning: MARIESTAD FLAMMAN 11

Planbestämmelser

Flamman,kv, Detaljplan (Beslutsdatum: 2013-06-13, Registreringsdatum: 2013-07-12)

Byggnadsår: 1964
Taxeringsvärde: 102 000 kr
Värderingsår: 1964
Area: 56 m2
Beskrivning: Kontorsbyggnad med administrativ arbetsplats, pentry, toalett dusch och omklädningsrum

Byggnadsår: 1964
Taxeringsvärde: 338 000 kr
Värderingsår: 1964
Area: 280 m2

Byggnadsår: 1964
Taxeringsvärde: 706 000 kr
Värderingsår: 1964
Area: 565 m2
Beskrivning: Produktions/verksytadslokla med större portar åt bägge håll

Ekonomi

Utöver ovanstående eventuella driftkostnader tillkommer fastighetsavgift med belopp om 9 520 kr.

Taxering

Byggnad: 1 146 000 kr
Mark: 758 000 kr
Totalt: 1 904 000 kr
Taxeringsår: 2025
Taxeringsvärdet är: Fastställt
Typkod: 431, Industrienhet reparationsverkstad

Pantbrev

Det finns 4 pantbrev uttaget om sammanlagt 1 389 000 kr.

Energideklaration

Status: Energideklaration ej utförd

Alla bilder

+ 23 Visa alla 29 bilder
 

Planritning

Karta och område

Mariagatan 34, Mariestad

Intresseformulär

Fyll i formuläret så kontaktar vi dig inom kort.

Kontaktuppgifter
Vänligen ange förnamn
Vänligen ange efternamn
Vänligen ange telefonnummer
Vänligen ange e-post
500 tecken kvar
Har du lånelöfte?*
Vill du ha hjälp med lånelöfte?
Vill du få nyheter och erbjudanden?

Oj, något gick fel! Försök igen. 

Ett ögonblick!
Tack, dina uppgifter är sparade!
Du fyllde inte i någon e-postadress. Ange den nedan för att inte missa någon information.
 
 
 
Ta del av vår integritetspolicy
 
 
 

Liknande bostäder till salu

Mariestad
Mariagatan 34
Dela bostad: Dela på Facebook Dela med epost Dela med sms Kopiera länk Länken kopierad

Planritning