Hoppa till innehåll
 
Vill du veta mer om bostaden?

Marieholmsgatan 56 - För Uthyrning

Vill du veta mer om bostaden?

Flexibla kombiytor uthyres - höglager med tillhörande kontor i attraktivt läge på Marieholmsgatan 56

  • Typ: Hyreslokal
  • Tomtarea: 1 248 m2

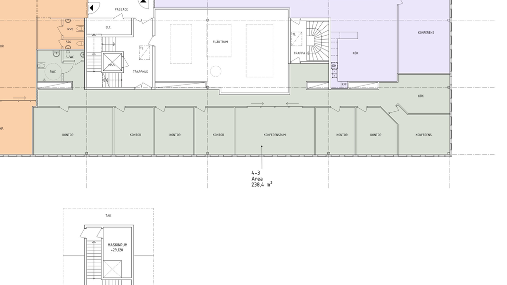
På Marieholmsgatan 56 erbjuds i dagsläget upp till ca 753 kvm kombiytor, med möjlighet till ytterligare ytor vid behov. Ytan är fördelad på ca 515 kvm lageryta samt ca 238 kvm kontor. Fastigheten har ett bra strategiskt läge med närhet till Göteborgs centrum samt nära anslutning till E45an.

Lagerdelen har stora öppna ytor med en generös takhöjd på ca 6,5 m. I dagsläget nyttjas en industriport som har sluss och är under ett skärmtak. Under skärmtaket finns det även plats för uppställning. Möjlighet till fler portar finns.

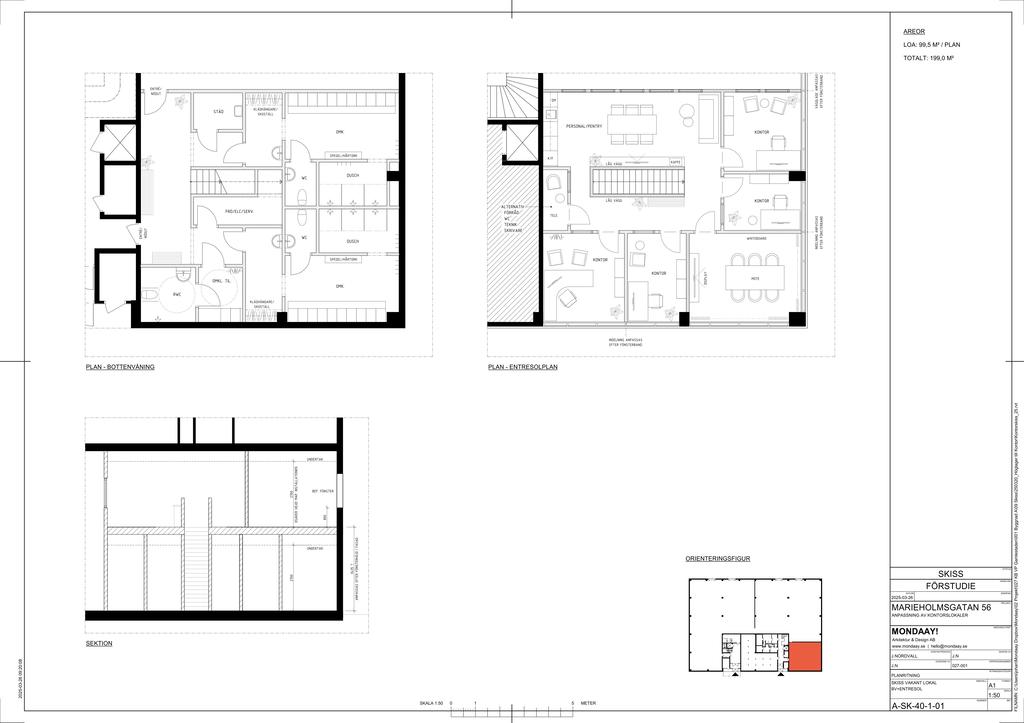
Fastighetsägaren har tagit fram ett förslag på hur lagerdelen kan anpassas genom att addera ett entresolplan om ca 100 kvm, för att skapa ytterligare kontors- och personalytor (se skiss med förslag på anpassning). Lösningen är flexibel och kan anpassas i både omfattning och utformning utifrån verksamhetens behov och i dialog med fastighetsägaren.

Tillgång till p-platser finns.

OMRÅDE
Fastigheten ligger i ett industriområde i expansiva Gamlestaden, där du bland annat finner utvecklingsområdena Gamlestadens Fabriker, Slakthusområdet och Gamlestads Torg. Här är man omgiven av en blandning av gammalt och nytt, bostäder och kontor, startups och mer etablerade verksamheter samt en variation av restauranger och charmiga caféer. Visionen för stadsdelen är att bevara dessa kontraster samtidigt som man skapar yta för att den ska förtätas och växa samman genom utveckling av kontor, handel, service och bostäder. Det ska bildas en modern blandstad med liv och puls. Man pratar om en fördubbling i invånarantal på sikt samt att antal människor som passerar resecentrum vid Gamlestads Torg kommer att bli likvärdig med Korsvägen. Att ha kontor här redan nu är alltså att ligga i framkant där man får vara en del av den spännande utvecklingen.

KOMMUNIKATION
Goda förbindelser till centrum, både via cykel, bil och kollektivt. Med bil tar du dig enkelt till Marieholmstunneln samt de stora lederna där E45:an ligger närmst. Från Gamlestads Torg finns förbindelser via buss, spårvagn eller tåg. Det tar sex minuter från centrum med spårvagn och tio minuter med cykel. Till Gamlestads Torg tar du dig via en 10-minutersprommenad eller buss 168 som stannar alldeles intill fastigheten.

Om Fastigheten

Sammanfattning

Typ: Hyreslokal
Tomtarea: 1 248 m2

Allmänt

Län: Västra Götaland
Kommun: Göteborg
Fastighetsbeteckning: GÖTEBORG GAMLESTADEN 740:105

Alla bilder

+ 5 Visa alla 11 bilder
 

Karta och område

Marieholmsgatan 56 - För Uthyrning,

Intresseformulär

Fyll i formuläret så kontaktar vi dig inom kort.

Kontaktuppgifter
Vänligen ange förnamn
Vänligen ange efternamn
Vänligen ange telefonnummer
Vänligen ange e-post
500 tecken kvar
Har du lånelöfte?*
Vill du ha hjälp med lånelöfte?
Vill du få nyheter och erbjudanden?

Oj, något gick fel! Försök igen. 

Ett ögonblick!
Tack, dina uppgifter är sparade!
Du fyllde inte i någon e-postadress. Ange den nedan för att inte missa någon information.
 
 
 
Ta del av vår integritetspolicy
 
 
 

Liknande bostäder till salu

Göteborg
Marieholmsgatan 56 - För Uthyrning
Dela bostad: Dela på Facebook Dela med epost Dela med sms Kopiera länk Länken kopierad

Planritning