Hoppa till innehåll

Lindholmshamnen 28 - För Uthyrning

Drömläge vid vattnet – Nyproducerad restaurang- och kontorslokalokal med uteservering

  • Typ: Lokaluthyrning
  • Area: 856 m2

Unik möjlighet att etablera din verksamhet i ett av Lindholmens mest attraktiva lägen! Här erbjuds en moderna och flexibel fastighet med både restaurang- och kontorslokal, perfekt placerad mitt på det nya bryggdäcket med en enastående uteservering och utsikt över vattnet.

Fastigheten är under uppförande och ligger på Anna Erikssons Plats/Lindholmshamnen 28, med närhet till både Radisson Blu Riverside Hotel och Lindholmen Science Park. Lokalerna utformas i samråd med kommande hyresgäst, vilket ger stora möjligheter att skapa en skräddarsydd miljö.

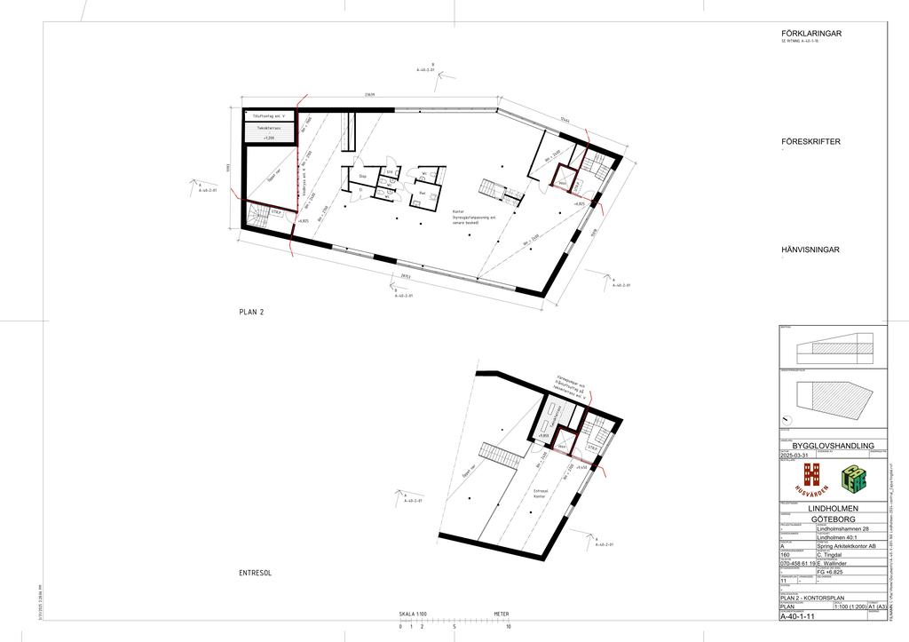
Restaurangdelen omfattar totalt ca 408 kvm varav ca 50 kvm utgörs av ett entresolplan. Den öppna planlösningen tillsammans med stora glaspartier ger ett fantastiskt ljusinsläpp och en imponerande vy över älven och Lindholmshamnen – en perfekt miljö för en levande restaurangupplevelse. Plan två utgörs av en kontorslokal om totalt ca 448 kvm inklusive ett entresolplan om ca 79 kvm.

Total yta: ca 856 kvm
- Restauranglokal, plan 1: Totalt ca 408 kvm fördelat på 358 kvm + entresolplan om ca 50 kvm

- Kontorslokal, plan 2: Totalt ca 448 kvm fördelat på 368 kvm + entresolplan om 79 kvm

Det kan finnas möjlighet till att anpassa och dela av lokalerna i samråd med fastighetsägaren, då en yta om minst 200 kvm per plan. Det innebär att fastigheten inrymmer max fyra hyresgäster vilket skapar utmärkta möjligheter till exponering, synlighet och en exklusiv känsla för båda verksamheterna.

Planerad inflyttning sker enligt överenskommelse under 2026–2027.

Parkeringsmöjligheter: Det finns gott om parkeringar i området och garageplats går att hyra i närheten.

Missa inte denna sällsynta chans att ta plats i ett expansivt område med stark framtidspotential!

OMRÅDE
Lindholmen är ett av Göteborgs mest expansiva och dynamiska områden där innovation, hållbarhet och stadsliv möts. Här omges man av innovativa företag och kunskapskluster men har samtidigt närhet till vackra promenadstråk både längs Lindholmsallén samt kajen som löper ända bort till Eriksberg. Man omringas av puls och rörelse tack vare de många människor som jobbar, studerar och bor här. Visionen är att expandera och utveckla stadsdelen än mer för att garantera livfullhet från tidiga morgnar till sena kvällar. I närområdet finner du även en variation av restauranger och caféer, träningscenter, köpcentrum med b.la. apotek, matbutiker etc.

KOMMUNIKATIONER
Goda kommunikationer med både färja och buss som tar en mot stan och centrala Göteborg på endast några minuter. Färjan över till Stenpiren tar endast 5 minuter och sträckan trafikeras med täta avgångar. Göteborgs centralstation nås på 7 minuter med buss eller spårvagn med hållplats på gångavstånd.

Om Fastigheten

Sammanfattning

Typ: Lokaluthyrning
Area: 856 m2

Allmänt

Län: Västra Götaland
Kommun: Göteborg
Fastighetsbeteckning: GÖTEBORG LINDHOLMEN 40:1

Alla bilder

+ 0 Visa alla 6 bilder
 

Planritning

Karta och område

Lindholmshamnen 28 - För Uthyrning,

Intresseformulär

Fyll i formuläret så kontaktar vi dig inom kort.

Kontaktuppgifter
Vänligen ange förnamn
Vänligen ange efternamn
Vänligen ange telefonnummer
Vänligen ange e-post
500 tecken kvar
Har du lånelöfte?*
Vill du ha hjälp med lånelöfte?
Vill du få nyheter och erbjudanden?

Oj, något gick fel! Försök igen. 

Ett ögonblick!
Tack, dina uppgifter är sparade!
Du fyllde inte i någon e-postadress. Ange den nedan för att inte missa någon information.
 
 
 
Ta del av vår integritetspolicy
 
 
 

Liknande bostäder till salu

Göteborg
Lindholmshamnen 28 - För Uthyrning
Dela bostad: Dela på Facebook Dela med epost Dela med sms Kopiera länk Länken kopierad

Planritning