Hoppa till innehåll
 
Vill du veta mer om bostaden?

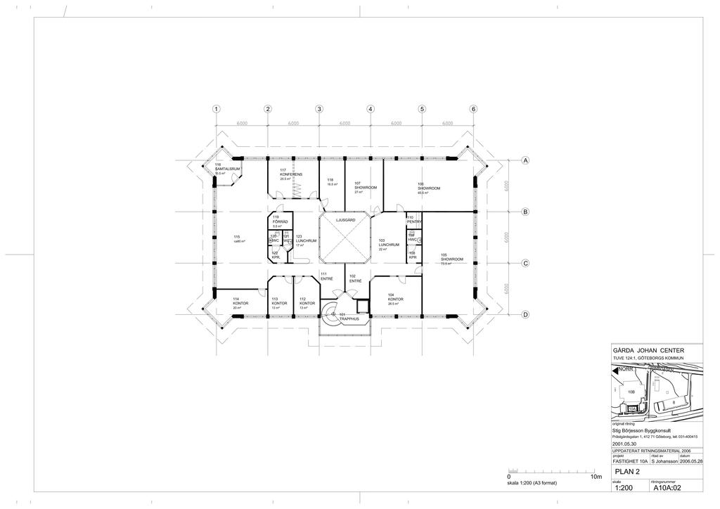
Grimboåsen 10A - För Uthyrning

Vill du veta mer om bostaden?

Ge ditt företag en inspirerande nystart – mitt i hjärtat av Gårda Johan Företagspark!

  • Typ: Lokaluthyrning
  • Area: 550 m2

Välkommen till Grimboåsen 10A! I ett attraktivt läge på Hisingen har du nu möjlighet att bli hyresgäst i Gårda Johans företagspark, en modern företagspark med lokaler i en livfull och grön miljö.

Här finns möjligheten att etablera er i en modern kontorslokal som kombinerar funktion och flexibilitet, utformad för både trivsel och produktivitet. Lokalen har en yta om 550 kvm och passar perfekt för en teknikfokuserad verksamhet med behov av både öppna arbetsytor och avskilda rum för möten eller fokuserat arbete. En anpassningsbar miljö som stöttar både samarbete och koncentration.

Möjlighet till anpassningar efter behov och önskemål i samråd med fastighetsägaren.
Här erbjuds gott om parkeringsmöjligheter, utmärkta kommunikationer samt snabb och smidig access till centrala Göteborg – perfekt för företag i rörelse.

Parkeringsmöjligheter: 20 p-platser
Tillträde enl överenskommelse

Möjlighet att bli en del av en modern företagspark
Som hyresgäst här har du förmånen att bli en del av Gårda Johans företagspark, en kommersiell blandstad där olika typer av företag trivs. Här hittar du allt från mindre industrier och verkstadsföretag till moderna kontor och mötesplatser, där fastighetsägaren alltid strävar efter att bemöta hyresgästers önskemål i utformning av lokal.

En unik arbetsmiljö i en rogivande omgivning, bortom traditionella industriområden, där moderna arbetslokaler förenas med en mängd bekvämligheter och aktiviteter. Du erbjuds allt från hotell och konferens till spa, golf, padel, restauranger och sportclub med hotellet Sankt Jörgen Park Resort som områdets hjärta - bjud in kunder och kollegor till möten på någon av de trevliga restaurangerna i området. Detta är mer än en arbetsplats, här har du möjligheter för att trivas både på och efter jobbet. Välkommen till Gårda Johan företagspark.

KOMMUNIKATION
Goda kommunikationsmöjligheter med en busshållplats som ligger med gångavstånd från fastigheten, varifrån flera busslinjer avgår, bl a kan du ta buss 17 direkt till centralstationen. Via bil tar du dig enkelt till E6, E20 och E45.

Om Fastigheten

Sammanfattning

Typ: Lokaluthyrning
Area: 550 m2

Allmänt

Län: Västra Götaland
Kommun: Göteborg
Fastighetsbeteckning: GÖTEBORG TUVE 124:5

Alla bilder

Planritning

Karta och område

Grimboåsen 10A - För Uthyrning,

Intresseformulär

Fyll i formuläret så kontaktar vi dig inom kort.

Kontaktuppgifter
Vänligen ange förnamn
Vänligen ange efternamn
Vänligen ange telefonnummer
Vänligen ange e-post
500 tecken kvar
Har du lånelöfte?*
Vill du ha hjälp med lånelöfte?
Vill du få nyheter och erbjudanden?

Oj, något gick fel! Försök igen. 

Ett ögonblick!
Tack, dina uppgifter är sparade!
Du fyllde inte i någon e-postadress. Ange den nedan för att inte missa någon information.
 
 
 
Ta del av vår integritetspolicy
 
 
 

Liknande bostäder till salu

Göteborg
Grimboåsen 10A - För Uthyrning
Dela bostad: Dela på Facebook Dela med epost Dela med sms Kopiera länk Länken kopierad

Planritning