Hoppa till innehåll

Amalia Jönssons gata 21 - För Uthyrning

Kombiytor i eftertraktat och lättillgängligt läge uthyres i Högsbo - Amalia Jönssons gata 21

  • Typ: Lokaluthyrning
  • Area: 240 m2

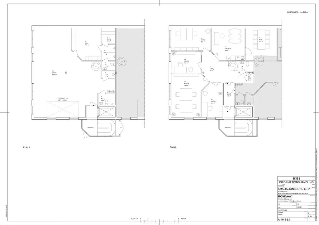
Nu har du som söker kontor kombinerat med lagerytor möjligheten att etablera din verksamhet i attraktivt och lättillgängligt läge i Högsbo. Här erbjuds kombiytor om totalt ca 240 kvm fördelat på två plan. Markplan om ca 117 kvm utgörs av en lagerdel med omklädning, WC, dusch samt bastu och plan två utgörs av trevliga och ljusa kontorsytor.

Takhöjd i lagerdelen är ca 3 m och möjlighet till port för smidig in- och utlastning finns. Kontors- och personalytor nås via trapphus med hiss och har även direkt anslutning till lagret via en spiraltrappa, vilket skapar ett effektivt och lättillgängligt flöde mellan ytorna. Här erbjuds välplanerade arbetsytor med kontorsrum i varierade storlekar, konferensrum, förråd, kök/lunchrum, WC samt omklädningsrum med dusch och bastu. Se planlösning nedan.

Hiss finns i huset.

OMRÅDE
Bra läge i det expansiva området Högsbo/Sisjön industriområde, vilket är beläget ca 7 km söder om centrala Göteborg. Här finns ett stort utbud av handel- och industriverksamheter och man har närhet till en stor variation av service såsom restauranger, butiker, köpcentrum 421 samt Sisjöns handelsplats. Nära anslutning till Söderleden och E6:an och man tar sig smidigt och enkelt till både Mölndal i öster och Frölunda i väster.

Om Fastigheten

Sammanfattning

Typ: Lokaluthyrning
Area: 240 m2

Allmänt

Län: Västra Götaland
Kommun: Göteborg
Fastighetsbeteckning: GÖTEBORG HÖGSBO 16:12

Alla bilder

+ 0 Visa alla 6 bilder
 

Karta och område

Amalia Jönssons gata 21 - För Uthyrning,

Intresseformulär

Fyll i formuläret så kontaktar vi dig inom kort.

Kontaktuppgifter
Vänligen ange förnamn
Vänligen ange efternamn
Vänligen ange telefonnummer
Vänligen ange e-post
500 tecken kvar
Har du lånelöfte?*
Vill du ha hjälp med lånelöfte?
Vill du få nyheter och erbjudanden?

Oj, något gick fel! Försök igen. 

Ett ögonblick!
Tack, dina uppgifter är sparade!
Du fyllde inte i någon e-postadress. Ange den nedan för att inte missa någon information.
 
 
 
Ta del av vår integritetspolicy
 
 
 

Liknande bostäder till salu

Göteborg
Amalia Jönssons gata 21 - För Uthyrning
Dela bostad: Dela på Facebook Dela med epost Dela med sms Kopiera länk Länken kopierad

Planritning