Hoppa till innehåll
Salbohed

Källvägen 6

Hyres fastighet i bra skick

  • Typ: Bostadsfastighet
  • Tomtarea: 1 306 m2
  • Driftkostnad: 97 075 kr/år

Hyresfastighet i två våningar med källare och vind. Bra skick på samtliga lägenheter förutom ettan som också är vakant. Renoverade helkaklade badrum och kök med garanti kvar på vitvarorna. Bergvärme, fiber, kommunalt vatten och avlopp. Nytt tak 2019. Hyresintäkter vid full uthyrning 429 756 SEK per år. I källaren har tidigare ägare förberett planlösning för två lokaler. Detta inkluderar förberedelse för VA samt kanalisation för el med mera.

Salbohed är en mindre ort cirka 4 mil utanför Västerås. Närhet till mataffär, mack och busskommunikation.

Om Fastigheten

Sammanfattning

Typ: Bostadsfastighet
Tomtarea: 1 306 m2
Pris (Utgångspris): 4 250 000 kr
Driftkostnad: 97 075 kr/år
Tomtareauppgift enligt: Lantmäteriet

Allmänt

Län: Västmanland
Kommun: Sala
Fastighetsbeteckning: SALA SÖRSALBO 4:39

Planbestämmelser

Salbohed, Byggnadsplan (Beslutsdatum: 1965-12-16, Senast ändrad: 2023-09-19)

Källvägen 6

Byggnadsår: 1952
Taxeringsvärde: 740 000 kr
Värderingsår: 1952
Area: 296 m2
Beskrivning: Senaste 5 åren har bl. a. följande renoveringar/reparationer genomförts:

1. Alla liggande stammar bytts ut hela vägen ut till tomtgräns.
2. Nytt tak
3. Nya elstigare och mätare. 3-fas till alla lägenheter.
4. Fiber
5. Ventilationsfläkt på tak.
6. Nya stammar (stående)
7. Nya badrum
8. Nya/renoverade kök och nya vitvaror (5års garanti på vitvaror fr. ELON)
9. Nyrenoverad tvättstuga. Bokningstavla m. nycklar.
10. Nya ytterdörrar till lägenheter
11. Nya golv
12. Alla ytskikt lägenheter
13. Alla ytskikt trapphus

Ekonomi

Pris (Utgångspris)

4 250 000 kr

Driftkostnader

97 075 kr/år

Fördelas enligt följande

El: 53 590 kr
Vatten och avlopp: 17 309 kr
Försäkring: 6 176 kr
Städ/trädgård/snö (uppskattad, kostnaden varierar lite): 20 000 kr
Beskrivning: Renhållningen ingår i vatten och avlopp.

Utöver ovanstående eventuella driftkostnader tillkommer fastighetsavgift med belopp om 2 775 kr.

Underhåll

11 000 kr

Observera att driftskostnaderna som anges ovan baseras på säljarens faktiska kostnader det senaste året om inget annat särskilt anges.
Vilka driftskostnader köparen kommer att ha beror på hur bostaden kommer att användas, vilka abonnemang som kommer att tecknas och övriga omständigheter i det enskilda fallet.

Taxering

Byggnad: 740 000 kr
Mark: 185 000 kr
Totalt: 925 000 kr
Taxeringsår: 2022
Taxeringsvärdet är: Fastställt
Värdeår: 1952
Typkod: 320, Hyreshusenhet, bostäder

Pantbrev

Det finns 4 pantbrev uttaget om sammanlagt 1 500 000 kr.

Energideklaration

Status: Energideklaration är utförd
Energiprestanda: 89 kWh/kvm/år
Energiklass: EE
Energideklaration utförd: 2016-06-05
Besiktningsman: Ola Eklund, 14 energy Eklund & Eklund energideklarationer.

Intäkter

Hyresintäkter vid full beläggning: 429 756 kr/år

Sammanfattning från hyresgästlista

Total area

296 m2

Uthyrd total area

259 m2

Vakant total area

37 m2

Summa hyresintäkter uthyrd area

363 108 kr/år

Summa vakantintäkter

66 648 kr/år

Totalt antal hyresgäster

5

Totalt antal bostäder

5

Totalt antal lokaler

0

Alla bilder

+ 21 Visa alla 27 bilder
 

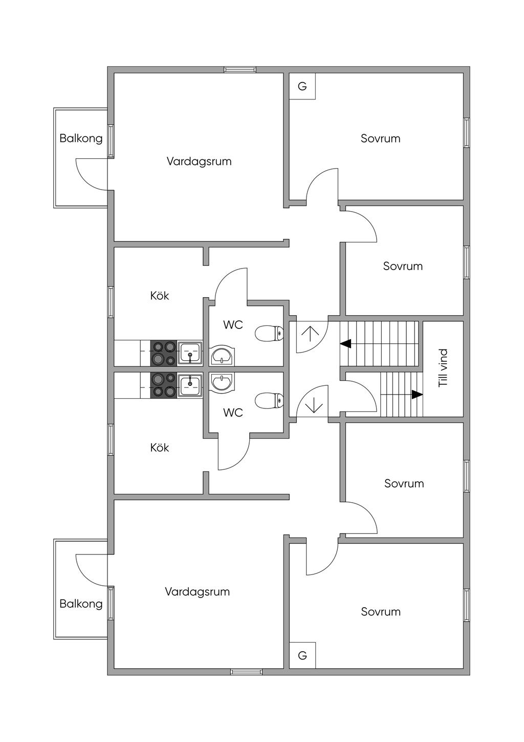
Planritning

Karta och område

Källvägen 6, Salbohed

Intresseformulär

Fyll i formuläret så kontaktar vi dig inom kort.

Kontaktuppgifter
Vänligen ange förnamn
Vänligen ange efternamn
Vänligen ange telefonnummer
Vänligen ange e-post
500 tecken kvar
Har du lånelöfte?*
Vill du ha hjälp med lånelöfte?
Vill du få nyheter och erbjudanden?

Oj, något gick fel! Försök igen. 

Ett ögonblick!
Tack, dina uppgifter är sparade!
Du fyllde inte i någon e-postadress. Ange den nedan för att inte missa någon information.
 
 
 
Ta del av vår integritetspolicy
 
 
 

Liknande bostäder till salu

Sala
Källvägen 6
Dela bostad: Dela på Facebook Dela med epost Dela med sms Kopiera länk Länken kopierad

Planritning