Hoppa till innehåll
Björnlunda

Stationsvägen 8 - Restaurang

Restaurang-fastighet med bangolf i Björnlunda!

  • Typ: Restaurangfastighet
  • Tomtarea: 2 485 m2
  • Bruksarea: 124 m2
  • Area: 2485 m2
  • Driftkostnad: 50 460 kr/år

Nu finns en fantastisk möjlighet att förverkliga din dröm, att driva restaurang i egen fastighet, som dessutom har en 18-håls minigolfbana! På denna "dubbel-tomt" finns alla möjligheter att skapa en framgångsrik verksamhet!
Restaurangen har plats för upp till 75 gäster inomhus och många utomhus. Här har bedrivits restaurangverksamhet i många år och restaurangen är ett populärt utflyktsmål. Här har man även haft olika typer av evenemang för bilfantaster, mc-folk och många andra evenemang som lockat många besökare!

I den lilla Sörmlandsidyllen Björnlunda finns Gnesta kommuns enda bangolfbana, eller minigolf som det också kallas. Golfbanan har 18 st filtbanor.
Restaurangen och golfbanan har samma ägare och säljs tillsammans.

Förutom servering till besökande gäster har restaurangen även haft många catering-uppdrag. Intilliggande Wattrangsborg har flertalet event och den går också att hyra för egna fester och event - ett utmärkt tillfälle till samarbete med catering!
Restaurangen är en samlingspunkt för boende och besökare i och i närheten av Björnlunda och har bedrivit verksamhet året runt. Ett utmärkt utflyktsställe att äta en bit god mat och gå en runda minigolf. Ett perfekt utflyktsmål för kompisgänget, familjen eller varför inte en after work med arbetskamrater.

Under det senaste året har köket bytts ut, ventilationen har setts över, ny elcentral har monterats, brandskydd har uppdaterats och ny luftvärmepump installerats som även fungerar som AC sommartid.
I restaurangens arbetsdel finns förutom själva köket goda förvaringsutyrmmen, omklädningsrum, personaltoalett samt ett kontorsrum.
I restauranglokalen finns en rymlig kund-wc samt utgång till uteserveringsdelen.
På tomten finns ytterligare byggnader, en "golfkiosk" och en friggebod.

Välkommen till Björnlunda - en bra bit av Sörmland!

Om Fastigheten

Sammanfattning

Typ: Restaurangfastighet
Tomtarea: 2 485 m2
Utgångspris: 1 595 000 kr
Driftkostnad: 50 460 kr/år
Bruksarea: 124 m2
Area: 2485 m2
Tomtareauppgift enligt: Lantmäteriet

Tomt/balkong/uteplats

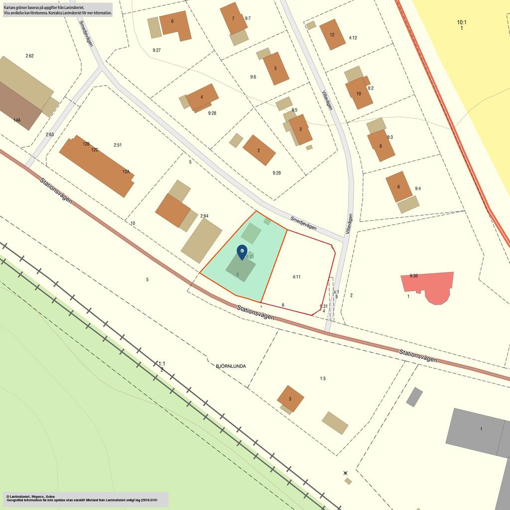
Gnesta Skenda 4:13 (restaurangen) är om 1259 kvm
Gnesta Skenda 4:11 (golfbanan) är om 1226 kvm)

Parkering

Det finns parkerings platser på tomten och på andra sidan vägen finns en större allmän parkering.

Allmänt

Län: Södermanland
Kommun: Gnesta
Fastighetsbeteckning: GNESTA SKENDA 4:13 och GNESTA SKENDA 4:11

Planbestämmelser

Skenda 9:31, Byggnadsplan (Beslutsdatum: 1978-04-05, Senast ändrad: 2003-09-25)
Björnlunda,vägföreningens ansvarsområde, Ändring av detaljplan (Beslutsdatum: 2003-02-13, Senast ändrad: 2024-10-29)

Restaurangen

Typ: Restaurang
Byggnadsår: 1965
Taxeringsvärde: 213 000 kr
Värderingsår: 1965
Bruksarea: 90 m2
Energistatus: Energideklaration är utförd
Energideklaration utförd: 2024-09-18
Energiprestanda: 68 kWh/kvm/år
Energiklass: E
Besiktningsman: Per Sundström, Anticimex
Beskrivning: Energideklarationen avser endast restaurangbyggnaden, "golfkiosken" är inte deklarerad.
Vatten: Kommunalt vatten och avlopp
Teknisk beskrivning: Under 2025 installerades ny luftvärmepump och i köket har maskinpark (begagnad) installerats.
Uppvärmning, kylning och ventilation: Luftvärmepump och el, värmepumpen fungerar även för kylning sommartid
Kommentar: Restaurangbyggnad i ett plan med plats för ca 75 gäster inomhus och betydligt fler utomhus.

Golfkiosken

Typ: Golfkiosk
Byggnadsår: 1968
Taxeringsvärde: 153 000 kr
Värderingsår: 1968
Bruksarea: 34 m2

Ekonomi

Utgångspris

1 595 000 kr

Driftkostnader

50 460 kr/år
Årlig elförbrukning: 16700 kWh/år

Fördelas enligt följande

El: 30 060 kr
Vatten och avlopp: 20 400 kr

Utöver ovanstående eventuella driftkostnader tillkommer fastighetsavgift med belopp om 7 073 kr.

Observera att driftskostnaderna som anges ovan baseras på säljarens faktiska kostnader det senaste året om inget annat särskilt anges.
Vilka driftskostnader köparen kommer att ha beror på hur bostaden kommer att användas, vilka abonnemang som kommer att tecknas och övriga omständigheter i det enskilda fallet.

Taxering

Byggnad: 366 000 kr
Mark: 483 000 kr
Totalt: 849 000 kr
Taxeringsår: 2025
Taxeringsvärdet är: Fastställt
Värdeår: 1965
Typkod: 323, Hyreshusenhet, kiosk
Beskrivning: Gnesta Skenda 4:13 (restaurangen) har taxeringskod 323 (hyreshusenhet, kiosk) med marktaxeringsvärde om 69 000 kr samt byggnadstaxeringsvärde om 213 000 kr = 282 000 kr
Gnesta Skenda 4:11 (golfbanan) har taxeringskod 220 (bebyggd småhusenhet) med marktaxeringsvärde om 414 000 kr samt byggnadstaxeringsvärde om 153 000 kr = 567 000 kr

Pantbrev

Det finns 1 pantbrev uttaget om sammanlagt 1 100 000 kr.
Fastigheterna är samintecknade med 1 uttaget pantbrev om 1 100 000 kr.

Energideklaration

Status: Energideklaration är utförd
Energiprestanda: 123 kWh/kvm/år
Energiklass: EE
Specifik energianvändning: 68 kWh/kvm/år
Energideklaration utförd: 2024-09-18
Besiktningsman: Per Sundström, Anticimex
Beskrivning: Energideklarationen avser endast restaurangbyggnaden.

Alla bilder

+ 25 Visa alla 31 bilder
 

Karta och område

Stationsvägen 8 - Restaurang, Björnlunda

Intresseformulär

Fyll i formuläret så kontaktar vi dig inom kort.

Kontaktuppgifter
Vänligen ange förnamn
Vänligen ange efternamn
Vänligen ange telefonnummer
Vänligen ange e-post
500 tecken kvar
Har du lånelöfte?*
Vill du ha hjälp med lånelöfte?
Vill du få nyheter och erbjudanden?

Oj, något gick fel! Försök igen. 

Ett ögonblick!
Tack, dina uppgifter är sparade!
Du fyllde inte i någon e-postadress. Ange den nedan för att inte missa någon information.
 
 
 
Ta del av vår integritetspolicy
 
 
 

Liknande bostäder till salu

Gnesta
Stationsvägen 8 - Restaurang
Dela bostad: Dela på Facebook Dela med epost Dela med sms Kopiera länk Länken kopierad

Planritning