Hoppa till innehåll
Falkenberg

Servicevägen 19G

Dina Kubik - ett garage, ett lager, ett förråd eller kanske rent av ett kontor till ditt företag?

  • Typ: Övrigt
  • Tomtarea: 73 m2

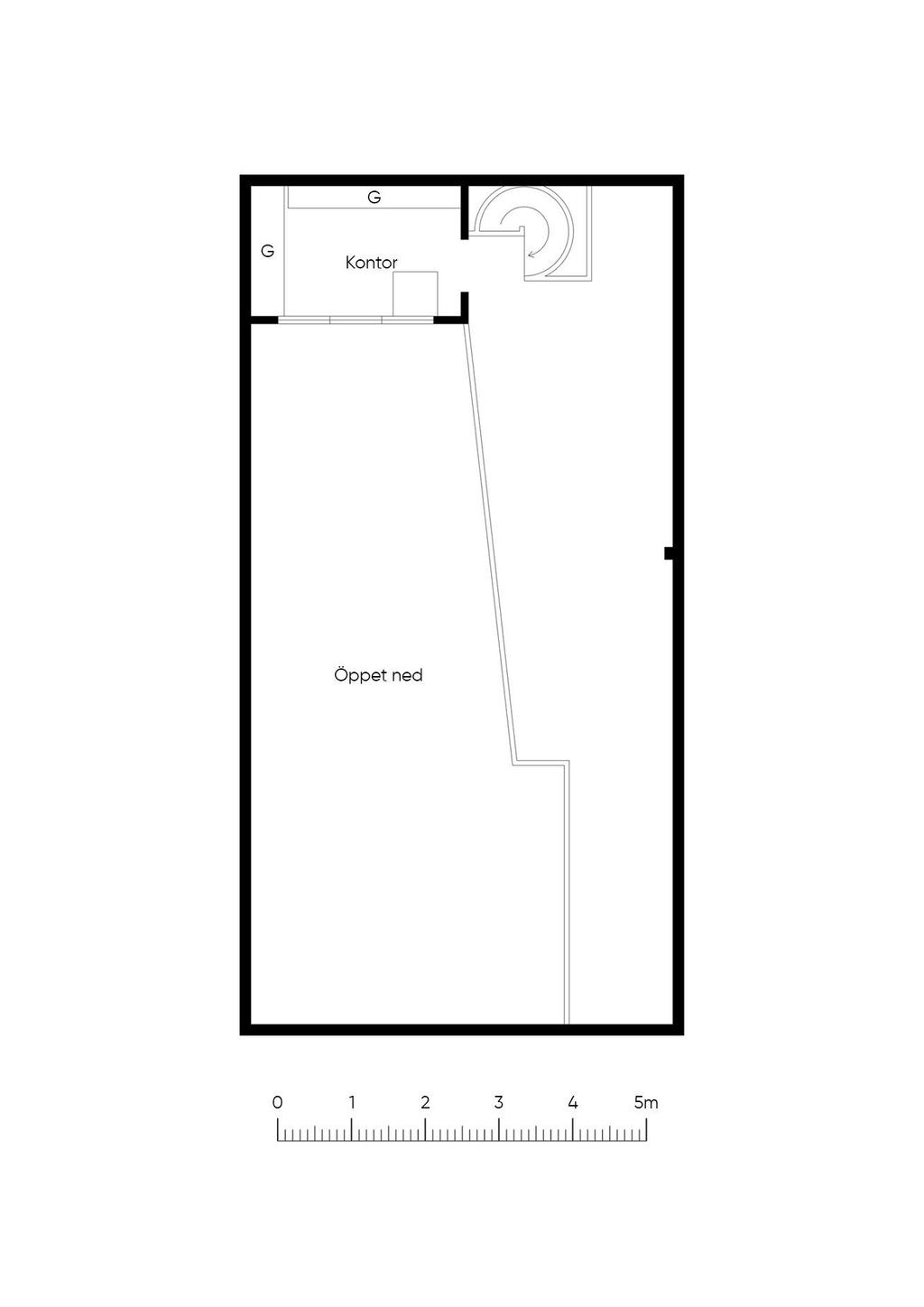
Friköpt förrådsbyggnad på ca 70 kvm med inredd övervåning med kontor och förvaring. Den ingår i gemensamhetsanläggning med fler likadana förrådsbyggnader. Perfekt för dig som behöver vinterförvaring av din båt, bil eller husbil eller för företagare som behöver ett kontor eller större lager! Ingen månadshyra - du äger själv fastigheten. Årsavgift till samfälligheten på 3000 kr inkluderar bland annat försäkring av byggnaden, snöröjning, förvaltningen av gemensamhetsanläggningen m.m. Att själv äga sin lokal ger stora fördelar då man själv tar alla beslut om sin fastighet samt har möjlighet att följa värdeutvecklingen. ​Varje lokal är en egen fastighet som är ca 11,8 X 6 meter med egna portar och ingång. Husen är välisolerade med indragen el, vatten och avlopp.

Denna välutrustade Kubik har på entréplan med ett betonggolv och här finns ett par arbetsplatser med förvaring och verktygstavlor. Tvättho i rostfritt. Gott om belysning utmed väggarna och ovanför arbetsbänkarna. Wc. Uppvärmningen sker via en luft/luftvärmepump. En spiraltrappa i stål leder upp till övervåningen som har ett rum med ett kontor samt en yta för extra förvaring.

En Kubik som är färdig, bara är att börja nyttja för dig som köpare!

Om Fastigheten

Sammanfattning

Typ: Övrigt
Tomtarea: 73 m2
Pris (Utgångspris): 1 050 000 kr
Inflyttning: Enligt överenskommelse
Tomtareauppgift enligt: Lantmäteriet

Parkering

Asfalterad, gemensam plan utanför byggnaden som kan användas för fastighetsägaren som parkering

Allmänt

Län: Halland
Kommun: Falkenberg
Fastighetsbeteckning: FALKENBERG CHAUFFÖREN 39

Omgivning

Verksamhetsmark Smedjeholm
Smedjeholm är ett centrumnära verksamhetsområde med stor bredd av redan etablerade verksamheter. Området är detaljplanelagt för primärt industriverksamhet.

Smedjeholm ligger ca två kilometer från centrum och lika långt från hamnen. Området ligger i anslutning till väg 767. Här finns många olika typer av etablerade verksamheter och områdets mångfald är också dess styrka. På Smedjeholm äger Falkenbergs kommun cirka 100 000 kvadratmeter försäljningsbar verksamhetsmark.

Planbestämmelser

Del av smedjeholm 1:65 m fl, Detaljplan (Beslutsdatum: 2012-06-05, Registreringsdatum: 2012-10-26, Senast ändrad: 2024-01-05)

Övriga rättigheter och belastningar

Gemensamhetsanläggning: FALKENBERG CHAUFFÖREN GA:1
Rättigheter last: Avtalsservitut: GATUBELYSNING OCH ELKABLAR - SE BESKRIVNING
Officialservitut: UTRYMME - UTRYMME
Samfällighet: FALKENBERG CHAUFFÖREN S:1
Avtalsrättigheter: Avtalsservitut Gatubelysning och Elkablar

Övrigt

Diverse mått på lokalen invändigt.
Lokalens totala bredd är 5,80 meter.
Utrymme mellan entrésolplan och vägg är mellan 3-3,45 meter brett.
Takhöjd på bottenplan under entrésolplan är ca 2,50 meter.
Lokalens djup ifrån väggfast bänk till portarna är ca 11 meter.
Portarnas öppning är 4 meter och höjden är 4,50.
Högsta takhöjd under traversen är 5,20 meter.

Fastigheterna är anpassade för många användningsområden där egentligen bara fantasin sätter gränser. Här kan företaget exempelvis bedriva produktion, kontor eller lagerverksamhet. Privatpersoner kan med fördel köpa denna enhet och använda den som hobbylokal eller förvaring för bilar, båtar och motorcyklar mm. Naturligtvis kan flera personer gå ihop och köpa tillsammans.

Som köpare är din fastighet en del av en redan bildad samfällighetsförening där samtliga fastighetsägare ingår. Detta innefattar bland annat kostnaden för V/A, fastighetsförsäkring, yttre skötsel, ekonomisk förvaltning av gemensamhetsanläggningen Kostnad för samfälligheten är ca 250 kronor per månad. Du blir även lagfaren ägare och behöver på så sätt inte betala någon hyra. Vid gaveln mot Servicevägen finns även en gemensam dusch och wc som ingår i samfälligheten/avgiften.

Dina kubik garage

Typ: Garage
Byggnadsår: 2016
Taxeringsvärde: 573 000 kr
Värderingsår: 2016
Area: 69 m2
Beskrivning: Uppvärmning sker via luftvärmepump Daikin. Kommunalt VA. Jordfelsbrytare. 3-fas uttag samt gott om eluttag. Takfläkt.

Via portarna nås garaget med betongplatta på mark. Här finns generöst med väggfasta, justerbara hyllsystem och väggkrokar. Arbetsbänk med ett kraftigt skruvstäd samt flera med verktygs tavlor på väggen. Arbetsbelysning. Generöst med avhängning för kläder. Rostfri tvättho. Arbetsbänk med underskåp/lådor samt överskåp och arbetsbelysning.

Wc med plastmatta, målade väggar.

En spiraltrappa leder upp till entrésolplan med sidoförvaring, här finns kraftiga, justerbara stålhyllor samt ytterligare väggkrokar. Motorstyrd travers för max 1 ton som lätt lyfter tex en bilmotor. Ett mindre kontor med skrivbord med stol. Förvaringshyllor. Microvågsugn, Melitta kaffemaskin, kombinerad kyl/frys. Liten diskho.

Ägaren har valt en löstagbar räckeslösning för att underlätta hantering av föremål som behöver lyftas “över kanten” mellan nedervåning och övervåning. Övervåningen har huvudsakligen använts som förvaringsutrymme. Vid hantering av tyngre föremål har den takmonterade traversen använts. I vissa situationer har det även varit praktiskt att kunna ta bort räcket för att ytterligare förenkla förflyttning av saker mellan våningsplanen.

Nuvarande ägare har förvarat en segelbåt 8,85 m lång och 2,65 m bred segelbåt, ståendes på en traditionell båt-vagn. Dessutom ytterligare en egenbyggd segelkanot 6 m lång och 1,5 m bred, ståendes på båt-trailer. 3 motorcyklar, samt en enorm mängd verktyg och maskiner


Garaget säljs med allting som finns på plats vid visningen. Exempel på lösöre som ingår:

o 1 st våg som kan användas ihop med traversen, för att säkra att man ej gör för tunga lyft av misstag
o 2 st färgburkar med vit färg ifall man vill bättre på här och där.
o 1 st hög stege, som består av två delar, så den kan ställas in på två olika höjder
o 1 st stor bred hög metallhylla (”Pelly-hylla” som normalt används i matvarubutiker)
o 1 st fika-plastbord och 3 tillhörande 3 vita plaststolar
o 1 st takfläkt
o hängare på väggarna
o 2 st brandsläckare och 1 st brandfilt
o 2 st långa förlängnings-kablar
o 1 st vattenslang
o 1 st snöskyffel
o 1 st låg ihopfällbar lätt aluminium-stege
o 1 st arbetsbord samt verktygspaneler (i metall) samt skruvstäd
o 1 st svart-och vit-metall barstol
o 1 st svart-och vit-rutig arbets-stol på hjul
o 1 st rörelse-detektor-lampa
o Elfahyllor
o 1 st stor snickar-boks-”bibel”
o 1 st skrivbord med skrivbordsstol
o 1 st espressomaskin och tillhörande manual på skrivbordet. Mikrovågsugn. Vattenkokare
o 1 st kyl/frysskåp med manual

Ekonomi

Pris (Utgångspris)

1 050 000 kr

Fördelas enligt följande

Beskrivning: Årsförbrukning under 2025 var 3 087 kWh. Kostnad elnätsabonnemang och elhandelsavtal(anvisningspris) 2025: 12 596 kronor.
Årsavgift till samfällighetsföreningen 3000 kr (april 2026.)


Utöver ovanstående eventuella driftkostnader tillkommer fastighetsavgift med belopp om 3 410 kr.

Taxering

Byggnad: 573 000 kr
Mark: 109 000 kr
Totalt: 682 000 kr
Taxeringsår: 2025
Taxeringsvärdet är: Fastställt
Typkod: 433, Industrienhet annan övrig byggnad

Pantbrev

Det finns 0 pantbrev uttaget om sammanlagt 0 kr

Energideklaration

Status: Energideklaration behövs ej

Alla bilder

+ 17 Visa alla 23 bilder
 

Planritning

Karta och område

Servicevägen 19G, Falkenberg

Visningsanmälan

Fyll i formuläret så kontaktar vi dig inom kort.

Välj mellan nedan alternativ
Onsdag 6 maj
Anmälan krävs

Servicevägen 19G, 311 32 Falkenberg
Anmälan till visning gör du enkelt på vår hemsida, alternativt ring oss på 0346-48840 så bokar vi in din visningstid!
Jag vill veta mer om bostaden

Kontaktuppgifter
Vänligen ange förnamn
Vänligen ange efternamn
Vänligen ange telefonnummer
Vänligen ange e-post
500 tecken kvar
Har du lånelöfte?*
Vill du ha hjälp med lånelöfte?
Vill du få nyheter och erbjudanden?

Oj, något gick fel! Försök igen. 

Ett ögonblick!
Tack, dina uppgifter är sparade!
Du fyllde inte i någon e-postadress. Ange den nedan för att inte missa någon information.
 
 
 
Ta del av vår integritetspolicy
 
 
 

Liknande bostäder till salu

Falkenberg
Servicevägen 19G
Dela bostad: Dela på Facebook Dela med epost Dela med sms Kopiera länk Länken kopierad

Planritning