Hoppa till innehåll
Dala-Husby

Smedbyvägen 27

Husby Wärdshus

  • Typ: Villa, 2-plan
  • Rum: 13, varav 7 sovrum
  • Boarea: 442 m2
  • Biarea: 20 m2
  • Tomtarea: 3 150 m2
  • Byggnadsår: 1905
  • Driftkostnad: 84 700 kr/år

Funderat på annorlunda boende eller kombinera boende med rörelse? Nu finns möjlighet att ta över fastighet som idag går under namnet Husby Wärdshus.
Enastående vackert läge vid Dalälven. Stor lummig tomt med egen brygga.

Fastighet med lång historia. Nuvarande ägare har renoverat fastighetens rum och installerade under 2021 även bergvärmepump.
Wärdshuset inrymmer förutom restaurang och bar fyra boenderum och tre sviter.

Välkommen att anmäla intresse för visning till det som kanske är ert nya hem.

Om Fastigheten

Beskrivning

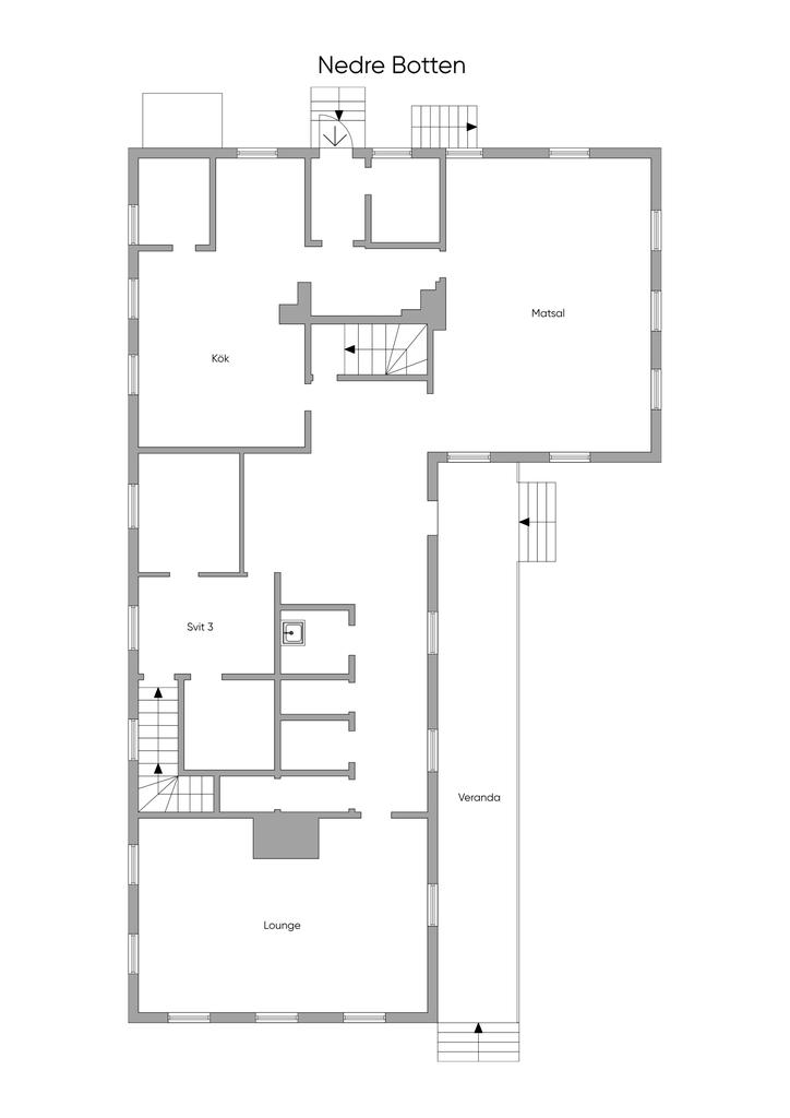
I byggnaden finns restaurang kök, matsal, lounge, sällskapsrum, fyra rymliga rum med egna duschrum samt tre sviter med egna duschrum. Källare under del av byggnaden.
Se även planskiss

Sammanfattning

Typ: Villa, 2-plan
Rum: 13, varav 7 sovrum
Boarea: 442 m2
Biarea: 20 m2
Tomtarea: 3 150 m2
Pris (Utgångspris): 4 995 000 kr
Byggnadsår: 1905
Driftkostnad: 84 700 kr/år
Tomtareauppgift enligt: Lantmäteriet

Uppvärmning

Bergvärmepump
Ålder: 2021

Byggnadssätt

Vatten: Kommunalt vatten
Avlopp: Kommunalt avlopp
Grund: Källare/torpargrun
Stomme: Trä
Bjälklag: Trä
Fasad: Träfasad
Fönster: 2-glasfönster
Takbeklädnad: Plåt
Ventilation: Självdrag

Tomt/balkong/uteplats

Altandäck
Balkong
Brygga vid vattnet

Övriga byggnader

Äldre kioskbyggnad som idag används som förråd

Tv/Internetanslutning

Fiber

Allmänt

Län: Dalarna
Kommun: Hedemora
Område: Dala-Husby
Fastighetsbeteckning: HEDEMORA SMEDBY 14:14

Planbestämmelser

Smedby 14:14, Detaljplan (Beslutsdatum: 1993-02-25)
Smedby, Områdesbestämmelser (Beslutsdatum: 1994-06-30, Senast ändrad: 2023-08-10)

Övriga rättigheter och belastningar

Samfällighet: HEDEMORA KYRKSKOGEN S:1

Byggnadsår: 1929
Taxeringsvärde: 195 000 kr
Värderingsår: 1929
Area: 442 m2

Ekonomi

Pris (Utgångspris)

4 995 000 kr

Driftkostnader

84 700 kr/år
Årlig elförbrukning: 40400 kWh/år

Fördelas enligt följande

El: 51 700 kr
Vatten och avlopp: 11 000 kr
Försäkring: 20 000 kr
Sotning: 2 000 kr

Utöver ovanstående eventuella driftkostnader tillkommer fastighetsavgift med belopp om 3 460 kr.

Observera att driftskostnaderna som anges ovan baseras på säljarens faktiska kostnader det senaste året om inget annat särskilt anges.
Vilka driftskostnader köparen kommer att ha beror på hur bostaden kommer att användas, vilka abonnemang som kommer att tecknas och övriga omständigheter i det enskilda fallet.

Taxering

Byggnad: 195 000 kr
Mark: 126 000 kr
Totalt: 321 000 kr
Taxeringsår: 2025
Taxeringsvärdet är: Fastställt
Standardpoäng: 36
Typkod: 325, Hyreshusenhet, lokaler

Pantbrev

Det finns 6 pantbrev uttaget om sammanlagt 950 000 kr.

Energideklaration

Status: Energideklaration är utförd
Energiklass: FF
Energideklaration utförd: 2014-09-17
Beskrivning: Observera att bergvärmepump installerade 2021 och ersatta tidigare fastbränslepanna.

Alla bilder

+ 27 Visa alla 33 bilder
 

Planritning

Karta och område

Smedbyvägen 27, Dala-Husby

Intresseformulär

Fyll i formuläret så kontaktar vi dig inom kort.

Kontaktuppgifter
Vänligen ange förnamn
Vänligen ange efternamn
Vänligen ange telefonnummer
Vänligen ange e-post
500 tecken kvar
Har du lånelöfte?*
Vill du ha hjälp med lånelöfte?
Vill du få nyheter och erbjudanden?

Oj, något gick fel! Försök igen. 

Ett ögonblick!
Tack, dina uppgifter är sparade!
Du fyllde inte i någon e-postadress. Ange den nedan för att inte missa någon information.
 
 
 
Ta del av vår integritetspolicy
 
 
 

Liknande bostäder till salu

Dala-Husby, Hedemora
Smedbyvägen 27
Dela bostad: Dela på Facebook Dela med epost Dela med sms Kopiera länk Länken kopierad

Planritning