Hoppa till innehåll
Vargön

Hagens väg 7

Hagens väg 7

  • Typ: Villa, 1-plan
  • Boarea: 109 m2
  • Biarea: 12 m2
  • Tomtarea: 534 m2
  • Byggnadsår: 1960
  • Driftkostnad: 42 686 kr/år
  • Upplåtelseform: Äganderätt

På en stillsam återvändsgata finner du denna välplanerade 1-plansvilla som erbjuder ett bekvämt och lättskött boende. Här bor du med ett fint läge och gott om utrymme både inne och ute – perfekt för såväl familjen som för dig som söker ett hem i ett plan.

Huset bjuder på generösa sällskapsytor och en stor altan som blir en naturlig samlingsplats under årets varmare månader. Här finns gott om plats för utemöbler, grill och umgänge med familj och vänner.

Till fastigheten hör garage samt ett praktiskt, vidbyggt förråd som ger utmärkta förvaringsmöjligheter. Den lugna återvändsgatan skapar en trygg och rofylld miljö, idealisk för barnfamiljer eller dig som uppskattar ett tyst och ostört läge.

Ett hemtrevligt boende med funktionella ytor, bra läge och fina möjligheter att sätta din egen prägel – varmt välkommen hem till Hagens väg 7.

Om Bostaden

Beskrivning

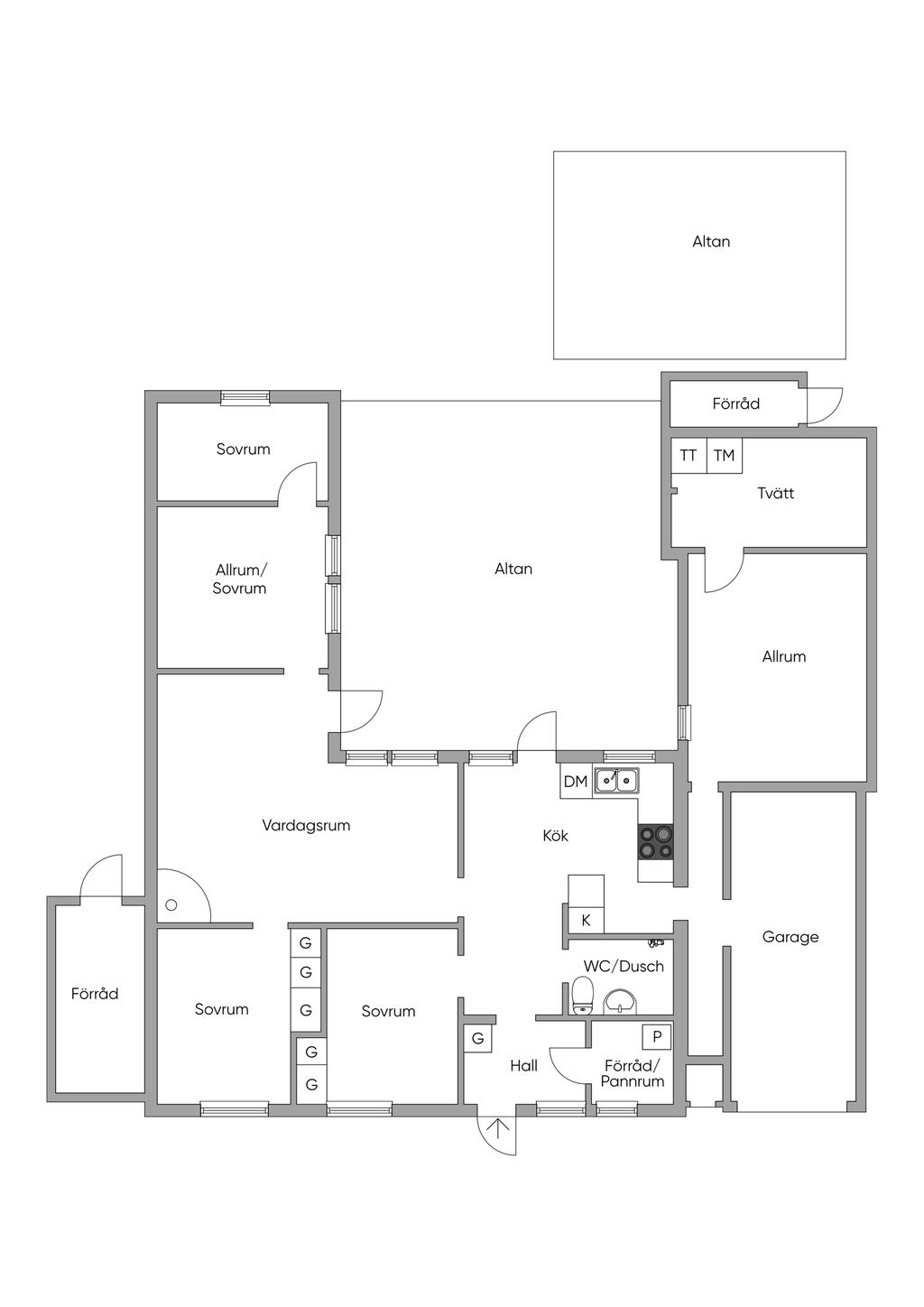
Hall: Laminatgolv, avvhängningsyta och garderob. Ingång till förråd/pannrum.
Kök: Laminatgolv och vita luckor. Ek-bänkskivor och grått kakel. Kyl, hällspis, fläkt och diskmaskin. Utgång till altan.
Vardagsrum: Vardagsrum i vinkel med trägolv. Braskamin och utgång till altan.
Sosrum/Allrum: Parkettgolv.
Sovrum: Laminatgolv.
Sovrum: Laminatgolv och 3 garderober.
Sovrum: Laminatgolv och 2 garderober.
Badrum: Våtrumsmatta och våtrumstapet. Toalett, handfatsmöbel med överskåp, dusch ooch badrumsmöbel.
Inre hall: Utgång till garage.
Allrum: Laminatgolv.
Tvättstuga: Tvättmaskin, torktumlare och upphängningsyta.

Sammanfattning

Typ: Villa, 1-plan
Boarea: 109 m2
Biarea: 12 m2
Tomtarea: 534 m2
Utgångspris: 1 750 000 kr
Byggnadsår: 1960
Driftkostnad: 42 686 kr/år
Upplåtelseform: Äganderätt
Inflyttning: Enligt överenskommelse

Kommentar till boarean

Boareauppgift enligt: Lantmäteriet

Uppvärmning

El - vattenburen värme samt luft/luft-värmepump

Byggnadssätt

Vatten: Kommunalt vatten året om
Avlopp: Kommunalt avlopp
Grund: Platta på mark
Stomme: Trä
Fasad: Träfasad
Fönster: 2-glas och 3-glasfönster
Takbeklädnad: Betongpannor
Ventilation: Självdrag
Murstock: Skorsten av plåt

Renoveringar

2009: Nya fönster samt altandörrar på baksidan.
2011: Omlagt yttertak samt installation av luft/luft-värmepump.
2012: Ny takpapp på garage.
2013: Relining av avlopp.
2019: Ny altan.

Tomt/balkong/uteplats

Stor insynsskyddad altan på baksidan.

Övriga byggnader

Vidbyggt förråd på gaveln samt mindre förråd på baksidan.

Parkering

Plats för 2 bilar på tomten.

Tv/Internetanslutning

Telia öppen fiber.

Allmänt

Län: Västra Götaland
Kommun: Vänersborg
Område: Vargön
Fastighetsbeteckning: VÄNERSBORG CELLULOSAN 4

Planbestämmelser

Storegårdsområdet västra delen,vargön, Stadsplan (Beslutsdatum: 1988-01-26, Senast ändrad: 2023-11-21)

Ekonomi

Utgångspris

1 750 000 kr

Driftkostnader

42 686 kr/år
Årlig elförbrukning: 14243 kWh/år
Antal i hushållet: 5

Fördelas enligt följande

El: 29 098 kr
Vatten och avlopp: 5 800 kr
Försäkring: 4 788 kr
Renhållning: 2 300 kr
Sotning: 700 kr

Utöver ovanstående eventuella driftkostnader tillkommer fastighetsavgift med belopp om 10 425 kr.

Observera att driftskostnaderna som anges ovan baseras på säljarens faktiska kostnader det senaste året om inget annat särskilt anges.
Vilka driftskostnader köparen kommer att ha beror på hur bostaden kommer att användas, vilka abonnemang som kommer att tecknas och övriga omständigheter i det enskilda fallet.

Taxering

Byggnad: 1 301 000 kr
Mark: 406 000 kr
Totalt: 1 707 000 kr
Taxeringsår: 2024
Taxeringsvärdet är: Fastställt
Värdeår: 1960
Standardpoäng: 44
Typkod: 220, Småhusenhet, bebyggd

Pantbrev

Det finns 5 pantbrev uttaget om sammanlagt 1 354 000 kr.

Energideklaration

Status: Energideklaration är beställd

Försäkring

Svensk Fastighetsförmedling samarbetar med If för att underlätta ditt bostadsköp. När du köper bostad eller fritidshus genom Svensk Fastighetsförmedling är den automatiskt försäkrad. Vi kallar det Flytta in-försäkring. Den är kostnadsfri och gäller under de första 30 dagarna. Fortsätter du sedan att försäkra hemmet eller fritidshuset hos If får du 10% rabatt och flera andra unika förmåner. Fråga din mäklare för att ta del av erbjudandet.
Trygg affär - Varudeklarerad Villa

Alla bilder

+ 13 Visa alla 19 bilder
 

Planritning

Karta och område

Hagens väg 7, Vargön

Kalkyl

Vad kostar nya boendet?

Fler värden

Här nedanför kan du ändra ränta, amortering och driftkostnader och se hur de påverkar kalkylen.

Återställ alla värden
Visa fler

Ränta

Amortering

Driftkostnad per månad

Driftkostnad/månad

Observera att driftskostnaderna som anges ovan baseras på säljarens faktiska kostnader det senaste året om inget annat särskilt anges.

Vilka driftskostnader köparen kommer att ha beror på hur bostaden kommer att användas, vilka abonnemang som kommer att tecknas och övriga omständigheter i det enskilda fallet.

Boendekostnad per månad

Ränta
+  kr
Driftkostnad
+  kr
Fastighetsskatt/-avgift
+ 869 kr
Skattereduktion
 kr
Summa
ca  kr
Amortering
+  kr
Inkl amortering
ca  kr

Ansök om lånelöfte

Hos vårt systerbolag Ordna Bolån kan du enkelt ansöka om lånelöfte eller bolån. En ansökan, svar från flera banker.

Intresseformulär

Fyll i formuläret så kontaktar vi dig inom kort.

Kontaktuppgifter
Vänligen ange förnamn
Vänligen ange efternamn
Vänligen ange telefonnummer
Vänligen ange e-post
500 tecken kvar
Har du lånelöfte?*
Vill du ha hjälp med lånelöfte?
Vill du få nyheter och erbjudanden?

Oj, något gick fel! Försök igen. 

Ett ögonblick!
Tack, dina uppgifter är sparade!
Du fyllde inte i någon e-postadress. Ange den nedan för att inte missa någon information.
 
 
 
Ta del av vår integritetspolicy
 
 
 

Liknande bostäder till salu

Vargön, Vänersborg
Hagens väg 7
Dela bostad: Dela på Facebook Dela med epost Dela med sms Kopiera länk Länken kopierad

Planritning