Hoppa till innehåll
Trollhättan

Pipströmsgatan 16

Yteffektivt kedjehus i Skoftebyn med garage och elbilsladdare.

  • Typ: Kedjehus, 1,5-plans kedjehus
  • Rum: 4, varav 5 sovrum
  • Boarea: 114 m2
  • Tomtarea: 274 m2
  • Byggnadsår: 1967
  • Driftkostnad: 49 564 kr/år
  • Upplåtelseform: Äganderätt

Välkommen till Pipströmsgatan 16 och detta trivsamma kedjehus i hjärtat av populära Skoftebyn!

Här bor du på en lugn och barnvänlig återvändsgata, med närhet till både natur, skolor och service – perfekt för dig som söker ett bekvämt och lättskött boende.

Detta yteffektiva kedjehus om 114 kvm i 1,5 plan erbjuder en smart planlösning med fyra sovrum, vardagsrum med mysig kamin och utgång till en insynsskyddad uteplats där du kan njuta av soliga dagar och lugna kvällar i privat miljö.

Det välplanerade köket bjuder in till både vardagsmatlagning och trevliga middagar, och här finns även praktiska ytor såsom tvättstuga och gästtoalett på entréplan. På övre plan finner du ett helkaklat badrum i fräscht skick samt möjlighet till 3 sovrum med gott om förvaringsmöjligheter.
Detta kan bli ett riktigt dröm hem för hela familjen.

Till huset hör även ett vidbyggt garage med installerad elbilsladdare.

Runt husknuten finns samfälligheten gemensamma grönområde med lekplats.
Här får du ett hem som kombinerar funktion, trivsel och ett riktigt bra läge – perfekt för familjen som vill bo tryggt och bekvämt i ett uppskattat område.

Kontakta ansvarig mäklare redan idag för mer information.

Om Bostaden

Beskrivning

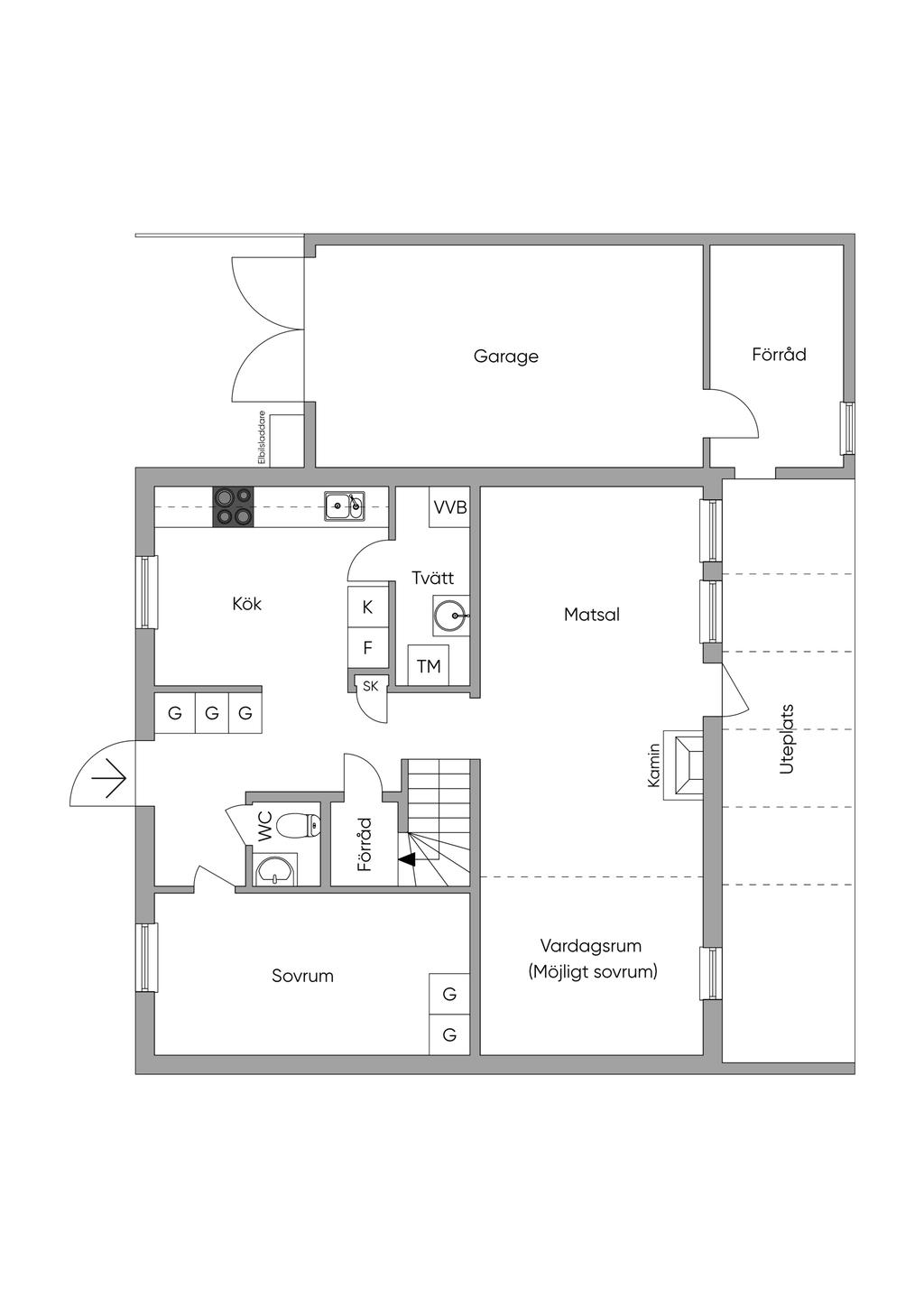
ENTRÉPLAN
Hall
Kök
Tvättstuga
Toalett
Vardagsrum/matsal
Sovrum

OVANVÅNING
3 x Sovrum
Badrum

Sammanfattning

Typ: Kedjehus, 1,5-plans kedjehus
Rum: 4, varav 5 sovrum
Boarea: 114 m2
Tomtarea: 274 m2
Utgångspris: 2 200 000 kr
Byggnadsår: 1967
Driftkostnad: 49 564 kr/år
Upplåtelseform: Äganderätt

Kommentar till boarean

Boareauppgift enligt: Lantmäteriet

Uppvärmning

Värmepump-luft/luft, radiatorer samt kamin
Ålder: 2019

Byggnadssätt

Vatten: Kommunalt vatten året om
Avlopp: Kommunalt avlopp
Grund: Platta på mark
Stomme: Trä
Bjälklag: Trä
Fasad: Tegelstensfasad samt stående träfasad på gavelspetsar
Fönster: 2- och 3-isolerglasfönster
Takbeklädnad: Sadeltak, råspont, underlagspapp, läkt och betongpannor.
Utvändiga plåtarbeten: Plåt
Ventilation: Självdrag
El: Jordfelsbrytare finns
Murstock: Murad skorsten med insatsrör
Murstock kommentar: Sotning och brandskyddskontroll utförs löpande.

Renoveringar

2000 Lagt papp på garaget.
2002 Renoverat dusch övre plan
2008 Bytt yttertak
2009 Bytt varmvattenberedaren
2019 Installerat värmepump
2021 Målat träpanel
2016 Bytt fönster på övre plan
2024 Installerat billaddare
Sotning och brandskyddskontroll utförs löpande

Tomt/balkong/uteplats

Insynsskyddad altan på baksidan samt veranda och uteplats med plattsättning vid entren.

Övriga byggnader

Garage med förrådsdel.

Parkering

Asfalterad uppfart samt garage Elbils-laddare på garagefassaden.

Allmänt

Län: Västra Götaland
Kommun: Trollhättan
Område: Skoftebyn
Fastighetsbeteckning: TROLLHÄTTAN BRUNÖRTEN 2

Övriga rättigheter och belastningar

Gemensamhetsanläggning: TROLLHÄTTAN BRUNÖRTEN GA:1 - GÅRDSUTRYMMEN,KOMMUNIKATIONSLEDER,VATTEN-OCH ELLEDNINGAR,TVÄTTSTUGA SAMT CENTRALANTENNANLÄGGNING MM

Ekonomi

Utgångspris

2 200 000 kr

Driftkostnader

49 564 kr/år
Årlig elförbrukning: 12841 kWh/år
Antal i hushållet: 2

Fördelas enligt följande

El: 27 472 kr
Vatten och avlopp: 10 331 kr
Försäkring: 4 500 kr
Renhållning: 2 461 kr
Samfällighet: 4 500 kr
Sotning: 300 kr

Utöver ovanstående eventuella driftkostnader tillkommer fastighetsavgift med belopp om 10 425 kr.

Observera att driftskostnaderna som anges ovan baseras på säljarens faktiska kostnader det senaste året om inget annat särskilt anges.
Vilka driftskostnader köparen kommer att ha beror på hur bostaden kommer att användas, vilka abonnemang som kommer att tecknas och övriga omständigheter i det enskilda fallet.

Taxering

Byggnad: 1 305 000 kr
Mark: 670 000 kr
Totalt: 1 975 000 kr
Taxeringsår: 2024
Taxeringsvärdet är: Fastställt
Värdeår: 1967
Standardpoäng: 29
Typkod: 220, Småhusenhet, bebyggd

Pantbrev

Det finns 10 pantbrev uttaget om sammanlagt 1 172 000 kr.

Energideklaration

Status: Energideklaration är utförd
Energiprestanda: 123 kWh/kvm/år
Energiklass: DD
Specifik energianvändning: 69 kWh/kvm/år
Energideklaration utförd: 2023-06-26

Försäkring

Svensk Fastighetsförmedling samarbetar med If för att underlätta ditt bostadsköp. När du köper bostad eller fritidshus genom Svensk Fastighetsförmedling är den automatiskt försäkrad. Vi kallar det Flytta in-försäkring. Den är kostnadsfri och gäller under de första 30 dagarna. Fortsätter du sedan att försäkra hemmet eller fritidshuset hos If får du 10% rabatt och flera andra unika förmåner. Fråga din mäklare för att ta del av erbjudandet.
Trygg affär - Varudeklarerad Villa

Alla bilder

+ 18 Visa alla 24 bilder
 

Planritning

Karta och område

Pipströmsgatan 16, Trollhättan

Kalkyl

Vad kostar nya boendet?

Fler värden

Här nedanför kan du ändra ränta, amortering och driftkostnader och se hur de påverkar kalkylen.

Återställ alla värden
Visa fler

Ränta

Amortering

Driftkostnad per månad

Driftkostnad/månad

Observera att driftskostnaderna som anges ovan baseras på säljarens faktiska kostnader det senaste året om inget annat särskilt anges.

Vilka driftskostnader köparen kommer att ha beror på hur bostaden kommer att användas, vilka abonnemang som kommer att tecknas och övriga omständigheter i det enskilda fallet.

Boendekostnad per månad

Ränta
+  kr
Driftkostnad
+  kr
Fastighetsskatt/-avgift
+ 869 kr
Skattereduktion
 kr
Summa
ca  kr
Amortering
+  kr
Inkl amortering
ca  kr

Ansök om lånelöfte

Hos vårt systerbolag Ordna Bolån kan du enkelt ansöka om lånelöfte eller bolån. En ansökan, svar från flera banker.

Visningsanmälan

Fyll i formuläret så kontaktar vi dig inom kort.

Välj mellan nedan alternativ
Måndag 6 april
Anmälan krävs

Pipströmsgatan 16, 461 55 Trollhättan
Anmälan via hemsidan alt kontakta ansvarig mäklare.
Jag vill veta mer om bostaden

Kontaktuppgifter
Vänligen ange förnamn
Vänligen ange efternamn
Vänligen ange telefonnummer
Vänligen ange e-post
500 tecken kvar
Har du lånelöfte?*
Vill du ha hjälp med lånelöfte?
Vill du få nyheter och erbjudanden?

Oj, något gick fel! Försök igen. 

Ett ögonblick!
Tack, dina uppgifter är sparade!
Du fyllde inte i någon e-postadress. Ange den nedan för att inte missa någon information.
 
 
 
Ta del av vår integritetspolicy
 
 
 

Liknande bostäder till salu

Skoftebyn, Trollhättan
Pipströmsgatan 16
Dela bostad: Dela på Facebook Dela med epost Dela med sms Kopiera länk Länken kopierad

Planritning