Hoppa till innehåll
 
Visning
Utgångspris: 
3 050 000 kr
Skövde

Lugna gatan 1

Visning
Utgångspris: 
3 050 000 kr

Välskött villa på Lugna gatan

  • Typ: Villa, 2 plansvilla
  • Rum: 4, varav 2-3 sovrum
  • Boarea: 94 m2
  • Biarea: 47 m2
  • Tomtarea: 565 m2
  • Byggnadsår: 1939
  • Driftkostnad: 41 218 kr/år
  • Upplåtelseform: Äganderätt

Välkomna till Lugna gatan 1
Denna mysiga villa ligger centralt på Södermalm inom ett härligt område med byggnation kring början av 40-talet.
Huset som är väl omhändertaget har ett fint läge med en mysig och uppväxt tomt med härligt söderläge med fullt uppväxta fruktträd och buskar.
Detta hus har till skillnad mot flera andra på området ett nybyggt och rymligt garage med vatten och el framdraget.
Huset har två bostadsplan om 45 kvm vardera samt en hel källare.
Entréplan har sociala ytor med vardagsrum och matrum intill det öppna köket. Möjlighet till tre sovrum på övre våningsplan.
Källarplan med hobby- eller sovrum, dusch och tvättstuga.
Som boende på detta område har man närhet till Skövde centrum inom några minuters promenad eller en kort cykeltur.

Om Bostaden

Beskrivning

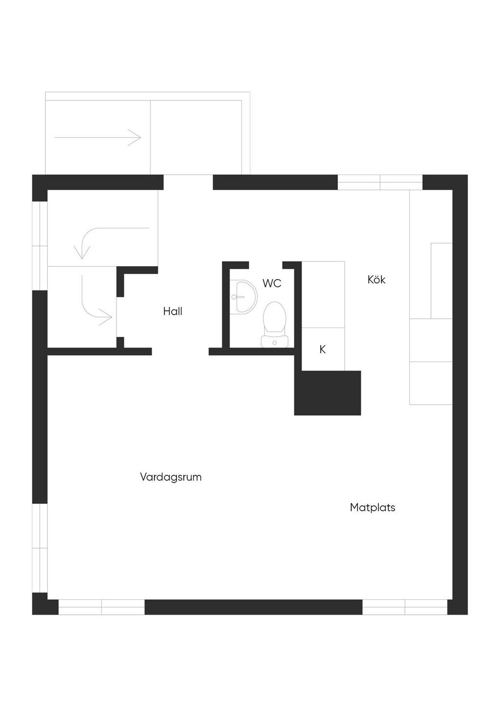
Entréplan
Hall med WC och passage till både kök och vardagsrum. Köket är ett ljust och trevligt kök från Ballingslöv- 08
Matplatsen ligger i vardagsrummet innan utgången till den inglasade altanen i söderläge. Vidare finns plats för TV och soffa i vardagsrummet.

Övre våningsplan
Den fina trappan leder upp till allrummet på andra våningen. Här i hallen finns också en WC och en klädkammare. Balkong i västerläge!
Allrummet är idag ett TV-rum men kan alltså göras om till sovrum. Vidare finns ett större sovrum samt ett mindre sovrum/kontor på detta plan.

Källarplan
I källarplanet finns förråd, pannrum ett trevligt hobbyrum/extra sovrum samt tvättstuga med duschrum. Här finns utgång till tomten via källartrappan upp.

Sammanfattning

Typ: Villa, 2 plansvilla
Rum: 4, varav 2 sovrum, möjlighet till 3 sovrum
Boarea: 94 m2
Biarea: 47 m2
Tomtarea: 565 m2
Utgångspris: 3 050 000 kr
Byggnadsår: 1939
Driftkostnad: 41 218 kr/år
Upplåtelseform: Äganderätt
Inflyttning: Enligt överenskommelse

Kommentar till boarean

Boareauppgift enligt: Lantmäteriet

Uppvärmning

Värmepump luft-vatten (CTC)
Ålder: 2012
Märke: CTC

Byggnadssätt

Vatten: Kommunalt vatten året om
Avlopp: Kommunalt avlopp
Grund: Platta på mark
Stomme: Betong/trä
Bjälklag: Trä
Fasad: Träfasad
Fönster: 2-glasfönster
Grundmur: Betong
Takbeklädnad: Papp
Utvändiga plåtarbeten: Plåt
Ventilation: Självdrag
Radon: Radon uppmätt till 50 Bq/m3 med långtidsmätning 20061211-20070225
Radonfläkt under grundplattan finns installerad.
Murstock: Murad skorsten

Renoveringar

Löpande
1978 Tilläggsisolering och fasadbyte. Träpanel
1987 Byte entrédörr
1987 Renoverat dusch/tvättrum/duschvägg/golv/tak
1997 Uterum/Altan/Skjutdörrar/Ombyggnation
2002 Byte av fönster
2002 Markiser
2006 Radonbrunn
2008 Nytt kök (Ballingslöv), vitvaror, golv/tak/väggar
2010 Renovering entrétak och under balkong
2010 Renovering/Ombyggnation balkong
2011 Trappstegsrenovering inomhus
2011 Omläggning av papptak
2012 Installation värmepump CTC EcoEl 1500/1800
2013 Nytt garage med förråd
2017 Installation fiber
2024 Altantak och fönster
2024 Ny fasad på södersidan


Automover installerad

Tomt/balkong/uteplats

Inglasad altan i söderläge
Fin träterrass i syd-västligt läge.
Mysig tomt med huvuddelen av tomten i söderläge. Gräsytor, buskar som insynsskydd och fruktträd såsom äpple och päron finns. Terrass och altan i härligt solläge: Utanför garaget finns också en mysig plats med södersol.

Övriga byggnader

Garage med förvaring.
Finns vatten och avlopp samt trädgårdsgkran. Även el, robotgräsklippare.

Parkering

Garage med plats för en bil samt bra ytor för hobby. I garaget finns både el, vatten och avlopp installerat och framdraget. El-port och luft/luftvärmepump Mitsubishi
Garageuppfart med plats för en bil

Tv/Internetanslutning

Fiber

Allmänt

Län: Västra Götaland
Kommun: Skövde
Fastighetsbeteckning: SKÖVDE ÄLGEN 17

Planbestämmelser

Älgen, Tomtindelning (Beslutsdatum: 1938-03-02, Senast ändrad: 1993-02-09)
Vasastaden södra,bevarandeplan, Detaljplan (Beslutsdatum: 2003-09-25, Senast ändrad: 2006-10-05)

Ekonomi

Utgångspris

3 050 000 kr

Driftkostnader

41 218 kr/år
Antal i hushållet: 1

Fördelas enligt följande

El: 25 429 kr
Vatten och avlopp: 8 919 kr
Försäkring: 3 800 kr
Renhållning: 3 070 kr

Utöver ovanstående eventuella driftkostnader tillkommer fastighetsavgift med belopp om 10 425 kr.

Observera att driftskostnaderna som anges ovan baseras på säljarens faktiska kostnader det senaste året om inget annat särskilt anges.
Vilka driftskostnader köparen kommer att ha beror på hur bostaden kommer att användas, vilka abonnemang som kommer att tecknas och övriga omständigheter i det enskilda fallet.

Taxering

Byggnad: 1 349 000 kr
Mark: 986 000 kr
Totalt: 2 335 000 kr
Taxeringsår: 2024
Taxeringsvärdet är: Fastställt
Värdeår: 1939
Standardpoäng: 28
Typkod: 220, Småhusenhet, bebyggd

Pantbrev

Det finns 6 pantbrev uttaget om sammanlagt 496 000 kr.

Försäkring

Svensk Fastighetsförmedling samarbetar med If för att underlätta ditt bostadsköp. När du köper bostad eller fritidshus genom Svensk Fastighetsförmedling är den automatiskt försäkrad. Vi kallar det Flytta in-försäkring. Den är kostnadsfri och gäller under de första 30 dagarna. Fortsätter du sedan att försäkra hemmet eller fritidshuset hos If får du 10% rabatt och flera andra unika förmåner. Fråga din mäklare för att ta del av erbjudandet.
Trygg affär - Varudeklarerad Villa

Alla bilder

+ 35 Visa alla 41 bilder
 

Planritning

Karta och område

Lugna gatan 1, Skövde

Kalkyl

Vad kostar nya boendet?

Fler värden

Här nedanför kan du ändra ränta, amortering och driftkostnader och se hur de påverkar kalkylen.

Återställ alla värden
Visa fler

Ränta

Amortering

Driftkostnad per månad

Driftkostnad/månad

Observera att driftskostnaderna som anges ovan baseras på säljarens faktiska kostnader det senaste året om inget annat särskilt anges.

Vilka driftskostnader köparen kommer att ha beror på hur bostaden kommer att användas, vilka abonnemang som kommer att tecknas och övriga omständigheter i det enskilda fallet.

Boendekostnad per månad

Ränta
+  kr
Driftkostnad
+  kr
Fastighetsskatt/-avgift
+ 869 kr
Skattereduktion
 kr
Summa
ca  kr
Amortering
+  kr
Inkl amortering
ca  kr

Ansök om lånelöfte

Hos vårt systerbolag Ordna Bolån kan du enkelt ansöka om lånelöfte eller bolån. En ansökan, svar från flera banker.

Visningsanmälan

Fyll i formuläret så kontaktar vi dig inom kort.

Välj mellan nedan alternativ
Jag vill veta mer om bostaden

Kontaktuppgifter
Vänligen ange förnamn
Vänligen ange efternamn
Vänligen ange telefonnummer
Vänligen ange e-post
500 tecken kvar
Har du lånelöfte?*
Vill du ha hjälp med lånelöfte?
Vill du få nyheter och erbjudanden?

Oj, något gick fel! Försök igen. 

Ett ögonblick!
Tack, dina uppgifter är sparade!
Du fyllde inte i någon e-postadress. Ange den nedan för att inte missa någon information.
 
 
 
Ta del av vår integritetspolicy
 
 
 

Liknande bostäder till salu

Skövde
Lugna gatan 1
Dela bostad: Dela på Facebook Dela med epost Dela med sms Kopiera länk Länken kopierad

Planritning