Hoppa till innehåll
Göteborg

Hakefjordsgatan 118

Hakefjordsgatan 118

  • Typ: Villa, 1-plan med källare/suterrängdel
  • Rum: 6, varav 4-5 sovrum
  • Boarea: ca 92 m2
  • Biarea: ca 52 m2
  • Tomtarea: 437 m2
  • Byggnadsår: 1947
  • Driftkostnad: 38 845 kr/år
  • Upplåtelseform: Tomträtt

Välkommen till Hakefjordsgatan 118 – ett hemtrevligt hus med generösa ytor och en inbjudande trädgård.

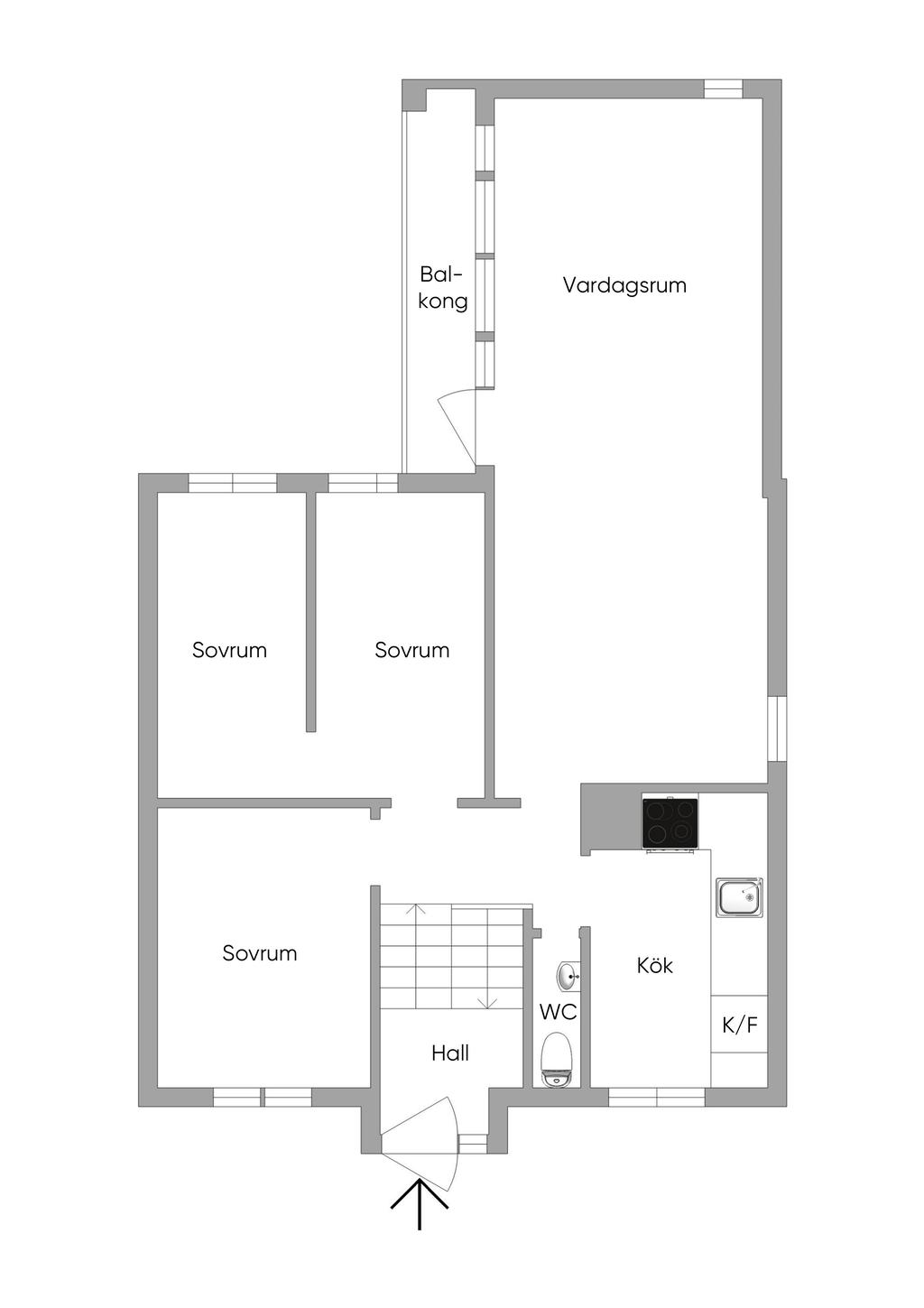
På en lugn gata i ett omtyckt område ligger detta hus med en genomtänkt planlösning fördelad över ett plan samt källare/sutteräng. Bostaden erbjuder gott om plats för både vardagsliv och sociala sammanhang, med möjlighet till upp till fyra sovrum och flera flexibla rum.

Entréplanet välkomnar med en rymlig hall. Härifrån når du bostadens sociala ytor där vardagsrummet tar plats med fint ljusinsläpp och generösa ytor för både soffgrupp och matplats. Vardagsrummet har en naturlig koppling till balkongen som blir en uppskattad förlängning av bostaden stora delar av året – perfekt för middagar, umgänge eller en lugn stund med utsikt mot trädgården och området.

Köket är funktionellt planerat med bra arbetsytor och förvaring samt fönster mot gatan. På entréplanet finns tre sovrum med plats för både säng och skrivbord samt förvaring i garderob.
På detta plan finns även en mindre wc.

Sutterängplanet är väldisponerat och erbjuder tvättstuga med dusch, separat WC, klädkammare, arbetsrum samt flera förråds- och förvaringsutrymmen. I den utbyggda delen finns ett större sovrum.

Trädgården är lättskött och trivsam, en perfekt miljö för lek, odling och sommarens måltider utomhus. På tomten finns även ett mindre garage som ger extra förvaring.

Här bor du i ett lugnt och familjevänligt område med närhet till kommunikationer, skolor och grönområden. Ett välplanerat hem med fina möjligheter att sätta sin egen prägel.

Varmt välkommen på visning!

Om Bostaden

Sammanfattning

Typ: Villa, 1-plan med källare/suterrängdel
Rum: 6, varav 4 sovrum, möjlighet till 5 sovrum
Boarea: ca 92 m2
Biarea: ca 52 m2
Tomtarea: 437 m2
Pris (Utgångspris): 3 850 000 kr
Byggnadsår: 1947
Driftkostnad: 38 845 kr/år
Upplåtelseform: Tomträtt

Kommentar till boarean

Boareauppgift enligt: Mätning
Enligt mätprotokoll 2026-02-06

Uppvärmning

Vattenburen fjärrvärme via radiatorer (element) samt enstaka elradiatorer

Byggnadssätt

Vatten: Kommunalt vatten året om
Avlopp: Kommunalt avlopp
Grund: Källare/betongplatta med ytskikt av trägolv/mattor samt klinker direkt an betongplatta, tillbyggd de
Stomme: Betong/trä
Fasad: Tegel (mindre del träpanel) samt plåt på södergavel
Fönster: 2-glas kopplade fönster samt vissa 2- glas isoler
Takbeklädnad: Sadeltak i vinkel, tegelpannor på ett underlag av läkt, papp och
råspont
Markbeskaffning: Morän
Ventilation: Självdrag (S)
Murstock kommentar: Det finns en murstock som ej är i bruk.

Renoveringar

Om-/tillbyggnadsår: 1968
- Tillbyggnad av huset utfördes 1968 då sannolikt även övriga huset kläddes med tegel, även garage byggdes på 60 talet.
- 1994 Renoverades/byggdes wc på entréplan, ytskiktsrenovering utfördes runt 1996.
- 2003 Installerades fjärrvärme i huset.
- Ca. 2008 plåtades söderfasad (tegel sannolikt kvar bakom).
- 2025 Utfördes utvändig målning kring bl.a. balkong/dagvattenledningar/vindskivor.
För övrigt har det löpande underhållet skötts kontinuerligt.
Uppgifter lämnades muntligen av fastighetsägaren vid besiktningstillfället.

Övriga byggnader

Fristående garage

Tv/Internetanslutning

Fiber finns indraget i huset.

Allmänt

Län: Västra Götaland
Kommun: Göteborg
Fastighetsbeteckning: GÖTEBORG KYRKBYN 67:3

Omgivning

Det som gör området kring Hakefjordsgatan så omtyckt är framför allt det lugna och barnvänliga läget. Här bor du i en trygg och grön miljö med närhet till fina promenadstråk och parker – perfekt för både vardagsmotion och barnvagnspromenader. Samtidigt har du utmärkta kommunikationer som gör det enkelt att ta sig både mot centrala Göteborg och ut mot väster. Spårvagn och buss avgår regelbundet, och med bil är du snabbt ute på större leder.

En annan stor fördel är närheten till Eriksberg och vattnet – här finns både småbåtshamn, restauranger, kaféer och vackra vyer över älven. Inom kort avstånd hittar du även flera affärer, bland annat livsmedelsbutiker och service vid Kyrkbytorget, Wieselgrensplatsen och Backaplan

För barnfamiljer finns ett gott utbud av skolor och förskolor. I närområdet ligger bland annat Hakefjordsgatan förskola, Korsklevegatans förskola samt grundskolan Jättestenskolan i direkt närhet, vilket gör vardagslogistiken enkel.

Sammanfattningsvis får du här ett område som kombinerar lugn och natur med närhet till stadens puls – ett perfekt val för dig som vill ha det bästa av två världar.

Planbestämmelser

Stadsplan (Beslutsdatum: 1945-11-23, Senast ändrad: 1984-05-30)
67-korsblomman i kyrkbyn, Tomtindelning (Beslutsdatum: 1946-04-17)

Ekonomi

Pris (Utgångspris)

3 850 000 kr

Driftkostnader

38 845 kr/år
Årlig elförbrukning: 2950 kWh/år
Antal i hushållet: 1

Fördelas enligt följande

El: 8 413 kr
Uppvärmning: 16 500 kr
Vatten och avlopp: 6 500 kr
Försäkring: 5 832 kr
Renhållning: 1 600 kr

Utöver ovanstående eventuella driftkostnader tillkommer fastighetsavgift med belopp om 10 425 kr och tomträttsavgäld med belopp om 10 720 kr/år.

Observera att driftskostnaderna som anges ovan baseras på säljarens faktiska kostnader det senaste året om inget annat särskilt anges.
Vilka driftskostnader köparen kommer att ha beror på hur bostaden kommer att användas, vilka abonnemang som kommer att tecknas och övriga omständigheter i det enskilda fallet.

Taxering

Byggnad: 1 537 000 kr
Totalt: 3 614 000 kr
Taxeringsår: 2024
Taxeringsvärdet är: Fastställt
Värdeår: 1960
Standardpoäng: 25
Typkod: 220, Småhusenhet, bebyggd

Pantbrev

Det finns 15 pantbrev uttaget om sammanlagt 1 302 400 kr.

Tomträtt

Period: Avgäldsperiod: 10år från 2016-10-01
Ny avgäld från och med 2026-10-01 är 21 808 kr/år.
Upplåtare: 212000-1355
GÖTEBORGS KOMMUN
Box 2258 40314 Göteborg
Slutdatum: 2066-10-01

Energideklaration

Status: Energideklaration är utförd
Energiprestanda: 99 kWh/kvm/år
Energiklass: DD
Specifik energianvändning: 120 kWh/kvm/år
Energideklaration utförd: 2026-02-06
Besiktningsman: Krister Nielsen, Anticimex

Försäkring

Svensk Fastighetsförmedling samarbetar med If för att underlätta ditt bostadsköp. När du köper bostad eller fritidshus genom Svensk Fastighetsförmedling är den automatiskt försäkrad. Vi kallar det Flytta in-försäkring. Den är kostnadsfri och gäller under de första 30 dagarna. Fortsätter du sedan att försäkra hemmet eller fritidshuset hos If får du 10% rabatt och flera andra unika förmåner. Fråga din mäklare för att ta del av erbjudandet.
Trygg affär - Varudeklarerad Villa

Alla bilder

+ 22 Visa alla 28 bilder
 

Planritning

Karta och område

Hakefjordsgatan 118, Göteborg

Kalkyl

Vad kostar nya boendet?

Fler värden

Här nedanför kan du ändra ränta, amortering och driftkostnader och se hur de påverkar kalkylen.

Återställ alla värden
Visa fler

Ränta

Amortering

Driftkostnad per månad

Driftkostnad/månad

Observera att driftskostnaderna som anges ovan baseras på säljarens faktiska kostnader det senaste året om inget annat särskilt anges.

Vilka driftskostnader köparen kommer att ha beror på hur bostaden kommer att användas, vilka abonnemang som kommer att tecknas och övriga omständigheter i det enskilda fallet.

Boendekostnad per månad

Ränta
+  kr
Driftkostnad
+  kr
Fastighetsskatt/-avgift
+ 869 kr
Tomträttsavgäld
+ 893 kr
Skattereduktion
 kr
Summa
ca  kr
Amortering
+  kr
Inkl amortering
ca  kr

Ansök om lånelöfte

Hos vårt systerbolag Ordna Bolån kan du enkelt ansöka om lånelöfte eller bolån. En ansökan, svar från flera banker.

Visningsanmälan

Fyll i formuläret så kontaktar vi dig inom kort.

Välj mellan nedan alternativ
Torsdag 9 april
Anmälan krävs

Hakefjordsgatan 118, 418 72 Göteborg
Söndag 12 april
Anmälan krävs

Hakefjordsgatan 118, 418 72 Göteborg
Jag vill veta mer om bostaden

Kontaktuppgifter
Vänligen ange förnamn
Vänligen ange efternamn
Vänligen ange telefonnummer
Vänligen ange e-post
500 tecken kvar
Har du lånelöfte?*
Vill du ha hjälp med lånelöfte?
Vill du få nyheter och erbjudanden?

Oj, något gick fel! Försök igen. 

Ett ögonblick!
Tack, dina uppgifter är sparade!
Du fyllde inte i någon e-postadress. Ange den nedan för att inte missa någon information.
 
 
 
Ta del av vår integritetspolicy
 
 
 

Liknande bostäder till salu

Göteborg
Hakefjordsgatan 118
Dela bostad: Dela på Facebook Dela med epost Dela med sms Kopiera länk Länken kopierad

Planritning