Hoppa till innehåll
 
Visning
Aktiv matchning
Detta är en bostad som visas exklusivt på svenskfast.se. Mäklaren letar aktivt efter rätt köpare och uppgifter som pris och visningsdatum kan saknas. Anmäl ditt intresse för att få alla uppdateringar och mer information om denna bostad.
Vill du veta mer om bostaden?
Borås

Vedensgatan 45

Visning
Aktiv matchning
Detta är en bostad som visas exklusivt på svenskfast.se. Mäklaren letar aktivt efter rätt köpare och uppgifter som pris och visningsdatum kan saknas. Anmäl ditt intresse för att få alla uppdateringar och mer information om denna bostad.
Vill du veta mer om bostaden?

Mycket fint parhus med härlig trädgård, dubbelgarage och spabad på Salängen i Borås!

  • Typ: Parhus, Parhus, 1 1/2-plan med källare
  • Rum: 6, varav 4 sovrum
  • Boarea: 121 m2
  • Biarea: 52 m2
  • Tomtarea: 719 m2
  • Byggnadsår: 1912
  • Driftkostnad: 39 908 kr/år
  • Upplåtelseform: Äganderätt

Välkommen till Vedensgatan 45 – ett unikt parhus på Salängen där stadspuls möter naturens lugn. Här bor du centralt i Borås med närhet till både kommunikationer, service och grönområden, i ett område som uppskattas för sitt barnvänliga läge.

Bostaden om 121 kvadratmeter är ljus och luftig med genomtänkt planlösning. Entréplanet bjuder på en öppen och social yta mellan matplats och vardagsrum, perfekt för såväl vardag som fest. Här skapar kaminen en ombonad känsla under årets svalare månader. De fina renoveringarna ger ett modernt intryck och den moderna utrustningen underlättar vardagen. Härifrån nås den härliga uteplatsen och den insynsskyddade trädgården på husets baksida.

En våning upp ligger samtliga sovrum praktiskt samlade på samma våningsplan, vilket ger ett tydligt familjevåningsplan och en harmonisk boendemiljö. Här finns också ett helkaklat badrum med dusch.

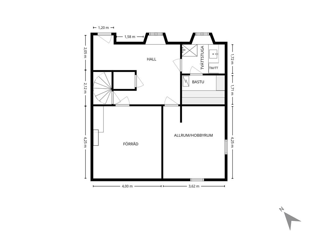
I källarplan finns större rum som kan nyttjas som allrum eller hobbyrum, förråd, matkällare, samt tvättstuga med dusch och bastu.

Utomhus väntar en insynsskyddad baksida med altan, spabad och vacker växtlighet – en härlig plats för avkoppling och umgänge. På husets framsida finns en stenlagd uteplats och den vackra trädgården markeras med häckar och fina fruktträd.

På tomten om 719 kvadratmeter finns dessutom ett fristående dubbelgarage med plats för två bilar och uppställningsplats för bilar samt laddstolpe.

Salängen - är ett av Borås populäraste områden där lugnet möter stadens bekvämligheter. Här bor du i en harmonisk miljö med närhet till både natur och centrum, vilket gör det perfekt för dig som vill ha det bästa av två världar. Området präglas av grönska, lugna gator och en trivsam atmosfär som passar lika bra för barnfamiljer som för den som söker ett rofyllt boende.
Samtidigt har du smidiga kommunikationer och kort avstånd till Borås stadskärna, med shopping, restauranger och kulturutbud inom räckhåll.

Välkommen att höra av dig för mer information och anmäl dig gärna till visningen! / Victoria

Om Bostaden

Sammanfattning

Typ: Parhus, Parhus, 1 1/2-plan med källare
Rum: 6, varav 4 sovrum
Boarea: 121 m2
Biarea: 52 m2
Tomtarea: 719 m2
Byggnadsår: 1912
Driftkostnad: 39 908 kr/år
Upplåtelseform: Äganderätt

Kommentar till boarean

Boareauppgift enligt: Lantmäteriet

Uppvärmning

Fjärrvärme pkt 4 med vattenburen värme via radiatorer sam el-golvvärme i badrum på övre plan

Byggnadssätt

Vatten: Kommunalt vatten året om
Avlopp: Kommunalt avlopp
Grund: Betong
Stomme: Plankstomme
Fasad: Puts samt mindre del stående träpanel
Fönster: 3-glas isolerfönster samt mindre del 2-glas kopplade
Takbeklädnad: Sadeltak med betongpannor
Utvändiga plåtarbeten: Plåt
Ventilation: Självdrag (S) med elektrisk frånluft i badrum på övre plan
Radon: Radonmätning är utförd 2021
El: Elen är till stora delar utbytt i samband med renoveringar. Nytt automatsäkringsskåp har installerats och jordfelsbrytare finns.
Murstock: Skorsten av plåt
Murstock kommentar: Eldstaden är sotas och brandskyddskontrolleras regelbundet.
Allmän information: Larm finns installerat

Renoveringar

Nuvarande ägare har låtit renovera och uppdatera huset under hela boendetiden (separat lista finns på allt som är gjort)
2013 - Renoverades huset med nya ytksikt osv på båda våningar
2013 - Nytt helkaklat badrum med dusch på övre plan
2015 - Nytt kök inkl, nya vitvaror.
2015 - Takkupol i kök
2017 - Fiber installeras
2017 - Nytt stort glasparti med skjutdörrar (3-glas trä/aluminium) installeras
2017 - Ny altan på husets baksida
2018 - Spabad installeras
2018 - Robotgräsklippare framsida installeras (delas med grannen)
2021 - Nedtagning/avlastning av vägg i vardagsrum för öppen planlösning
2021 - Insättning av kamin
2021 - Nya ytskikt samt ny toalett och handfat entréplan
2024 - Nytt tak inkl. nya plåtar och rännor
2024 - Installerat laddstolpe på parkeringsplatsen
2024 - Installation larm
2025 - Robotgräsklippare insalleras på husets baksid
2026 - Ny diskmaskin
2026 - Ny robotgräsklippare framsidan (delad med grannen)

Tidigare ägare hr låtit utföra fölande renoveringar:
2002-2006 - 3-glas isolerfönster
2005 - Bostaden dräneras delvis

Tomt/balkong/uteplats

Altandäck på husets insysnskyddade baksida som nås från husets vardagsrum och kök samt en härlig stenbelagd uteplats på husets framsida.
Fin uppvuxen trädgårdstomt med fruktträd, blommor, buskar och häckar

Övriga byggnader

Fristående dubbelgarage

Parkering

Fristående dubbelgarage samt uppställningsplats för flera bilar samt elbilsladdare.

Tv/Internetanslutning

Fiber finns indraget

Allmänt

Län: Västra Götaland
Kommun: Borås
Område: Salängen
Fastighetsbeteckning: BORÅS PILBÅGEN 9

Planbestämmelser

Salängen, Stadsplan (Beslutsdatum: 1933-06-09, Senast ändrad: 2024-05-24)
Pilbågen, Tomtindelning (Beslutsdatum: 1949-10-21)

Övriga rättigheter och belastningar

Rättigheter last: Avtalsservitut: VÄRMECENTRAL MM - SE BESKRIVNING
Avtalsservitut: Värmeanläggning, Vattenanläggning - se beskrivning
Avtalsrättigheter: Avtalsservitut VÄRMECENTRAL MM
Avtalsservitut Värmeanläggning, Vattenanläggning

Övrigt

Larm finns installerat

Ekonomi

Driftkostnader

39 908 kr/år
Årlig elförbrukning: 5045 kWh/år
Antal i hushållet: 2

Fördelas enligt följande

El: 12 603 kr
Uppvärmning: 13 798 kr
Vatten och avlopp: 6 037 kr
Försäkring: 3 667 kr
Renhållning: 3 150 kr
Sotning: 653 kr
Beskrivning: Fjärrvärmepaket 4
Anläggning och kostnader för fjärrvärme och vatten delas med grannar. Finns servitut.
Uppgett min del av kostnaden.

Har larm installerat: 289/mån
Bredband med Telia: 749/mån

Utöver ovanstående eventuella driftkostnader tillkommer fastighetsavgift med belopp om 10 425 kr.

Observera att driftskostnaderna som anges ovan baseras på säljarens faktiska kostnader det senaste året om inget annat särskilt anges.
Vilka driftskostnader köparen kommer att ha beror på hur bostaden kommer att användas, vilka abonnemang som kommer att tecknas och övriga omständigheter i det enskilda fallet.

Taxering

Byggnad: 2 583 000 kr
Mark: 1 676 000 kr
Totalt: 4 259 000 kr
Taxeringsår: 2024
Taxeringsvärdet är: Fastställt
Värdeår: 1929
Standardpoäng: 41
Typkod: 220, Småhusenhet, bebyggd

Pantbrev

Det finns 6 pantbrev uttaget om sammanlagt 600 000 kr.

Energideklaration

Status: Energideklaration är utförd
Energiprestanda: 103 kWh/kvm/år
Energiklass: DD
Specifik energianvändning: 145 kWh/kvm/år
Energideklaration utförd: 2026-04-09
Besiktningsman: Andrea Anell

Försäkring

Svensk Fastighetsförmedling samarbetar med If för att underlätta ditt bostadsköp. När du köper bostad eller fritidshus genom Svensk Fastighetsförmedling är den automatiskt försäkrad. Vi kallar det Flytta in-försäkring. Den är kostnadsfri och gäller under de första 30 dagarna. Fortsätter du sedan att försäkra hemmet eller fritidshuset hos If får du 10% rabatt och flera andra unika förmåner. Fråga din mäklare för att ta del av erbjudandet.
Trygg affär - Varudeklarerad Villa

Alla bilder

+ 40 Visa alla 46 bilder
 

Planritning

Karta och område

Vedensgatan 45, Borås

Kalkyl

Vad kostar nya boendet?

Fler värden

Här nedanför kan du ändra ränta, amortering och driftkostnader och se hur de påverkar kalkylen.

Återställ alla värden
Visa fler

Ränta

Amortering

Driftkostnad per månad

Driftkostnad/månad

Observera att driftskostnaderna som anges ovan baseras på säljarens faktiska kostnader det senaste året om inget annat särskilt anges.

Vilka driftskostnader köparen kommer att ha beror på hur bostaden kommer att användas, vilka abonnemang som kommer att tecknas och övriga omständigheter i det enskilda fallet.

Boendekostnad per månad

Ränta
+  kr
Driftkostnad
+  kr
Fastighetsskatt/-avgift
+ 869 kr
Skattereduktion
 kr
Summa
ca  kr
Amortering
+  kr
Inkl amortering
ca  kr

Ansök om lånelöfte

Hos vårt systerbolag Ordna Bolån kan du enkelt ansöka om lånelöfte eller bolån. En ansökan, svar från flera banker.

Visningsanmälan

Fyll i formuläret så kontaktar vi dig inom kort.

Välj mellan nedan alternativ
Tisdag 28 april
Anmälan krävs

Vedensgatan 45, 504 56 Borås
Välkommen att anmäla er till visningen!
Jag vill veta mer om bostaden

Kontaktuppgifter
Vänligen ange förnamn
Vänligen ange efternamn
Vänligen ange telefonnummer
Vänligen ange e-post
500 tecken kvar
Har du lånelöfte?*
Vill du ha hjälp med lånelöfte?
Vill du få nyheter och erbjudanden?

Oj, något gick fel! Försök igen. 

Ett ögonblick!
Tack, dina uppgifter är sparade!
Du fyllde inte i någon e-postadress. Ange den nedan för att inte missa någon information.
 
 
 
Ta del av vår integritetspolicy
 
 
 

Liknande bostäder till salu

Salängen, Borås
Vedensgatan 45
Dela bostad: Dela på Facebook Dela med epost Dela med sms Kopiera länk Länken kopierad

Planritning