Hoppa till innehåll
Borås

Stigaregränd 6C

Unikt kedjehus i fyra etage med hörntomt på Bergdalen!

  • Typ: Kedjehus, Kedjehus, etage i 4 plan
  • Rum: 6, varav 3-4 sovrum
  • Boarea: 110 m2
  • Biarea: 68 m2
  • Tomtarea: 388 m2
  • Byggnadsår: 1970
  • Upplåtelseform: Äganderätt

Välkommen till detta unika hem där genomtänkta och exklusiva materialval, fina detaljer och generösa ytor bildar en harmonisk helhet. Bostaden sträcker sig över fyra plan och erbjuder tre sovrum, stora sociala ytor samt exklusiva funktioner som höjer både komfort och känsla. Hemmet präglas av kvalitet, funktion och en genomtänkt planlösning som passar både vardag och umgänge.

Entréplanet består av en rymlig hall och ett luftigt allrum. De gedigna materialvalen märks tydligt och ger rummet karaktär och kvalitet. På entréplan finns även en toalett.

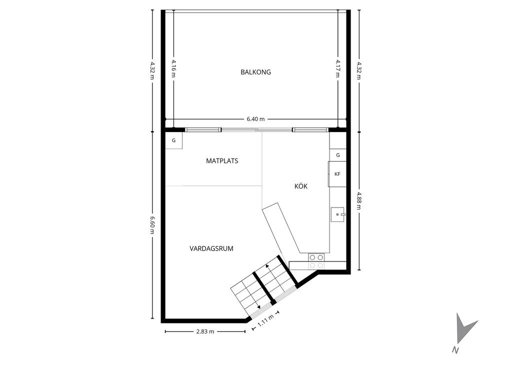
På nästa våningsplan ligger bostadens hjärta – en stor och öppen yta med vardagsrum, kök och matplats där eklister i taket sätter en varm och elegant ton. Köket är ett stilrent Länghemskök utrustat med exklusiva Gaggenau-vitvaror som tillfredsställer även den mest kräsne hemmakocken. De generösa arbetsytorna och den moderna planlösningen gör detta till en naturlig samlingsplats. Från både köket och matplatsen nås den stora balkongen som sträcker sig längs hela fasaden och erbjuder en perfekt plats för middagar och sol större delen av dagen!

Högst upp i bostaden finns det stora sovrummet, idealiskt som master bedroom. Här finns två stora inbyggda garderober som ger praktisk förvaring. Här finns även ett större badrum, vilket skapar ett avskilt och privat våningsplan som fungerar utmärkt som en egen vuxenvåning.

Källarplanet rymmer två av bostadens sovrum – perfekt för barnrum, gästrum eller hemmakontor, varav det ena nås från en ytterdörr på husets baksida. Här finns också en rymlig tvättstuga med både tvättmaskin och torktumlare samt en bastu och dusch som skapar en privat spa-känsla i vardagen. På detta finns även ett förråd som tidigare använts som ett extra sovrum.

Bergdalen – ett av Borås mest eftertraktade lägen
I hjärtat av lummiga Bergdalen väntar ett boende för dig som söker det lilla extra. Här bor du i ett av Borås mest uppskattade områden, omgivet av vackra villagator, grönskande miljöer och en harmonisk atmosfär som ger en känsla av privat, exklusivt lugn – bara minuter från stadens utbud.
Med närhet till både natur och city erbjuder Bergdalen det bästa av två världar. Promenadstråk, parker och stilla kvarterskänsla möter direkt närhet till förskolor och skolor, Borås centrum med dess restauranger, shopping och kultur. Området är lika uppskattat för sin trygghet som för sin eleganta småstadskaraktär.

Välkommen att kontakta mig för mer information och anmäld dig gärna till visningen! / Victoria

Om Bostaden

Sammanfattning

Typ: Kedjehus, Kedjehus, etage i 4 plan
Rum: 6, varav 3 sovrum, möjlighet till 4 sovrum
Boarea: 110 m2
Biarea: 68 m2
Tomtarea: 388 m2
Utgångspris: 6 090 000 kr
Byggnadsår: 1970
Upplåtelseform: Äganderätt

Kommentar till boarean

Boareauppgift enligt: Lantmäteriet

Uppvärmning

Fjärrvärme med vattenburen värme via radiatorer samt vattenbruren golvvärme på entréplan, första etage och badrum på övre etage.

Byggnadssätt

Vatten: Kommunalt vatten året om
Avlopp: Kommunalt avlopp
Grund: Betongplatta på mark
Stomme: Betong/lättbetong
Fasad: Putsade stenskivor monterade på träregelverk
Fönster: 3-glasisolerfönster
Takbeklädnad: Sadeltak med papp, läkt och betongpannor på den branta delen av sadeltaket
Utvändiga plåtarbeten: Plåt
Ventilation: Självdrag (S) med elektrisk frånluft i badrum och toalett
Radon: Radonmätning utförd 2025-11-06 och uppvisade resultat långt under gränsvärdet.
El: Elen är till stora delar utbytt i samband med renoveringen 2020. Jordfelsbrytare finns installerad.
Jordat/ojordat: Jordat
Allmän information: Larm finns installerat och kodlås på ytterdörren.
Elladdare finns installerad
Kommentar: 2009/2010 - Garage byggs om till förråd samt två inredda rum
2020 - Vardagsrum/kök byggs ut med 3 kvm

Renoveringar

Om-/tillbyggnadsår: 2011, 2020
2020 - Huset totalrenoverades invändigt av behöriga entreprenörer:
Nya 3-glas isolerfönster installeras
Sovrum på övre etage görs större
Badrum på övre etage totalrenoveras
Vardagsrum/kök byggs ut med 3 kvm och nytt fönsterparti mot balkong sätts i
Kök renoveras med Länghemskök och vitvaror från Gaggenau
Tvättstuga totalrenoveras och ny dusch installeras
Bastu byggs med Tylö aggregat
Vattenburen golvvärme installeras på entréplan, första etage samt badrum övre etage
Större delen av ytskikt såsom, innertak, golv och väggar har gjorts om
Ny takbelysning på entréplan, på första etage och i tvättstugan
Trätrappor i huset slipas och oljas
Balkongen renoveras med nytt räcke och nya stenplattor läggs
Yttertaket läggs om med ny papp på större delar av yttertaket. I samband med det byttes även papp, läkt och betongpannor på den brantare delen. Vid renoveringen bytts även stora delar av plåtarbeten ut.
Larm istalleras

2022 - Laddbox installeras

2024 - Garageuppfart asfalteras och infart grusas

2025 - Nytt elskåp utomhus

Tomt/balkong/uteplats

Härlig balkong med sol större delen av dagen.

Övriga byggnader

Förrådsbyggnad finns på husets baksidan i anslutning till trädgården.

Parkering

Uppställningsplats för 3 bilar

Tv/Internetanslutning

Fiber finns indraget

Allmänt

Län: Västra Götaland
Kommun: Borås
Område: Bergdalen
Fastighetsbeteckning: BORÅS LAPPMESEN 17

Övriga rättigheter och belastningar

Rättigheter förmån: Officialservitut: PARKERING
Officialservitut: VÄG

Ekonomi

Utgångspris

6 090 000 kr

Driftkostnader

Årlig elförbrukning: 9295 kWh/år
Antal i hushållet: 2

Fördelas enligt följande

El: 10 260 kr
Uppvärmning: 12 780 kr
Vatten och avlopp: 7 017 kr
Försäkring: 7 599 kr
Renhållning: 3 150 kr

Utöver ovanstående eventuella driftkostnader tillkommer fastighetsavgift med belopp om 10 074 kr.

Observera att driftskostnaderna som anges ovan baseras på säljarens faktiska kostnader det senaste året om inget annat särskilt anges.
Vilka driftskostnader köparen kommer att ha beror på hur bostaden kommer att användas, vilka abonnemang som kommer att tecknas och övriga omständigheter i det enskilda fallet.

Taxering

Byggnad: 2 585 000 kr
Mark: 1 389 000 kr
Totalt: 3 974 000 kr
Taxeringsår: 2024
Taxeringsvärdet är: Fastställt
Värdeår: 1977
Standardpoäng: 40
Typkod: 220, Småhusenhet, bebyggd

Pantbrev

Det finns 11 pantbrev uttaget om sammanlagt 3 973 000 kr.

Energideklaration

Status: Energideklaration är utförd
Energiprestanda: 108 kWh/kvm/år
Energiklass: DD
Specifik energianvändning: 125 kWh/kvm/år
Energideklaration utförd: 2025-12-04
Besiktningsman: Hans Modin

Försäkring

Svensk Fastighetsförmedling samarbetar med If för att underlätta ditt bostadsköp. När du köper bostad eller fritidshus genom Svensk Fastighetsförmedling är den automatiskt försäkrad. Vi kallar det Flytta in-försäkring. Den är kostnadsfri och gäller under de första 30 dagarna. Fortsätter du sedan att försäkra hemmet eller fritidshuset hos If får du 10% rabatt och flera andra unika förmåner. Fråga din mäklare för att ta del av erbjudandet.
Trygg affär - Varudeklarerad Villa

Alla bilder

+ 28 Visa alla 34 bilder
 

Planritning

Karta och område

Stigaregränd 6C, Borås

Kalkyl

Vad kostar nya boendet?

Fler värden

Här nedanför kan du ändra ränta, amortering och driftkostnader och se hur de påverkar kalkylen.

Återställ alla värden
Visa fler

Ränta

Amortering

Driftkostnad per månad

Driftkostnad/månad

Observera att driftskostnaderna som anges ovan baseras på säljarens faktiska kostnader det senaste året om inget annat särskilt anges.

Vilka driftskostnader köparen kommer att ha beror på hur bostaden kommer att användas, vilka abonnemang som kommer att tecknas och övriga omständigheter i det enskilda fallet.

Boendekostnad per månad

Ränta
+  kr
Driftkostnad
+  kr
Fastighetsskatt/-avgift
+ 840 kr
Skattereduktion
 kr
Summa
ca  kr
Amortering
+  kr
Inkl amortering
ca  kr

Ansök om lånelöfte

Hos vårt systerbolag Ordna Bolån kan du enkelt ansöka om lånelöfte eller bolån. En ansökan, svar från flera banker.

Intresseformulär

Fyll i formuläret så kontaktar vi dig inom kort.

Kontaktuppgifter
Vänligen ange förnamn
Vänligen ange efternamn
Vänligen ange telefonnummer
Vänligen ange e-post
500 tecken kvar
Har du lånelöfte?*
Vill du ha hjälp med lånelöfte?
Vill du få nyheter och erbjudanden?

Oj, något gick fel! Försök igen. 

Ett ögonblick!
Tack, dina uppgifter är sparade!
Du fyllde inte i någon e-postadress. Ange den nedan för att inte missa någon information.
 
 
 
Ta del av vår integritetspolicy
 
 
 

Liknande bostäder till salu

Bergdalen, Borås
Stigaregränd 6C
Dela bostad: Dela på Facebook Dela med epost Dela med sms Kopiera länk Länken kopierad

Planritning