Hoppa till innehåll
Åmål

Nygårdsvägen 24

  • Typ: Villa, 1-plan med suterrängvåning
  • Rum: 5, varav 3-4 sovrum
  • Boarea: 148 m2
  • Biarea: 58 m2
  • Tomtarea: 677 m2
  • Byggnadsår: 1973
  • Driftkostnad: 36 113 kr/år
  • Upplåtelseform: Äganderätt

Gedigen villa innehållande fem rum varav tre till fyra sovrum, vardagsrum i öppen planlösning med kök, altan i söderläge. Övre hall med täljstenskamin, två fina helkaklade duschrum. Takbyte 2022. Solpaneler med batteri lagring från 2024. Garage i huskroppen. Vattenburen värme via luft/vattenpump.

Om Bostaden

Beskrivning

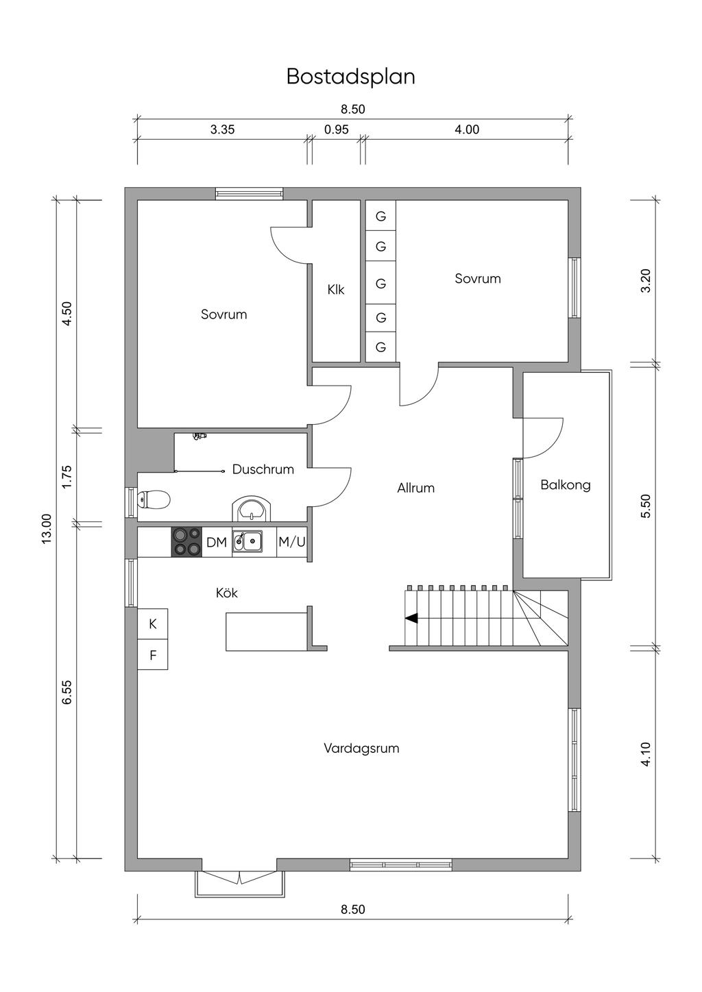
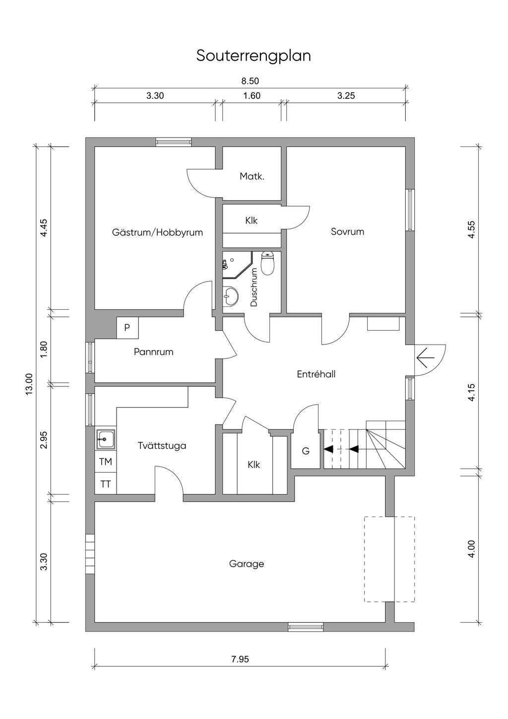
Entréplan med rymlig hall som har klädkammare, ett sovrum med klädkammare. Allrum som kan användas som gästrum eller hobbyrum. Helkaklat duschrum med dusch, wc, tvättställ. Tvättstuga med tvättmaskin, torktumlare och tvättho, utgång till garaget, matkällare. Övre plan med kök i öppen planlösning med vardagsrum, utgång till altan från vardagsrummet, möblerbar hall med täljstenskamin, utgång till balkong. Två sovrum med gott om garderober. Duschrum med dusch, wc, tvättställ.

Sammanfattning

Typ: Villa, 1-plan med suterrängvåning
Rum: 5, varav 3 sovrum, möjlighet till 4 sovrum
Boarea: 148 m2
Biarea: 58 m2
Tomtarea: 677 m2
Utgångspris: 2 175 000 kr
Byggnadsår: 1973
Driftkostnad: 36 113 kr/år
Upplåtelseform: Äganderätt

Kommentar till boarean

Boareauppgift enligt: Taxeringsinformationen

Uppvärmning

Värmepump luft-vatten

Byggnadssätt

Vatten: Kommunalt vatten
Avlopp: Kommunalt avlopp
Grund: Platta på mark/källargrund
Stomme: Trä/betong
Bjälklag: Betong
Fasad: Tegelstensfasad
Fönster: Isolerglasfönster
Takbeklädnad: Betongpannor
Ventilation: Självdrag

Renoveringar

Nytt yttertak 2022, solpaneler med batteri lagring 2024, luftvärmepump 2022, luftvärmepump entréplan 2025, asfaltering uppfart 2024.

Tomt/balkong/uteplats

Altan i söderläge.

Parkering

Garage i huskroppen.

Tv/Internetanslutning

Fiber är anslutet till fastigheten.

Allmänt

Län: Västra Götaland
Kommun: Åmål
Område: Centralt
Fastighetsbeteckning: ÅMÅL KVARNBACKEN 10

Planbestämmelser

Åmåls stad, Stadsplan (Beslutsdatum: 1930-09-04, Senast ändrad: 2025-05-14)

Ekonomi

Utgångspris

2 175 000 kr

Driftkostnader

36 113 kr/år
Årlig elförbrukning: 10380 kWh/år
Antal i hushållet: 4

Fördelas enligt följande

El: 7 000 kr
Uppvärmning: 10 000 kr
Vatten och avlopp: 9 000 kr
Försäkring: 6 813 kr
Renhållning: 2 500 kr
Sotning: 800 kr

Utöver ovanstående eventuella driftkostnader tillkommer fastighetsavgift med belopp om 9 900 kr.

Observera att driftskostnaderna som anges ovan baseras på säljarens faktiska kostnader det senaste året om inget annat särskilt anges.
Vilka driftskostnader köparen kommer att ha beror på hur bostaden kommer att användas, vilka abonnemang som kommer att tecknas och övriga omständigheter i det enskilda fallet.

Taxering

Byggnad: 1 127 000 kr
Mark: 193 000 kr
Totalt: 1 320 000 kr
Taxeringsår: 2024
Taxeringsvärdet är: Fastställt
Värdeår: 1973
Standardpoäng: 38
Typkod: 220, Småhusenhet, bebyggd

Pantbrev

Det finns 4 pantbrev uttaget om sammanlagt 1 700 000 kr.

Energideklaration

Status: Energideklaration ej utförd

Försäkring

Svensk Fastighetsförmedling samarbetar med If för att underlätta ditt bostadsköp. När du köper bostad eller fritidshus genom Svensk Fastighetsförmedling är den automatiskt försäkrad. Vi kallar det Flytta in-försäkring. Den är kostnadsfri och gäller under de första 30 dagarna. Fortsätter du sedan att försäkra hemmet eller fritidshuset hos If får du 10% rabatt och flera andra unika förmåner. Fråga din mäklare för att ta del av erbjudandet.

Alla bilder

+ 18 Visa alla 24 bilder
 

Planritning

Karta och område

Nygårdsvägen 24, Åmål

Kalkyl

Vad kostar nya boendet?

Fler värden

Här nedanför kan du ändra ränta, amortering och driftkostnader och se hur de påverkar kalkylen.

Återställ alla värden
Visa fler

Ränta

Amortering

Driftkostnad per månad

Driftkostnad/månad

Observera att driftskostnaderna som anges ovan baseras på säljarens faktiska kostnader det senaste året om inget annat särskilt anges.

Vilka driftskostnader köparen kommer att ha beror på hur bostaden kommer att användas, vilka abonnemang som kommer att tecknas och övriga omständigheter i det enskilda fallet.

Boendekostnad per månad

Ränta
+  kr
Driftkostnad
+  kr
Fastighetsskatt/-avgift
+ 825 kr
Skattereduktion
 kr
Summa
ca  kr
Amortering
+  kr
Inkl amortering
ca  kr

Ansök om lånelöfte

Hos vårt systerbolag Ordna Bolån kan du enkelt ansöka om lånelöfte eller bolån. En ansökan, svar från flera banker.

Visningsanmälan

Fyll i formuläret så kontaktar vi dig inom kort.

Välj mellan nedan alternativ
Tisdag 7 april
Öppen visning

Nygårdsvägen 24, 662 34 Åmål
Öppen visning, välkommen.
Jag vill veta mer om bostaden

Kontaktuppgifter
Vänligen ange förnamn
Vänligen ange efternamn
Vänligen ange telefonnummer
Vänligen ange e-post
500 tecken kvar
Har du lånelöfte?*
Vill du ha hjälp med lånelöfte?
Vill du få nyheter och erbjudanden?

Oj, något gick fel! Försök igen. 

Ett ögonblick!
Tack, dina uppgifter är sparade!
Du fyllde inte i någon e-postadress. Ange den nedan för att inte missa någon information.
 
 
 
Ta del av vår integritetspolicy
 
 
 

Liknande bostäder till salu

Centralt, Åmål
Nygårdsvägen 24
Dela bostad: Dela på Facebook Dela med epost Dela med sms Kopiera länk Länken kopierad

Planritning