Hoppa till innehåll
Alingsås

Hagavägen 12

  • Typ: Villa
  • Rum: 10, varav 6 sovrum
  • Boarea: ca 270 m2
  • Biarea: ca 100 m2
  • Tomtarea: 1 219 m2
  • Byggnadsår: 1950
  • Upplåtelseform: Äganderätt

Välkommen till ett av Alingsås mest förtjusande hem – en pärla som fångar hjärtan med sin oslagbara charm och unika potential. Denna "Carl Larsson-villa", som idag innehåller 2 lägenheter. En lite mindre 3:a i markplan med egen igång från trädgården som bl.a. har nytt kök m.m. samt en större bostad som bl.a innehåller 4 sovrum, 2 badrum nyare påkostat kök vardagsrum och matrum med ryggåstak som skapar rymd och en fantastisk känsla Perfekt för den stora familjen då bostäderna lätt kan göras om till en bostad alternativt att den kan generera en hög hyresinkomst vilket gör detta till ett mycket prisvärt boende, vilket ger dig en flexibilitet som är sällsynt på marknaden. Perfekt även om man vill ha plats för det egna företaget i den separata lägenheten.

Detta ovanligt stora hus välkomnar dig med sina generösa utrymmen och en luftig atmosfär som genomsyrar varje hörn. Inne i bostadsdelen möts du av den stora lägenheten som innehåller 7 rum och kök samt 2 badrum och stor tvättstuga med groventré och den mindre lägenheten som innehåller 3 rok samt badrum. Båda lägenheterna innehåller braskaminer som skapar värme, känsla och mys.
Känn historiens vingslag när du stiger ner i källaren med dess karaktäristiska klinkergolv och mysiga vinkällare – en plats där du kan njuta av tid med nära och kära i en unik atmosfär. Tomtens skattkista inkluderar också ett Attefallshus, vars inredda lägenhet skapar möjligheter till attraktiva hyresintäkter. Ett stort uthus intill de härliga uteplatserna erbjuder smart förvaring och ett extra kök för festligheter och matlagning vid uteplatsen.

Stig ut på den förtjusande uteplatsen och omfamna en värld av avkoppling och njutning. Här kan man följa solen hela dagen och här finns också en härlig utomhusdusch. Här finns gott om plats för bekväm soffgrupp och en inbjudande matplats, perfekt för grillkvällar och trivsamma stunder. Luta dig tillbaka i den skyddade hörnan och låt välbefinnandet omfamna dig, medan den motoriserade markisen över altanen ger skugga och svalka när solen strålar som starkast.

Den omgivande tomten är som en egen trädgårdsdröm med vackra murar, blomstrande planteringar och utsmyckade gjutjärnsgrindar som ramar in denna fina tomt. Flera fruktträd och växter förgyller din vardag med naturlig skönhet och färgprakt.

Läget är mer än perfekt – en kort och fridfull promenad genom Brunnsparken tar dig till Alingsås charmiga stadskärna. Upptäck mysiga caféer, lockande restauranger och småbutiker längs de kullerstensbelagda gatorna. För pendlaren finns även närheten till tågstationen, som öppnar upp för smidiga resor till och från denna idylliska oas. Flera närliggande förskolor, skolor samt ett stenkast från stadens gymnasium, Alströmer gymnasiet

Ge dig själv den chansen att äga detta extraordinära hem, där generösa utrymmen och en oändlig potential smälter samman i en perfekt symfoni av stil, komfort och möjligheter. Ett sådant här unikt och förtjusande hus kommer sällan ut på marknaden – missa inte denna unika möjlighet!

Om Bostaden

Beskrivning

HUVUDBOSTADEN

ENTRÈHALL
Mycket stor och rymlig entré med skjutgarderober. På golvet ligger ett snyggt svart klinkergolv med en kompassros. Rakt fram finns en massiv ektrappa som tar dig upp till andra våning. YALE-Doorman kodlås.

GROVENTRÈ/TVÄTTSTUGA
Till höger om entrén så finns en fin och rymlig tvättstuga. Här ligger det klinker på golvet och väggarna har målad väv. Utrustningen består av tvättmaskin, torktumlare, torkskåp och rostfri bänk. YALE-Doorman kodlås.

WC
Mellan entrén och tvättstugan finns detta wc som också har klinker på golvet. Här finns toalett och tvättställ.

ANDRA VÅNING

ALLUM/MATRUM
När man kommer upp till andra våning så möts man av ett härligt rum med ett välvt tak som går upp i nock. Även det stora fönsterpartiet går upp i nock och ger ett härligt ljusinsläpp, som även kompletteras med en sol- och vindstyrd korgmarkis. På golvet ligger också här parkettgolv. En fin braskamin finns också installerat som ger härlig värme. Från detta utrymme når man även balkongen.

KÖK
I anslutning till allrummet så ligger det fina ljusa köket som kommer från Sentens och installerades 2015. Mot allrummet så finns en köksö med induktionshäll och diskho och vatteninstallation. Bänkskivorna är av sten och sträcker sig runt i köket och ger fina arbetsytor. Utrustningen består av kyl och frys från 2024, induktionshäll, köksfläkt, diskmaskin m.m. Jämte köket finns ett litet förråd/skafferi med vitrindörrar.

SOVRUM 1
Detta rum var tidigare en del av vardagsrum men det finns idag en vägg som är lätt att ta bort om man vill öppna upp igen. Här finns parkett på golvet.

SOVRUM 2
Även detta är ett stort och rejält sovrum med parkett på golvet.

ALLRUM/VARDAGSRUM 2
Jämte badrummet och innan sovrum 3 ligger detta allrum. Parkett på golvet. Ljust och fint med glasräcke ner mot trappan.

SOVRUM 3
Innanför allrummet så ligger detta sovrum som också har parkett på golvet.

BADRUM 1
Helkaklat ljust badrum med golvvärme. Här finns dusckhörna, toalett, tvättfat med kommod samt badrumsskåp.

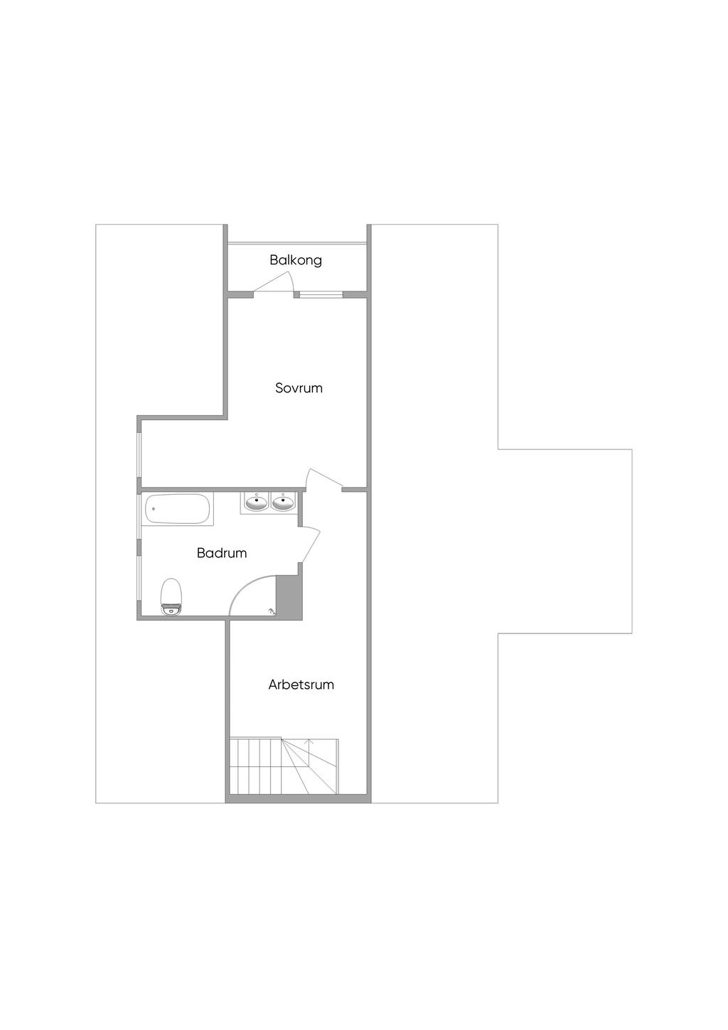
TREDJE VÅNING

ALLRUM 3/ARBETSRUM
Ektrappan från våning 2 leder dig upp till detta rum som kan användas som ett litet allrum alternativt ett kontor. På båda sidorna finns här ett förrådsutrymme. I förläggningen bort mot sovrummet är ett passage som har fönsterglas ner mot allrummet.

BADRUM 2
Helkaklat stort badrum med svart klinker på golvet och vitt kakel på väggarna. Här finns golvvärme, handduksvärmare, tvättställ med kommod, badrumsskåp, duschhörna, toalett, badkar m.m.

SOVRUM 4
Masterbedroom med parkett och utgång till balkongen där man kan avnjuta frukosten i morgonsolen. Här finns också skjutdörrar in mot en garderob. Här finns också en luft/luft-pump som kan ge både värme och härlig svalka.

BOSTAD 2

ENTRÈ/HALL
Entré från gaveln på huset. Ligger ut mot uteplatser och uthus. Här ligger också ett svart klinkergolv. YALE-Doorman kodlås.

KÖK
Härfinns ett nytt kök från 2025 som är fullutrustat med bl.a. Induktionshäll, inbyggnadsugn, diskmaskin, kombinerat kyl och frys. Köksluckorna är vita och släta. På väggen är det vitt kakel ända upp till tak vid diskbänken.

VARDAGSRUM
Vardagsrummet ligger mellan kök och hall. Här finns det en braskamin som ger härlig värme. På golvet finns det ett parkettgolv.

SOVRUM 1
Detta sovrum ligger rakt fram från vardagsrummet som också har parkett på golvet. Här finns också en klädkammare.

SOVRUM 2
Detta sovrum ligger jämte sovrum 1 och har också parkett på golvet,

BADRUM
Halkaklat ljust badrum med bl.a. golvvärme. Utrustningen består av tvättställ med kommod, badrumsskåp, duschhörna och toalett

KÄLLARPLANET
Här kommer man ner i den gamla delen där det finns ett stor entré/rum med stengrund. Här finns bl.a. tvättmaskin som används av hyresgästen.

VINKÄLLARE
I den gamla delen finns den här vinkällaren där man kan avnjuta en mysig vinprovning.

ARBETSRUM/FÖRRÅD
Den fina källaren ger plats åt stora möjligheter med förråd och arbetsytor. En verkligt stor plats för förvaring. Hela källaren har klinkergolv utom vinkällaren.

Sammanfattning

Typ: Villa
Rum: 10, varav 6 sovrum
Boarea: ca 270 m2
Biarea: ca 100 m2
Tomtarea: 1 219 m2
Utgångspris: 8 500 000 kr
Byggnadsår: 1950
Upplåtelseform: Äganderätt

Kommentar till boarean

Boareauppgift enligt: Säljaren
Säljaren har mätt upp ytan.

Uppvärmning

Fjärrvärme

Byggnadssätt

Vatten: Kommunalt vatten
Avlopp: Kommunalt avlopp
Grund: Betong
Stomme: Trä
Bjälklag: Trä
Fasad: Träfasad
Fönster: 3-glasfönster med aluminiumprofil
Grundmur: Betong
Takbeklädnad: Betongpannor
Markbeskaffning: Morän
Utvändiga plåtarbeten: Galvaniserad målad plåt
Ventilation: Självdrag
Jordat/ojordat: Jordat
Elkablar: Ledningar bytta
Huvudsäkring: 16 A
Murstock: Murad skorsten
Kommentar: Den äldre delen uppfördes på 50-talet. Dock gjordes en total om och tillbyggnad 2007-08. Det innebär att nästan allt på huset gjordes nytt då. Efter det så har en del saker byggts om och gjorts nya igen.

Renoveringar

Om-/tillbyggnadsår: 2008
Totalt om och tillbyggt 2007-08. Sedan har byggnaden löpande renoverats med bl.a. 2 nya kök.

Tomt/balkong/uteplats

Runt uthuset som innehåller förråd och en köksdel så löper en stor uteplats där man bl.a. har plats för stor matmöbel samt stor loungegrupp. Här finns också en stor "cafémarkis som är motordriven. En verklig oas längst in på tomten med soligt läge. Här finns också en härlig utedusch.
Stor plan tomt som omgärdas av en vacker mur med plantering. Gjutjärnsgrindar vid entré och en vid bilinfarten som sköts med fjärrkontroll. På tomten finns flera fruktträd samt många andra fina växter. På den fina tomte finns också en ståtlig flaggstång.

Övriga byggnader

"Attefallshus" som är inredd som en lägenhet. Innehåller rum, kök, badrum samt klädkammare. Hyresintäkt 48000:-/år.
Jämte "Attefallshuset" finns ett nybyggt cykelförråd.

Parkering

Stor uppfart med plats för många bilar.

Tv/Internetanslutning

Fiber finns indraget och ett s.k. stjärnät finns utdraget i huset

Allmänt

Län: Västra Götaland
Kommun: Alingsås
Fastighetsbeteckning: ALINGSÅS NOLBY 38:18

Planbestämmelser

Bostäder vid hallbovägen 13-14, Detaljplan (Beslutsdatum: 2006-10-10, Registreringsdatum: 2006-12-07, Senast ändrad: 2015-11-20)
För alingsås,bostäder vid hallbovägen 13-14, Ändring av detaljplan (Beslutsdatum: 2014-08-25, Registreringsdatum: 2015-11-20)

Ekonomi

Utgångspris

8 500 000 kr

Utöver ovanstående eventuella driftkostnader tillkommer fastighetsavgift med belopp om 9 525 kr.

Taxering

Byggnad: 6 200 000 kr
Mark: 1 566 000 kr
Totalt: 7 766 000 kr
Taxeringsår: 2024
Taxeringsvärdet är: Fastställt
Värdeår: 1985
Standardpoäng: 51
Typkod: 220, Småhusenhet, bebyggd

Pantbrev

Det finns 11 pantbrev uttaget om sammanlagt 5 768 000 kr.

Försäkring

Svensk Fastighetsförmedling samarbetar med If för att underlätta ditt bostadsköp. När du köper bostad eller fritidshus genom Svensk Fastighetsförmedling är den automatiskt försäkrad. Vi kallar det Flytta in-försäkring. Den är kostnadsfri och gäller under de första 30 dagarna. Fortsätter du sedan att försäkra hemmet eller fritidshuset hos If får du 10% rabatt och flera andra unika förmåner. Fråga din mäklare för att ta del av erbjudandet.

Alla bilder

+ 43 Visa alla 49 bilder
 

Karta och område

Hagavägen 12, Alingsås

Kalkyl

Vad kostar nya boendet?

Fler värden

Här nedanför kan du ändra ränta, amortering och driftkostnader och se hur de påverkar kalkylen.

Återställ alla värden
Visa fler

Ränta

Amortering

Driftkostnad per månad

Driftkostnad/månad

Observera att driftskostnaderna som anges ovan baseras på säljarens faktiska kostnader det senaste året om inget annat särskilt anges.

Vilka driftskostnader köparen kommer att ha beror på hur bostaden kommer att användas, vilka abonnemang som kommer att tecknas och övriga omständigheter i det enskilda fallet.

Boendekostnad per månad

Ränta
+  kr
Driftkostnad
+  kr
Fastighetsskatt/-avgift
+ 794 kr
Skattereduktion
 kr
Summa
ca  kr
Amortering
+  kr
Inkl amortering
ca  kr

Ansök om lånelöfte

Hos vårt systerbolag Ordna Bolån kan du enkelt ansöka om lånelöfte eller bolån. En ansökan, svar från flera banker.

Visningsanmälan

Fyll i formuläret så kontaktar vi dig inom kort.

Välj mellan nedan alternativ
Söndag 12 april
Anmälan krävs

Hagavägen 12, 441 34 Alingsås
Jag vill veta mer om bostaden

Kontaktuppgifter
Vänligen ange förnamn
Vänligen ange efternamn
Vänligen ange telefonnummer
Vänligen ange e-post
500 tecken kvar
Har du lånelöfte?*
Vill du ha hjälp med lånelöfte?
Vill du få nyheter och erbjudanden?

Oj, något gick fel! Försök igen. 

Ett ögonblick!
Tack, dina uppgifter är sparade!
Du fyllde inte i någon e-postadress. Ange den nedan för att inte missa någon information.
 
 
 
Ta del av vår integritetspolicy
 
 
 

Liknande bostäder till salu

Alingsås
Hagavägen 12
Dela bostad: Dela på Facebook Dela med epost Dela med sms Kopiera länk Länken kopierad

Planritning