Hoppa till innehåll
Ursviken

Brödrahemsgatan 4

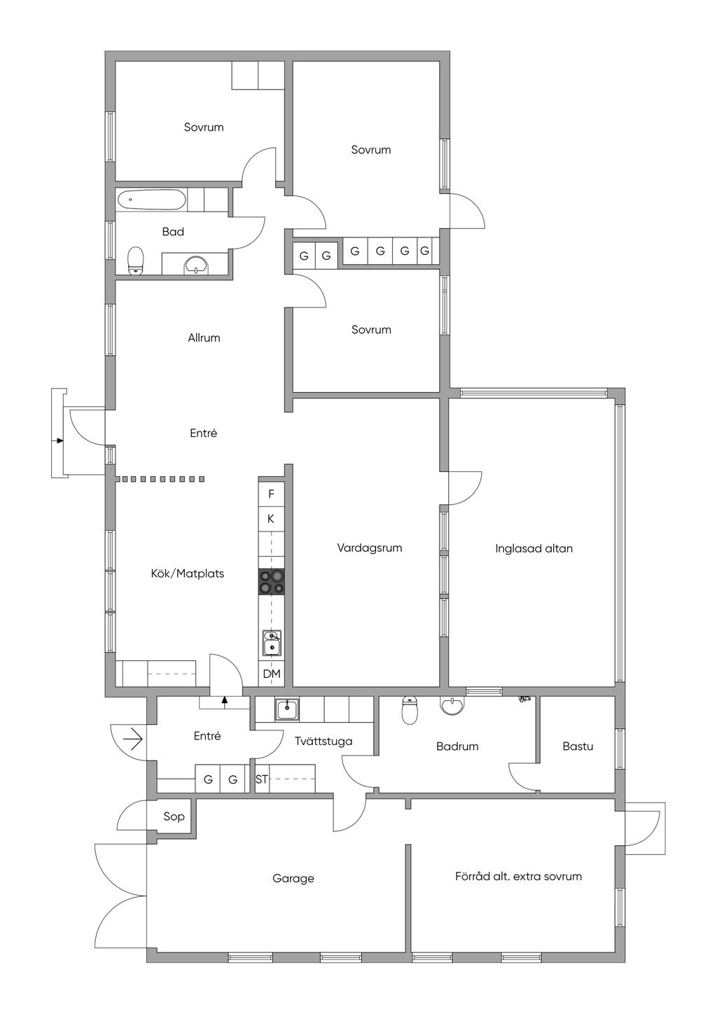
Fin och lättskött enplansvilla med mexitegel

  • Typ: Villa, 1-plan
  • Rum: 5, varav 4 sovrum
  • Boarea: 112 m2
  • Biarea: 65 m2
  • Tomtarea: 962 m2
  • Byggnadsår: 1976
  • Driftkostnad: 39 044 kr/år
  • Upplåtelseform: Äganderätt

Välkommen till Brödrahemsgatan 4 – Ett hem att trivas i, året runt!

På en lugn och barnvänlig gata finns denna trivsamma enplansvilla – perfekt för dig som söker ett välskött och bekvämt boende. Här bor du i ett tryggt område med närhet till både natur, skolor och vardagens service, samtidigt som huset erbjuder fina sällskapsytor och smarta lösningar.

Huset har en klassisk och omtyckt exteriör i mexitegel, vilket ger ett både stilfullt och lättskött yttre. Totalt erbjuds tre sovrum, allrum, vardagsrum, stort kök med matplats samt inglasad altan. Utöver det finns en ekonomidel med badrum, bastu, ordentlig tvättstuga samt garage med två förråd varav det ena med fördel skulle kunna nyttjas som gästrum eller varför inte ett extra sovrum för tonåringen? Den praktiska planlösningen i huset bjuder på generösa ytor för både umgänge och privatliv. Du får dessutom ett praktiskt varmgarage som ger både parkeringsmöjlighet och förvaring. Energieffektivt och bekvämt med luftvärmepump

Den rymliga inglasade altanen förlänger sommaren med flera månader och erbjuder en härlig plats för middagar, skyddat från vind och väder. Till huset hör dessutom en fin och lättskött trädgård med bra solläge. Perfekt för familjen, paret eller dig som bara vill bo lugnt och skönt med bra utrymmen både inne och ute.

Ursviken är ett lugnt och familjevänligt bostadsområde med närhet till skogen som möjliggör för trevliga utflykter både vinter och sommartid. Här finns elljusspår, lekplatser, skolor, förskolor, vårdcentral, apotek, busshållplats, återvinning och kyrka i absoluta närområdet. En kort promenad från huset finns Ursviken centrum med utbud av livsmedelsbutik, sporthall, pizzeria, gym och frisör m.m. Dessutom bor man med närhet till Skellefteå älv och vyn över Ursviksfjärden är magisk. På Öhn i Ursviken finns möjlighet till kanotpaddling via Skellefteå kanotklubb. Här finns också båthamn, utegym, fina grönområden och vackra promenadstråk längs älvskanten.

Från Ursviken är det ca 10min bilresa till centrala Skellefteå och hela dess stora utbud av restauranger, caféer, shopping, kulturhus, sjukhus m.m. Goda kommunikationer med buss.

Flexibelt tillträde enligt överenskommelse!

Välkommen att anmäla dig på visning!

Om Bostaden

Beskrivning

TVÄTTSTUGA med våtrumsmatta. Tvättmaskin, rostfri ho och bänkskiva i laminat.

BASTU med dusch och toalett, tvättställ i anslutning

BADRUM med våtrumsmatta/tapet. Toalett, tvättställ och badkar

KÖK med laminatgolv och tapet. Allmogeluckor, stänkskydd i laminat, kyl, frys, diskmaskin, spis och fläkt. Plats för sittgrupp.

VARDAGSRUM med ekgolv och tapet. Utgång till inglasad altan

SOVRUM 1 med plastmatta och tapet. Garderober.
SOVRUM 2 med plastmatta och tapet
SOVRUM 3 med plastmatta och tapet
SOVRUM 4 (vid garage) med plastmatta och tapet. Garderober

Sammanfattning

Typ: Villa, 1-plan
Rum: 5, varav 4 sovrum
Boarea: 112 m2
Biarea: 65 m2
Tomtarea: 962 m2
Utgångspris: 1 995 000 kr
Byggnadsår: 1976
Driftkostnad: 39 044 kr/år
Upplåtelseform: Äganderätt

Kommentar till boarean

Boareauppgift enligt: Lantmäteriet

Uppvärmning

Direktverkande el/luftvärmepump

Byggnadssätt

Vatten: Kommunalt vatten året om
Avlopp: Kommunalt avlopp
Grund: Platta på mark
Stomme: Trä
Fasad: Mexisten/trä
Fönster: 3-glasfönster
Takbeklädnad: Taktegel
Ventilation: Självdrag
Huvudsäkring: 20 A

Allmänt

Län: Västerbotten
Kommun: Skellefteå
Fastighetsbeteckning: SKELLEFTEÅ TRIVSELN 12

Omgivning

Ursviken är uppdelat i flera mindre områden, nämligen Furunäs, Klemensnäs, Inre Ursviken, Yttre Ursviken, Öhn och Alderholmen. I Ursviken finns en rad olika bekvämligheter, inklusive matvaruaffär, pizzeria, gym, frisörsalong, kyrka, bensinmack, förskolor och skolor som täcker F-9. Hälsocentral, tandläkare och apotek finns nu också tillgängliga i området. Ishockeyföreningen i Ursviken har en egen ishall, och det finns även en fotbollsförening med fotbollsplaner.

Ursviken är känt som ett familjevänligt område, präglat av en blandning av villor och kvarter. För dem som önskar en mer kompakt boendeform finns det också lägenheter tillgängliga. En gång man bosatt sig i Ursviken, är det vanligt att man väljer att stanna kvar – områdets attraktioner och atmosfär spelar en stor roll i detta.

Ursviken har en förmånlig plats nära Skellefteå älv, och utsikten över Ursviksfjärden är verkligen förtrollande. Öhn i Ursviken erbjuder möjligheter till kanotpaddling genom Skellefteå kanotklubb. Båthamn, utegym, vackra grönområden och pittoreska promenadstråk längs älven finns också på Öhn.

För de aktiva finns elljusspår och skoterspår i Ursviken. Genom en cykeltur kan man nå Harrbäckssand och havet, ett stugområde som inkluderar en badplats och en vacker naturmiljö. En kort cykeltur tar dig också till Gocart-banan, där du kan utmana familj och vänner på en rolig tävling.

Att resa till Skellefteå centrum är snabbt och enkelt, oavsett om du väljer att använda kollektivtrafiken eller bil. Ursviken erbjuder det mesta du kan behöva och lite till – en plats som verkligen har allt att erbjuda.

Planbestämmelser

Sydvästen,sandgärdan mm, Stadsplan (Beslutsdatum: 1973-12-14)

Övriga rättigheter och belastningar

Rättigheter last: Avtalsservitut: LEDNING MM - SE BESKRIVNING
Officialservitut: LEDNING
Avtalsrättigheter: Avtalsservitut LEDNING MM

Övrigt

Budgivning: Vi tillämpar s.k. öppen budgivning. Detta innebär att alla kan få information om vilka bud som inkommit. Säljarna har fri prövningsrätt. Detta innebär att säljaren avgör när, hur, till vem samt för vilket pris säljaren säljer. Samtliga som deltar i budgivningen accepterar att fastighetsmäklaren lämnar ut budgivarnas namn och telefonnummer samt information om de bud som inkommit till den som köper bostaden.

I det fall det kommer in bud till mäklaren efter att budgivningen är avslutad, men innan överlåtelseavtal är signerade, är mäklaren skyldig att framföra budet till säljaren som får avgöra om denne vill avfärda eller anta budet.

Uppgifterna i objektbeskrivningen härrör huvudsakligen från säljaren och kontrolleras av fastighetsmäklaren endast om omständigheterna ger anledning till detta.

Ekonomi

Utgångspris

1 995 000 kr

Driftkostnader

39 044 kr/år

Fördelas enligt följande

El: 27 340 kr
Vatten och avlopp: 7 167 kr
Renhållning: 4 537 kr
Beskrivning: Kostnaden för uppvärmningen är beräknad på säljarens avtal från elleverantör för 2025. I kostnaden för uppvärmningen är även hushållselen inräknad.
2025 förbrukades 19 081 kWh.
____ personer bor i hushållet idag.

De nuvarande ägarna förbrukar ca 67 kubikmeter vatten/år och renhållningskostnaden är baserat på en grundavgift samt tömning av Fyrfackskärl 2 och/eller Fyrfackskärl 4.

Utöver ovanstående eventuella driftkostnader tillkommer fastighetsavgift med belopp om 10 425 kr.

Observera att driftskostnaderna som anges ovan baseras på säljarens faktiska kostnader det senaste året om inget annat särskilt anges.
Vilka driftskostnader köparen kommer att ha beror på hur bostaden kommer att användas, vilka abonnemang som kommer att tecknas och övriga omständigheter i det enskilda fallet.

Taxering

Byggnad: 1 338 000 kr
Mark: 437 000 kr
Totalt: 1 775 000 kr
Taxeringsår: 2024
Taxeringsvärdet är: Fastställt
Värdeår: 1976
Standardpoäng: 30
Typkod: 220, Småhusenhet, bebyggd

Pantbrev

Det finns 11 pantbrev uttaget om sammanlagt 1 668 750 kr.

Energideklaration

Status: Energideklaration är utförd
Energiprestanda: 100 kWh/kvm/år
Energiklass: DD
Energideklaration utförd: 2015-07-03

Försäkring

Svensk Fastighetsförmedling samarbetar med If för att underlätta ditt bostadsköp. När du köper bostad eller fritidshus genom Svensk Fastighetsförmedling är den automatiskt försäkrad. Vi kallar det Flytta in-försäkring. Den är kostnadsfri och gäller under de första 30 dagarna. Fortsätter du sedan att försäkra hemmet eller fritidshuset hos If får du 10% rabatt och flera andra unika förmåner. Fråga din mäklare för att ta del av erbjudandet.
Trygg affär - Varudeklarerad Villa

Alla bilder

+ 23 Visa alla 29 bilder
 

Planritning

Karta och område

Brödrahemsgatan 4, Ursviken

Kalkyl

Vad kostar nya boendet?

Fler värden

Här nedanför kan du ändra ränta, amortering och driftkostnader och se hur de påverkar kalkylen.

Återställ alla värden
Visa fler

Ränta

Amortering

Driftkostnad per månad

Driftkostnad/månad

Observera att driftskostnaderna som anges ovan baseras på säljarens faktiska kostnader det senaste året om inget annat särskilt anges.

Vilka driftskostnader köparen kommer att ha beror på hur bostaden kommer att användas, vilka abonnemang som kommer att tecknas och övriga omständigheter i det enskilda fallet.

Boendekostnad per månad

Ränta
+  kr
Driftkostnad
+  kr
Fastighetsskatt/-avgift
+ 869 kr
Skattereduktion
 kr
Summa
ca  kr
Amortering
+  kr
Inkl amortering
ca  kr

Ansök om lånelöfte

Hos vårt systerbolag Ordna Bolån kan du enkelt ansöka om lånelöfte eller bolån. En ansökan, svar från flera banker.

Intresseformulär

Fyll i formuläret så kontaktar vi dig inom kort.

Kontaktuppgifter
Vänligen ange förnamn
Vänligen ange efternamn
Vänligen ange telefonnummer
Vänligen ange e-post
500 tecken kvar
Har du lånelöfte?*
Vill du ha hjälp med lånelöfte?
Vill du få nyheter och erbjudanden?

Oj, något gick fel! Försök igen. 

Ett ögonblick!
Tack, dina uppgifter är sparade!
Du fyllde inte i någon e-postadress. Ange den nedan för att inte missa någon information.
 
 
 
Ta del av vår integritetspolicy
 
 
 

Liknande bostäder till salu

Skellefteå
Brödrahemsgatan 4
Dela bostad: Dela på Facebook Dela med epost Dela med sms Kopiera länk Länken kopierad

Planritning