Hoppa till innehåll
Skellefteå

Morgongränd 6

Enplanshus med två renoverade badrum och naturnära läge

  • Typ: Villa, 1 plan
  • Rum: 4, varav 3 sovrum
  • Boarea: 101 m2
  • Tomtarea: 765 m2
  • Byggnadsår: 1988
  • Driftkostnad: 51 228 kr/år
  • Upplåtelseform: Äganderätt

Trivsamt och välplanerat enplanshus om 101 kvm med ett lugnt och fint läge. Bostaden erbjuder fyra rum och kök, varav tre sovrum – perfekt för familjen som söker ett bekvämt boende på ett plan.

Huset har under senare år genomgått flera renoveringar med bland annat uppdaterade badrum och fräscha ytskikt. Planlösningen har även förbättrats genom att ett separat förvaringsutrymme skapats, vilket ger extra praktiska förvaringsmöjligheter.

Vardagslivet förlängs under stora delar av året tack vare den inglasade altanen i soligt västerläge – en perfekt plats att koppla av på under eftermiddagar och kvällar.

Tomten om 765 kvm erbjuder en trivsam bakgård med gräsmatta, grillplats och ett fint läge mot grönområde, vilket skapar en lugn och privat känsla.

Badrummet är smakfullt inrett med kakel och klinker samt utrustat med både dusch och badkar. Under 2025 uppgraderades även Legalett-systemet med nya värmeelement, ny fläkt samt moderniserad styrning.

Till fastigheten hör dessutom ett kallgarage med plats för en bil.

Ett trivsamt och lättskött hem med bra planlösning och fint läge – varmt välkommen att boka din visning!

Om Bostaden

Beskrivning

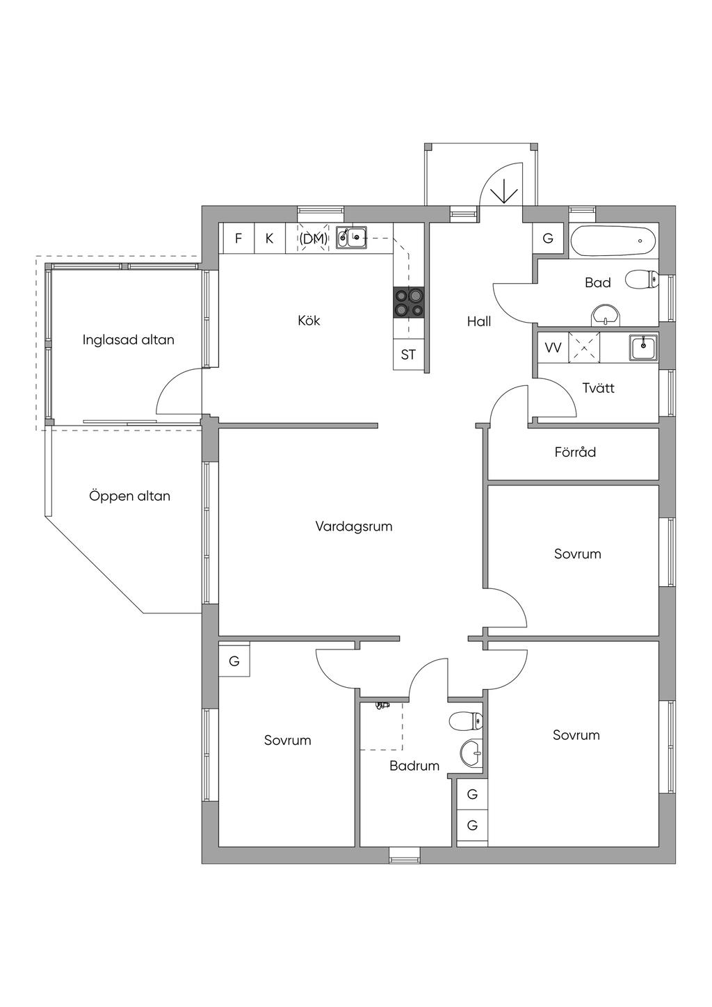
HALL med klinkergolv med extra el-golvvärmeslinga. 1 garderob. Hatthylla.

KÖK med laminatgolv. Vita spårfrästa köksluckor. Fullstor kyl och frys. Diskmaskin. Fläkt samt spis med induktionshäll och varmluftsugn. Utgång till inglasad altan.

VARDAGSRUM med parkettgolv.

SOVRUM med parkettgolv. 1 garderob.

BADRUM med toalett, tvättställ och dusch. Klinkergolv med extra el-golvvärmeslinga och klinker på väggar. Skåp för förvaring. Infällda spotlights i tak.

SOVRUM med laminatgolv, inbyggd dubbelgarderob och skjutdörrsgarderob. Liggande träpanel på en vägg, övriga målade.

SOVRUM med laminatgolv (garderobsmöbel ingår ej)

FÖRRÅD/KLÄDKAMMARE med laminatgolv. 4 garderober med skjutdörrar.

TVÄTTSTUGA med tvättmaskin och torktumlare. Tvättho och skåpar. Plastmatta på golv och målad väv på vägg

BADRUM med toalett, tvättställ och badkar. Klinkergolv med extra el-golvvärmeslinga och helkaklade väggar. Infällda spotlights i tak.

Sammanfattning

Typ: Villa, 1 plan
Rum: 4, varav 3 sovrum
Boarea: 101 m2
Tomtarea: 765 m2
Utgångspris: 2 750 000 kr
Byggnadsår: 1988
Driftkostnad: 51 228 kr/år
Upplåtelseform: Äganderätt

Kommentar till boarean

Boareauppgift enligt: Lantmäteriet

Uppvärmning

El - luftburen golvvärme via Legalettsystem

Byggnadssätt

Vatten: Kommunalt vatten året om
Avlopp: Kommunalt avlopp
Grund: Betong
Stomme: Trä
Fasad: Tegelstensfasad och träfasad
Fönster: 3-glasfönster
Takbeklädnad: Betongpannor
Ventilation: Mekanisk till- och frånluft
Huvudsäkring: 20 A

Renoveringar

2010 - Breddade båda öppningarna till vardagsrum för en öppnare känsla i huset.

2011 - Ny kyl, frys och diskmaskin. Renoverat kök. Bytt panel på garage.

2012 - Kompletterat inglasning med dörr. Nytt golv i hall med golvvärme

2013 - Ny torktumlare.

2014 - Renovering toalett. Jordfelsbrytare installerad.

2016 - Ventilationshuv bytt till en högre för att skydda mot snö. Nya golv i lilla hallen samt stora sovrummet.

2018 - Ändrat i planlösning, skapat separat förvaringsutrymme. Nytt fönster i ett av sovrummen.

2021 - Ny tvättmaskin.

2022 - Renovering av badrum närmast entrén.

2023 - Ny spis.

2024 - Ny entrébro.

2025 - Värmeelement och fläkt bytt samt uppgraderad styrning till Legalett systemet.

Tomt/balkong/uteplats

Inglasad altan i västerläge.
Öppen altan i västerläge.

Övriga byggnader

Lekstuga

Parkering

Kallgarage med plats för en bil

Tv/Internetanslutning

Fiber via Skellefteå Krafts portal.

Allmänt

Län: Västerbotten
Kommun: Skellefteå
Fastighetsbeteckning: SKELLEFTEÅ JUNIBACKEN 67

Omgivning

Morö Backe är en lockande plats som återfinns i den nordöstra delen av Skellefteå, inom ett område som är särskilt inriktat på att vara barnvänligt och trivsamt, med en bekväm avstånd omkring 5 km från stadens centrum.

Moröbacke skola välkomnar elever från förskoleklass till årskurs 9, vilket möjliggör en kontinuerlig skolgång inom samma område. För de yngre barnen finns också flera förskolor i närheten, som erbjuder en trygg miljö för deras utveckling.

Bostadsområdet i Morö Backe har förmånen att omges av pittoreska skogsområden, lekfulla parker, promenadstråk och ett uppfriskande elljusspår. För hästentusiasten finns ett välskött stall som drivs av Skellefteå ridklubb, vilket erbjuder möjligheten att utforska denna passion.

Invånarna i Morö Backe kan dra nytta av en bekväm tillvaro med närliggande pizzerior, en thairestaurang och en hälsocentral som främjar välbefinnande. För dem som vill komma runt i området finns det även bra bussförbindelser som underlättar dagliga resor.

Solbacken handelsområde är en annan fördel som Morö Backe erbjuder, med bekvämt avstånd till butiker som apotek, klädaffärer, sportbutiker och en ICA-Maxi för de dagliga behoven.

Sammanfattningsvis är Morö Backe en lockande plats som kombinerar närheten till skola, fritidsaktiviteter och kommersiella bekvämligheter. Området är anpassat för både familjer och andra som söker en bekväm och livlig livsstil i Skellefteå.

Planbestämmelser

Omr vid svedjevägen och ridhusområdet, Stadsplan (Beslutsdatum: 1984-01-10, Senast ändrad: 2009-02-25)

Övriga rättigheter och belastningar

Gemensamhetsanläggning: SKELLEFTEÅ JUNIBACKEN GA:1 - VÄGAR,KVARTERSGÅRD,LADA,GRÖNOMRÅDE,LEKPARK,BOLLPLAN,ANORDNINGAR FÖR GATUBELYSNING(STOLPAR,LEDNINGAR,ARMATUR M M),VATTEN-OCH AVLOPPSLEDNINGAR FRAM TILL HUSLIV,TV-KABELNÄT(ANTENNSKÅP,KABLAR MM)FRAM TILL HUSLIV

Övrigt

Budgivning: Vi tillämpar s.k. öppen budgivning. Detta innebär att alla kan få information om vilka bud som inkommit. Säljarna har fri prövningsrätt. Detta innebär att säljaren avgör när, hur, till vem samt för vilket pris säljaren säljer. Samtliga som deltar i budgivningen accepterar att fastighetsmäklaren lämnar ut budgivarnas namn och telefonnummer samt information om de bud som inkommit till den som köper bostaden.

I det fall det kommer in bud till mäklaren efter att budgivningen är avslutad, men innan överlåtelseavtal är signerade, är mäklaren skyldig att framföra budet till säljaren som får avgöra om denne vill avfärda eller anta budet.

Uppgifterna i objektbeskrivningen härrör huvudsakligen från säljaren och kontrolleras av fastighetsmäklaren endast om omständigheterna ger anledning till detta.

Ekonomi

Utgångspris

2 750 000 kr

Driftkostnader

51 228 kr/år
Årlig elförbrukning: 19442 kWh/år
Antal i hushållet: 4

Fördelas enligt följande

El: 25 020 kr
Vatten och avlopp: 9 599 kr
Försäkring: 6 672 kr
Renhållning: 4 537 kr
Samfällighet: 5 400 kr
Beskrivning: Kostnaden för uppvärmningen är beräknad på säljarens avtal från elleverantör. I kostnaden för el ingår även uppvärmningen. 4 personer bor i hushållet idag.

De nuvarande ägarna förbrukar ca 123 kubikmeter vatten/år och renhållningskostnaden är baserat på en grundavgift samt tömning av Fyrfackskärl 2 och/eller Fyrfackskärl 4.

Utöver ovanstående eventuella driftkostnader tillkommer fastighetsavgift med belopp om 10 425 kr.

Observera att driftskostnaderna som anges ovan baseras på säljarens faktiska kostnader det senaste året om inget annat särskilt anges.
Vilka driftskostnader köparen kommer att ha beror på hur bostaden kommer att användas, vilka abonnemang som kommer att tecknas och övriga omständigheter i det enskilda fallet.

Taxering

Byggnad: 1 585 000 kr
Mark: 767 000 kr
Totalt: 2 352 000 kr
Taxeringsår: 2024
Taxeringsvärdet är: Fastställt
Värdeår: 1988
Standardpoäng: 33
Typkod: 220, Småhusenhet, bebyggd

Pantbrev

Det finns 2 pantbrev uttaget om sammanlagt 800 000 kr.

Energideklaration

Status: Energideklaration är utförd
Energiprestanda: 135 kWh/kvm/år
Energiklass: EE
Specifik energianvändning: 94 kWh/kvm/år
Energideklaration utförd: 2026-02-19
Besiktningsman: Anticimex

Försäkring

Svensk Fastighetsförmedling samarbetar med If för att underlätta ditt bostadsköp. När du köper bostad eller fritidshus genom Svensk Fastighetsförmedling är den automatiskt försäkrad. Vi kallar det Flytta in-försäkring. Den är kostnadsfri och gäller under de första 30 dagarna. Fortsätter du sedan att försäkra hemmet eller fritidshuset hos If får du 10% rabatt och flera andra unika förmåner. Fråga din mäklare för att ta del av erbjudandet.
Trygg affär - Varudeklarerad Villa

Alla bilder

+ 39 Visa alla 45 bilder
 

Planritning

Karta och område

Morgongränd 6, Skellefteå

Kalkyl

Vad kostar nya boendet?

Fler värden

Här nedanför kan du ändra ränta, amortering och driftkostnader och se hur de påverkar kalkylen.

Återställ alla värden
Visa fler

Ränta

Amortering

Driftkostnad per månad

Driftkostnad/månad

Observera att driftskostnaderna som anges ovan baseras på säljarens faktiska kostnader det senaste året om inget annat särskilt anges.

Vilka driftskostnader köparen kommer att ha beror på hur bostaden kommer att användas, vilka abonnemang som kommer att tecknas och övriga omständigheter i det enskilda fallet.

Boendekostnad per månad

Ränta
+  kr
Driftkostnad
+  kr
Fastighetsskatt/-avgift
+ 869 kr
Skattereduktion
 kr
Summa
ca  kr
Amortering
+  kr
Inkl amortering
ca  kr

Ansök om lånelöfte

Hos vårt systerbolag Ordna Bolån kan du enkelt ansöka om lånelöfte eller bolån. En ansökan, svar från flera banker.

Intresseformulär

Fyll i formuläret så kontaktar vi dig inom kort.

Kontaktuppgifter
Vänligen ange förnamn
Vänligen ange efternamn
Vänligen ange telefonnummer
Vänligen ange e-post
500 tecken kvar
Har du lånelöfte?*
Vill du ha hjälp med lånelöfte?
Vill du få nyheter och erbjudanden?

Oj, något gick fel! Försök igen. 

Ett ögonblick!
Tack, dina uppgifter är sparade!
Du fyllde inte i någon e-postadress. Ange den nedan för att inte missa någon information.
 
 
 
Ta del av vår integritetspolicy
 
 
 

Liknande bostäder till salu

Skellefteå
Morgongränd 6
Dela bostad: Dela på Facebook Dela med epost Dela med sms Kopiera länk Länken kopierad

Planritning