Hoppa till innehåll
Skellefteå

Kartgatan 16

Renoverad enplansvilla på hörntomt nära älven!

  • Typ: Villa, 1-plansvilla
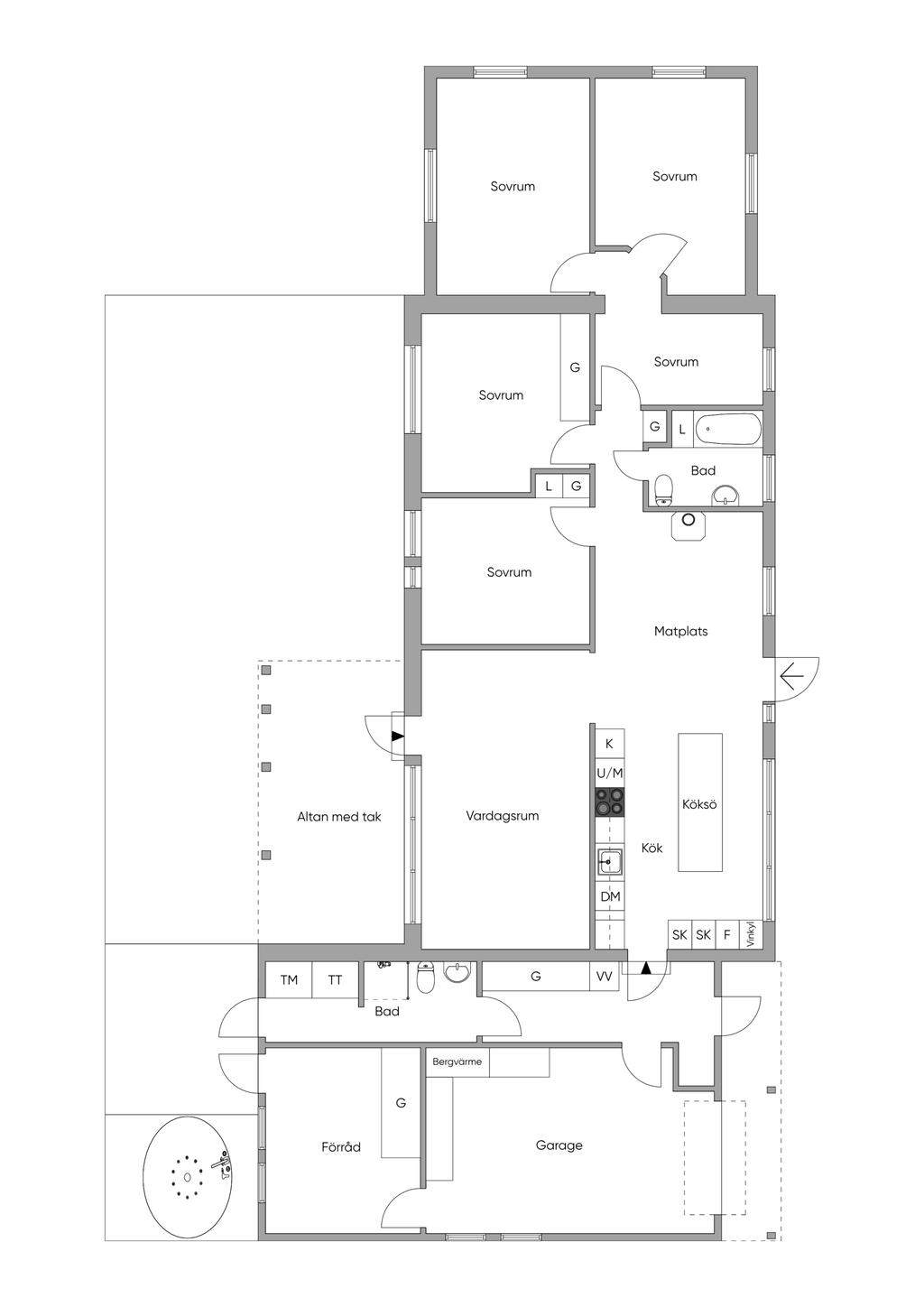
  • Rum: 6, varav 4-5 sovrum
  • Boarea: 132 m2
  • Biarea: 57 m2
  • Tomtarea: 1 294 m2
  • Byggnadsår: 1974
  • Driftkostnad: 31 171 kr/år
  • Upplåtelseform: Äganderätt

Mycket fin och renoverad enplansvilla med avskilt hörnläge i ett lugnt och familjärt område i Stackgrönnan. Uppvuxen, grönskande och älvsnära trädgårdstomt med rymlig altan och badtunna i bästa västerläge. På andra sidan häcken finns Stackgrönnans lekpark, perfekt för att kunna ha uppsikt på barnen medan du sitter i solstolen på din altan. På knappt en minuts promenad når man en allmänning som ger möjlighet till bad i älven.

Huset har senaste åren genomgått många värdefulla och genomtänkta renoveringar, bland annat har huset byggts ut med 29 kvadrat för att skapa ytterligare två sovrum, köket har totalrenoverats och fasaden har målats. Ny bergvärmepump, ny luftvärmepump och en ny braskamin har installerats och detta är bara några av sakerna som gjorts i huset. Här finns det gott om plats för hela familjen med bra fördelad planlösning, många sovrum samt öppna och trevliga sällskapsytor. I den renoverade ekonomidelen finns en hall med förvaring, badrum med tvättmöjligheter samt utgång till altanen som ger smidig access till badtunnan. Låga driftskostnader tack vare vattenburen bergvärme, kamin och luftvärmepump. Vidbyggt varmgarage med elport och bra förvaringsmöjligheter.

Till huset hör en lättskött, fin trädgård med en altan i sydvästläge samt en stor gräsmatta för utelek. Under sommarhalvåret får man ett naturligt insynsskydd av den omgivande häcken. På gården finns gott om bärbuskar och i ena hörnet av tomten finns en stor altan i söderläge med odlingslådor. Utöver detta finns också en förrådsbyggnad samt ett växthus med möjlighet att koppla in både vatten och el. Sommarvatten från älven finns att nyttja för bevattning i trädgården.

Stackgrönnan är en familjär by belägen på södra sidan av Skellefteälven, ca 1 mil öster om Skellefteå. Området är naturnära, lugnt och fint. Här finns vackra promenadstråk båge längs älven och i skog och mark med elljusspår. I Stackgrönnan finns både skola och förskola och här går även barnen från Nyhamn. När barnen blir lite äldre går skolbussen vidare förbi Örviken till Skelleftehamn. Under sommartid håller Café Kajutan öppet som är ett välbesökt båtmuseum och ett café precis intill älvskanten känt för sina räkmackor, caféet ligger bara en kort cykeltur från bostaden och är ett trevligt utflyktsmål. Vid kajutan finns också möjlighet att hyra en båtplats (separat kö). Stackgrönnan/Nyhamn vintertid är också magisk då det finns bra med skoterspår, man kan pimpla på isen på älven eller åka skridskor i hockeyrinken på skolan. Det finns flera grillkåtor längs vandringslederna så det är bara att välja en och göra upp en värmande eld. Från Stackgrönnan finns en riktigt fin cykelväg som går hela vägen till stan.


Välkommen på visning!

Om Bostaden

Sammanfattning

Typ: Villa, 1-plansvilla
Rum: 6, varav 4 sovrum, möjlighet till 5 sovrum
Boarea: 132 m2
Biarea: 57 m2
Tomtarea: 1 294 m2
Pris (Utgångspris): 2 995 000 kr
Byggnadsår: 1974
Driftkostnad: 31 171 kr/år
Upplåtelseform: Äganderätt
Inflyttning: Enligt överenskommelse

Kommentar till boarean

Boareauppgift enligt: Lantmäteriet
103+29(utbyggnad)

Uppvärmning

Bergvärmepump m vattenburen golvvärme och radiatorer, Elgolvvärme i groventré och dusch/tvätt, luftvärmepump & braskamin & el-element i badrum/allrum

Byggnadssätt

Vatten: Kommunalt vatten året om
Avlopp: Kommunalt avlopp
Grund: Betongplatta på mark
Stomme: Trä
Fasad: liggande träpanel
Fönster: 3-glasfönster isoler. 2-glasfönster kopplade i ekonomidel
Takbeklädnad: Betongpannor/plåt på utbyggnad/papp på garage
Ventilation: självdrag. Fuktstyrd våtrumsfläkt i badrum/tvättstuga
Jordat/ojordat: Delvis jordat
Elkablar: Ledningar delvis bytta
Huvudsäkring: 20 A
Murstock: Skorsten av plåt
Murstock kommentar: Installerad 2020
Det finns en aktiv eldstad som senast sotades 2025-02-19.

Renoveringar

2020 - Nytt kök och ny golvkonstruktion med golvvärme monterades. Kök från Ikea. El och vvs byttes ut, gjort av fackman. Kök monterades i egen regi.
2020 - Ny braskamin i matplats, monterades av Elda Butiken.
2021 - Alla fönster på östra sidan byttes till nya 3-glas isolerfönster från EU imort.
2022 - Alla övriga fönster och altandörr byttes ut till 3-glas isolerfönster från EU import.
2023 - Utbyggnad av huset och bergvärmepump installerades. Utbyggnad av NV-bygg. Bergvärmepump och golvvärme monterades av Jäders Värme vvs.
2025 - Målades fasadpanel om, utfört i egen regi. Brandskyddskontroll utförd 2025. Godkänd att elda i just nu.

Tomt/balkong/uteplats

Stor öppen altan med delvis taktäckt del i västerläge. På altanen finns även en inbyggd, vedeldad badtunna.
En fristående stor altan som är inredd med odlingslådor.

Övriga byggnader

Förrådsbyggnad

Parkering

Lång uppfart med plats för flera bilar.
Varmgarage med plats för en bil.

Tv/Internetanslutning

Fiber

Allmänt

Län: Västerbotten
Kommun: Skellefteå
Fastighetsbeteckning: SKELLEFTEÅ BERGSBYN 22:2

Omgivning

Stackgrönnan och Nyhamn är två pittoreska byar som ligger nära varandra på den södra sidan av Skellefteälven, ungefär en mil öster om Skellefteå. I Stackgrönnan finns både en skola och en förskola, och barnen från Nyhamn går också här. När barnen blir äldre går skolbussen vidare genom Örviken till Skelleftehamn.

Dessa områden präglas av närheten till naturen, en lugn atmosfär och vacker omgivning. Här erbjuds natursköna promenadstråk genom skog och mark. Utforskar man Öbergsleden får man uppleva den vackra naturen längs småälvar, Innerviksfjärden och naturreservat. Leden sträcker sig över öberget och ner mot Nyhamn, innan den leder vidare till Skellefteälven och Café Kajutan. Caféet är ett välkänt landmärke i byn och berömt för sina räkmackor. Många återvänder hit inte bara en gång under sommaren. Under sommarsäsongen hålls regelbundna loppisar, musikevenemang, motorkvällar och andra aktiviteter på caféet. Numera finns även en mindre campingplats vid älven för dem som söker en lugnare semesterupplevelse.

Från Stackgrönnan sträcker sig en vacker cykelväg hela vägen in till Skellefteå stad. Sommaren lockar till populära aktiviteter som cykling och inlines, både för de som bor i området och de som passerar genom området på längre turer.

Längst ut i Nyhamn ligger Björnsholmen, ett område som är känt för sina fantastiska möjligheter till fågelskådning. Här kan man avnjuta skådespel av fågelflockar i sin naturliga omgivning. Vintern i Stackgrönnan/Nyhamn är likaså förtrollande med välpreparerade skoterspår, möjligheten att pimpla på isen i älven, eller skrinna på isen i skolans hockeyrink. Flera grillkåtor längs vandringslederna erbjuder möjligheten att elda och värma sig.

Sammanhållningen i byarna är stark, och vid större evenemang finns Nyhamnsgården som en lokal som kan hyras. Området domineras av villor i olika kvarter, och det finns även några större gårdar samt bostadsrättsparhus.

Planbestämmelser

Stackgrönnans samhälle, Stadsplan (Beslutsdatum: 1973-06-15, Registreringsdatum: 2006-10-16)

Övrigt

Budgivning: Vi tillämpar s.k. öppen budgivning. Detta innebär att alla kan få information om vilka bud som inkommit. Säljarna har fri prövningsrätt. Detta innebär att säljaren avgör när, hur, till vem samt för vilket pris säljaren säljer. Samtliga som deltar i budgivningen accepterar att fastighetsmäklaren lämnar ut budgivarnas namn och telefonnummer samt information om de bud som inkommit till den som köper bostaden.

I det fall det kommer in bud till mäklaren efter att budgivningen är avslutad, men innan överlåtelseavtal är signerade, är mäklaren skyldig att framföra budet till säljaren som får avgöra om denne vill avfärda eller anta budet.

Uppgifterna i objektbeskrivningen härrör huvudsakligen från säljaren och kontrolleras av fastighetsmäklaren endast om omständigheterna ger anledning till detta.

Ekonomi

Pris (Utgångspris)

2 995 000 kr

Driftkostnader

31 171 kr/år
Antal i hushållet: 5

Fördelas enligt följande

El: 18 027 kr
Vatten och avlopp: 8 607 kr
Renhållning: 4 537 kr
Beskrivning: Kostnaden för uppvärmningen är beräknad på säljarens avtal från elleverantör för 2025. I kostnaden för uppvärmningen är även hushållselen inräknad.
2025 förbrukades 18 711 kWh.
5 personer bor i hushållet idag.

De nuvarande ägarna förbrukar ca 107 kubikmeter vatten/år och renhållningskostnaden är baserat på en grundavgift samt tömning av Fyrfackskärl 2 och/eller Fyrfackskärl 4.

Utöver ovanstående eventuella driftkostnader tillkommer fastighetsavgift med belopp om 10 425 kr.

Observera att driftskostnaderna som anges ovan baseras på säljarens faktiska kostnader det senaste året om inget annat särskilt anges.
Vilka driftskostnader köparen kommer att ha beror på hur bostaden kommer att användas, vilka abonnemang som kommer att tecknas och övriga omständigheter i det enskilda fallet.

Taxering

Byggnad: 1 360 000 kr
Mark: 598 000 kr
Totalt: 1 958 000 kr
Taxeringsår: 2024
Taxeringsvärdet är: Fastställt
Värdeår: 1974
Standardpoäng: 35
Typkod: 220, Småhusenhet, bebyggd

Pantbrev

Det finns 12 pantbrev uttaget om sammanlagt 1 800 000 kr.

Energideklaration

Status: Energideklaration är utförd
Energiprestanda: 247 kWh/kvm/år
Energiklass: GG
Specifik energianvändning: 209 kWh/kvm/år
Energideklaration utförd: 2020-02-05
Besiktningsman: Joel Dahl, Antcimex AB

Försäkring

Svensk Fastighetsförmedling samarbetar med If för att underlätta ditt bostadsköp. När du köper bostad eller fritidshus genom Svensk Fastighetsförmedling är den automatiskt försäkrad. Vi kallar det Flytta in-försäkring. Den är kostnadsfri och gäller under de första 30 dagarna. Fortsätter du sedan att försäkra hemmet eller fritidshuset hos If får du 10% rabatt och flera andra unika förmåner. Fråga din mäklare för att ta del av erbjudandet.
Trygg affär - Varudeklarerad Villa

Alla bilder

+ 33 Visa alla 39 bilder
 

Planritning

Karta och område

Kartgatan 16, Skellefteå

Kalkyl

Vad kostar nya boendet?

Fler värden

Här nedanför kan du ändra ränta, amortering och driftkostnader och se hur de påverkar kalkylen.

Återställ alla värden
Visa fler

Ränta

Amortering

Driftkostnad per månad

Driftkostnad/månad

Observera att driftskostnaderna som anges ovan baseras på säljarens faktiska kostnader det senaste året om inget annat särskilt anges.

Vilka driftskostnader köparen kommer att ha beror på hur bostaden kommer att användas, vilka abonnemang som kommer att tecknas och övriga omständigheter i det enskilda fallet.

Boendekostnad per månad

Ränta
+  kr
Driftkostnad
+  kr
Fastighetsskatt/-avgift
+ 869 kr
Skattereduktion
 kr
Summa
ca  kr
Amortering
+  kr
Inkl amortering
ca  kr

Ansök om lånelöfte

Hos vårt systerbolag Ordna Bolån kan du enkelt ansöka om lånelöfte eller bolån. En ansökan, svar från flera banker.

Visningsanmälan

Fyll i formuläret så kontaktar vi dig inom kort.

Välj mellan nedan alternativ
Tisdag 7 april
Anmälan krävs

Kartgatan 16, 931 91 Skellefteå
Kontakta ansvarig mäklare om tiden inte passar.
Jag vill veta mer om bostaden

Kontaktuppgifter
Vänligen ange förnamn
Vänligen ange efternamn
Vänligen ange telefonnummer
Vänligen ange e-post
500 tecken kvar
Har du lånelöfte?*
Vill du ha hjälp med lånelöfte?
Vill du få nyheter och erbjudanden?

Oj, något gick fel! Försök igen. 

Ett ögonblick!
Tack, dina uppgifter är sparade!
Du fyllde inte i någon e-postadress. Ange den nedan för att inte missa någon information.
 
 
 
Ta del av vår integritetspolicy
 
 
 

Liknande bostäder till salu

Skellefteå
Kartgatan 16
Dela bostad: Dela på Facebook Dela med epost Dela med sms Kopiera länk Länken kopierad

Planritning