Hoppa till innehåll
Skellefteå

Kantgatan 23

Charmigt 60-talshus i populärt område.

  • Typ: Villa, 1 plan med källare
  • Rum: 4, varav 3-4 sovrum
  • Boarea: 117 m2
  • Biarea: 117 m2
  • Tomtarea: 871 m2
  • Byggnadsår: 1966
  • Driftkostnad: 36 154 kr/år
  • Upplåtelseform: Äganderätt

Drömmer du om ett hem med charm, funktion och ett fantastiskt läge? Då har du hittat rätt!

Denna välplanerade 1-plansvilla med källare i klassisk 60-talsstil erbjuder ett hem med både karaktär och moderna förbättringar.
Här möts du av ljusa, rymliga ytor och en planlösning som skapar en trivsam atmosfär för både vardag och umgänge.

Huset är utrustat med energieffektiv bergvärme, vilket ger låga driftkostnader och ett behagligt inomhusklimat året om.
Under kyligare dagar sprider braskaminen både värme och en härlig mysfaktor i hemmet.
Dessutom är taket nyligen bytt, vilket ger trygghet för många år framöver.

Den generösa källaren erbjuder gott om extra utrymme – perfekt för hobbyrum, förvaring, hemmagym eller kanske en tonårsdel.

Fastigheten ligger i ett eftertraktat och familjevänligt område, med närhet till både skola och förskola, vilket gör vardagen enkel och smidig.
Här bor du lugnt och trivsamt samtidigt som service och kommunikationer finns inom bekvämt avstånd.

Ett hem med både själ och potential – perfekt för dig som vill bo i ett stabilt hus med charm från 60-talet och moderna bekvämligheter.

Om Bostaden

Beskrivning

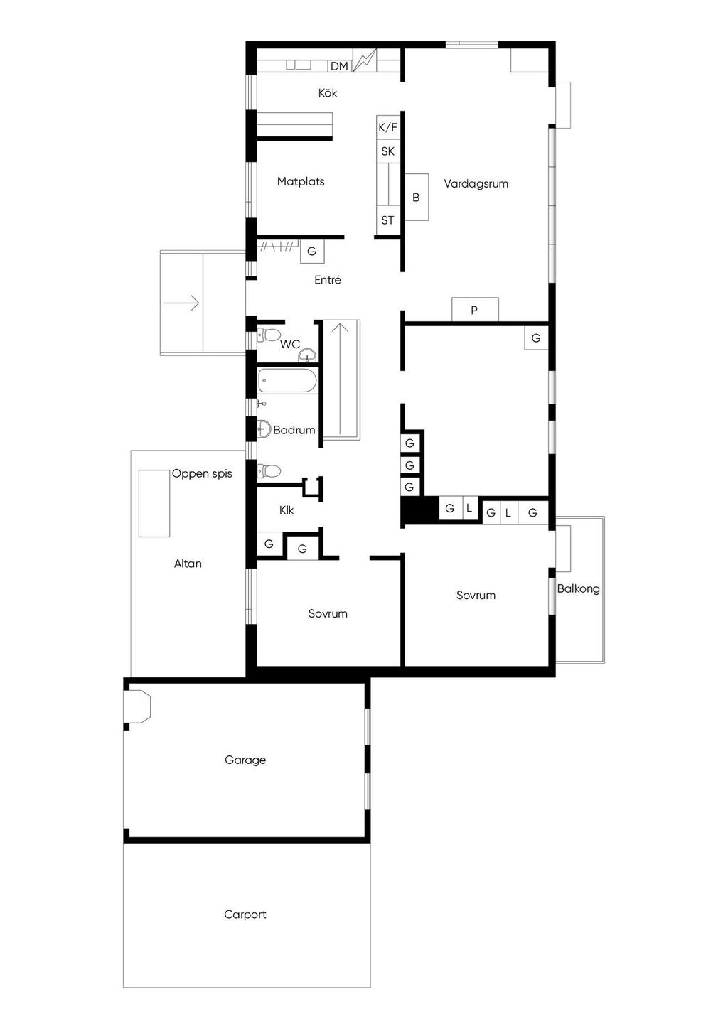
Bottenvåning.

Kök med plastmatta, tapet och vitt tak. Foremaluckor, Bosch diskmaskin, Elektrolux spis, Bosch fläkt, Upo kyl/frys samt en extra frys.
Vardagsrum med ekparkett väv på väggarna och vitt tak samt utgång till baksidan.
Sovrum/TV-rum med heltäckningsmatta, tapet, vitt tak och 3 garderober.
Sovrum med heltäckningsmatta, tapet, vitt tak, 3 garderober och utgång till balkong.
Sovrum med heltäckningsmatta, tapet, vitt tak och 2 garderober.
Hall med heltäckningsmatta, tapet, vitt tak, 4 garderober och en klädkammare.
Badrum med klinker med golvvärme, laminatväggar och tapetväggar, vitt tak, 1 garderob, wc, tvättställ och dusch.
WC med klinkergolv, tapet, vitt tak, wc och tvättställ.

Källarvåning.

Gillestuga med heltäckningsmatta, panelväggar, vitt tak och en keddy kamin.
Hall med heltäckningsmatta, väv på väggarna och vitt tak.
Klädkammare.
Matkällare.
Tvättstuga med plastmatta, målade väggar och tak, Cylinda tvättmaskin, arbetsbänk och ho.
Dusch med bastu, klinkergolv med golvvärme, kakel och vitt tak.
Hobbyrum med målade golv, väggar och tak.
Snickeri / Pannrum med målade golv, väggar och tak.

Sammanfattning

Typ: Villa, 1 plan med källare
Rum: 4, varav 3 sovrum, möjlighet till 4 sovrum
Boarea: 117 m2
Biarea: 117 m2
Tomtarea: 871 m2
Utgångspris: 3 300 000 kr
Byggnadsår: 1966
Driftkostnad: 36 154 kr/år
Upplåtelseform: Äganderätt

Kommentar till boarean

Boareauppgift enligt: Lantmäteriet

Uppvärmning

Bergvärme
Ålder: 2022

Byggnadssätt

Vatten: Kommunalt vatten året om
Avlopp: Kommunalt avlopp
Grund: Källare
Stomme: Trä
Bjälklag: Betong
Fasad: Tegelstensfasad
Fönster: 3-glasfönster isoler samt några 2 glasfönster
Takbeklädnad: Takpannor, nya 2026
Ventilation: Självdrag
Radon: Radon mätt 2014-04-29.
Radonhalt 280Bq/m³
Huvudsäkring: 20 A
Murstock: Murad skorsten
Murstock kommentar: Det finns en öppen spis med insatts i drift, senast sotad 2025-08-25.
Fel och brister: Kan behövas en omdränering.

Renoveringar

Bergvärmepump 2022, borrat 1998.
Köksfönster bytta 2025.
Nytt yttertak 2026.
Vinden är tilläggsisolerad i omgångar genom åren.
Fönster bytta i omgångar genom åren.

Tomt/balkong/uteplats

Altan med öppenspis samt en balkong

Övriga byggnader

Cykelskjul

Parkering

Garage och Carport

Tv/Internetanslutning

Ske-kraft Fiber.

Allmänt

Län: Västerbotten
Kommun: Skellefteå
Fastighetsbeteckning: SKELLEFTEÅ BLOCKET 6

Omgivning

Alhem är ett mycket barnvänligt område med närhet till flera bekvämligheter, som skolor, mataffär, pizzeria, och badhus, för att nämna några. Dessutom erbjuder området goda bussförbindelser till centrum för enkel transport. Inte långt bort från Alhem finns också Solbacken handelsområde där man kan hitta det mesta, såsom apotek, klädaffärer, sportbutiker och ICA-Maxi.

När det kommer till utbildningsmöjligheter finns det två skolor att välja mellan. Norrhammarskolan tar emot elever från förskoleklass upp till årskurs 9. Alternativt kan elever gå på den helt nya Floraskolan som också sträcker sig från förskoleklass upp till årskurs 9. Floraskolan ligger på Morön, med kort avstånd från Alhem, och där finner man även en helt nybyggd friidrottshall. Området har dessutom flera förskolor som erbjuder omsorg och undervisning för de yngre barnen.

För de som älskar utomhusaktiviteter finns det gott om möjligheter norr om Alhem i Vitbergsområdet. Där kan man njuta av skidåkning både utför och på längd samt delta i andra fritidsaktiviteter som hockey, tennis, friidrott, konståkning, Padel och utomhusbad, bland annat.

Sammanfattningsvis är Alhem en fantastisk plats att bo för familjer och personer som uppskattar närhet till skolor, butiker och olika fritidsaktiviteter. Området erbjuder ett rikt utbud av tjänster och möjligheter till en aktiv och bekväm livsstil.

Planbestämmelser

Alhemsområdet, Stadsplan (Beslutsdatum: 1966-12-09, Senast ändrad: 2020-02-25)
Blocket, Tomtindelning (Status: avregistrerad, Beslutsdatum: 1967-01-30, Senast ändrad: 2022-10-16)

Övrigt

Budgivning: Vi tillämpar s.k. öppen budgivning. Detta innebär att alla kan få information om vilka bud som inkommit. Säljarna har fri prövningsrätt. Detta innebär att säljaren avgör när, hur, till vem samt för vilket pris säljaren säljer. Samtliga som deltar i budgivningen accepterar att fastighetsmäklaren lämnar ut budgivarnas namn och telefonnummer samt information om de bud som inkommit till den som köper bostaden.

I det fall det kommer in bud till mäklaren efter att budgivningen är avslutad, men innan överlåtelseavtal är signerade, är mäklaren skyldig att framföra budet till säljaren som får avgöra om denne vill avfärda eller anta budet.

Uppgifterna i objektbeskrivningen härrör huvudsakligen från säljaren och kontrolleras av fastighetsmäklaren endast om omständigheterna ger anledning till detta.

Ekonomi

Utgångspris

3 300 000 kr

Driftkostnader

36 154 kr/år
Årlig elförbrukning: 17334 kWh/år

Fördelas enligt följande

El: 24 806 kr
Vatten och avlopp: 6 411 kr
Renhållning: 4 537 kr
Sotning: 400 kr
Beskrivning: Kostnaden för uppvärmningen är beräknad på säljarens avtal från elleverantör för 2025. I kostnaden för uppvärmningen är även hushållselen inräknad.
2025 förbrukades 17 334 kWh.

De nuvarande ägarna förbrukar ca 46 kubikmeter vatten/år och renhållningskostnaden är baserat på en grundavgift samt tömning av Fyrfackskärl 2 och/eller Fyrfackskärl 4.

Utöver ovanstående eventuella driftkostnader tillkommer fastighetsavgift med belopp om 9 287 kr.

Observera att driftskostnaderna som anges ovan baseras på säljarens faktiska kostnader det senaste året om inget annat särskilt anges.
Vilka driftskostnader köparen kommer att ha beror på hur bostaden kommer att användas, vilka abonnemang som kommer att tecknas och övriga omständigheter i det enskilda fallet.

Taxering

Byggnad: 2 141 000 kr
Mark: 1 290 000 kr
Totalt: 3 431 000 kr
Taxeringsår: 2024
Taxeringsvärdet är: Fastställt
Värdeår: 1966
Standardpoäng: 35
Typkod: 220, Småhusenhet, bebyggd

Pantbrev

Det finns 8 pantbrev uttaget om sammanlagt 457 500 kr.

Försäkring

Svensk Fastighetsförmedling samarbetar med If för att underlätta ditt bostadsköp. När du köper bostad eller fritidshus genom Svensk Fastighetsförmedling är den automatiskt försäkrad. Vi kallar det Flytta in-försäkring. Den är kostnadsfri och gäller under de första 30 dagarna. Fortsätter du sedan att försäkra hemmet eller fritidshuset hos If får du 10% rabatt och flera andra unika förmåner. Fråga din mäklare för att ta del av erbjudandet.
Trygg affär - Varudeklarerad Villa

Alla bilder

+ 40 Visa alla 46 bilder
 

Planritning

Karta och område

Kantgatan 23, Skellefteå

Kalkyl

Vad kostar nya boendet?

Fler värden

Här nedanför kan du ändra ränta, amortering och driftkostnader och se hur de påverkar kalkylen.

Återställ alla värden
Visa fler

Ränta

Amortering

Driftkostnad per månad

Driftkostnad/månad

Observera att driftskostnaderna som anges ovan baseras på säljarens faktiska kostnader det senaste året om inget annat särskilt anges.

Vilka driftskostnader köparen kommer att ha beror på hur bostaden kommer att användas, vilka abonnemang som kommer att tecknas och övriga omständigheter i det enskilda fallet.

Boendekostnad per månad

Ränta
+  kr
Driftkostnad
+  kr
Fastighetsskatt/-avgift
+ 774 kr
Skattereduktion
 kr
Summa
ca  kr
Amortering
+  kr
Inkl amortering
ca  kr

Ansök om lånelöfte

Hos vårt systerbolag Ordna Bolån kan du enkelt ansöka om lånelöfte eller bolån. En ansökan, svar från flera banker.

Visningsanmälan

Fyll i formuläret så kontaktar vi dig inom kort.

Välj mellan nedan alternativ
Tisdag 7 april
Anmälan krävs

Kantgatan 23, Skellefteå
Välkommen på visning. Anmälan krävs.
Jag vill veta mer om bostaden

Kontaktuppgifter
Vänligen ange förnamn
Vänligen ange efternamn
Vänligen ange telefonnummer
Vänligen ange e-post
500 tecken kvar
Har du lånelöfte?*
Vill du ha hjälp med lånelöfte?
Vill du få nyheter och erbjudanden?

Oj, något gick fel! Försök igen. 

Ett ögonblick!
Tack, dina uppgifter är sparade!
Du fyllde inte i någon e-postadress. Ange den nedan för att inte missa någon information.
 
 
 
Ta del av vår integritetspolicy
 
 
 

Liknande bostäder till salu

Skellefteå
Kantgatan 23
Dela bostad: Dela på Facebook Dela med epost Dela med sms Kopiera länk Länken kopierad

Planritning