Hoppa till innehåll
Bureå

Bäckvägen 7

Välkomnande enplansvilla med vidbyggt varmgarage

  • Typ: Villa, Enplansvilla med vidbyggt garage
  • Rum: 4, varav 3 sovrum
  • Boarea: 141 m2
  • Biarea: 25 m2
  • Tomtarea: 1 006 m2
  • Byggnadsår: 1975
  • Driftkostnad: 36 849 kr/år
  • Upplåtelseform: Äganderätt

Välkommen till ett hemtrevligt och välplanerat enplanshus som erbjuder både funktion och charm! Här bor du i ett lugnt och trivsamt område med närhet till natur och bekvämligheter.
Bostaden har genomtänkta ytor för både familjeliv, arbete och avkoppling – perfekt för dig som söker ett hem att bo i länge.

Redan i hallen möts du av en ljus och välkomnande känsla, med plats för ytterkläder och förvaring i inbyggd garderob. Genom träspaljén skymtar köket, vilket skapar en härlig rymd och en naturlig kontakt mellan rummen. Toaletten ligger praktiskt nära entrén och har klassiska ytskikt i ljusa toner.

Husets ena del erbjuder tre sovrum i varierande storlek samt en klädkammare med både hyllor och klädstänger. Det största sovrummet har plats för dubbelsäng och gott om förvaring, medan de övriga rummen passar perfekt som barnrum, gästrum eller kontor.

Köket är funktionellt och charmigt med kakel vid arbetsytorna, bänkskiva i rostfritt stål och full maskinell utrustning. Här finns gott om plats för matgrupp och en trevlig vy mot kaminen av märket Keddy.

Vardagsrummet bjuder på generösa ytor, parkettgolv och fönster mot husets baksida. Härifrån når du utgång till altan och trädgård – en perfekt plats för umgänge och avkoppling.

Badrummet är utrustat med WC, handfat, badkar och även bidé.
Tvättstugan erbjuder en praktisk, mindre arbetsbänk, ho och tvättmaskin. I anslutning finns förråd, hobbyrum och varmgarage med plats för bil.

Huset ventileras med ett FTX-system och uppvärmning sker via direktverkande el (radiatorer och luftvärmepump) samt eldstad.
Ett välhållet och inbjudande hem där varje kvadratmeter kommer till sin rätt – varmt välkommen på visning!

Huset är besiktigat och Vardueklarerat.

Om Bostaden

Beskrivning

HALL
Hall med plats för ytterkläder och förvaring i inbyggd garderob. Trevlig vy över köket genom träspaljén.
Ytskikten är ljus plastmatta och väggarna är tapetserade med ljus tapet.

TOALETT
Direkt från hallen når du husets toalett.
Golvets ytskikt är plastmatta och väggarna är tapetserade med en blommig tapet.
Här finns tvättställ och WC i vitt porslin.

SOVRUM 1
Följer vi "korridoren" till vänster, från hallen sett, når vi husets sovrum. Här rymmer man både dubbelsäng och garderober.
Ytskikten går i naturnära färger och trevligt ljusinsläpp erbjuds via fönster mot husets framsida.

KLÄDKAMMARE
Mellan sovrum 1 och sovrum 2 finner vi en klädkammare med goda förvaringsmöjligheter genom både klädstänger och hyllor.
Ytskikten är tapet på väggarna och heltäckningsmatta på golvet.
Ljusinsläpp från fönster i gavel.
Ovanför dörren in till KLK sitter husets värmepump.

KONTOR/SOVRUM 2
Ett rymligt rum med 4st inbyggda garderober.
Används i dagsläget som hemmakontor och gästrum.
Golvbeklädnad är plastmatta och väggbeklädnad är vävtapeter.
Fönster i västerläge mot husets baksida.

GÄSTRUM/SOVRUM 3
Ett mindre sovrum som i dagsläget fungerar som gästrum.
Här finns 2st inbyggda garderober.
Golvet är beklätt med heltäckningsmatta och väggarna är beklädda med papperstapet.
Fönster i västerläge mot husets baksida.

BADRUM
WC samt handfat i vitt porslin.
Ytskikten på väggar och golv är plastmatta.
Även bidé samt badkar finns.
Finns också ett fönster mot bostadens framsida.

KÖK
Funktionellt kök med maskinell utrustning beståendes av kyl, frys, diskmaskin, spis med häll och fläkt. Bakom arbetsytorna är det kakel. Ho och blandare i rostfritt stål.
Bänkskiva i rostfritt stål.
Med plats för en matgrupp samt med vy mot eldstaden, en kamin av märket Keddy.
Här är det också ett fint ljusinsläpp från husets framsida.

VARDAGSRUM
Hemtrevligt vardagsrum med fönster mot husets baksida och även utgång till bostadens uteplats.
Gott om plats för soffgrupp.
Här finns även utgång till bostadens uteplats/altan.
Ytskikten är parkettgolv och väggar i grön nyans och med en mönstrad fondvägg.

UTEPLATS
Härlig uteplats med fönsterpartier med vy över trädgård/altan.

TVÄTTSTUGA:
Mindre tvättstuga med arbetsbänk i laminat samt ho och blandare i rostfritt stål.
Den maskinella utrustningen består av tvättmaskin.
Utöver det finns ett förråd några trappsteg ner och i anslutning till hobbyrum/garage.

FÖRRÅD och GARAGE
Ett rymligt förråd där det även finns dusch.
Vägg i vägg finns dessutom ett varmgarage med plats för en bil samt även här lite förrådsyta.

Sammanfattning

Typ: Villa, Enplansvilla med vidbyggt garage
Rum: 4, varav 3 sovrum
Boarea: 141 m2
Biarea: 25 m2
Tomtarea: 1 006 m2
Pris (Utgångspris): 1 100 000 kr
Byggnadsår: 1975
Driftkostnad: 36 849 kr/år
Upplåtelseform: Äganderätt

Kommentar till boarean

Boareauppgift enligt: Lantmäteriet

Uppvärmning

Direktverkande el, luft/luftvärmepump och braskamin
Märke: Värmepump: IVT, Braskamin: Keddy

Byggnadssätt

Vatten: Kommunalt vatten året om
Avlopp: Kommunalt avlopp
Stomme: Trä
Fasad: Stående träpanel
Fönster: 3-glasfönster isoler samt 1+1 glas kopplade i båge (i ekonomidel och klädkammare).
Takbeklädnad: Betongpannor
Ventilation: Mekanisk till- och frånluft
Radon: Radonmätning utfördes våren 2006.
Huvudsäkring: 16 A
Murstock: Skorsten av plåt
Murstock kommentar: Det finns en aktiv eldstad som senast sotades 2023-03-13.

Tomt/balkong/uteplats

Bostaden har en trevlig uteplats i västerläge, delvis med tak och med utgång från vardagsrummet.
Trädgårdstomt

Övriga byggnader

Bostaden har ett vidbyggt garage.

Parkering

Här finns plats för en bil i varmgaraget samt plats för en till bil på uppfarten.

Tv/Internetanslutning

Fiber finns via Skellefteå Kraft.

Allmänt

Län: Västerbotten
Kommun: Skellefteå
Fastighetsbeteckning: SKELLEFTEÅ BUREÅ 4:228

Omgivning

Bureå är ett vackert samhälle beläget cirka 20 kilometer söder om Skellefteå. Dess charmiga läge vid Bureälven, som slingrar sig genom byn, ger en rogivande atmosfär.

Bureå erbjuder skolor för åldrarna F-9, vilket ger barn och ungdomar en god utbildningsgrund. Dessutom finns fina idrottsanläggningar, inklusive ett badhus, konstfrusen hockeyrink, fotbollsplaner och ett elljusspår, som ger möjligheter till olika sport- och fritidsaktiviteter.

För de som älskar båtlivet har Bureå båtsällskap en central roll, då de främjar båtlivet och skapar gemenskap för båtentusiaster i området.

Bureå har en bredd av bekvämligheter för sina invånare. Här finns olika affärer, ett bibliotek, campingplats, pizzeria och en bensinmack för praktiska behov och nöjen.

Sammanfattningsvis är Bureå ett attraktivt samhälle med en vacker omgivning vid Bureälven. Här erbjuds goda utbildningsmöjligheter, fina idrottsanläggningar och en aktiv båtlivsgemenskap. Dessutom finns alla nödvändiga bekvämligheter för en bekväm vardag i byn.

Planbestämmelser

Klosterholmen,mården i bureå, Stadsplan (Beslutsdatum: 1976-05-13, Senast ändrad: 2022-05-05)

Övrigt

Budgivning: Vi tillämpar s.k. öppen budgivning. Detta innebär att alla kan få information om vilka bud som inkommit. Säljarna har fri prövningsrätt. Detta innebär att säljaren avgör när, hur, till vem samt för vilket pris säljaren säljer. Samtliga som deltar i budgivningen accepterar att fastighetsmäklaren lämnar ut budgivarnas namn och telefonnummer samt information om de bud som inkommit till den som köper bostaden.

I det fall det kommer in bud till mäklaren efter att budgivningen är avslutad, men innan överlåtelseavtal är signerade, är mäklaren skyldig att framföra budet till säljaren som får avgöra om denne vill avfärda eller anta budet.

Uppgifterna i objektbeskrivningen härrör huvudsakligen från säljaren och kontrolleras av fastighetsmäklaren endast om omständigheterna ger anledning till detta.

Ekonomi

Pris (Utgångspris)

1 100 000 kr

Driftkostnader

36 849 kr/år
Årlig elförbrukning: 20442 kWh/år
Antal i hushållet: 1

Fördelas enligt följande

Uppvärmning: 25 352 kr
Vatten och avlopp: 5 945 kr
Renhållning: 4 539 kr
Sotning: 1 013 kr
Beskrivning: Kostnaden för uppvärmningen är beräknad på säljarens avtal från elleverantör för 2025. I kostnaden för uppvärmningen är även hushållselen inräknad.
2025 förbrukades 20 442 kWh.
1 person bor i hushållet idag.

Den nuvarande ägaren förbrukar ca. 34 kubikmeter vatten/år och renhållningskostnaden är baserat på en grundavgift samt tömning av Fyrfackskärl 2 och/eller Fyrfackskärl 4

Utöver ovanstående eventuella driftkostnader tillkommer fastighetsavgift med belopp om 10 425 kr.

Observera att driftskostnaderna som anges ovan baseras på säljarens faktiska kostnader det senaste året om inget annat särskilt anges.
Vilka driftskostnader köparen kommer att ha beror på hur bostaden kommer att användas, vilka abonnemang som kommer att tecknas och övriga omständigheter i det enskilda fallet.

Taxering

Byggnad: 1 140 000 kr
Mark: 403 000 kr
Totalt: 1 543 000 kr
Taxeringsår: 2024
Taxeringsvärdet är: Fastställt
Värdeår: 1975
Standardpoäng: 32
Typkod: 220, Småhusenhet, bebyggd

Pantbrev

Det finns 3 pantbrev uttaget om sammanlagt 464 600 kr.

Energideklaration

Status: Energideklaration är utförd
Energiprestanda: 193 kWh/kvm/år
Energiklass: FF
Specifik energianvändning: 154 kWh/kvm/år
Energideklaration utförd: 2025-11-10
Besiktningsman: Linus Banck, Anticimex AB

Försäkring

Svensk Fastighetsförmedling samarbetar med If för att underlätta ditt bostadsköp. När du köper bostad eller fritidshus genom Svensk Fastighetsförmedling är den automatiskt försäkrad. Vi kallar det Flytta in-försäkring. Den är kostnadsfri och gäller under de första 30 dagarna. Fortsätter du sedan att försäkra hemmet eller fritidshuset hos If får du 10% rabatt och flera andra unika förmåner. Fråga din mäklare för att ta del av erbjudandet.
Trygg affär - Varudeklarerad Villa

Alla bilder

+ 15 Visa alla 21 bilder
 

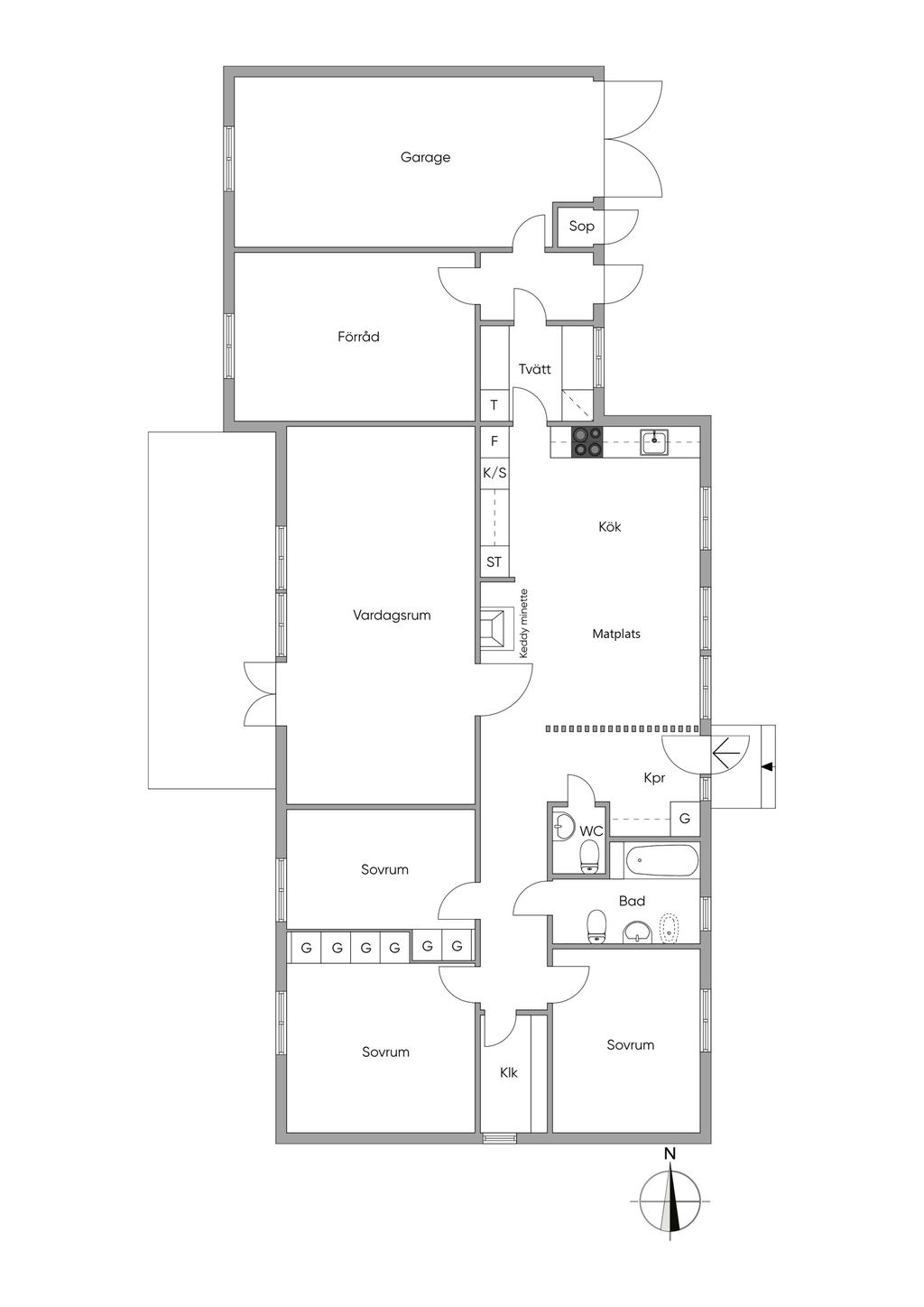
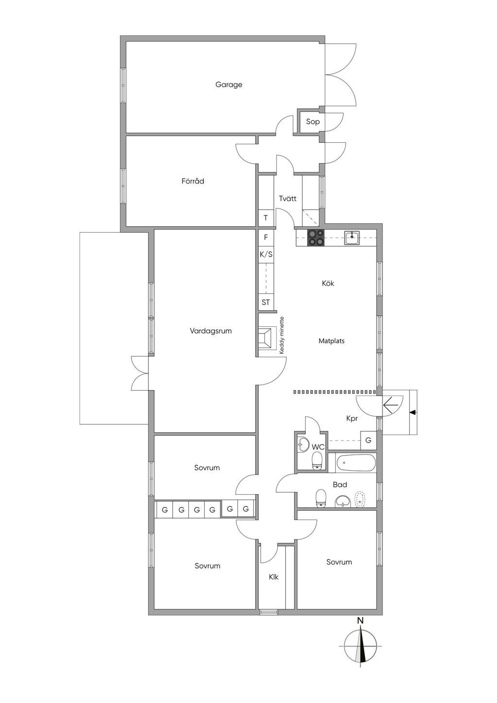
Planritning

Karta och område

Bäckvägen 7, Bureå

Kalkyl

Vad kostar nya boendet?

Fler värden

Här nedanför kan du ändra ränta, amortering och driftkostnader och se hur de påverkar kalkylen.

Återställ alla värden
Visa fler

Ränta

Amortering

Driftkostnad per månad

Driftkostnad/månad

Observera att driftskostnaderna som anges ovan baseras på säljarens faktiska kostnader det senaste året om inget annat särskilt anges.

Vilka driftskostnader köparen kommer att ha beror på hur bostaden kommer att användas, vilka abonnemang som kommer att tecknas och övriga omständigheter i det enskilda fallet.

Boendekostnad per månad

Ränta
+  kr
Driftkostnad
+  kr
Fastighetsskatt/-avgift
+ 869 kr
Skattereduktion
 kr
Summa
ca  kr
Amortering
+  kr
Inkl amortering
ca  kr

Ansök om lånelöfte

Hos vårt systerbolag Ordna Bolån kan du enkelt ansöka om lånelöfte eller bolån. En ansökan, svar från flera banker.

Visningsanmälan

Fyll i formuläret så kontaktar vi dig inom kort.

Välj mellan nedan alternativ
Fredag 24 april
Anmälan krävs

Bäckvägen 7, 932 52 Bureå
Anmälan krävs! Klicka er vidare till mäklarens sida och anmäl er där till visningen.
Måndag 27 april
Anmälan krävs

Bäckvägen 7, 932 52 Bureå
Anmälan krävs! Klicka er vidare till mäklarens sida och anmäl er där till visningen.
Jag vill veta mer om bostaden

Kontaktuppgifter
Vänligen ange förnamn
Vänligen ange efternamn
Vänligen ange telefonnummer
Vänligen ange e-post
500 tecken kvar
Har du lånelöfte?*
Vill du ha hjälp med lånelöfte?
Vill du få nyheter och erbjudanden?

Oj, något gick fel! Försök igen. 

Ett ögonblick!
Tack, dina uppgifter är sparade!
Du fyllde inte i någon e-postadress. Ange den nedan för att inte missa någon information.
 
 
 
Ta del av vår integritetspolicy
 
 
 

Liknande bostäder till salu

Skellefteå
Bäckvägen 7
Dela bostad: Dela på Facebook Dela med epost Dela med sms Kopiera länk Länken kopierad

Planritning