Hoppa till innehåll
Vålberg

Brobacksgatan 4

Friliggande 1,5-plansvilla!

  • Typ: Villa, 1,5-plansvilla med källare
  • Rum: 4, varav 3 sovrum
  • Boarea: 120 m2
  • Biarea: 80 m2
  • Tomtarea: 958 m2
  • Byggnadsår: 1935
  • Driftkostnad: 47 934 kr/år
  • Upplåtelseform: Äganderätt

Välskött 1,5-plansvilla med källare och en stor inglasad altan som man lätt blir förälskad i. Villan har 3 sovrum varav ett av dessa har ett eget badrum. 2021 byggdes den stora altanen till och 2022 kompletterade man utemiljön med en uppvärmd utomhuspool och pooldäck. Dränering är utförd, fiber indraget och 2018 installerades ett modernt och effektivt uppvärmningssystem via "luft/vatten" som gör huset energieffektivt.

Här bor ni nära skola, barnomsorg och affärer! Fina promenadstråk längs Norsälven, förskola, skola och badhus är endast 5 minuters promenad bort.

Om Bostaden

Beskrivning

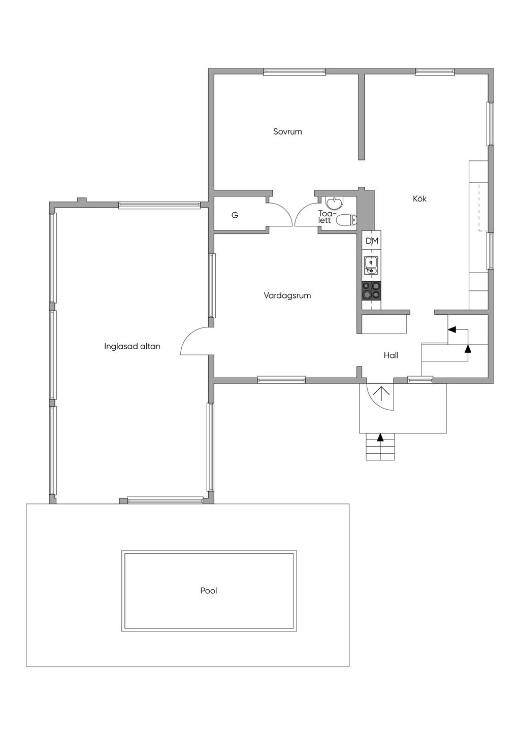
ENTRÈPLAN:
Hall med klinkergolv, vattenburen golvvärme och tre garderober.
Kök med klinkergolv, vattenburen golvvärme, kyl, frys, diskmaskin, spis och köksfläkt.
Sovrum med vinyllaminatgolv.
Klädkammare.
Toalett med klinkergolv, kaklade väggar, wc och tvättställ.
Vardagsrum med laminatgolv och utgång till den inglasade altanen.
Stor inglasad altan med värmepump för både värme och kyla samt utgång till soldäcket och den uppvärmda utomhuspoolen från 2022.

ÖVRE PLAN:
Möblerbar hall/kontor med äldre trägolv och utgång till balkong.
Sovrum med laminatgolv.
Sovrum med laminatgolv, garderobsvägg och eget badrum.
Badrum med klinkergolv, golvvärme, kaklade väggar, hörnbadkar, wc och tvättställ.

KÄLLARPLAN:
Svale med klinkergolv och ingång till bastun.
Tvättstuga med klinkergolv, duschhörna, tvättbänk och tvättmaskin.
Hobbyrum och garage.

Sammanfattning

Typ: Villa, 1,5-plansvilla med källare
Rum: 4, varav 3 sovrum
Boarea: 120 m2
Biarea: 80 m2
Tomtarea: 958 m2
Utgångspris: 1 295 000 kr
Byggnadsår: 1935
Driftkostnad: 47 934 kr/år
Upplåtelseform: Äganderätt

Kommentar till boarean

Boareauppgift enligt: Lantmäteriet

Uppvärmning

Luft/vatten värmepump
Ålder: 2018

Byggnadssätt

Vatten: Kommunalt vatten året om
Avlopp: Kommunalt avlopp
Grund: Källare
Stomme: Trä
Bjälklag: Betong/trä
Fasad: Träfasad
Fönster: 2-glasfönster, delvis utbytta
Takbeklädnad: Betongpannor
Ventilation: Självdrag

Renoveringar

Om-/tillbyggnadsår: 1969
Dränering och nytt vatten och avlopp ut till gatan 2013.

Tv/Internetanslutning

Fiber

Allmänt

Län: Värmland
Kommun: Karlstad
Fastighetsbeteckning: KARLSTAD LILLA BÅRUM 1:29

Planbestämmelser

Lilla bårum,stora bårum,vålberg och nors-åstorp(skredriskområde)inom vålberg, Detaljplan (Beslutsdatum: 1989-11-16, Senast ändrad: 2024-01-05)

Övriga rättigheter och belastningar

Rättigheter förmån: Officialservitut: VÄG LEDNING

Ekonomi

Utgångspris

1 295 000 kr

Driftkostnader

47 934 kr/år
Årlig elförbrukning: 15373 kWh/år
Antal i hushållet: 3

Fördelas enligt följande

El: 30 600 kr
Vatten och avlopp: 8 800 kr
Försäkring: 5 712 kr
Renhållning: 2 822 kr

Utöver ovanstående eventuella driftkostnader tillkommer fastighetsavgift med belopp om 6 023 kr.

Observera att driftskostnaderna som anges ovan baseras på säljarens faktiska kostnader det senaste året om inget annat särskilt anges.
Vilka driftskostnader köparen kommer att ha beror på hur bostaden kommer att användas, vilka abonnemang som kommer att tecknas och övriga omständigheter i det enskilda fallet.

Taxering

Byggnad: 504 000 kr
Mark: 299 000 kr
Totalt: 803 000 kr
Taxeringsår: 2024
Taxeringsvärdet är: Fastställt
Värdeår: 1946
Standardpoäng: 23
Typkod: 220, Småhusenhet, bebyggd

Pantbrev

Det finns 12 pantbrev uttaget om sammanlagt 1 100 000 kr.

Försäkring

Svensk Fastighetsförmedling samarbetar med If för att underlätta ditt bostadsköp. När du köper bostad eller fritidshus genom Svensk Fastighetsförmedling är den automatiskt försäkrad. Vi kallar det Flytta in-försäkring. Den är kostnadsfri och gäller under de första 30 dagarna. Fortsätter du sedan att försäkra hemmet eller fritidshuset hos If får du 10% rabatt och flera andra unika förmåner. Fråga din mäklare för att ta del av erbjudandet.
Trygg affär - Varudeklarerad Villa

Alla bilder

+ 50 Visa alla 56 bilder
 

Planritning

Karta och område

Brobacksgatan 4, Vålberg

Visa avstånd som lista:
Avstånd avser alltid fågelvägen

Kalkyl

Vad kostar nya boendet?

Fler värden

Här nedanför kan du ändra ränta, amortering och driftkostnader och se hur de påverkar kalkylen.

Återställ alla värden
Visa fler

Ränta

Amortering

Driftkostnad per månad

Driftkostnad/månad

Observera att driftskostnaderna som anges ovan baseras på säljarens faktiska kostnader det senaste året om inget annat särskilt anges.

Vilka driftskostnader köparen kommer att ha beror på hur bostaden kommer att användas, vilka abonnemang som kommer att tecknas och övriga omständigheter i det enskilda fallet.

Boendekostnad per månad

Ränta
+  kr
Driftkostnad
+  kr
Fastighetsskatt/-avgift
+ 502 kr
Skattereduktion
 kr
Summa
ca  kr
Amortering
+  kr
Inkl amortering
ca  kr

Ansök om lånelöfte

Hos vårt systerbolag Ordna Bolån kan du enkelt ansöka om lånelöfte eller bolån. En ansökan, svar från flera banker.

Visningsanmälan

Fyll i formuläret så kontaktar vi dig inom kort.

Välj mellan nedan alternativ
Tisdag 2 juni
Anmälan krävs

Brobacksgatan 4, 664 52 Vålberg
Jag vill veta mer om bostaden

Kontaktuppgifter
Vänligen ange förnamn
Vänligen ange efternamn
Vänligen ange telefonnummer
Vänligen ange e-post
500 tecken kvar
Har du lånelöfte?*
Vill du ha hjälp med lånelöfte?
Vill du få nyheter och erbjudanden?

Oj, något gick fel! Försök igen. 

Ett ögonblick!
Tack, dina uppgifter är sparade!
Du fyllde inte i någon e-postadress. Ange den nedan för att inte missa någon information.
 
 
 
Ta del av vår integritetspolicy
 
 
 

Liknande bostäder till salu

Karlstad
Brobacksgatan 4
Dela bostad: Dela på Facebook Dela med epost Dela med sms Kopiera länk Länken kopierad

Planritning