Hoppa till innehåll
Gimo

Södra Hökhuvudsvägen 10

Trevlig villa med garage och inglasat uterum!

  • Typ: Villa
  • Rum: 4, varav 3 sovrum
  • Boarea: 91 m2
  • Biarea: 90 m2
  • Tomtarea: 1 078 m2
  • Byggnadsår: 1968
  • Driftkostnad: 45 103 kr/år
  • Upplåtelseform: Äganderätt

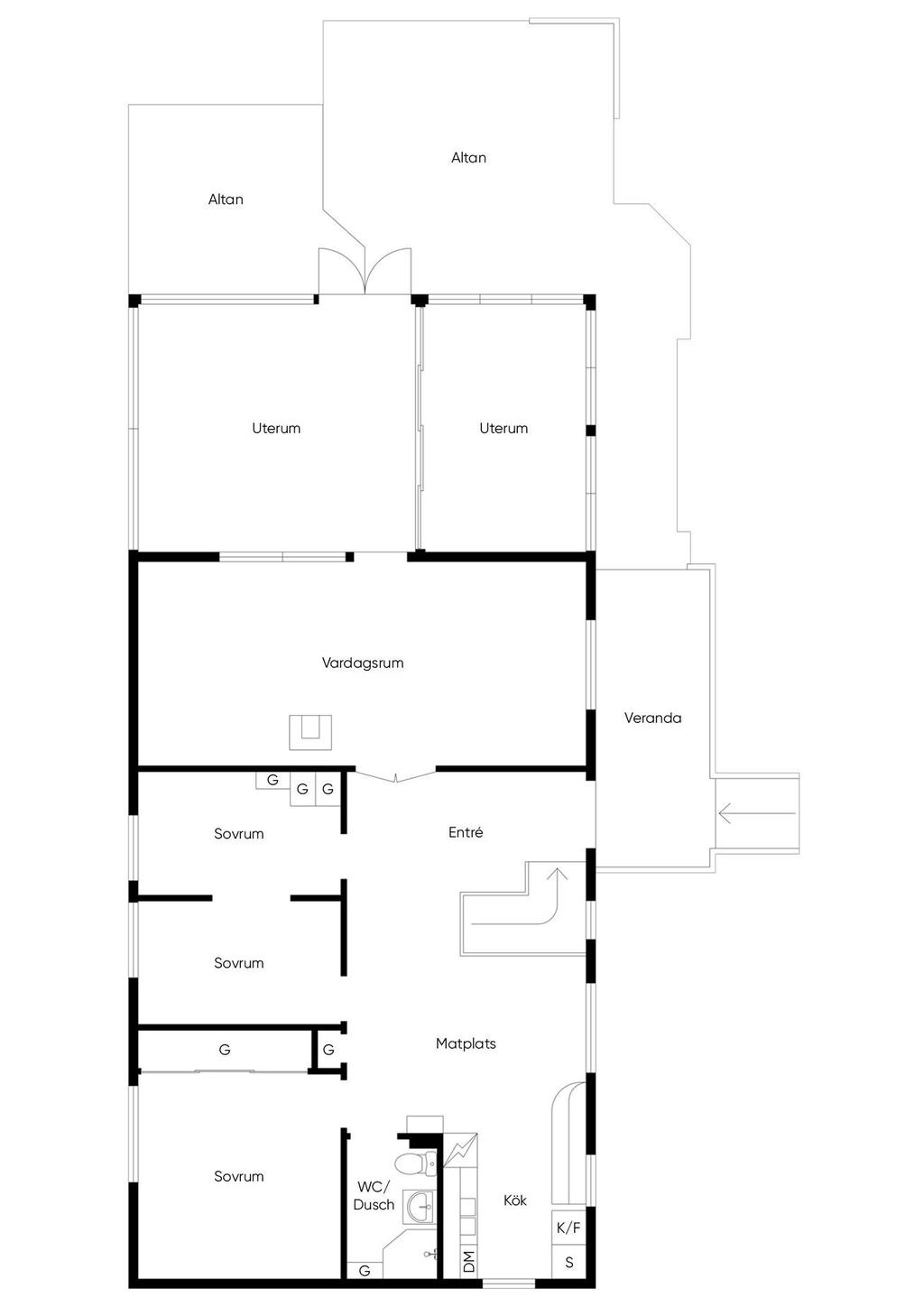
Välkommen till Södra Hökhuvudsvägen 10 och denna trivsamma enplansvilla med källare! Detta är en hemtrevlig och genomtänkt villa där varje yta är smart disponerad. Här bor du i ett stillsamt område med närhet till både natur och service, samtidigt som huset erbjuder generösa utrymmen för ett bekvämt familjeliv.

Entréplanet rymmer ett badrum, ett större sovrum samt två mindre sovrum som passar utmärkt som gästrum eller barnens rum. Köket och matplatsen ligger i en öppen planlösning som skapar en social yta där familj och vänner enkelt kan samlas.

Vardagsrummet fungerar som hemmets naturliga mittpunkt. Ljuset strömmar in genom fönstren och den stämningsfulla kaminen skapar en varm och inbjudande atmosfär. Härifrån kliver du rakt ut till husets trivsamma uteplatser som vetter mot skogen och skapar en privat och rofylld miljö. Här finns både en uteplats under tak med spabad och ett inglasat uterum som kan nyttjas redan under tidig vår och långt in på sen höst, samt flera öppna uteplatser utan tak – perfekta för soliga dagar och socialt umgänge utomhus.

Den rymliga källaren öppnar upp för många möjligheter, oavsett om du behöver extra förvaring, ett hobbyrum eller vill skapa mer boyta. Här finner du idag badrum, tvättstuga, toalett, allrum, ett sovrum, två mindre förråd och garaget – en smidig lösning med gott om förvaringsmöjligheter.

Husets charmiga fasad och fina fönsterpartier ger ett tidlöst uttryck. Den breda asfalterade garageuppfarten välkomnar dig hem och i direkt anslutning når du garaget. Här finns gott om plats för flera bilar och en smidig vardag.

På baksidan väntar en stor, grönskande trädgård – perfekt för både odling och lek. Här ryms allt från planteringar och studsmatta till sociala ytor, och trädgården pryds av tre vackra äppelträd, ett päronträd och ett körsbärsträd som bjuder på blomsterprakt och frukt under säsongen. Ett separat uthus ger dessutom praktisk förvaring för ved, trädgårdsredskap och säsongsverktyg.

Från huset är det ca 6 km till Gimo som har en genuin bruksmiljö och här finner ni alla bekvämligheter som matbutik, café, vårdcentral, skola, gym, simhall m.m. Busshållplats finns ca 200 meter från huset. Från Hökhuvud är det bra pendlarläge med buss eller bil till övriga orter i kommunen och till Uppsala. För den som gillar bad och fiske finns sjön Gimodammen med sandstrand och fina strövområden i naturen runt sjön.

Välkommen på visning!

Om Bostaden

Sammanfattning

Typ: Villa
Rum: 4, varav 3 sovrum
Boarea: 91 m2
Biarea: 90 m2
Tomtarea: 1 078 m2
Utgångspris: 2 195 000 kr
Byggnadsår: 1968
Driftkostnad: 45 103 kr/år
Upplåtelseform: Äganderätt

Kommentar till boarean

Boareauppgift enligt: Lantmäteriet

Uppvärmning

Direktverkande el, luft/luft vp och kamin

Byggnadssätt

Vatten: Kommunalt vatten året om
Avlopp: Kommunalt avlopp
Grund: Källare
Stomme: Trä
Fasad: Stående träpanel
Fönster: 3-glasfönster
Takbeklädnad: Plåt
Utvändiga plåtarbeten: Plåt
Ventilation: Självdrag
Murstock: Skorsten av plåt

Renoveringar

Dränering 2015 , tilläggsisolering, panelat om, rustat ytskikt i alla rum, renovering av alla badrum, ny vatten och avloppsrör, altaner, uterum, ny kamin + skorsten

Tomt/balkong/uteplats

Uteplats på bostadens baksida som sträcker sig mot skogen samt inglasat uterum.

Övriga byggnader

Vedbod och förråd.

Parkering

Garageuppfart intill huset samt garage.

Tv/Internetanslutning

Fiber.

Allmänt

Län: Uppsala
Kommun: Östhammar
Fastighetsbeteckning: ÖSTHAMMAR RODDARNE 6:36

Planbestämmelser

Del av hökhuvuds kyrktrakt, Byggnadsplan (Beslutsdatum: 1960-07-15, Senast ändrad: 2024-01-03)

Ekonomi

Utgångspris

2 195 000 kr

Driftkostnader

45 103 kr/år
Årlig elförbrukning: 14166 kWh/år
Antal i hushållet: 4

Fördelas enligt följande

El: 29 121 kr
Vatten och avlopp: 12 792 kr
Renhållning: 2 090 kr
Sotning: 1 100 kr

Utöver ovanstående eventuella driftkostnader tillkommer fastighetsavgift med belopp om 10 425 kr.

Observera att driftskostnaderna som anges ovan baseras på säljarens faktiska kostnader det senaste året om inget annat särskilt anges.
Vilka driftskostnader köparen kommer att ha beror på hur bostaden kommer att användas, vilka abonnemang som kommer att tecknas och övriga omständigheter i det enskilda fallet.

Taxering

Byggnad: 1 209 000 kr
Mark: 285 000 kr
Totalt: 1 494 000 kr
Taxeringsår: 2024
Taxeringsvärdet är: Fastställt
Värdeår: 1968
Standardpoäng: 44
Typkod: 220, Småhusenhet, bebyggd

Pantbrev

Det finns 4 pantbrev uttaget om sammanlagt 681 000 kr.

Energideklaration

Status: Energideklaration är beställd

Försäkring

Svensk Fastighetsförmedling samarbetar med If för att underlätta ditt bostadsköp. När du köper bostad eller fritidshus genom Svensk Fastighetsförmedling är den automatiskt försäkrad. Vi kallar det Flytta in-försäkring. Den är kostnadsfri och gäller under de första 30 dagarna. Fortsätter du sedan att försäkra hemmet eller fritidshuset hos If får du 10% rabatt och flera andra unika förmåner. Fråga din mäklare för att ta del av erbjudandet.

Alla bilder

+ 38 Visa alla 44 bilder
 

Planritning

Karta och område

Södra Hökhuvudsvägen 10, Gimo

Kalkyl

Vad kostar nya boendet?

Fler värden

Här nedanför kan du ändra ränta, amortering och driftkostnader och se hur de påverkar kalkylen.

Återställ alla värden
Visa fler

Ränta

Amortering

Driftkostnad per månad

Driftkostnad/månad

Observera att driftskostnaderna som anges ovan baseras på säljarens faktiska kostnader det senaste året om inget annat särskilt anges.

Vilka driftskostnader köparen kommer att ha beror på hur bostaden kommer att användas, vilka abonnemang som kommer att tecknas och övriga omständigheter i det enskilda fallet.

Boendekostnad per månad

Ränta
+  kr
Driftkostnad
+  kr
Fastighetsskatt/-avgift
+ 869 kr
Skattereduktion
 kr
Summa
ca  kr
Amortering
+  kr
Inkl amortering
ca  kr

Ansök om lånelöfte

Hos vårt systerbolag Ordna Bolån kan du enkelt ansöka om lånelöfte eller bolån. En ansökan, svar från flera banker.

Intresseformulär

Fyll i formuläret så kontaktar vi dig inom kort.

Kontaktuppgifter
Vänligen ange förnamn
Vänligen ange efternamn
Vänligen ange telefonnummer
Vänligen ange e-post
500 tecken kvar
Har du lånelöfte?*
Vill du ha hjälp med lånelöfte?
Vill du få nyheter och erbjudanden?

Oj, något gick fel! Försök igen. 

Ett ögonblick!
Tack, dina uppgifter är sparade!
Du fyllde inte i någon e-postadress. Ange den nedan för att inte missa någon information.
 
 
 
Ta del av vår integritetspolicy
 
 
 

Liknande bostäder till salu

Östhammar
Södra Hökhuvudsvägen 10
Dela bostad: Dela på Facebook Dela med epost Dela med sms Kopiera länk Länken kopierad

Planritning