Hoppa till innehåll
Åkersberga

Bladvägen 26

Välplanerat enplanshus med generösa ytor och solig altan med utsikt över Röllingbyängarna

  • Typ: Villa, Enplanshus med källare
  • Rum: 4, varav 3 sovrum
  • Boarea: 120 m2
  • Biarea: 108 m2
  • Tomtarea: 780 m2
  • Byggnadsår: 1968
  • Driftkostnad: 71 453 kr/år
  • Upplåtelseform: Äganderätt

Välkommen till ett trevligt och mycket väl omhändertaget enplanshus med källare på attraktiva Bladvägen i populära Åkerstorp, Åkersberga – ett hem som erbjuder både funktion och generösa ytor för hela familjen.

Entréplanet bjuder på ett ljust och välplanerat kök med goda arbetsytor samt matplats vid fönstret, ett rymligt vardagsrum där stora fönsterpartier skapar ett härligt ljusinsläpp. Härifrån nås den soliga altanen i bästa söderläge, med fri utsikt över Röllingbyängarna– en perfekt plats för avkoppling, umgänge och sommarens alla måltider. Vidare finns tre bra sovrum, ett helkaklat badrum som renoverades 2014, en praktisk gäst-wc samt en funktionell tvättstuga med grovingång.

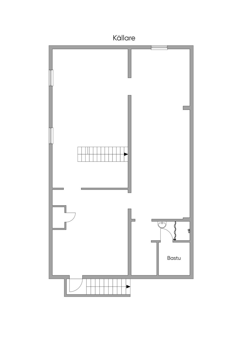
Källarplanet, som renoverades 2024, erbjuder fantastiska ytor som verkligen förhöjer husets användbarhet. Här finns generösa sällskapsytor, ett uppskattat “pingisrum” för både lek och aktivitet, ett fräscht duschrum med bastuutrymme (ytterligare lavar finns att montera men aggregat saknas) samt en verkstadsdel med egen ingång – perfekt för hobbyverksamhet eller eget projektutrymme.

Tomten inbjuder till lek och utomhusaktiviteter och bjuder på ett härligt, ogenerat läge – en fri och naturnära oas som ger en känsla av lugn och rymd. På tomten finns även en asfalterad uppfart med garage (sammanbyggt med grannens) samt en praktisk förrådsdel.

Här bor du i ett lugnt och familjevänligt område med närhet till skolor, natur, kommunikationer och service. Ett hem som kombinerar komfort, flexibilitet och ett attraktivt läge – varmt välkommen på visning!

Om Bostaden

Sammanfattning

Typ: Villa, Enplanshus med källare
Rum: 4, varav 3 sovrum
Boarea: 120 m2
Biarea: 108 m2
Tomtarea: 780 m2
Pris (Utgångspris): 4 995 000 kr
Byggnadsår: 1968
Driftkostnad: 71 453 kr/år
Upplåtelseform: Äganderätt
Inflyttning: Enligt överenskommelse

Kommentar till boarean

Boareauppgift enligt: Lantmäteriet

Uppvärmning

Direktverkande el

Byggnadssätt

Vatten: Kommunalt vatten året om
Avlopp: Kommunalt avlopp
Fasad: Målad plåtfasad
Fönster: 2- och 3-glasfönster isoler, 2-glas kopplade på källarplanet
Takbeklädnad: Plåt
Ventilation: Självdrag
Radon: Radonmätning gjord 2006 med godkänt resultat, under gränsvärdet.

Renoveringar

2012 Bytt fönster
2013 Fasadmålning
2014 Badrum renoverat
2016 Ny garageport
2018 Bytt radiatorer
2023 Nytt tak på garage
2024 Ventilation rengjord
2024 Källare renoverad
2025 Ny varmvattenberedare

Tomt/balkong/uteplats

I söderläge finns en inhängnad träaltan med markiser, med utgång från vardagsrummet.
Välskött trädgårdstomt med flera buskar och planteringar. Häck löper längst med baksidan mot Röllingbyängarna.

Övriga byggnader

Garage med plats för parkering av en bil samt fårrådsdel.

Parkering

Asfalterad infart samt garage som är sammanbyggt med grannens.

Allmänt

Län: Stockholm
Kommun: Österåker
Fastighetsbeteckning: ÖSTERÅKER SMEDBY 19:221

Omgivning

Åkerstorp i Åkersberga är ett omtyckt och familjevänligt område med lugn villakaraktär och lite trafik. Här bor du i ett tryggt kvarter med närhet till grönområden och vackra Röllingbyängarna, som bjuder in till promenader och lek. I området finns förskolor, skolor och lekplatser, och på bekvämt avstånd ligger Åkersberga centrum med butiker, restauranger och service. Promenadavstånd till omtyckta Trevehallen med sitt breda sortiment av matvaror. Goda kommunikationer via Roslagsbanan och bussar gör det enkelt att ta sig mot Stockholm. Ett naturnära och bekvämt boende med allt du behöver inom räckhåll.

Vägbeskrivning

Goda kommunikationer med närhet till Roslagsbanan och bussar som smidigt tar dig till Stockholm, Danderyd och övriga delar av Österåkers kommunen. För den som pendlar med bil nås större vägar enkelt, vilket gör vardagen flexibel och bekväm.

Planbestämmelser

Ekbackenområdet, Byggnadsplan (Beslutsdatum: 1962-10-30, Senast ändrad: 2025-01-22)

Övriga rättigheter och belastningar

Gemensamhetsanläggning: ÖSTERÅKER ÅKERSTORP GA:1 - VÄGAR MED TILLHÖRANDE ANORDNINGAR OCH GRÖNOMRÅDE
Rättigheter last: Avtalsservitut: KRAFTLEDNING - SE BESKRIVNING
Avtalsrättigheter: Avtalsservitut KRAFTLEDNING

Ekonomi

Pris (Utgångspris)

4 995 000 kr

Driftkostnader

71 453 kr/år
Antal i hushållet: 2

Fördelas enligt följande

El: 58 776 kr
Vatten och avlopp: 7 084 kr
Väg: 2 300 kr
Försäkringskommentar: Nuvarande ägares försäkringskostnad är 8982 kr/år. Kontakta ditt försäkringsbolag för offert.
Renhållning: 3 293 kr

Utöver ovanstående eventuella driftkostnader tillkommer fastighetsavgift med belopp om 10 425 kr.

Observera att driftskostnaderna som anges ovan baseras på säljarens faktiska kostnader det senaste året om inget annat särskilt anges.
Vilka driftskostnader köparen kommer att ha beror på hur bostaden kommer att användas, vilka abonnemang som kommer att tecknas och övriga omständigheter i det enskilda fallet.

Taxering

Byggnad: 2 414 000 kr
Mark: 1 727 000 kr
Totalt: 4 141 000 kr
Taxeringsår: 2024
Taxeringsvärdet är: Fastställt
Värdeår: 1968
Standardpoäng: 32
Typkod: 220, Småhusenhet, bebyggd

Pantbrev

Det finns 8 pantbrev uttaget om sammanlagt 500 000 kr.

Energideklaration

Status: Energideklaration är utförd
Energiprestanda: 149 kWh/kvm/år
Energiklass: EE
Specifik energianvändning: 83 kWh/kvm/år
Energideklaration utförd: 2026-04-28

Försäkring

Svensk Fastighetsförmedling samarbetar med If för att underlätta ditt bostadsköp. När du köper bostad eller fritidshus genom Svensk Fastighetsförmedling är den automatiskt försäkrad. Vi kallar det Flytta in-försäkring. Den är kostnadsfri och gäller under de första 30 dagarna. Fortsätter du sedan att försäkra hemmet eller fritidshuset hos If får du 10% rabatt och flera andra unika förmåner. Fråga din mäklare för att ta del av erbjudandet.
Trygg affär - Varudeklarerad Villa

Alla bilder

+ 17 Visa alla 23 bilder
 

Planritning

Karta och område

Bladvägen 26, Åkersberga

Kalkyl

Vad kostar nya boendet?

Fler värden

Här nedanför kan du ändra ränta, amortering och driftkostnader och se hur de påverkar kalkylen.

Återställ alla värden
Visa fler

Ränta

Amortering

Driftkostnad per månad

Driftkostnad/månad

Observera att driftskostnaderna som anges ovan baseras på säljarens faktiska kostnader det senaste året om inget annat särskilt anges.

Vilka driftskostnader köparen kommer att ha beror på hur bostaden kommer att användas, vilka abonnemang som kommer att tecknas och övriga omständigheter i det enskilda fallet.

Boendekostnad per månad

Ränta
+  kr
Driftkostnad
+  kr
Fastighetsskatt/-avgift
+ 869 kr
Skattereduktion
 kr
Summa
ca  kr
Amortering
+  kr
Inkl amortering
ca  kr

Ansök om lånelöfte

Hos vårt systerbolag Ordna Bolån kan du enkelt ansöka om lånelöfte eller bolån. En ansökan, svar från flera banker.

Visningsanmälan

Fyll i formuläret så kontaktar vi dig inom kort.

Välj mellan nedan alternativ
Söndag 10 maj
Anmälan krävs

Bladvägen 26, 184 32 Åkersberga
Välkommen! Vänligen föranmäl dig till visningen på vår hemsida.
Jag vill veta mer om bostaden

Kontaktuppgifter
Vänligen ange förnamn
Vänligen ange efternamn
Vänligen ange telefonnummer
Vänligen ange e-post
500 tecken kvar
Har du lånelöfte?*
Vill du ha hjälp med lånelöfte?
Vill du få nyheter och erbjudanden?

Oj, något gick fel! Försök igen. 

Ett ögonblick!
Tack, dina uppgifter är sparade!
Du fyllde inte i någon e-postadress. Ange den nedan för att inte missa någon information.
 
 
 
Ta del av vår integritetspolicy
 
 
 

Liknande bostäder till salu

Österåker
Bladvägen 26
Dela bostad: Dela på Facebook Dela med epost Dela med sms Kopiera länk Länken kopierad

Planritning