Hoppa till innehåll
Edsbro

Hallonsveden 16

Charmigt timmerhus med ett privat och ostört läge med sjöglimt över sjön Sottern

  • Typ: Villa, 1-plans fritidshus byggt i timmer
  • Rum: 3, varav 2 sovrum
  • Boarea: 55 m2
  • Tomtarea: 2 130 m2
  • Byggnadsår: 1988
  • Driftkostnad: 19 037 kr/år
  • Upplåtelseform: Äganderätt

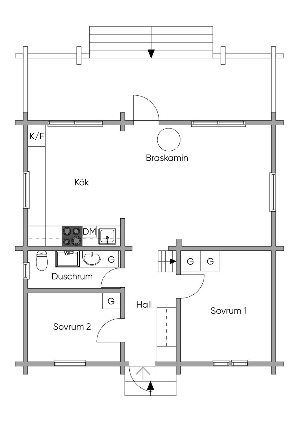
Välhållet timmerhus beläget i Smara/Edsbro med närhet till sjön Sottern. Fastigheten har ett privat och ostört läge längst in på återvändsväg, med sjöglimt mellan träden som bidrar till en rogivande miljö.

Huvudbyggnaden rymmer två sovrum, ett rymligt allrum med täljstenskamin med öppen planlösning mot köket. Detta ger bra sällskapsytor för hela familjen. Utgång till altan från allrummet. Köket är renoverat 2022 och är smakfullt och funktionellt. Därutöver finns även ett sovloft som ger extra sovplatser samt ett duschrum med separettoa.

På tomten finns ett välhållet gästhus med tillhörande snickarverkstad, uppfört år 2000. Detta ger goda möjligheter för både övernattande gäster och hobbyverksamhet. Vidare på tomten finns bastutunna, lusthus samt friggebod, vilket kompletterar fastigheten och skapar flera användbara utemiljöer.

Fastigheten är belägen i ett naturnära område med närhet till sjö och rekreation, samtidigt som det privata läget ger en avskild och lugn atmosfär.

Om Bostaden

Sammanfattning

Typ: Villa, 1-plans fritidshus byggt i timmer
Rum: 3, varav 2 sovrum
Boarea: 55 m2
Tomtarea: 2 130 m2
Utgångspris: 1 400 000 kr
Byggnadsår: 1988
Driftkostnad: 19 037 kr/år
Upplåtelseform: Äganderätt

Kommentar till boarean

Boareauppgift enligt: Lantmäteriet

Uppvärmning

Värmepump luft-luft, direkt el samt braskamin

Byggnadssätt

Vatten: Sommarvatten
Avlopp: Tvåkammarbrunn
Grund: Plintar
Stomme: Trä
Bjälklag: Trä
Fasad: Timmer
Fönster: 2-glasfönster
Takbeklädnad: Shingel
Ventilation: Självdrag

Tomt/balkong/uteplats

Trälagd altan
Huset ligger fint beläget med ett privat läge som sista tomt endast 100 meter från sjön Sottern.

Övriga byggnader

Attefallshus byggt 2020 med sovrum och snickarverkstad, friggebod, lusthus, bastu samt ett mindre förråd.

Parkering

Parkeringsplatser vid fastigheten

Tv/Internetanslutning

Fiber finns indraget

Allmänt

Län: Stockholm
Kommun: Norrtälje
Fastighetsbeteckning: NORRTÄLJE SMARA 2:61

Kommunikationer

Ca 1 800 meter till busshållplats

Planbestämmelser

Smara 2:9,2:6a,b m fl, Byggnadsplan (Beslutsdatum: 1968-04-01, Senast ändrad: 2023-02-24)

Övriga rättigheter och belastningar

Gemensamhetsanläggning: NORRTÄLJE SMARA GA:2 - VÄG:VÄGBANA OCH ÖVRIGA VÄGANORDNINGAR SÅSOM DIKE,SLÄNT,TRUMMA,MÖTESPLATS,VÄNDPLATS,BUSSVÄNDPLATS OCH VÄGMÄRKEN.

Ekonomi

Utgångspris

1 400 000 kr

Driftkostnader

19 037 kr/år
Årlig elförbrukning: 5300 kWh/år
Antal i hushållet: 1

Fördelas enligt följande

El: 12 000 kr
Väg: 2 392 kr
Försäkring: 2 597 kr
Renhållning: 1 300 kr
Sotning: 748 kr

Utöver ovanstående eventuella driftkostnader tillkommer fastighetsavgift med belopp om 8 520 kr.

Observera att driftskostnaderna som anges ovan baseras på säljarens faktiska kostnader det senaste året om inget annat särskilt anges.
Vilka driftskostnader köparen kommer att ha beror på hur bostaden kommer att användas, vilka abonnemang som kommer att tecknas och övriga omständigheter i det enskilda fallet.

Taxering

Byggnad: 576 000 kr
Mark: 560 000 kr
Totalt: 1 136 000 kr
Taxeringsår: 2024
Taxeringsvärdet är: Fastställt
Värdeår: 1988
Standardpoäng: 22
Typkod: 220, Småhusenhet, bebyggd

Pantbrev

Det finns 6 pantbrev uttaget om sammanlagt 410 000 kr.

Energideklaration

Status: Energideklaration behövs ej

Försäkring

Svensk Fastighetsförmedling samarbetar med If för att underlätta ditt bostadsköp. När du köper bostad eller fritidshus genom Svensk Fastighetsförmedling är den automatiskt försäkrad. Vi kallar det Flytta in-försäkring. Den är kostnadsfri och gäller under de första 30 dagarna. Fortsätter du sedan att försäkra hemmet eller fritidshuset hos If får du 10% rabatt och flera andra unika förmåner. Fråga din mäklare för att ta del av erbjudandet.

Alla bilder

+ 20 Visa alla 26 bilder
 

Planritning

Karta och område

Hallonsveden 16, Edsbro

Kalkyl

Vad kostar nya boendet?

Fler värden

Här nedanför kan du ändra ränta, amortering och driftkostnader och se hur de påverkar kalkylen.

Återställ alla värden
Visa fler

Ränta

Amortering

Driftkostnad per månad

Driftkostnad/månad

Observera att driftskostnaderna som anges ovan baseras på säljarens faktiska kostnader det senaste året om inget annat särskilt anges.

Vilka driftskostnader köparen kommer att ha beror på hur bostaden kommer att användas, vilka abonnemang som kommer att tecknas och övriga omständigheter i det enskilda fallet.

Boendekostnad per månad

Ränta
+  kr
Driftkostnad
+  kr
Fastighetsskatt/-avgift
+ 710 kr
Skattereduktion
 kr
Summa
ca  kr
Amortering
+  kr
Inkl amortering
ca  kr

Ansök om lånelöfte

Hos vårt systerbolag Ordna Bolån kan du enkelt ansöka om lånelöfte eller bolån. En ansökan, svar från flera banker.

Visningsanmälan

Fyll i formuläret så kontaktar vi dig inom kort.

Välj mellan nedan alternativ
Lördag 9 maj
Öppen visning

Hallonsveden 16, 762 97 Edsbro
Välkomna på visningen. Anmäl er gärna till mäklaren för mer information.
Jag vill veta mer om bostaden

Kontaktuppgifter
Vänligen ange förnamn
Vänligen ange efternamn
Vänligen ange telefonnummer
Vänligen ange e-post
500 tecken kvar
Har du lånelöfte?*
Vill du ha hjälp med lånelöfte?
Vill du få nyheter och erbjudanden?

Oj, något gick fel! Försök igen. 

Ett ögonblick!
Tack, dina uppgifter är sparade!
Du fyllde inte i någon e-postadress. Ange den nedan för att inte missa någon information.
 
 
 
Ta del av vår integritetspolicy
 
 
 

Liknande bostäder till salu

Norrtälje
Hallonsveden 16
Dela bostad: Dela på Facebook Dela med epost Dela med sms Kopiera länk Länken kopierad

Planritning