Hoppa till innehåll
Edsbro

Fansättravägen 35

1½-plansvilla med pool och stor tomt nära Edsbro

  • Typ: Villa, 1 1/2-plansvilla
  • Rum: 4, varav 2-3 sovrum
  • Boarea: ca 165 m2
  • Biarea: ca 10 m2
  • Tomtarea: 10 897 m2
  • Byggnadsår: 1880
  • Driftkostnad: 34 829 kr/år
  • Upplåtelseform: Äganderätt

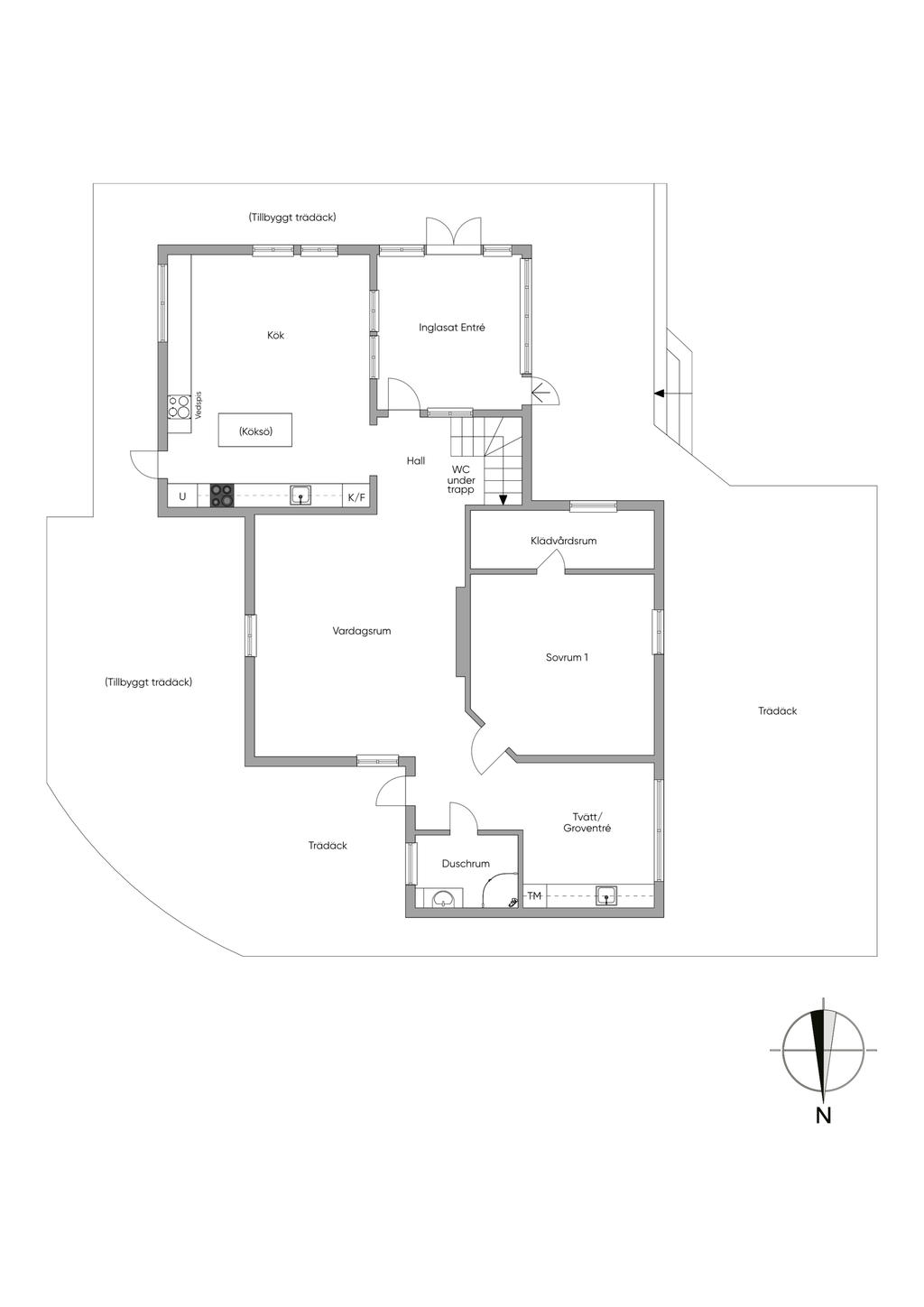
1½-plansvilla om ca 165 kvm knappt 5 km öster om Edsbro. Beläget ca 1.5 km från länsväg 280 i vacker Roslagsmiljö. Huvudbyggnaden uppfördes ursprungligen 1880 och byggdes till och renoverades 2008 av nuvarande ägare. Huset har två sovrum, allrum, modernt kök, vardagsrum, duschrum, separat WC, inglasat entrérum samt tvättstuga. På tomten finns ett altandäck som omgärdar huset och fortsätter ut mot poolen på baksidan av huset. I övrigt finns ett planteringshus och ett stort garage om 56 kvm på den tilltagna tomten som är på drygt 1 hektar. Välkommen att kontakta mäklaren Gunnar Schüler för mer information.

Om Bostaden

Beskrivning

Entré till inglasat rum med plastmatta på golvet. Fullt utrustat Ikeakök ca 10 år med grå Bodbyn luckor och laminatbänkskivor. Vedeldad kökspanna av typen Wamsler K158 som är kopplad till värmesystemet med accumulatortank. Vattenburen golvvärme i kök och vardagsrum. Vardagsrum med vitlaserad ekparkett. Sovrum med plats för dubbelsäng och stor klädkammardel. Duschrum med våtrumstapet och våtrumsmatta, renoverat ca 2010. Tvättstugan ligger intill duschrummet och det finns även en WC under trappan till övervåningen. På övre plan finns ett allrum samt ytterliare ett sovrum. Kakelugnen i sovrummet är ej i bruk.

Sammanfattning

Typ: Villa, 1 1/2-plansvilla
Rum: 4, varav 2 sovrum, möjlighet till 3 sovrum
Boarea: ca 165 m2
Biarea: ca 10 m2
Tomtarea: 10 897 m2
Pris (Utgångspris): 1 895 000 kr
Byggnadsår: 1880
Driftkostnad: 34 829 kr/år
Upplåtelseform: Äganderätt

Kommentar till boarean

Boareauppgift enligt: Ritning(ar)
Uppskattat utifrån ritningar

Uppvärmning

Vedpanna med elpatron och acc tank 500l, även luftvärmepump

Byggnadssätt

Vatten: Enskilt vatten året om från egen grävd brunn
Avlopp: Enskilt avlopp för BDT och WC, trekammarbrunn
Ventilation: Självdrag
Murstock: Skorsten av plåt, rör

Renoveringar

Om-/tillbyggnadsår: 2014

Övriga byggnader

"Pelargonhuset" invid huvudbyggnaden, betongplatta, ej vinterisolerat.
Garage 56 kvm, ej vinterisolerat, grusat golv. Tre skift leca, uppreglade väggar. Plåttak.

Allmänt

Län: Stockholm
Kommun: Norrtälje
Fastighetsbeteckning: NORRTÄLJE UNUNGE-KRAGSTA 1:24

Övriga rättigheter och belastningar

Gemensamhetsanläggning: NORRTÄLJE UNUNGE-KRAGSTA GA:1 - VÄG
Rättigheter förmån: Officialservitut: RÄTT ATT NYTTJA BEFINTLIG BRUNN A SAMT RÄTT ATT ANLÄGGA OCH BIBEHÅLLA VATTENLEDNING ENLIGT AKTBILAGA KA. - VATTENTÄKT

Övrigt

Vad säljaren uppskattat med fastigheten: Ljust och luftigt. Underbart uterum. Bra svamp och bärmarker. Trevliga grannar som inte är påträngande. Bra bussförbindelser till Norrtälje, Uppsala och Stockholm. En Ålandskryssning med buss till Grisslehamn är ett måste ibland. Alla årstider har fördelar och nackdelar. Vintern kan vara gnistrande klar med en underbar stjärnhimmel. Massa olika fåglar vid fågelbordet. På våren sjunger koltrast och bofink. Rabarber och sparris dyker upp. Blåsippor och vitsippor täcker marken. Sommaren kan tillbringas vid poolen om vädret tillåter. Hösten bjuder på äpplen, körsbär, plommon, hallon, björnbär, amerikanska blåbär och vindruvor från två stockar. Och om man har tur: en rejäl höststorm.

Ekonomi

Pris (Utgångspris)

1 895 000 kr

Driftkostnader

34 829 kr/år
Årlig elförbrukning: 4863 kWh/år
Antal i hushållet: 2

Fördelas enligt följande

El: 20 989 kr
Vatten och avlopp: 1 500 kr
Väg: 3 000 kr
Försäkring: 6 340 kr
Försäkringskommentar: Tre Kronor, fullvärde
Renhållning: 3 000 kr

Utöver ovanstående eventuella driftkostnader tillkommer fastighetsavgift med belopp om 10 074 kr.

Observera att driftskostnaderna som anges ovan baseras på säljarens faktiska kostnader det senaste året om inget annat särskilt anges.
Vilka driftskostnader köparen kommer att ha beror på hur bostaden kommer att användas, vilka abonnemang som kommer att tecknas och övriga omständigheter i det enskilda fallet.

Taxering

Byggnad: 858 000 kr
Mark: 755 000 kr
Totalt: 1 613 000 kr
Taxeringsår: 2024
Taxeringsvärdet är: Fastställt
Värdeår: 1986
Standardpoäng: 30
Typkod: 220, Småhusenhet, bebyggd

Pantbrev

Det finns 8 pantbrev uttaget om sammanlagt 995 000 kr.

Energideklaration

Status: Energideklaration är utförd
Energiprestanda: 155 kWh/kvm/år
Energiklass: EE
Specifik energianvändning: 182 kWh/kvm/år
Energideklaration utförd: 2025-09-26
Besiktningsman: Marzel Guzman

Försäkring

Svensk Fastighetsförmedling samarbetar med If för att underlätta ditt bostadsköp. När du köper bostad eller fritidshus genom Svensk Fastighetsförmedling är den automatiskt försäkrad. Vi kallar det Flytta in-försäkring. Den är kostnadsfri och gäller under de första 30 dagarna. Fortsätter du sedan att försäkra hemmet eller fritidshuset hos If får du 10% rabatt och flera andra unika förmåner. Fråga din mäklare för att ta del av erbjudandet.

Alla bilder

+ 23 Visa alla 29 bilder
 

Planritning

Karta och område

Fansättravägen 35, Edsbro

Visa avstånd som lista:
Avstånd avser alltid fågelvägen

Kalkyl

Vad kostar nya boendet?

Fler värden

Här nedanför kan du ändra ränta, amortering och driftkostnader och se hur de påverkar kalkylen.

Återställ alla värden
Visa fler

Ränta

Amortering

Driftkostnad per månad

Driftkostnad/månad

Observera att driftskostnaderna som anges ovan baseras på säljarens faktiska kostnader det senaste året om inget annat särskilt anges.

Vilka driftskostnader köparen kommer att ha beror på hur bostaden kommer att användas, vilka abonnemang som kommer att tecknas och övriga omständigheter i det enskilda fallet.

Boendekostnad per månad

Ränta
+  kr
Driftkostnad
+  kr
Fastighetsskatt/-avgift
+ 840 kr
Skattereduktion
 kr
Summa
ca  kr
Amortering
+  kr
Inkl amortering
ca  kr

Ansök om lånelöfte

Hos vårt systerbolag Ordna Bolån kan du enkelt ansöka om lånelöfte eller bolån. En ansökan, svar från flera banker.

Visningsanmälan

Fyll i formuläret så kontaktar vi dig inom kort.

Välj mellan nedan alternativ
Söndag 3 maj

Fansättravägen 35, 762 98 Edsbro
Anmäl er gärna till visningen.
Jag vill veta mer om bostaden

Kontaktuppgifter
Vänligen ange förnamn
Vänligen ange efternamn
Vänligen ange telefonnummer
Vänligen ange e-post
500 tecken kvar
Har du lånelöfte?*
Vill du ha hjälp med lånelöfte?
Vill du få nyheter och erbjudanden?

Oj, något gick fel! Försök igen. 

Ett ögonblick!
Tack, dina uppgifter är sparade!
Du fyllde inte i någon e-postadress. Ange den nedan för att inte missa någon information.
 
 
 
Ta del av vår integritetspolicy
 
 
 

Liknande bostäder till salu

Norrtälje
Fansättravägen 35
Dela bostad: Dela på Facebook Dela med epost Dela med sms Kopiera länk Länken kopierad

Planritning