Hoppa till innehåll
 
Aktiv matchning
Aktiv matchning
Detta är en bostad som visas exklusivt på svenskfast.se. Mäklaren letar aktivt efter rätt köpare och uppgifter som pris och visningsdatum kan saknas. Anmäl ditt intresse för att få alla uppdateringar och mer information om denna bostad.
Vill du veta mer om bostaden?
Nacka

Barnhemsvägen 21

Aktiv matchning
Aktiv matchning
Detta är en bostad som visas exklusivt på svenskfast.se. Mäklaren letar aktivt efter rätt köpare och uppgifter som pris och visningsdatum kan saknas. Anmäl ditt intresse för att få alla uppdateringar och mer information om denna bostad.
Vill du veta mer om bostaden?

Friköpt radhus med ett fantastiskt solläge och en enastående utsikt över Bastusjön.

  • Typ: Radhus, 2-plans radhus i souterräng
  • Rum: 4, varav 3 sovrum
  • Boarea: 125 m2
  • Tomtarea: 113 m2
  • Byggnadsår: 2007
  • Driftkostnad: 54 664 kr/år
  • Upplåtelseform: Äganderätt

- Dubbla balkonger ut mot Bastusjön i Skuru
- Två badrum
- Modernt kök med gott om förvaring och arbetsyta
- Öppen planlösning mellan kök och vardagsrum
- Högt i tak - som skapar ljus och rymd i flertalet rum
- Badrocksavstånd ner till sjön
- Altan utanför entrén

Friköpt radhus med ett fantastiskt solläge och en enastående utsikt över Bastusjön i eftertraktade Skuru.

Här bor du i ett modernt och ljust hem med fina ytskikt. I köket tog man ner en vägg och ersatte den men en köksö vilket har skapat en öppen och ljus planlösning mellan kök och vardagsrum. Köket har skåp hela vägen upp till tak, samt gott om arbetsyta. För den matlagningsintresserade har man installerat en högkvalitativ spis/ugn med både gas och el. Bostaden erbjuder två badrum, rikligt med ljusinsläpp samt två stycken balkonger med en underbar sjöutsikt som sätter extra guldkant på vardagen.
I anslutning till entrén har man byggt en altan där man kan njuta av frukosten i morgonsolen.
Huset är i mycket gott skick och ger ett bekvämt och lättskött boende. Parkeringsplats finns i anslutning till bostaden. Ett hem med alla möjligheter att bli ert drömboende under många år framöver.

Som säljarna själva beskriver det: "Vi flyttade hit från innerstaden Kungsholmen och allt kändes rätt från början när vi klev in i hallen. Hela familjen har stortrivts i nacka och våra barn har växt upp här. Nu är det dags för någon annan att flytta in i detta underbara område. Vardagsrum och kök i öppen planlösning. Stora fönsterpartier mot sjön från båda våningsplanen.
Närhet till Stockholms innerstad 20min med cykel. Här bor man nära naturen men fortfarande nära stan, Vi har en underbar sjöutsikt över en liten sjö med 1 minuts gångväg till brygga och på andra sidan sjön en mindre sandstrand Närhet till Nacka forum som har det mesta. På sjön vintertid när isen lagt sig och är stabil brukar man ploga upp för skridsko åkning och längdskidor, Nyckelviken är ett stenkast bort där man kan fira maj brasa och midsommar eller bara varandra runt på stigarna eller besöka herrgården."

I Nacka kommun bor det drygt 100 000 invånare. En kommun som karaktäriseras av ett citynära läge, natur, hav och ett flertal shoppingcenter. Här bor man med närhet till kommunikationer i form av bussar, båtar, tvärbanan och Saltsjöbanan. En jämn ström av bussar tar dig enkelt till och från Slussen där tunnelbanans gröna och röda linje sedan tar dig vidare inom Stockholms stad.

SL:s pendelbåt Linje 80 trafikeras mellan Ropsten och Nybroplan, via Frihamnen - Lidingö/Dalénum -Nacka strand - Blockhusudden - Kvarnholmen - Finnboda - Saltsjöqvarn - Allmänna gränd. Från kustlinjen i Nacka kan du dessutom enkelt ta dig till Stockholms skärgård via Fjäderholmslinjen, Strömma och Waxholmsbolaget.

I Sickla kan du med Tvärbanans linje 30 ta dig hela vägen till Solna Station, via bland annat Gullmarsplan, Årstaberg och Alvik. Saltsjöbanan går vanligtvis mellan Slussen och Saltsjöbaden/Solsidan. På grund av nuvarande upprustning av banan samt ombyggnation i Slussen kan den ursprungliga resvägen påverkas. Blå tunnelbanelinje från Kungsträdgården förlängs med tre nya tunnelbanestationer i Nacka. Trafiken beräknas i dagsläget att starta år 2030.

Nacka Kommun har över tiotalet uppskattade och fantastiska naturreservat. De större är Nackareservatet, Velamsund, Nyckelviken och Skogsö. Det är alltid nära till havet då kommunens kuststräcka är över tio mil lång. Det finns även flertalet fina insjöar med möjlighet till både klipp- och strandbad.

Mitt i Nacka Kommun ligger Nacka Sjukhus där det även finns en närakut. Runt om i kommunen finns det även gott om lokala vårdcentraler. Här finns det dessutom goda utbildningsmöjligheter oavsett ålder. Allt från förskolor för dom små, grundskola och gymnasieskolor för de äldre.

För dig som är sportintresserad finns det många platser att besöka varav Hammarbybacken, Nacka GK eller Saltsjöbadens GK, Hellasgården och Nyckelviken är några av de mest populära. Dessutom finns det gott om gymanläggningar, simhallar, idrottsplatser, ishallar, padel- och tennishallar etc.

Utöver lokala centrum är Nacka Forum och Sickla köpkvarter två attraktiva shoppingcenter. För större matinköp finns ICA Maxi som är en välkänd stormarknad. I Dieselverkstadens gamla lokaler finner du även Filmstaden Sickla.

Om Bostaden

Sammanfattning

Typ: Radhus, 2-plans radhus i souterräng
Rum: 4, varav 3 sovrum
Boarea: 125 m2
Tomtarea: 113 m2
Byggnadsår: 2007
Driftkostnad: 54 664 kr/år
Upplåtelseform: Äganderätt

Kommentar till boarean

Boareauppgift enligt: Lantmäteriet
Observera att den exakta storleken inte är uppmätt. Som köpare rekommenderar vi att göra en uppmätning om man anser att den exakta ytan är av stor betydelse.

Uppvärmning

Frånluftsvärmepump med vattenburen värme och luft/luftvärmepump
Märke: IVT

Byggnadssätt

Vatten: Kommunalt vatten året om
Avlopp: Kommunalt avlopp
Grund: Souterrängplan/platta på mark med underliggande isolering och ingjuten vattenburen golvvärme
Stomme: Betong /trä
Fönster: 2-glas isoler och 2+1
Takbeklädnad: Pulpettak med parallelltaks konstruktion, dubbelfalsad plåt
Ventilation: Mekanisk frånluft med värmeåtervinning (FX)
Allmän information: Åtvidabergshus

Renoveringar

2023 Byggt en altan på framsida
2022 Installerat luft värmepump Samsung Nordic wind free 35 på övervåning för värme och ac
2018 Renoverat kök (Ikea)
2017 Nytt golv i större delen av övre våningsplan i vit ask

Parkering

P-plats i nära anslutning till bostaden

Tv/Internetanslutning

Fiber från Telia finns ett flertal fiber uttag placerade i olika rum.

Allmänt

Län: Stockholm
Kommun: Nacka
Område: Sicklaön
Fastighetsbeteckning: NACKA SICKLAÖN 51:27

Planbestämmelser

Dp 376, Detaljplan (Beslutsdatum: 2005-12-15, Registreringsdatum: 2006-02-01, Senast ändrad: 2024-01-26)

Övriga rättigheter och belastningar

Gemensamhetsanläggning: NACKA SICKLAÖN GA:70
NACKA SICKLAÖN GA:89
Rättigheter förmån: Officialservitut: RÄTT ATT ANVÄNDA MED P2 MARKERAD PLATS FÖR PARKERING. - PARKERING

Övrigt

Nacka kommun är en kommun i framkant och nya projekt är hela tiden på gång, bland annat kommer bostadsbebyggelsen att förtätas. Det är viktigt att du som köpare tar del av framtida idéer och planerna för området. Säljaren och fastighetsmäklaren uppmanar dig att kontakta Nacka stadsbyggnadsservice på info@nacka.se eller 08-718 80 00 för närmare information.

Nya tunnelbanan
Blå tunnelbanelinje byggs ut från Kungsträdgården och får två förgreningar från station Sofia på Södermalm. På Nackagrenen byggs stationerna Hammarby kanal, Sickla, Järla och slutstationen Nacka. Trafikstart är planerad till 2030. Läs mer här: https://nyatunnelbanan.se/nacka-soderort/

Fastighetsavgift/Fastighetsskatt
2026 tas en fastighetsavgift ut om 10 425 kr/år och fastighet. Den ersätter tidigare fastighetsskatt och regleras, enligt upplupen tid, på tillträdesdagen. Du behöver inte betala någon fastighetsavgift de första 15 åren för nybyggda småhus och ägarlägenheter som har värdeår 2012 och senare. Värdeåret är oftast det år då ditt hus var färdigbyggt. För obebyggda tomter gäller fortfarande 1% av taxeringsvärdet i fastighetsskatt.

Lagfartskostnad
1.5% av köpeskillingen för privatperson och 4,25% för företag samt en avgift om f.n. 825 kr.

Pantbrevskostnad
På nya pantbrev 2% av pantbrevsbeloppet samt en avgift om f.n 375 kr.

Budgivning
Vi tillämpar s.k. öppen budgivning. Detta innebär att alla kan få information om vilka bud som inkommit. Säljarna har fri prövningsrätt. Detta innebär att säljaren avgör när, hur, till vem samt för vilket pris säljaren säljer. Samtliga som deltar i budgivningen accepterar att fastighetsmäklaren lämnar ut budgivarnas namn och telefonnummer samt information om de bud som inkommer till den som köper bostaden. I det fall det kommer in bud till mäklaren efter att budgivningen är avslutad, men innan köpekontrakt är signerade, är mäklaren skyldig att framföra budet till säljaren som får avgöra om denne vill avfärda eller anta budet.

Ekonomi

Driftkostnader

54 664 kr/år
Årlig elförbrukning: 18280 kWh/år
Antal i hushållet: 4

Fördelas enligt följande

El: 36 146 kr
Försäkring: 1 176 kr
Samfällighet: 17 342 kr
Beskrivning: I samfällighetsavgiften ingår: Vatten, sophämtning, vinterunderhåll dvs snöröjning, gräsklippning av områden och yta som tillhör samfälligheten.

Utöver ovanstående eventuella driftkostnader tillkommer fastighetsavgift med belopp om 10 425 kr.

Observera att driftskostnaderna som anges ovan baseras på säljarens faktiska kostnader det senaste året om inget annat särskilt anges.
Vilka driftskostnader köparen kommer att ha beror på hur bostaden kommer att användas, vilka abonnemang som kommer att tecknas och övriga omständigheter i det enskilda fallet.

Taxering

Byggnad: 3 459 000 kr
Mark: 3 465 000 kr
Totalt: 6 924 000 kr
Taxeringsår: 2024
Taxeringsvärdet är: Fastställt
Värdeår: 2007
Standardpoäng: 32
Typkod: 220, Småhusenhet, bebyggd

Pantbrev

Det finns 3 pantbrev uttaget om sammanlagt 4 080 000 kr.

Energideklaration

Status: Energideklaration är utförd
Energiprestanda: 152 kWh/kvm/år
Energiklass: EE
Specifik energianvändning: 84 kWh/kvm/år
Energideklaration utförd: 2026-03-27
Besiktningsman: Jon Walgeborg, Anticimex

Försäkring

Svensk Fastighetsförmedling samarbetar med If för att underlätta ditt bostadsköp. När du köper bostad eller fritidshus genom Svensk Fastighetsförmedling är den automatiskt försäkrad. Vi kallar det Flytta in-försäkring. Den är kostnadsfri och gäller under de första 30 dagarna. Fortsätter du sedan att försäkra hemmet eller fritidshuset hos If får du 10% rabatt och flera andra unika förmåner. Fråga din mäklare för att ta del av erbjudandet.
Trygg affär - Varudeklarerad Villa

Alla bilder

+ 18 Visa alla 24 bilder
 

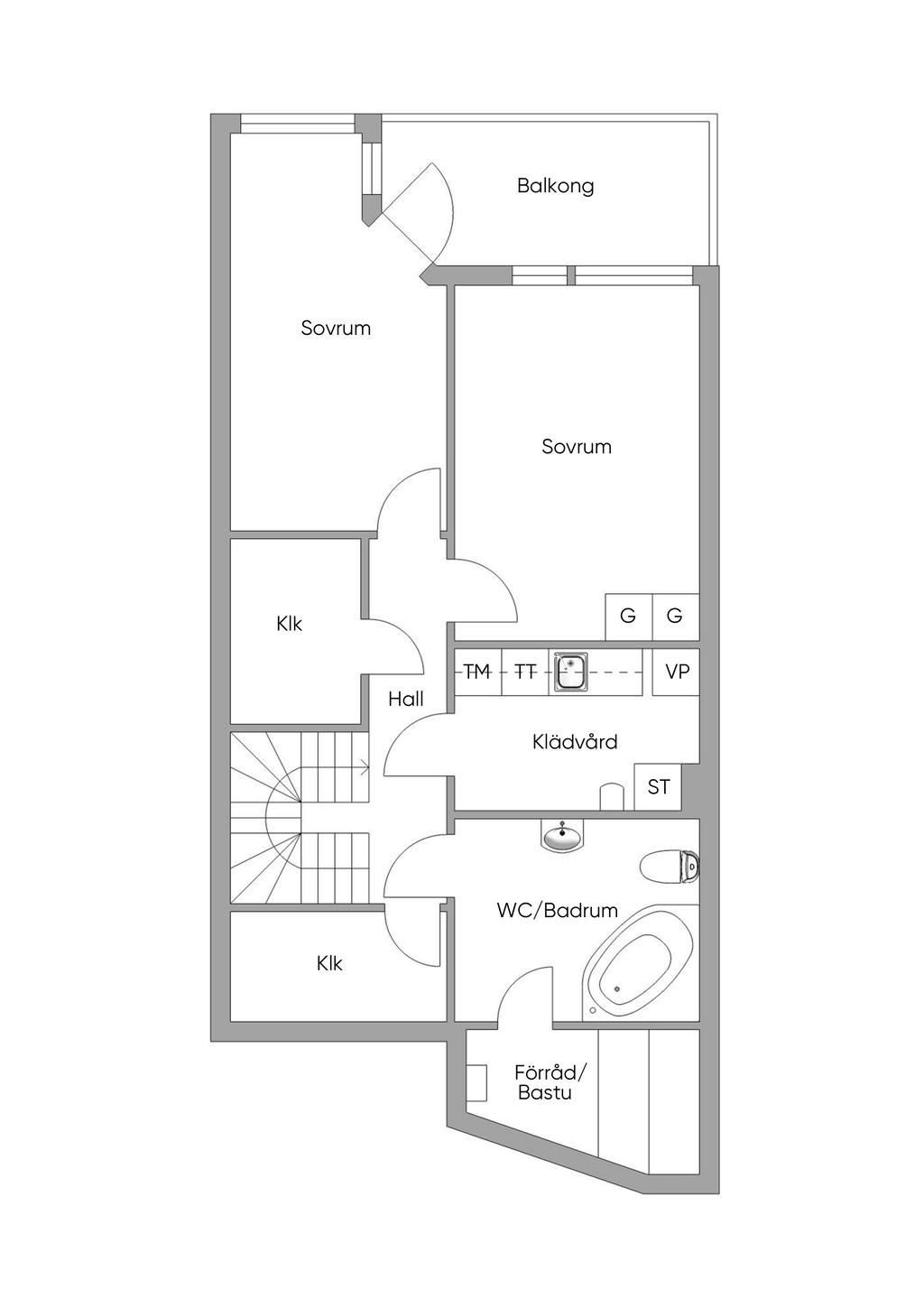
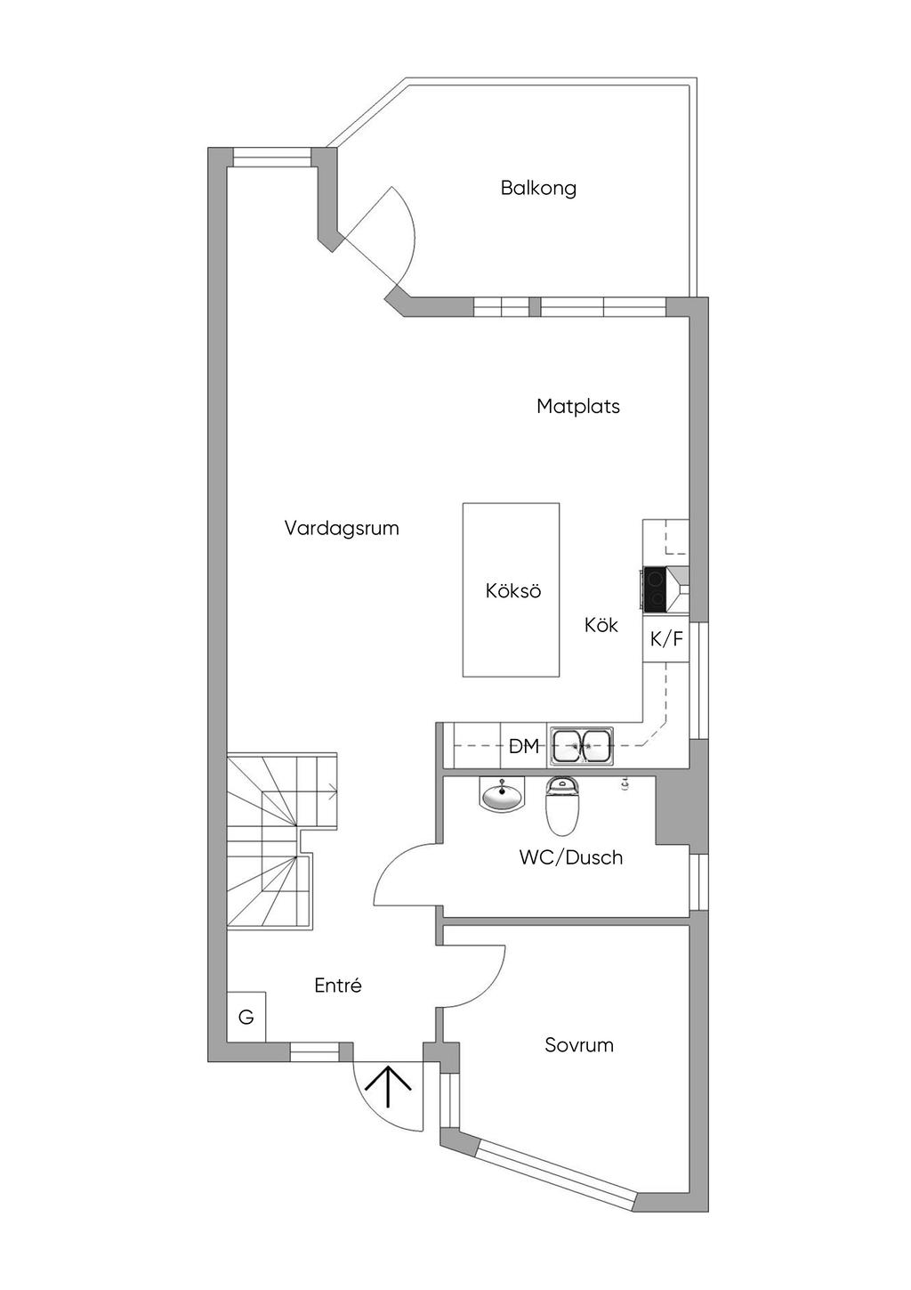
Planritning

Karta och område

Barnhemsvägen 21, Nacka

Kalkyl

Vad kostar nya boendet?

Fler värden

Här nedanför kan du ändra ränta, amortering och driftkostnader och se hur de påverkar kalkylen.

Återställ alla värden
Visa fler

Ränta

Amortering

Driftkostnad per månad

Driftkostnad/månad

Observera att driftskostnaderna som anges ovan baseras på säljarens faktiska kostnader det senaste året om inget annat särskilt anges.

Vilka driftskostnader köparen kommer att ha beror på hur bostaden kommer att användas, vilka abonnemang som kommer att tecknas och övriga omständigheter i det enskilda fallet.

Boendekostnad per månad

Ränta
+  kr
Driftkostnad
+  kr
Fastighetsskatt/-avgift
+ 869 kr
Skattereduktion
 kr
Summa
ca  kr
Amortering
+  kr
Inkl amortering
ca  kr

Ansök om lånelöfte

Hos vårt systerbolag Ordna Bolån kan du enkelt ansöka om lånelöfte eller bolån. En ansökan, svar från flera banker.

Intresseformulär

Fyll i formuläret så kontaktar vi dig inom kort.

Kontaktuppgifter
Vänligen ange förnamn
Vänligen ange efternamn
Vänligen ange telefonnummer
Vänligen ange e-post
500 tecken kvar
Har du lånelöfte?*
Vill du ha hjälp med lånelöfte?
Vill du få nyheter och erbjudanden?

Oj, något gick fel! Försök igen. 

Ett ögonblick!
Tack, dina uppgifter är sparade!
Du fyllde inte i någon e-postadress. Ange den nedan för att inte missa någon information.
 
 
 
Ta del av vår integritetspolicy
 
 
 

Liknande bostäder till salu

Sicklaön, Nacka
Barnhemsvägen 21
Dela bostad: Dela på Facebook Dela med epost Dela med sms Kopiera länk Länken kopierad

Planritning