Hoppa till innehåll
Skogås

Musikalvägen 99

Exklusivt och rymligt radhus i eftertraktad idyll nära bad, natur och service

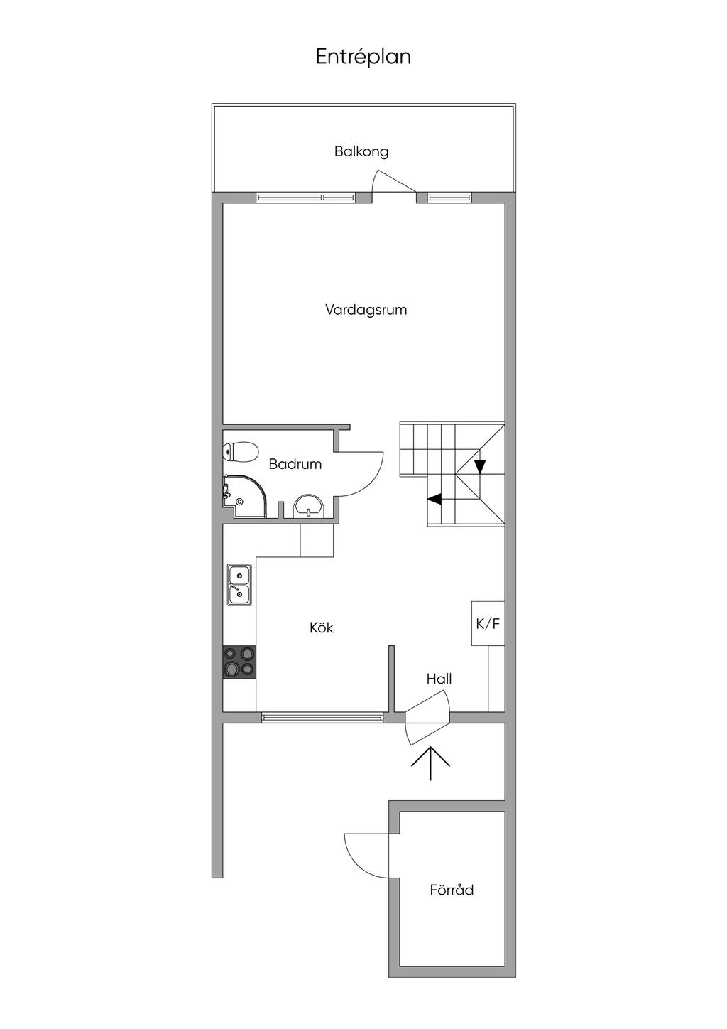
  • Typ: Radhus, 2 plansradhus med souterrängvåning
  • Rum: 6, varav 4 sovrum
  • Boarea: 108 m2
  • Biarea: 23 m2
  • Tomtarea: 100 m2
  • Byggnadsår: 1983
  • Driftkostnad: 23 892 kr/år
  • Upplåtelseform: Äganderätt

Välkommen till ett av områdets mest attraktiva radhus – den större modellen om 108 kvm + 23 kvm i biyta – beläget i en lugn och barnvänlig radhusidyll där hus sällan erbjuds till försäljning. Här bor ni i ett insynsskyddat och harmoniskt område med naturen som granne och endast en kort promenad till sjön Drevviken och populära Mörtviksbadet.

Bostaden erbjuder en genomtänkt och familjevänlig planlösning med fyra rymliga sovrum, generösa sällskapsytor samt gott om förvaring – ett perfekt hem för den växande familjen som värdesätter både komfort och livskvalitet.

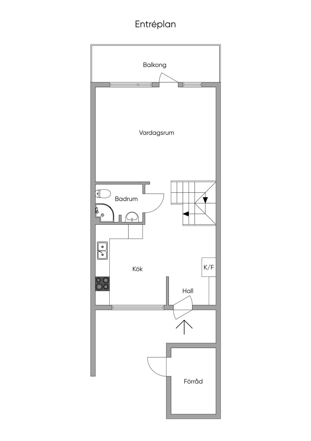
Entréplanet utgör hemmets sociala hjärta där kök och vardagsrum samspelar i en öppen och inbjudande planlösning. Köket, som renoverades 2018, är stilrent och modernt med vita luckor, generösa arbetsytor och infälld diskho. Vitt kakel ovanför bänkarna tillsammans med rostfria vitvaror – spishäll, ugn, fläkt och diskmaskin – skapar ett elegant och funktionellt arbetskök. Fullhöjd kyl och frys med ismaskin ger extra bekvämlighet. Här finns gott om förvaring och en rymlig matplats som inbjuder till både vardagsmiddagar och större sammankomster.

Vardagsrummet präglas av ett härligt ljusinsläpp från stora fönsterpartier och erbjuder en luftig och trivsam atmosfär. Härifrån nås balkongen med ett högt och fritt läge och utsikt över grönskande omgivningar – en perfekt plats för morgonkaffet eller kvällens avkoppling. På detta våningsplan finns även ett stilrent helkaklat duschrum.

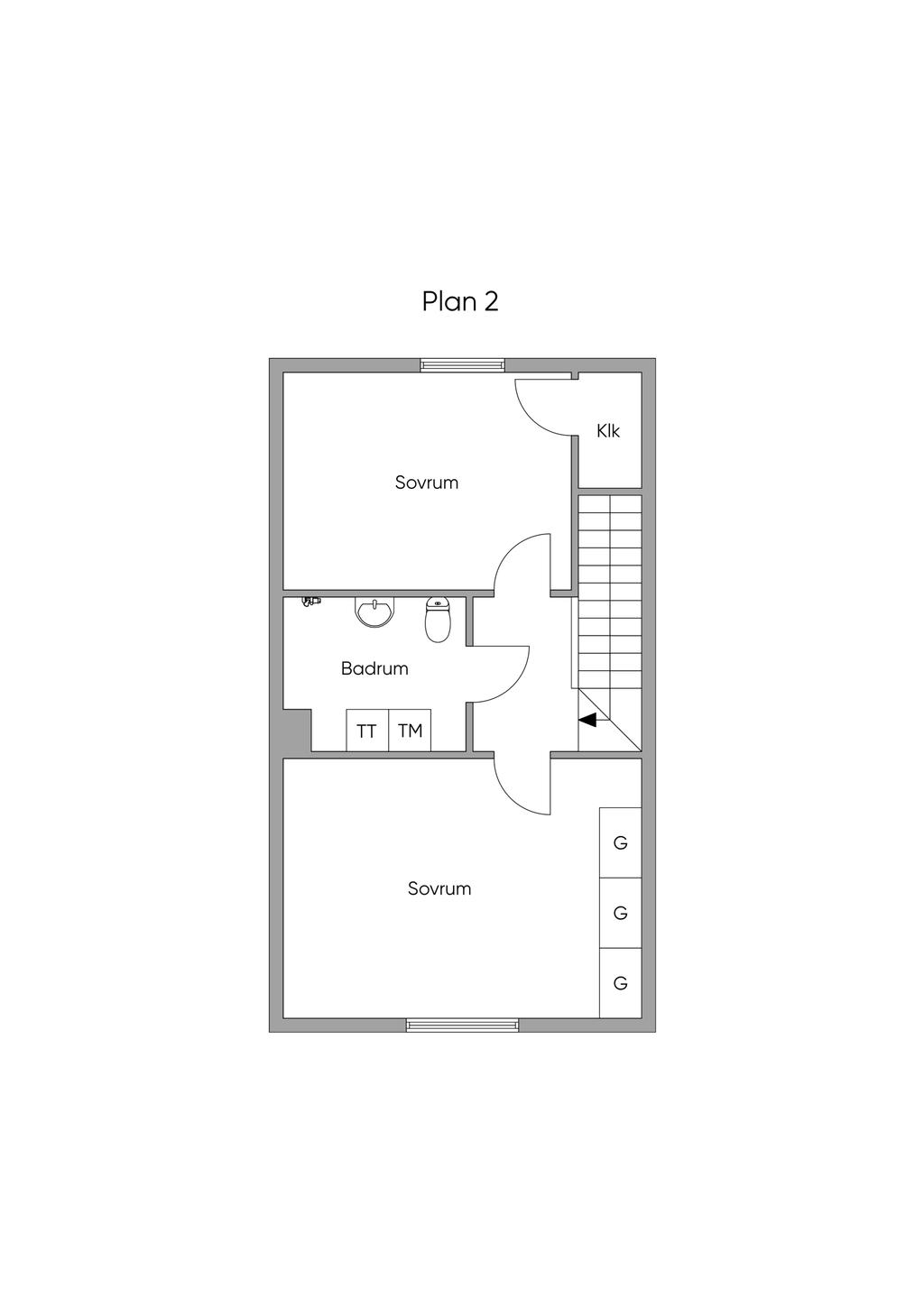
Övre plan rymmer två generösa sovrum. Det större sovrummet erbjuder praktisk förvaring i en rymlig skjutdörrsgarderob medan det andra sovrummet har en egen klädkammare. Här finns även ett modernt helkaklat badrum med badkar samt en praktisk tvättdel utrustad med både tvättmaskin och torktumlare.

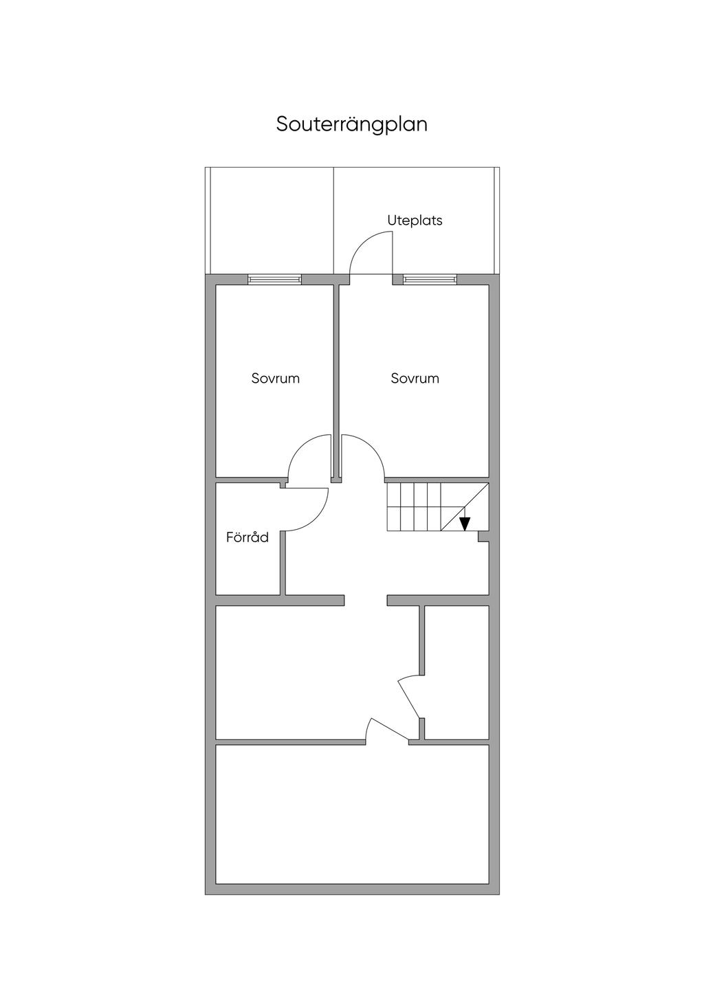
På nedre plan har bostaden anpassats för att skapa ytterligare funktionella ytor. Här finns ett gästrum eller kontor samt ett större förråd. I den andra delen finns två sovrum, varav ett har direkt utgång till husets baksida och den privata altanen. Altanen ligger i ett skyddat och ostört läge och blir en naturlig plats för sommarens middagar, avkoppling och umgänge. Här finns även ett extra förråd för praktisk förvaring.

På husets framsida välkomnas ni av ytterligare en uteplats med ett trivsamt och insynsskyddat läge. Vacker växtlighet med tuja, syrén och rhododendron skapar en grön och ombonad inramning mot gatan.

Boendet har låg samfällighetsavgift och parkeringsplats garanteras. I samfälligheten finns dessutom gemensamhetslokal, bastu och tvättstuga som kan bokas – ett bekvämt komplement i vardagen.

Musikalvägen är ett mycket populärt och barnvänligt område där bostäder sällan säljs. Här bor ni i ett lugnt kvarter med närhet till både natur och service. Edboskolan, buss och pendeltåg nås på bekvämt promenadavstånd och i närheten finns även Nytorps Mosse med motionsspår och konstgräsplan för fritidsaktiviteter.

Detta är ett hem som erbjuder det bästa av två världar – lugn och natur nära vattnet, samtidigt som kommunikationer och service finns inom räckhåll.

Varmt välkomna att anmäla ert intresse för förhandsvisning via hemsidan.

Om Bostaden

Sammanfattning

Typ: Radhus, 2 plansradhus med souterrängvåning
Rum: 6, varav 4 sovrum
Boarea: 108 m2
Biarea: 23 m2
Tomtarea: 100 m2
Utgångspris: 4 275 000 kr
Byggnadsår: 1983
Driftkostnad: 23 892 kr/år
Upplåtelseform: Äganderätt

Kommentar till boarean

Boareauppgift enligt: Lantmäteriet

Uppvärmning

Fjärrvärme, vattenburet system,elgolvvärme, luft/luft värmepump

Byggnadssätt

Vatten: Kommunalt vatten året om
Avlopp: Kommunalt avlopp
Grund: Krypgrund
Stomme: Betong
Fasad: Puts/betong
Fönster: Isolerglas
Takbeklädnad: Betongpannor
Ventilation: Mekanisk frånluft
Allmän information: Musikalens samfällighet bildades den 4 oktober 2001 genom en avknoppning från TomtbergaHuge Fastigheter AB.
Föreningen har 125 fastigheter varav 6 st ägs och hyrs ut av Skogåshem. De enskilda radhusen ingår inte i samfällighetens anläggning.

Musikalens organisationsnummer: 717905-0690

Gemensamhetsanläggningen består av:
- Gemensamma byggnader innehållande bland annat gemensamhetslokal med festlokal, tvättstuga, bastu mm, undercentral för fjärrvärme, soptunnor
- 116 p-platser samt ett 12 gästparkeringar
- 34 garage
- Asfalterade körytor och gångvägar med belysning
- Lekplatser och övriga friytor
- Uppsamlingsledningar för spill- och dagvatten med tillhörande brunnar jämte hängrännor och stuprännor på bostadshusen
- Fjärrvärmeanläggning med undercentralen med värmeväxlar, pumpar mm samt ledningar för värme samt kall- och varmvatten fram till och med avstängningsventil i varje fastighet
- Lokalnät för TV och dataöverföring från överlämningspunkt från Comhem till och med det enskilda radhusets vägguttag
- Fläktar och rörsystem för ventilation av grunderna till bostadshusen
Kommentar: Utförda renoveringar:
2008:
Båda badrummen renoverades
Elsystemet renoverades och uppgraderades
2018:
Luft/luft värmepump installerades (används som AC sommartid)
Nytt kök med nya golv och ytskikt.
Renovering av trappa.
2025:
Taket tvättades.

Tomt/balkong/uteplats

Stenbelagd framsida med plats för sittgrupp. Rymligt förråd för förvaring av cyklar och dylikt.
Stor altan på husets baksida-

Övriga byggnader

Utvändigt förråd.

I samfällighetsföreningen finns tvättstuga, bastu och gemensamhetslokal.

Parkering

Varje fastighet är garanterad 1 (en) parkeringsmöjlighet.
-- Styrelsen kan utfärda ett tillfälligt parkeringstillstånd som kan användas på gästparkeringen i de fall en första parkeringsplats inte omedelbart kan beredas. Den sökande ställs då först i p-plats-kön.
-- Parkerings- och eller garageplatsen följer ej med fastigheten. Om p-plats önskas måste en ansökan om det göras hos HSB.
-- För att få hyra en plats skall du äga huset eller vara hyresgäst hos Skogåshem.
-- Boende utan parkering som ansöker om en första parkeringsplats har förtur i förhållande till boende som önskar en andra plats.

2) Det största tillåtna antalet parkeringsmöjligheter per fastighet är 2 varav maximalt 1 (en)är garageplats.

3) Kölistor finns för att erhålla en garageplats, en andra p-plats samt för byte av parkeringsmöjlighet mellan parkeringarna inom området eller om man önskar en viss p-plats.
-- Har man 2 bilar och behöver en andra plats, kan man ställa sig i kön för en andra p-plats.
-- Får man ett garage efter att ha stått i garagekön förlorar man sin p-plats, men står kvar i andra p-platskön om man finns med där.

Kostnad för p-plats 200kr/månad

Tv/Internetanslutning

Via Tele 2.

Allmänt

Län: Stockholm
Kommun: Huddinge
Fastighetsbeteckning: HUDDINGE MUSIKALEN 53

Planbestämmelser

Östra skogås xiii, Stadsplan (Beslutsdatum: 1981-03-27, Senast ändrad: 2023-05-26)

Övriga rättigheter och belastningar

Gemensamhetsanläggning: HUDDINGE MUSIKALEN GA:1

Ekonomi

Utgångspris

4 275 000 kr

Driftkostnader

23 892 kr/år
Årlig elförbrukning: 4137 kWh/år
Antal i hushållet: 3

Fördelas enligt följande

El: 11 393 kr
Försäkring: 6 500 kr
Samfällighet: 23 892 kr
Beskrivning: I samfällighetsavgiften på 1 991kr/månad ingår värme, vatten, underhåll av garage, gårdar samt snöröjning och sopor.

I kostnader för el ingår fasta kostnader för elnätet hos Vattenfall.

Tillkommer kostnad för p-plats 200kr/månad.

Utöver ovanstående eventuella driftkostnader tillkommer fastighetsavgift med belopp om 10 425 kr.

Observera att driftskostnaderna som anges ovan baseras på säljarens faktiska kostnader det senaste året om inget annat särskilt anges.
Vilka driftskostnader köparen kommer att ha beror på hur bostaden kommer att användas, vilka abonnemang som kommer att tecknas och övriga omständigheter i det enskilda fallet.

Taxering

Byggnad: 2 451 000 kr
Mark: 1 323 000 kr
Totalt: 3 774 000 kr
Taxeringsår: 2024
Taxeringsvärdet är: Fastställt
Värdeår: 1983
Standardpoäng: 36
Typkod: 220, Småhusenhet, bebyggd

Pantbrev

Det finns 6 pantbrev uttaget om sammanlagt 2 662 805 kr.

Energideklaration

Status: Energideklaration är utförd
Energiprestanda: 92 kWh/kvm/år
Energiklass: DD
Specifik energianvändning: 120 kWh/kvm/år
Energideklaration utförd: 2022-09-27

Försäkring

Svensk Fastighetsförmedling samarbetar med If för att underlätta ditt bostadsköp. När du köper bostad eller fritidshus genom Svensk Fastighetsförmedling är den automatiskt försäkrad. Vi kallar det Flytta in-försäkring. Den är kostnadsfri och gäller under de första 30 dagarna. Fortsätter du sedan att försäkra hemmet eller fritidshuset hos If får du 10% rabatt och flera andra unika förmåner. Fråga din mäklare för att ta del av erbjudandet.

Alla bilder

+ 35 Visa alla 41 bilder
 

Planritning

Karta och område

Musikalvägen 99, Skogås

Kalkyl

Vad kostar nya boendet?

Fler värden

Här nedanför kan du ändra ränta, amortering och driftkostnader och se hur de påverkar kalkylen.

Återställ alla värden
Visa fler

Ränta

Amortering

Driftkostnad per månad

Driftkostnad/månad

Observera att driftskostnaderna som anges ovan baseras på säljarens faktiska kostnader det senaste året om inget annat särskilt anges.

Vilka driftskostnader köparen kommer att ha beror på hur bostaden kommer att användas, vilka abonnemang som kommer att tecknas och övriga omständigheter i det enskilda fallet.

Boendekostnad per månad

Ränta
+  kr
Driftkostnad
+  kr
Fastighetsskatt/-avgift
+ 869 kr
Skattereduktion
 kr
Summa
ca  kr
Amortering
+  kr
Inkl amortering
ca  kr

Ansök om lånelöfte

Hos vårt systerbolag Ordna Bolån kan du enkelt ansöka om lånelöfte eller bolån. En ansökan, svar från flera banker.

Visningsanmälan

Fyll i formuläret så kontaktar vi dig inom kort.

Välj mellan nedan alternativ
Söndag 3 maj
Öppen visning

Musikalvägen 99, 142 43 Skogås
Välkomna att föranmäla er till visningen!
Jag vill veta mer om bostaden

Kontaktuppgifter
Vänligen ange förnamn
Vänligen ange efternamn
Vänligen ange telefonnummer
Vänligen ange e-post
500 tecken kvar
Har du lånelöfte?*
Vill du ha hjälp med lånelöfte?
Vill du få nyheter och erbjudanden?

Oj, något gick fel! Försök igen. 

Ett ögonblick!
Tack, dina uppgifter är sparade!
Du fyllde inte i någon e-postadress. Ange den nedan för att inte missa någon information.
 
 
 
Ta del av vår integritetspolicy
 
 
 

Liknande bostäder till salu

Huddinge
Musikalvägen 99
Dela bostad: Dela på Facebook Dela med epost Dela med sms Kopiera länk Länken kopierad

Planritning