Hoppa till innehåll
Strängnäs

Vabro 1

  • Typ: Villa, Enplansvilla
  • Boarea: 105 m2
  • Tomtarea: 3 966 m2
  • Byggnadsår: 1700
  • Upplåtelseform: Äganderätt

Välkommen till en plats där tiden saktar ner och livet får ta plats. Detta lantliga, charmiga hem har sitt ursprung från 1700-talet och bär på en rik historia, samtidigt som det varsamt byggdes om 2020 för att möta dagens krav på komfort och funktion.

Här möts du av ljusa rum, vackra detaljer och en känsla av genuin hemtrevnad. Huset erbjuder generösa sällskapsytor med bevarade originalinslag som skapar karaktär och själ, i fin harmoni med moderna materialval och lösningar. De stora fönstren släpper in rikligt med dagsljus och suddar ut gränsen mellan inne och ute. Köket är hemmets naturliga samlingspunkt – perfekt för långa middagar och umgänge med familj och vänner, härlig matplats med plats för många!
Vardagsrummet har en härlig rymd med tak till nock och en loftdel. Här njuter vi gärna framför den härliga eldstaden! Hemmet erbjuder två bra sovrum, en rymlig tvättstuga, ett badrum samt en gäst-WC.

Utanför väntar en lummig trädgård med plats för både odling, lek och avkoppling. Här kan du njuta av morgonkaffet i solen, lyssna till fågelkvitter och låta vardagens stress rinna av.

Detta är ett hem för dig som söker lugn, livskvalitet och en genuin lantlig känsla – med det bästa från både dåtid och nutid. Ett boende att trivas i, året om.

Välkommen hem!

Om Bostaden

Sammanfattning

Typ: Villa, Enplansvilla
Boarea: 105 m2
Tomtarea: 3 966 m2
Utgångspris: 2 650 000 kr
Byggnadsår: 1700
Upplåtelseform: Äganderätt

Kommentar till boarean

Boareauppgift enligt: Lantmäteriet

Uppvärmning

Direktverkande el, luft-luftvärmepump samt eldstäder

Byggnadssätt

Vatten: Enskilt vatten året om
Avlopp: Enskilt avlopp
Grund: Betongplatta på mark, torpargrund, källare samt plintgrund
Stomme: Trä
Bjälklag: Trä
Fasad: Träfasad
Fönster: 2-glas kopplade fönster & 2 & 3-glas isolerfönster
Takbeklädnad: Plåt
Ventilation: Självdrag

Renoveringar

Om-/tillbyggnadsår: 2020

Allmänt

Län: Södermanland
Kommun: Strängnäs
Fastighetsbeteckning: STRÄNGNÄS BYRINGE 7:45

Övriga rättigheter och belastningar

Rättigheter förmån: Officialservitut: VATTENTÄKT, VATTENLEDNING

Ekonomi

Utgångspris

2 650 000 kr

Driftkostnader

Årlig elförbrukning: 13069 kWh/år
Antal i hushållet: 3

Fördelas enligt följande

El: 28 696 kr
Vatten och avlopp: 12 603 kr
Försäkring: 6 562 kr
Renhållning: 1 996 kr
Sotning: 821 kr

Utöver ovanstående eventuella driftkostnader tillkommer fastighetsavgift med belopp om 10 074 kr.

Observera att driftskostnaderna som anges ovan baseras på säljarens faktiska kostnader det senaste året om inget annat särskilt anges.
Vilka driftskostnader köparen kommer att ha beror på hur bostaden kommer att användas, vilka abonnemang som kommer att tecknas och övriga omständigheter i det enskilda fallet.

Taxering

Byggnad: 1 571 000 kr
Mark: 887 000 kr
Totalt: 2 458 000 kr
Taxeringsår: 2024
Taxeringsvärdet är: Fastställt
Värdeår: 1975
Standardpoäng: 35
Typkod: 220, Småhusenhet, bebyggd

Pantbrev

Det finns 7 pantbrev uttaget om sammanlagt 2 030 000 kr.

Energideklaration

Status: Energideklaration är utförd
Energiprestanda: 154 kWh/kvm/år
Energiklass: EE
Specifik energianvändning: 94 kWh/kvm/år
Energideklaration utförd: 2026-04-15

Försäkring

Svensk Fastighetsförmedling samarbetar med If för att underlätta ditt bostadsköp. När du köper bostad eller fritidshus genom Svensk Fastighetsförmedling är den automatiskt försäkrad. Vi kallar det Flytta in-försäkring. Den är kostnadsfri och gäller under de första 30 dagarna. Fortsätter du sedan att försäkra hemmet eller fritidshuset hos If får du 10% rabatt och flera andra unika förmåner. Fråga din mäklare för att ta del av erbjudandet.
Trygg affär - Varudeklarerad Villa

Alla bilder

+ 31 Visa alla 37 bilder
 

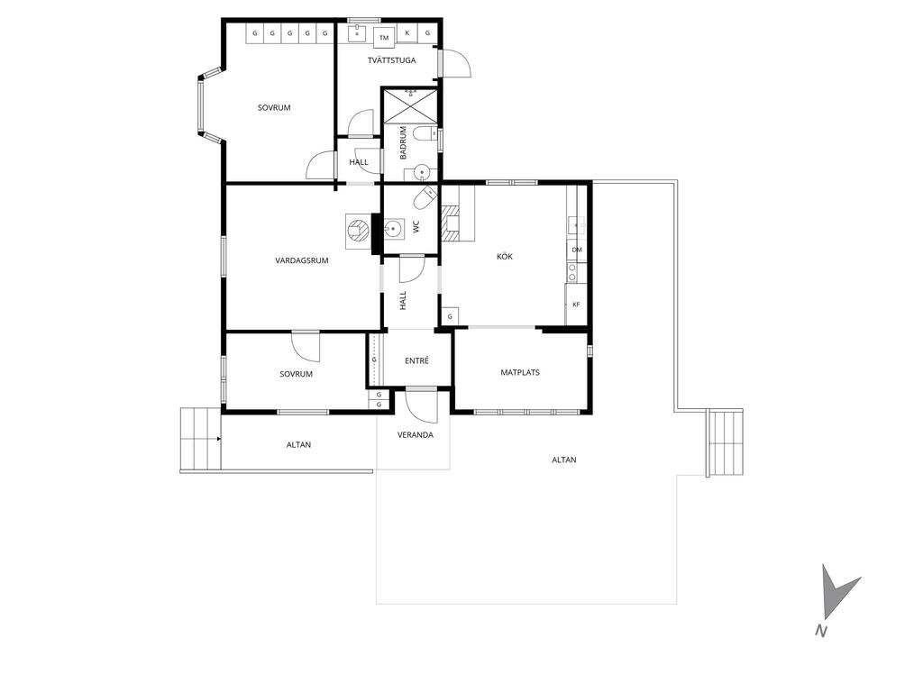
Planritning

Karta och område

Vabro 1, Strängnäs

Visa avstånd som lista:
Avstånd avser alltid fågelvägen

Kalkyl

Vad kostar nya boendet?

Fler värden

Här nedanför kan du ändra ränta, amortering och driftkostnader och se hur de påverkar kalkylen.

Återställ alla värden
Visa fler

Ränta

Amortering

Driftkostnad per månad

Driftkostnad/månad

Observera att driftskostnaderna som anges ovan baseras på säljarens faktiska kostnader det senaste året om inget annat särskilt anges.

Vilka driftskostnader köparen kommer att ha beror på hur bostaden kommer att användas, vilka abonnemang som kommer att tecknas och övriga omständigheter i det enskilda fallet.

Boendekostnad per månad

Ränta
+  kr
Driftkostnad
+  kr
Fastighetsskatt/-avgift
+ 840 kr
Skattereduktion
 kr
Summa
ca  kr
Amortering
+  kr
Inkl amortering
ca  kr

Ansök om lånelöfte

Hos vårt systerbolag Ordna Bolån kan du enkelt ansöka om lånelöfte eller bolån. En ansökan, svar från flera banker.

Visningsanmälan

Fyll i formuläret så kontaktar vi dig inom kort.

Välj mellan nedan alternativ
Lördag 2 maj
Öppen visning

Vabro 1, 645 91 Strängnäs
Jag vill veta mer om bostaden

Kontaktuppgifter
Vänligen ange förnamn
Vänligen ange efternamn
Vänligen ange telefonnummer
Vänligen ange e-post
500 tecken kvar
Har du lånelöfte?*
Vill du ha hjälp med lånelöfte?
Vill du få nyheter och erbjudanden?

Oj, något gick fel! Försök igen. 

Ett ögonblick!
Tack, dina uppgifter är sparade!
Du fyllde inte i någon e-postadress. Ange den nedan för att inte missa någon information.
 
 
 
Ta del av vår integritetspolicy
 
 
 

Liknande bostäder till salu

Strängnäs
Vabro 1
Dela bostad: Dela på Facebook Dela med epost Dela med sms Kopiera länk Länken kopierad

Planritning