Hoppa till innehåll
Nyköping

Tuna by 3 & 4

Den lilla "gården" med de stora möjligheterna

  • Typ: Villa
  • Boarea: 181 m2
  • Biarea: 62 m2
  • Tomtarea: 5 434 m2
  • Byggnadsår: 1909
  • Driftkostnad: 50 236 kr/år
  • Upplåtelseform: Äganderätt

Uppe på en höjd, i faluröd skrud, och med en fantastisk innergård, ligger Tuna by 3 & 4 – en unik möjlighet för dig som vill skapa din egen bostadsdröm. Huvudhuset har anor från 1800-talet när det flyttades hit. Spår syns än idag från ladugården som låg på tomten och en gammal brunn finns kvar.

Här erbjuds två hus med stor potential och många användningsområden. Gårdshuset bjuder in till möjligheten att driva egen verksamhet hemifrån, skapa ateljé eller studio, eller varför inte ett generationsboende? Möjligheterna är helt enkelt många för den som vill kombinera boende och arbete, eller ge plats åt den större familjen.

Husen har påbörjade renoveringar som kommande ägare får sätta tänderna i och färdigställa efter egen smak och stil. Här finns chansen att varsamt förädla och samtidigt bevara den genuina karaktären. Huvudhuset erbjuder en spännande och flexibel planlösning fördelad över två huskroppar vilket skapar både rymd och avskildhet. Här ges möjlighet till upp till fem sovrum, för den som har behov av många sovplatser, alternativt ett hemmakontor eller TV-rum.

De charmiga originaldetaljerna sätter tonen: innertak, trägolv och gediget liggande timmer i ytterväggar. Ljusinsläppet bidrar till en luftig känsla, samtidigt som de rustika materialen skapar värme och personlighet. Den insynsskyddade innergården blir en naturlig samlingsplats – en plats för middagar, lek och avkoppling i en rofylld miljö - en härlig oas sommartid med bl a ett vackert magnoliaträd, rosor och andra perenner. Tomten på baksidan är stor med gott om plats för studsmatta, odlingar och pulkaåkning vintertid. Här bor du med lantlig känsla och frihet, samtidigt som du har närheten till Nyköping och E4:an.

Detta är ett hem med själ och historia – redo att formas vidare av nästa ägare.

Om Bostaden

Beskrivning

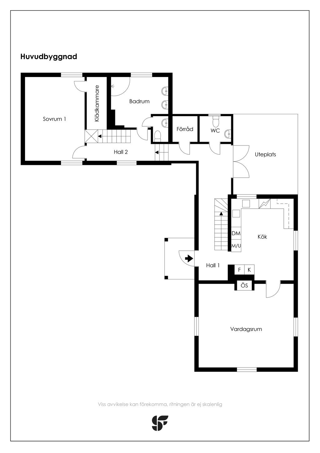
HUVUDHUSET
*Entréplan*
Hall 1- Laminatgolv och OSB-skivor på väggarna. Hallen har vattenburen golvvärme.
Kök- Vinylgolv och tapetserade väggar samt bröstpanel på väggarna. Köket är utrustat med dubbla diskhoar, ugn, mikro, häll, diskmaskin, full-size kyl och frys.
Vardagsrum- Brädgolv och målade väggar.
WC- Klinkers på golvet och tapetserade väggar samt panel. Här är det vattenburen golvvärme.
Hall 2- Korkmatta och målad väv på väggarna.
Badrum- Våtrumsmatta på golvet och träpanel samt våtrumsmatta på väggarna.
Sovrum 1- Brädgolv och målad väv på väggarna. I sovrummet finns en stor klädkammare. Kassaskåpet i klädkammaren följer med huset.

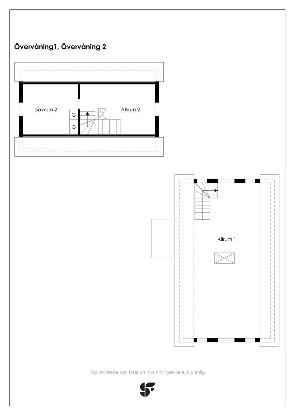
*Övervåning 1*
Allrum 1- Allrum med möjlighet till 2st sovrum. Ej färdigställt, saknar isolering och golv. Väggar av timmer och taket ljust laserat.

*Övervåning 2*
Sovrum 2- Laminatgolv och målade väggar. Detta rum har ett el-element.
Allrum 2/sovrum 3- Laminatgolv och målade väggar. Rummet kan användas som ett mindre hemmakontor eller göras om till ett mindre sovrum.

GÅRDSBYGGNAD
*Entréplan*
Hall- Laminatgolv och tapetserade väggar.
Kök- Trägolv och målade väggar. Har finns ett Trinettkök.
Kontor- Målat gammalt trägolv och målade väggar. Här finns en öppenspis.

*Övervåning*
Övervåningen- Nås via hallen (i boningsdelen) och har trägolv och målade väggar. Rummet har två nivåskillnader och skulle kunna delas upp i två rum. Rummet är försett med flera takfönster och har ett härligt ljusinsläpp.

*Entréplan*
Hall- Målat betonggolv och våtrumsmatta samt målade väggar. I den lilla hallen finns det ett större förråd.
Tvättstuga- Målat golv och målade väggar. I tvättstugan finns ett förråd där även bergvärmepumpen står.

Sammanfattning

Typ: Villa
Boarea: 181 m2
Biarea: 62 m2
Tomtarea: 5 434 m2
Pris (Utgångspris): 3 800 000 kr
Byggnadsår: 1909
Driftkostnad: 50 236 kr/år
Upplåtelseform: Äganderätt

Kommentar till boarean

Boareauppgift enligt: Lantmäteriet

Uppvärmning

Bergvärmepump och luftvärmepump

Byggnadssätt

Vatten: Kommunalt vatten året om
Avlopp: Kommunalt avlopp
Grund: Torpargrund
Fasad: Träfasad
Fönster: 2-glasfönster
Takbeklädnad: Betongpannor
Ventilation: Självdrag
Murstock: Murad skorsten med insatsrör
Fel och brister: Badrummet i huvudhuset är i behov av renovering
Badrummet i gårdsbyggnaden är i behov av renovering
Den öppna spisen i gårdshuset är inte sotad

Renoveringar

Luftvärmepump -24
Bergvärmepump och borrhål -20
Gästtoalett -06
Köket -06

Tomt/balkong/uteplats

Den stenlagda Innergården och grusad uteplatsen på baksidan
Tomten bjuder på flera bärbuskar och fruktträd

Övriga byggnader

På tomten finns två mindre bodar (fd garage) som numera används som förvaringsutrymmen.
Under ena boden finns även en jordkällare.

Parkering

Bred parkering med plats för flera bilar

Tv/Internetanslutning

Fiber indraget

Allmänt

Län: Södermanland
Kommun: Nyköping
Fastighetsbeteckning: NYKÖPING TUNA KYRKBY 1:21

Övriga rättigheter och belastningar

Rättigheter last: Avtalsservitut: VA-LEDNINGAR - SE BESKRIVNING
Rättigheter förmån: Avtalsservitut: VA-LEDNINGAR - SE BESKRIVNING
Avtalsservitut: VATTENLEDNING - SE BESKRIVNING
Avtalsrättigheter: Avtalsservitut VA-LEDNINGAR

Ekonomi

Pris (Utgångspris)

3 800 000 kr

Driftkostnader

50 236 kr/år
Årlig elförbrukning: 11722 kWh/år
Antal i hushållet: 2

Fördelas enligt följande

El: 28 591 kr
Uppvärmning: 3 000 kr
Vatten och avlopp: 6 763 kr
Försäkring: 9 396 kr
Renhållning: 1 956 kr
Sotning: 530 kr

Observera att driftskostnaderna som anges ovan baseras på säljarens faktiska kostnader det senaste året om inget annat särskilt anges.
Vilka driftskostnader köparen kommer att ha beror på hur bostaden kommer att användas, vilka abonnemang som kommer att tecknas och övriga omständigheter i det enskilda fallet.

Taxering

Byggnad: 1 758 000 kr
Mark: 1 161 000 kr
Totalt: 2 919 000 kr
Taxeringsår: 2024
Taxeringsvärdet är: Fastställt
Värdeår: 1929
Standardpoäng: 28
Typkod: 220, Småhusenhet, bebyggd

Pantbrev

Det finns 3 pantbrev uttaget om sammanlagt 1 740 000 kr.

Energideklaration

Status: Energideklaration är utförd
Energiprestanda: 71 kWh/kvm/år
Energiklass: CC
Specifik energianvändning: 39 kWh/kvm/år
Energideklaration utförd: 2026-02-18
Besiktningsman: Benny Eklöf, Anticimex AB

Försäkring

Svensk Fastighetsförmedling samarbetar med If för att underlätta ditt bostadsköp. När du köper bostad eller fritidshus genom Svensk Fastighetsförmedling är den automatiskt försäkrad. Vi kallar det Flytta in-försäkring. Den är kostnadsfri och gäller under de första 30 dagarna. Fortsätter du sedan att försäkra hemmet eller fritidshuset hos If får du 10% rabatt och flera andra unika förmåner. Fråga din mäklare för att ta del av erbjudandet.
Trygg affär - Varudeklarerad Villa

Alla bilder

+ 37 Visa alla 43 bilder
 

Planritning

Karta och område

Tuna by 3 & 4, Nyköping

Kalkyl

Vad kostar nya boendet?

Fler värden

Här nedanför kan du ändra ränta, amortering och driftkostnader och se hur de påverkar kalkylen.

Återställ alla värden
Visa fler

Ränta

Amortering

Driftkostnad per månad

Driftkostnad/månad

Observera att driftskostnaderna som anges ovan baseras på säljarens faktiska kostnader det senaste året om inget annat särskilt anges.

Vilka driftskostnader köparen kommer att ha beror på hur bostaden kommer att användas, vilka abonnemang som kommer att tecknas och övriga omständigheter i det enskilda fallet.

Boendekostnad per månad

Ränta
+  kr
Driftkostnad
+  kr
Fastighetsskatt/-avgift *
+  
Skattereduktion
 kr
Summa
ca  kr
Amortering
+  kr
Inkl amortering
ca  kr
* Underlag för beräkning av fastighetsskatt/-avgift saknas och ingår därför inte i totalsumman.

Ansök om lånelöfte

Hos vårt systerbolag Ordna Bolån kan du enkelt ansöka om lånelöfte eller bolån. En ansökan, svar från flera banker.

Intresseformulär

Fyll i formuläret så kontaktar vi dig inom kort.

Kontaktuppgifter
Vänligen ange förnamn
Vänligen ange efternamn
Vänligen ange telefonnummer
Vänligen ange e-post
500 tecken kvar
Har du lånelöfte?*
Vill du ha hjälp med lånelöfte?
Vill du få nyheter och erbjudanden?

Oj, något gick fel! Försök igen. 

Ett ögonblick!
Tack, dina uppgifter är sparade!
Du fyllde inte i någon e-postadress. Ange den nedan för att inte missa någon information.
 
 
 
Ta del av vår integritetspolicy
 
 
 

Liknande bostäder till salu

Nyköping
Tuna by 3 & 4
Dela bostad: Dela på Facebook Dela med epost Dela med sms Kopiera länk Länken kopierad

Planritning