Hoppa till innehåll
 
Budgivning pågår
Utgångspris: 
3 995 000 kr
Björnlunda

Mosstugan 3

Budgivning pågår
Utgångspris: 
3 995 000 kr

Härligt hus med härligt lantligt läge! Bergvärme ger låga driftskostnader!

  • Typ: Villa, 1,5-plansvilla
  • Rum: 8, varav 5 sovrum
  • Boarea: 213 m2
  • Biarea: 25 m2
  • Tomtarea: 4 137 m2
  • Byggnadsår: 1929
  • Driftkostnad: 43 009 kr/år
  • Upplåtelseform: Äganderätt

Ogenerat läge nära natur och svampskogar och utan trafik!
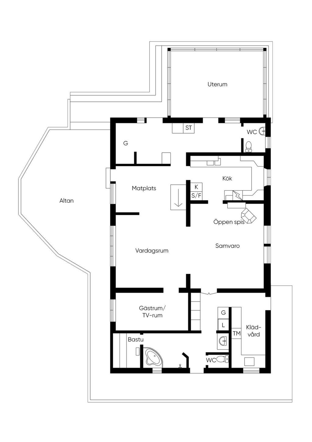
Med utsikt över ängar och hästhagar ligger detta trevliga hus med stort soligt trädäck, generösa umgängesytor, inglasat uterum, öppen spis och golvvärme i entréplan. På fastigheten finns även ett fint gästhus samt verkstadsbyggnad/snickarbod.

När du kommer upp till huset så ser du det stora trädäcket till höger men även det fina inglasade uterummet.
Innanför ytterdörren finns en rymlig välkomnande hall med inbyggd garderobsvägg för förvaring av ytterkläder och mycket annat. Från hallen når du det inglasade uterummet och även en gäst-wc

Det inglasade uterummet är ca 25 kvm stort och har klinkergolv och infravärme. Här ryms många goda vänner!

WC-rummet har klinkergolv och kaklade väggar. Här finns wc, handfat med kommod, fönster samt handdukstork.

Stort arbetskök med klinkergolv och ljusa skåp och stommar. Inbyggd ugn, spishäll med induktionshäll, fläkt, diskmaskin samt kyl och frys. I anslutning till köket finns en matplatsdel med klinkergolv och bröstpanel.

En stor del av entréplanet utgörs av samvarorum med öppen lösning, det som dag används som vardagsrum har parkettgolv och öppen spis med kassett. Den öppna lösningen mot matrumsdelen gör rummet ljust med fönster i olika väderstreck. Från matrumsdelen har du en fri, fin utsikt och du når även den stora trädäckade altanen som går runt en stor del av huset. Altanen har även markis som kan skydda de dagar solen steker som mest.

Gästrum/tv-rum/sovrum med parkettgolv och ljusa väggar.

Badrummet på entréplan är helkaklat och har ett avskilt wc-rum. Platsbyggt handfat, dusch, bubbelbadkar, ingång till bastu och utgång till trädäcket. Bastun har glasdörr och fönster.

Tvättstuga med klinkergolv, tvättmaskin, torktumlare och torkskåp samt utgång som gör att du lätt kan hänga tvätt utomhus om du så önskar.

På övre plan möts du av ett allrum, fyra sovrum samt ett wc/duschrum.

Allrummet har trägolv och ljusa väggar och fönster i söder. Garderober ger god förvaring.

Sovrummen är lite olika stora och tre av dem har generösa förvaringslösningar i stora garderober eller i klädkammare.

Wc-rummet är helkaklat och har duschhörna, wc, handfat med kommod, och även här finns fönster.

Gästhuset som tidigare varit fotostudio, har härlig höjd till det välvda taket! Fönstervägg och utgång till den egna balkongen/altanen. Om du låter gäster övernatta här så kommer de att trivas!

Verkstadsbyggnaden/snickarboden har även plats för förråd och/eller gym.

Om Bostaden

Sammanfattning

Typ: Villa, 1,5-plansvilla
Rum: 8, varav 5 sovrum
Boarea: 213 m2
Biarea: 25 m2
Tomtarea: 4 137 m2
Utgångspris: 3 995 000 kr
Byggnadsår: 1929
Driftkostnad: 43 009 kr/år
Upplåtelseform: Äganderätt

Kommentar till boarean

Boareauppgift enligt: Säljaren
Enligt taxeringsuppgifterna är boarean 162 kvm och biarea 26 kvm men huset är större än så.

Uppvärmning

Bergvärmepump och eldstad

Byggnadssätt

Vatten: Enskilt vatten året om
Avlopp: Kommunalt avlopp
Grund: Krypgrund och källare
Stomme: Trä
Bjälklag: Trä
Fasad: Stående träpanel
Fönster: 2 och 3-glasfönster isoler, samt 2-glas kopplade fönster
Takbeklädnad: Plåt
Markbeskaffning: Trädgårdstomt
Ventilation: Mekanisk frånluft (F)
Kommentar: Ursprungshuset är enligt uppgift byggt 1810.

Renoveringar

Om-/tillbyggnadsår: 1979
2012 - Ny tvättmaskin (Elektrohelios)
2015 - Nytt verandaräcke utmed trädäcket (43 m)
2015 - Ny markisväg (7x4 m)
2018 - Ny bergvärmepump (IVT Premium line HQ E6)
2019 - Målning
2019 - Ny takavvattning
2022 - Ny diskmaskin (Cylinda)
2025 - Kommunalt avlopp anslöts (kommunalt vatten finns till tomtgräns, ej anslutet)

Tomt/balkong/uteplats

Härligt stort trädäck samt inglasat uterum.
Trevlig lätt kuperad trädgårdstomt med såväl skyddande träd som gräsmatta och fina rabatter.

Övriga byggnader

Gästhus om ca 30 kvm med altan samt separat verkstadsbyggnad med förråd

Parkering

Parkering finns för 4 bilar vid vändplan

Allmänt

Län: Södermanland
Kommun: Gnesta
Fastighetsbeteckning: GNESTA MOSSTUGAN 2:3

Övriga rättigheter och belastningar

Gemensamhetsanläggning: GNESTA SKENDA GA:5 - Vatten- och avloppsledningar
Rättigheter last: Officialservitut: HYDROFORANLÄGGNING
Officialservitut: VÄG
Rättigheter förmån: Officialservitut: VÄG,VATTENTÄKT,VATTENLEDNING
Avtalsservitut: VÄNDPLAN - SE BESKRIVNING

Ekonomi

Utgångspris

3 995 000 kr

Driftkostnader

43 009 kr/år
Årlig elförbrukning: 14600 kWh/år
Antal i hushållet: 2

Fördelas enligt följande

El: 30 000 kr
Vatten och avlopp: 1 500 kr
Väg: 400 kr
Försäkring: 8 391 kr
Renhållning: 2 500 kr
Sotning: 218 kr
Beskrivning: Vi har hittills haft eget vatten och avlopp. Kostnad avlopp 1.510/år.
El kostnad innefattar hushållsel samt bergvärmepump.

Utöver ovanstående eventuella driftkostnader tillkommer fastighetsavgift med belopp om 10 425 kr.

Observera att driftskostnaderna som anges ovan baseras på säljarens faktiska kostnader det senaste året om inget annat särskilt anges.
Vilka driftskostnader köparen kommer att ha beror på hur bostaden kommer att användas, vilka abonnemang som kommer att tecknas och övriga omständigheter i det enskilda fallet.

Taxering

Byggnad: 1 856 000 kr
Mark: 768 000 kr
Totalt: 2 624 000 kr
Taxeringsår: 2024
Taxeringsvärdet är: Fastställt
Värdeår: 1933
Standardpoäng: 30
Typkod: 220, Småhusenhet, bebyggd

Pantbrev

Det finns 5 pantbrev uttaget om sammanlagt 1 473 000 kr.

Energideklaration

Status: Energideklaration är utförd
Energiprestanda: 77 kWh/kvm/år
Energiklass: CC
Specifik energianvändning: 43 kWh/kvm/år
Besiktningsman: Benny Eklöf, Anticimex

Försäkring

Svensk Fastighetsförmedling samarbetar med If för att underlätta ditt bostadsköp. När du köper bostad eller fritidshus genom Svensk Fastighetsförmedling är den automatiskt försäkrad. Vi kallar det Flytta in-försäkring. Den är kostnadsfri och gäller under de första 30 dagarna. Fortsätter du sedan att försäkra hemmet eller fritidshuset hos If får du 10% rabatt och flera andra unika förmåner. Fråga din mäklare för att ta del av erbjudandet.
Trygg affär - Varudeklarerad Villa

Alla bilder

+ 50 Visa alla 56 bilder
 

Planritning

Karta och område

Mosstugan 3, Björnlunda

Kalkyl

Vad kostar nya boendet?

Fler värden

Här nedanför kan du ändra ränta, amortering och driftkostnader och se hur de påverkar kalkylen.

Återställ alla värden
Visa fler

Ränta

Amortering

Driftkostnad per månad

Driftkostnad/månad

Observera att driftskostnaderna som anges ovan baseras på säljarens faktiska kostnader det senaste året om inget annat särskilt anges.

Vilka driftskostnader köparen kommer att ha beror på hur bostaden kommer att användas, vilka abonnemang som kommer att tecknas och övriga omständigheter i det enskilda fallet.

Boendekostnad per månad

Ränta
+  kr
Driftkostnad
+  kr
Fastighetsskatt/-avgift
+ 869 kr
Skattereduktion
 kr
Summa
ca  kr
Amortering
+  kr
Inkl amortering
ca  kr

Ansök om lånelöfte

Hos vårt systerbolag Ordna Bolån kan du enkelt ansöka om lånelöfte eller bolån. En ansökan, svar från flera banker.

Budgivning pågår

Just nu pågår budgivningen men du har fortfarande chans att kontakta mäklare.

Kontaktuppgifter
Vänligen ange förnamn
Vänligen ange efternamn
Vänligen ange telefonnummer
Vänligen ange e-post
500 tecken kvar
Har du lånelöfte?*
Vill du ha hjälp med lånelöfte?
Vill du få nyheter och erbjudanden?

Oj, något gick fel! Försök igen. 

Ett ögonblick!
Tack, dina uppgifter är sparade!
Du fyllde inte i någon e-postadress. Ange den nedan för att inte missa någon information.
 
 
 
Ta del av vår integritetspolicy
 
 
 

Liknande bostäder till salu

Gnesta
Mosstugan 3
Dela bostad: Dela på Facebook Dela med epost Dela med sms Kopiera länk Länken kopierad

Planritning