Hoppa till innehåll
Arild

Nimisvägen 2

Nybyggd enplansvilla i charmiga Arild

  • Typ: Villa, 1-plansvilla
  • Rum: 4, varav 3-4 sovrum
  • Boarea: 115 m2
  • Byggnadsår: 2024
  • Driftkostnad: 31 280 kr/år
  • Upplåtelseform: Äganderätt

Nyproducerat, fräscht och inflyttningsklart – mer lättillgängligt än så blir det inte! I charmiga Arilds utkant växer ett nytt villaområde fram, där moderna hus sätter färg på landskapet och förstärker byns idyll. Här varvas året runtboende med sommargäster, vilket skapar en föränderlig och intressant dynamik.

På Nimisvägen 2 väntar ett solgult enplanshus där du verkligen har chansen att bo in dig; Här har nämligen ingen bott förut! Bara att flytta in, skapa din egen stil och låta trädgården ta form efter dina drömmar.
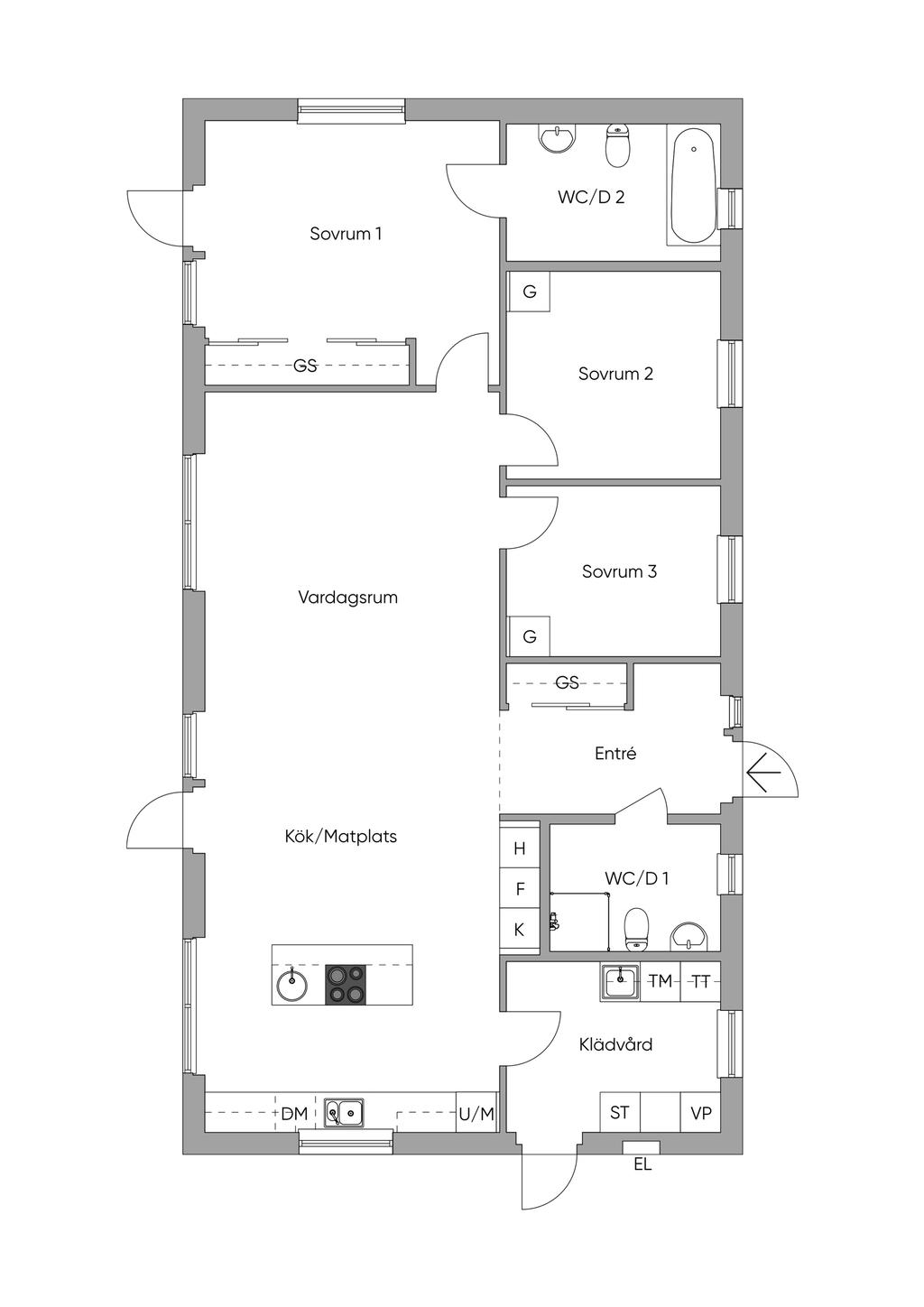
Planlösningen är väl genomtänkt: Tre sovrum, varav ett med eget badrum och badkar, ett öppet kök i social anslutning till vardagsrummet, ytterligare ett badrum med dusch samt en praktisk tvättstuga med egen ingång.

Här bor du med naturen runt hörnet, havet och småbåtshamnen inom räckhåll, mysigt byliv och bekväm närhet till både Höganäs och Helsingborg. En bostad som gör livet enkelt och njutbart – varmt välkommen hem!

Om Bostaden

Beskrivning

ENTRÉ/HALL: Klinkergolv och målad vägg.
BADRUM: Klinkergolv och kakel. WV, handfat och dusch.
VARDAGSRUM: Parkettgolv och målad vägg. Utgång till trädgård.
KÖK: Parkettgolv och målad vägg. Köksö. Kyl, frys, spishäll, ung och mikro.
TVÄTTRUM: Klinker och kakel. Tvättmaskin och torktumlare. Utgång till trädgård.
SOVRUM: Parkettgolv och målad vägg. Garderob.
SOVRUM: Parkettgolv och målad vägg. Garderob.
SOVRUM: Parkettgolv och målad vägg. Garderob. Utgång till trädgård.
BADRUM: Klinkergolv och kakel. WV, handfat och dusch.

Sammanfattning

Typ: Villa, 1-plansvilla
Rum: 4, varav 3 sovrum, möjlighet till 4 sovrum
Boarea: 115 m2
Utgångspris: 6 200 000 kr
Byggnadsår: 2024
Driftkostnad: 31 280 kr/år
Upplåtelseform: Äganderätt

Kommentar till boarean

Boareauppgift enligt: Lantmäteriet

Uppvärmning

Vattenburen värme

Byggnadssätt

Vatten: Kommunalt vatten året om
Avlopp: Kommunalt avlopp
Grund: Platta på mark
Stomme: trä
Bjälklag: Trä
Fasad: Träfasad
Fönster: 3-glasfönster isoler
Takbeklädnad: Takpannor
Ventilation: Mekanisk till- och frånluft

Tv/Internetanslutning

Fiber finns framdraget till tomtgräns.

Allmänt

Län: Skåne
Kommun: Höganäs
Fastighetsbeteckning: HÖGANÄS STUBBARP 6:45

Planbestämmelser

Detaljplan för del av stubbarp 6:32 mfl, Detaljplan (Beslutsdatum: 2022-03-31, Registreringsdatum: 2022-10-18, Senast ändrad: 2024-01-11)

Ekonomi

Utgångspris

6 200 000 kr

Driftkostnader

31 280 kr/år

Fördelas enligt följande

Vatten och avlopp: 8 500 kr
Renhållning: 2 780 kr
Hushållsel. uppvärmning och el-nätskostnad: 20 000 kr
Beskrivning: Kostnaderna är uppskattade då ingen har bott i huset en längre period sen det byggdes.

Observera att driftskostnaderna som anges ovan baseras på säljarens faktiska kostnader det senaste året om inget annat särskilt anges.
Vilka driftskostnader köparen kommer att ha beror på hur bostaden kommer att användas, vilka abonnemang som kommer att tecknas och övriga omständigheter i det enskilda fallet.

Taxering

Byggnad: 1 223 000 kr
Mark: 2 391 000 kr
Totalt: 3 614 000 kr
Taxeringsår: 2025
Taxeringsvärdet är: Fastställt
Värdeår: 2024
Standardpoäng: 27
Typkod: 220, Småhusenhet, bebyggd

Pantbrev

Det finns 0 pantbrev uttaget om sammanlagt 0 kr

Energideklaration

Status: Energideklaration är utförd
Energiprestanda: 63 kWh/kvm/år
Energiklass: BB
Specifik energianvändning: 30 kWh/kvm/år
Energideklaration utförd: 2024-02-26

Försäkring

Svensk Fastighetsförmedling samarbetar med If för att underlätta ditt bostadsköp. När du köper bostad eller fritidshus genom Svensk Fastighetsförmedling är den automatiskt försäkrad. Vi kallar det Flytta in-försäkring. Den är kostnadsfri och gäller under de första 30 dagarna. Fortsätter du sedan att försäkra hemmet eller fritidshuset hos If får du 10% rabatt och flera andra unika förmåner. Fråga din mäklare för att ta del av erbjudandet.

Alla bilder

+ 12 Visa alla 18 bilder
 

Planritning

Karta och område

Nimisvägen 2, Arild

Kalkyl

Vad kostar nya boendet?

Fler värden

Här nedanför kan du ändra ränta, amortering och driftkostnader och se hur de påverkar kalkylen.

Återställ alla värden
Visa fler

Ränta

Amortering

Driftkostnad per månad

Driftkostnad/månad

Observera att driftskostnaderna som anges ovan baseras på säljarens faktiska kostnader det senaste året om inget annat särskilt anges.

Vilka driftskostnader köparen kommer att ha beror på hur bostaden kommer att användas, vilka abonnemang som kommer att tecknas och övriga omständigheter i det enskilda fallet.

Boendekostnad per månad

Ränta
+  kr
Driftkostnad
+  kr
Fastighetsskatt/-avgift *
+  
Skattereduktion
 kr
Summa
ca  kr
Amortering
+  kr
Inkl amortering
ca  kr
* Underlag för beräkning av fastighetsskatt/-avgift saknas och ingår därför inte i totalsumman.

Ansök om lånelöfte

Hos vårt systerbolag Ordna Bolån kan du enkelt ansöka om lånelöfte eller bolån. En ansökan, svar från flera banker.

Intresseformulär

Fyll i formuläret så kontaktar vi dig inom kort.

Kontaktuppgifter
Vänligen ange förnamn
Vänligen ange efternamn
Vänligen ange telefonnummer
Vänligen ange e-post
500 tecken kvar
Har du lånelöfte?*
Vill du ha hjälp med lånelöfte?
Vill du få nyheter och erbjudanden?

Oj, något gick fel! Försök igen. 

Ett ögonblick!
Tack, dina uppgifter är sparade!
Du fyllde inte i någon e-postadress. Ange den nedan för att inte missa någon information.
 
 
 
Ta del av vår integritetspolicy
 
 
 

Liknande bostäder till salu

Höganäs
Nimisvägen 2
Dela bostad: Dela på Facebook Dela med epost Dela med sms Kopiera länk Länken kopierad

Planritning