Hoppa till innehåll
 
Högsta bud: 
4 700 000 kr
Pris: 4 990 000 kr

Vi visar det högsta inkomna budet. Budgivning med BankID erbjuds.

Läs mer om budgivning med Bank ID
Vad kostar boendet? Räkna på din månadskostnad
Bodil Hedenborg, Mäklare Svensk Fastighetsförmedling
Ansvarig mäklare
Bodil Hedenborg
Franchisetagare, Fastighetsmäklare
Vad kostar boendet? Räkna på din månadskostnad
Eslöv

Kornslingan 4

Högsta bud: 
4 700 000 kr
Pris: 4 990 000 kr

Vi visar det högsta inkomna budet. Budgivning med BankID erbjuds.

Läs mer om budgivning med Bank ID
Vad kostar boendet? Räkna på din månadskostnad
Bodil Hedenborg, Mäklare Svensk Fastighetsförmedling
Ansvarig mäklare
Bodil Hedenborg
Franchisetagare, Fastighetsmäklare
Vad kostar boendet? Räkna på din månadskostnad

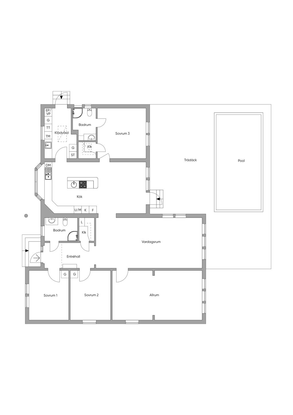
Välskött 1-plansvilla med garage och solcellspaneler på taket

  • Typ: Villa, 1 plan
  • Rum: 5, varav 3 sovrum
  • Boarea: 147 m2
  • Biarea: 38 m2
  • Tomtarea: 932 m2
  • Byggnadsår: 2005
  • Driftkostnad: 43 600 kr/år
  • Upplåtelseform: Äganderätt

Välskött villa i ett plan i vinkel med garage och solcellspaneler på taket. Trevligt belägen på hörntomt och omgärdad av skyddande häckar. Villan är mycket välskött och har en bra planlösning fördelad på entréhall, vardagsrum, kök, tvättstuga med utgång till trädgården, tre sovrum, varav ett större föräldrasovrum med tillhörande badrum och klädkammare, ett allrum, ett separat badrum och ytterligare en klädkammare. Trädgården är lättskött med trädäck, pool, stenläggning, gräsmatta och häckar. Garage med förrådsdel. Stor stensatt uppfart med plats för ca fyra bilar.

Här bor man bra!
När vi först klev in i det här huset på Elvkullen, visste vi direkt att det var något speciellt. Det ligger perfekt på en hörntomt längst in på en lugn återvändsgata – precis så tryggt som man vill ha det när man har barn.
Det som verkligen fångade oss var ljuset. Både vardagsrummet och allrummet har stora fönster åt två håll, vilket ger dagsljus genom hela dagen.

Sovrummen är smart placerade – vårt master bedroom ligger lite för sig självt i en mer privat del av huset. Där har vi både eget badrum, en praktisk garderob och inte minst: utsikt rakt ut mot poolen. Det är så lyxigt att vakna till den vyn.

Att vi har två separata vardagsrum – ett för oss vuxna och ett för barnen ger alla sin egen plats, vilket är guld värt, särskilt när alla vill göra olika saker samtidigt.

Tvättstugan har också blivit en riktig hjälte i vardagen. Med groventré och extra förvaring i två garderober har vi plats för hela familjens ytterplagg, skor och allt där emellan – det gör verkligen livet lite enklare.
Men det bästa av allt? Sommardagarna då vi har hemester vid poolen. Vi hänger på altanen i söderläge, badar i den stora uppvärmda poolen (8 x 4 meter) och samlar vänner och familj för grillkvällar och lata eftermiddagar. Utemiljön är verkligen perfekt – både för att koppla av och umgås.

Mycket bra grannar och nära till naturen, exempelvis rapsfälten en bit ifrån som är underbara att titta på och det finns ett promenadstråk längs åkrarna. Nära till skola med gång- och cykelvägar utan biltrafik. Busshållplats ett stenkast bort om man pendlar. Modern villa med stort kök och utgång till trädäck där man kan grilla och bada. Två badrum, ett i anslutning till master-sovrummet och ett i hallen. I allrummet som kompletterar vardagsrummet har vi spelat mycket biljard. Energisnålt trots uppvärmning av poolen eftersom det finns solceller på taket.

Om Bostaden

Beskrivning

ENTRÉHALL
Golv: klinker/parkett. Väggar: målade.

KÖK
Golv: parkett. Väggar: målade. Köksfabrikat: Marbodal. Matplats för 6 personer. Utrustning: spishäll (Siemens, 2005), inbyggd ugn (Siemens, 2005), fläkt (Termex, 2005), microugn (Siemens, 2005), kyl-fullhöjd (Electrolux, 2020), kyl-fullhöjd (Electrolux, 2020) och diskmaskin (Siemens, 2020).

VARDAGSRUM
Golv: parkett. Väggar: målade. AC.

ALLRUM
Golv: parkett/laminat. Väggar: målade.

SOVRUM 1
Golv: laminat. Väggar: målade. Garderober.

SOVRUM 2
Golv: laminat. Väggar: målade. Garderober.

SOVRUM 3
Golv: laminat. Väggar: målade. Garderober.

BADRUM 1
Golv: klinker med golvvärme (el). Väggar: kakel. Utrustning: toalett, tvättställ, dusch och handdukstork.

BADRUM 2
Golv: klinker med golvvärme (el). Väggar: kakel. Utrustning: toalett, tvättställ, dusch och handdukstork.

TVÄTTSTUGA
Golv: klinker. Väggar: målade. Utrustning: tvättmaskin (Siemens, 2014), torktumlare (Siemens, 2014) och tvättho.

Sammanfattning

Typ: Villa, 1 plan
Rum: 5, varav 3 sovrum
Boarea: 147 m2
Biarea: 38 m2
Tomtarea: 932 m2
Pris (Utgångspris): 4 990 000 kr
Byggnadsår: 2005
Driftkostnad: 43 600 kr/år
Upplåtelseform: Äganderätt
Inflyttning: Diskuteras/enligt överenskommelse

Kommentar till boarean

Boareauppgift enligt: Lantmäteriet

Uppvärmning

Frånluftsvärmepump och värmepump luft/luft
Ålder: 2023
Märke: Bosch

Byggnadssätt

Vatten: Kommunalt vatten året om
Avlopp: Kommunalt avlopp
Grund: Krypgrund med träbjälklag
Stomme: Trä
Bjälklag: Trä
Fasad: Träpanel
Fönster: Isolerglasfönster
Grundmur: Lecablock
Takbeklädnad: Valmat tak, betongpannor
Ventilation: Mekanisk frånluft med värmeåtervinning (FX)
El: Elnätsleverantör Kraftringen och elleverantör Fortum.
Huvudsäkring: 20 A

Renoveringar

2021 Pool och trädäck runt poolen. Ny kyl och frys.
2023 Ny panna
2023 Solcellsanläggning installerades på hustak 2023 med 13,8 kw solcellspaket och 30 st. solpaneler.

Tomt/balkong/uteplats

Trädäck med pool i läge sydväst.
Uppvärmd thermopool dimension 8 x 4 m är utrustad med filterpump, dräneringspump, värmepump och utedusch (2023). Robotdammsugare till poolen kan övertas mot ersättning.

Övriga byggnader

Fristående garage och förråd, betongpannor ovan ett sadeltak, trästomme med träpanel på fasad. Betongplatta mot mark.

Parkering

Garage med plats för 1 bil samt förvaring.
Uppfart med plats för 2 bilar.

Tv/Internetanslutning

Fiber

Allmänt

Län: Skåne
Kommun: Eslöv
Område: Eslöv Elvkullen
Fastighetsbeteckning: ESLÖV ÄNGEN 1

Planbestämmelser

Eslöv 51:11 mfl-elvkullen 1, Detaljplan (Beslutsdatum: 2003-11-24, Senast ändrad: 2006-05-16)

Ekonomi

Pris (Utgångspris)

4 990 000 kr

Driftkostnader

43 600 kr/år
Årlig elförbrukning: 14400 kWh/år
Antal i hushållet: 3

Fördelas enligt följande

El: 24 400 kr
Vatten och avlopp: 12 000 kr
Försäkring: 3 600 kr
Försäkringskommentar: Folksam
Renhållning: 3 600 kr

Utöver ovanstående eventuella driftkostnader tillkommer fastighetsavgift med belopp om 10 425 kr.

Observera att driftskostnaderna som anges ovan baseras på säljarens faktiska kostnader det senaste året om inget annat särskilt anges.
Vilka driftskostnader köparen kommer att ha beror på hur bostaden kommer att användas, vilka abonnemang som kommer att tecknas och övriga omständigheter i det enskilda fallet.

Taxering

Byggnad: 2 702 000 kr
Mark: 886 000 kr
Totalt: 3 588 000 kr
Taxeringsår: 2024
Taxeringsvärdet är: Fastställt
Värdeår: 2005
Standardpoäng: 30
Typkod: 220, Småhusenhet, bebyggd

Pantbrev

Det finns 6 pantbrev uttaget om sammanlagt 3 817 000 kr.

Energideklaration

Status: Energideklaration är utförd
Energiprestanda: 69 kWh/kvm/år
Energiklass: CC
Specifik energianvändning: 36 kWh/kvm/år
Energideklaration utförd: 2025-04-15
Besiktningsman: Anticimex Services KB

Försäkring

Svensk Fastighetsförmedling samarbetar med If för att underlätta ditt bostadsköp. När du köper bostad eller fritidshus genom Svensk Fastighetsförmedling är den automatiskt försäkrad. Vi kallar det Flytta in-försäkring. Den är kostnadsfri och gäller under de första 30 dagarna. Fortsätter du sedan att försäkra hemmet eller fritidshuset hos If får du 10% rabatt och flera andra unika förmåner. Fråga din mäklare för att ta del av erbjudandet.
Trygg affär - Varudeklarerad Villa

Alla bilder

+ 21 Visa alla 27 bilder
 

Planritning

Karta och område

Kornslingan 4, Eslöv

Kalkyl

Vad kostar nya boendet?

Överstiger era sammanlagda årsinkomster kronor före skatt? Svaret påverkar amorteringarna.

Fler värden

Här nedanför kan du ändra ränta, amortering och driftkostnader och se hur de påverkar kalkylen.

Återställ alla värden
Visa fler

Ränta

Amortering

Driftkostnad per månad

Driftkostnad/månad

Observera att driftskostnaderna som anges ovan baseras på säljarens faktiska kostnader det senaste året om inget annat särskilt anges.

Vilka driftskostnader köparen kommer att ha beror på hur bostaden kommer att användas, vilka abonnemang som kommer att tecknas och övriga omständigheter i det enskilda fallet.

Boendekostnad per månad

Ränta
+  kr
Driftkostnad
+  kr
Fastighetsskatt/-avgift
+ 869 kr
Skattereduktion
 kr
Summa
ca  kr
Amortering
+  kr
Inkl amortering
ca  kr

Ansök om lånelöfte

Hos vårt systerbolag Ordna Bolån kan du enkelt ansöka om lånelöfte eller bolån. En ansökan, svar från flera banker.

Budgivning pågår

Just nu pågår budgivningen men du har fortfarande chans att kontakta mäklare.

Kontaktuppgifter
Vänligen ange förnamn
Vänligen ange efternamn
Vänligen ange telefonnummer
Vänligen ange e-post
500 tecken kvar
Har du lånelöfte?*
Vill du ha hjälp med lånelöfte?
Vill du få nyheter och erbjudanden?

Denna sida skyddas av reCAPTCHA och Googles Integritetspolicy och Användarvillkor gäller.

Oj, något gick fel! Försök igen. 

Ett ögonblick!
Tack, dina uppgifter är sparade!
Du fyllde inte i någon e-postadress. Ange den nedan för att inte missa någon information.
 
 
 
Ta del av vår integritetspolicy
 
 
 

Liknande bostäder till salu

Eslöv Elvkullen, Eslöv
Kornslingan 4
Dela bostad: Dela på Facebook Dela med epost Dela med sms Kopiera länk Länken kopierad

Planritning