Hoppa till innehåll
Valdemarsvik

Spjutvägen 1

  • Typ: Villa, Suterränghus
  • Rum: 7, varav 5 sovrum
  • Boarea: 137 m2
  • Biarea: 40 m2
  • Tomtarea: 946 m2
  • Byggnadsår: 1974
  • Driftkostnad: 34 965 kr/år
  • Upplåtelseform: Äganderätt

Välskött villa på Grännäs med riktigt bra läge endast ett par hundra meter från Valdemarsviken.
Här är nära till bad, idrottsanläggning, marina, strövområden i skog och endast en kortare cykeltur utmed vattnet in till samhället.
Villan har ett avskilt läge för att ligga i bebyggelse och har gott om plats för barnfamiljen, hemma kontor eller för släkt och vänner som kommer på besök.
Välkommen hem.

Om Bostaden

Beskrivning

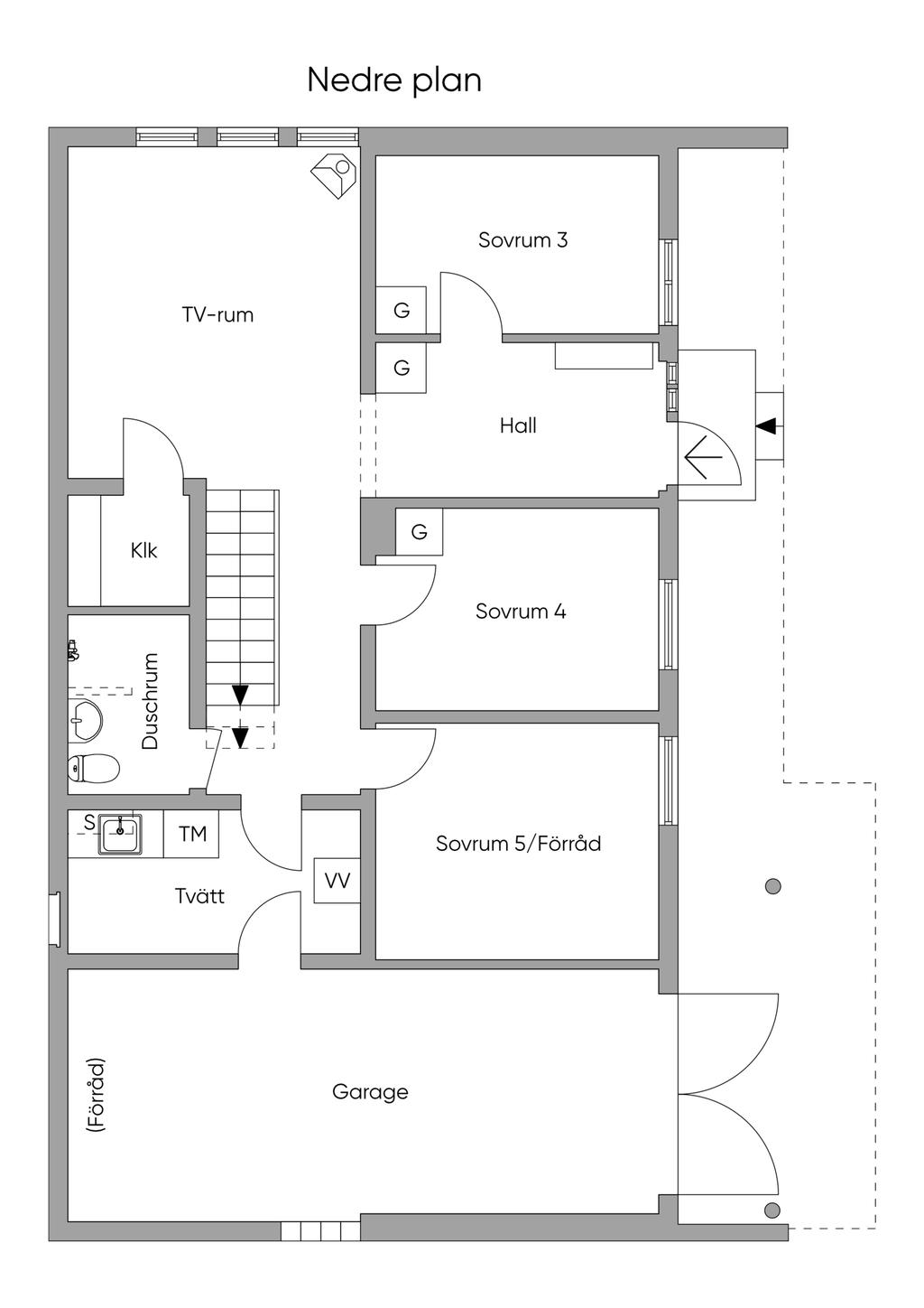
Nedre plan:
Hall med plastmatta.
Sovrum med laminatgolv, garderob.
Gillestuga med plastmatta, kamin.
Klädkammare.
Sovrum med plastmatta, garderob.
Sovrum med plastmatta, garderob.
Duschrum med våtrumsmatta och våttapet. Duschplats, wc och tvättställ.
Tvättstuga med målat betonggolv. Tvättmaskin, tvättho och varmvattenberedare.
Garage.

Övre plan::
Hall med parkettgolv, utgång till altan.
Kan göras om till huvudentré.
Klädkammare.
Vardagsrum med parkettgolv, öppen spis, utgång till balkong.
Kök renoverat 2014 med parkettgolv. Spis med häll med varmluftsugn, fläkt, kyl, frys samt diskmaskin. Utgång till balkong.
Sovrum med laminatgolv, garderobsvägg. Utgång till balkong.
Badrum från 2015 med våtrumsmatta och våttapet. Massagebadkar, wc och tvättställ.
Sovrum med laminatgolv, garderob.

Sammanfattning

Typ: Villa, Suterränghus
Rum: 7, varav 5 sovrum
Boarea: 137 m2
Biarea: 40 m2
Tomtarea: 946 m2
Pris (Utgångspris): 1 795 000 kr
Byggnadsår: 1974
Driftkostnad: 34 965 kr/år
Upplåtelseform: Äganderätt

Kommentar till boarean

Boareauppgift enligt: Lantmäteriet

Uppvärmning

Luftvärmepump från 2025, direktverkande el samt eldstäder

Byggnadssätt

Vatten: Kommunalt vatten året om
Avlopp: Kommunalt avlopp
Grund: Platta på mark
Stomme: Trä
Bjälklag: Trä
Fasad: Mexitegel och träpanel
Fönster: 2-glasfönster
Takbeklädnad: Betongpannor

Tv/Internetanslutning

Fiberanslutning är förberedd till tomtgräns.

Allmänt

Län: Östergötland
Kommun: Valdemarsvik
Fastighetsbeteckning: VALDEMARSVIK KUTTERN 1

Planbestämmelser

Stg 300 och 471 m fl(grännäskullen etapp 1), Stadsplan (Beslutsdatum: 1973-10-17, Senast ändrad: 1994-09-05)

Ekonomi

Pris (Utgångspris)

1 795 000 kr

Driftkostnader

34 965 kr/år
Årlig elförbrukning: 11900 kWh/år
Antal i hushållet: 2

Fördelas enligt följande

El: 18 000 kr
Vatten och avlopp: 8 250 kr
Försäkring: 4 600 kr
Renhållning: 3 615 kr
Sotning: 500 kr

Utöver ovanstående eventuella driftkostnader tillkommer fastighetsavgift med belopp om 9 218 kr.

Observera att driftskostnaderna som anges ovan baseras på säljarens faktiska kostnader det senaste året om inget annat särskilt anges.
Vilka driftskostnader köparen kommer att ha beror på hur bostaden kommer att användas, vilka abonnemang som kommer att tecknas och övriga omständigheter i det enskilda fallet.

Taxering

Byggnad: 1 007 000 kr
Mark: 222 000 kr
Totalt: 1 229 000 kr
Taxeringsår: 2024
Taxeringsvärdet är: Fastställt
Värdeår: 1974
Standardpoäng: 33
Typkod: 220, Småhusenhet, bebyggd

Pantbrev

Det finns 4 pantbrev uttaget om sammanlagt 355 600 kr.

Energideklaration

Status: Energideklaration är beställd

Försäkring

Svensk Fastighetsförmedling samarbetar med If för att underlätta ditt bostadsköp. När du köper bostad eller fritidshus genom Svensk Fastighetsförmedling är den automatiskt försäkrad. Vi kallar det Flytta in-försäkring. Den är kostnadsfri och gäller under de första 30 dagarna. Fortsätter du sedan att försäkra hemmet eller fritidshuset hos If får du 10% rabatt och flera andra unika förmåner. Fråga din mäklare för att ta del av erbjudandet.

Alla bilder

+ 23 Visa alla 29 bilder
 

Planritning

Karta och område

Spjutvägen 1, Valdemarsvik

Kalkyl

Vad kostar nya boendet?

Fler värden

Här nedanför kan du ändra ränta, amortering och driftkostnader och se hur de påverkar kalkylen.

Återställ alla värden
Visa fler

Ränta

Amortering

Driftkostnad per månad

Driftkostnad/månad

Observera att driftskostnaderna som anges ovan baseras på säljarens faktiska kostnader det senaste året om inget annat särskilt anges.

Vilka driftskostnader köparen kommer att ha beror på hur bostaden kommer att användas, vilka abonnemang som kommer att tecknas och övriga omständigheter i det enskilda fallet.

Boendekostnad per månad

Ränta
+  kr
Driftkostnad
+  kr
Fastighetsskatt/-avgift
+ 768 kr
Skattereduktion
 kr
Summa
ca  kr
Amortering
+  kr
Inkl amortering
ca  kr

Ansök om lånelöfte

Hos vårt systerbolag Ordna Bolån kan du enkelt ansöka om lånelöfte eller bolån. En ansökan, svar från flera banker.

Intresseformulär

Fyll i formuläret så kontaktar vi dig inom kort.

Kontaktuppgifter
Vänligen ange förnamn
Vänligen ange efternamn
Vänligen ange telefonnummer
Vänligen ange e-post
500 tecken kvar
Har du lånelöfte?*
Vill du ha hjälp med lånelöfte?
Vill du få nyheter och erbjudanden?

Oj, något gick fel! Försök igen. 

Ett ögonblick!
Tack, dina uppgifter är sparade!
Du fyllde inte i någon e-postadress. Ange den nedan för att inte missa någon information.
 
 
 
Ta del av vår integritetspolicy
 
 
 

Liknande bostäder till salu

Valdemarsvik
Spjutvägen 1
Dela bostad: Dela på Facebook Dela med epost Dela med sms Kopiera länk Länken kopierad

Planritning