Hoppa till innehåll
Valdemarsvik

Norrgatan 21D

Välskött och renoverat radhus

  • Typ: Radhus, 1,5 plan med sutterängplan
  • Rum: 5, varav 4 sovrum
  • Boarea: 113 m2
  • Biarea: 18 m2
  • Tomtarea: 82 m2
  • Byggnadsår: 1980
  • Driftkostnad: 47 750 kr/år
  • Upplåtelseform: Äganderätt

Här finns möjlighet till ett prisvärt och lättskött boende med flera uteplatser.
Gott om plats för barnfamiljen med närhet till förskola, skola, strövområden i skogen, Valdemarsviks centrum och bussförbindelse.
Här är det mesta renoverat och tilltalande både estetiskt och funktionellt.
Genom samfälligheten finns garage och smidig skötsel av gemensamma ytor.
Välkommen att boka tid till visning..

Om Bostaden

Beskrivning

Entréplan:
Förråd.
Hall med laminatgolv, 3 garderober.
Sovrum med laminatgolv, 2 garderober.
Duschrum/tvättstuga från 2011 med klinkergolv(golvvärme), kaklade väggar. Duschplats, wc, tvättställ, handdukstork, tvättmaskin(2025), torktumlare(2020) och tvättho.
Kök från 2007 med laminatgolv. Induktionshäll, fläkt, ugn(2023), kyl och frys(2012) micro och diskmaskin(2023). Utgång till balkong med markis.

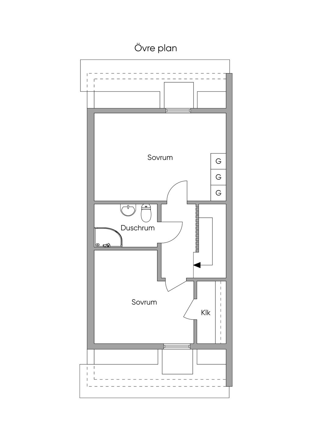
Övre plan:
Hall med plastmatta. Uppgång till vind som brandsäkerhetssäkrades 2020.
Sovrum med plastmatta, klädkammare.
Duschrum från 2000 med klinkergolv(golvvärme). Duschplats, wc, tvättställ och handdukstork.
Sovrum med plastmatta, 3 garderober.

Sutterängplan:
Vardagsrum med laminatgolv, utgång till altan. Förråd.
Rum med laminatgolv.
Hobbyrum/förråd med målat betonggolv, varmvattenberedare.

Garage i gemensam länga. Motorstyrd port.
Cykelförråd.

Sammanfattning

Typ: Radhus, 1,5 plan med sutterängplan
Rum: 5, varav 4 sovrum
Boarea: 113 m2
Biarea: 18 m2
Tomtarea: 82 m2
Pris (Utgångspris): 995 000 kr
Byggnadsår: 1980
Driftkostnad: 47 750 kr/år
Upplåtelseform: Äganderätt

Kommentar till boarean

Boareauppgift enligt: Lantmäteriet

Uppvärmning

Luftvärmepump från 2010 samt direktverkande el

Byggnadssätt

Vatten: Kommunalt vatten året om
Avlopp: Kommunalt avlopp
Grund: Platta på mark
Stomme: Betong
Bjälklag: Betong
Fasad: Träfasad
Fönster: 3-glasfönster
Takbeklädnad: Betongpannor

Tv/Internetanslutning

Fastigheten är ansluten till öppen fiber.

Allmänt

Län: Östergötland
Kommun: Valdemarsvik
Fastighetsbeteckning: VALDEMARSVIK VERKMÄSTAREN 14

Planbestämmelser

Stadsägoområdet 1l,2-9 m fl(kv verkmästaren), Stadsplan (Beslutsdatum: 1979-02-16, Senast ändrad: 2024-01-24)

Övriga rättigheter och belastningar

Gemensamhetsanläggning: VALDEMARSVIK VERKMÄSTAREN GA:1 - VÄGAR MED BELYSNING,LEKPLATSER,GRÖNOMRÅDEN,PARKERINGSPLATSER,GARAGE,LEDNINGAR FÖR VATTEN-OCH AVLOPP,CENTRALANTENNANLÄGGNING MED TILLHÖRANDE LEDNINGAR

Ekonomi

Pris (Utgångspris)

995 000 kr

Driftkostnader

47 750 kr/år
Årlig elförbrukning: 10500 kWh/år
Antal i hushållet: 2

Fördelas enligt följande

El: 25 000 kr
Vatten och avlopp: 6 000 kr
Försäkring: 3 750 kr
Samfällighet: 13 000 kr
Beskrivning: I samfällighetsavgiften ingår sopor, garage, gräsklippning på gemensamma ytor samt snöröjning på vägar i samfälligheten.
Gemensam städdag vår och höst.

Utöver ovanstående eventuella driftkostnader tillkommer fastighetsavgift med belopp om 6 128 kr.

Observera att driftskostnaderna som anges ovan baseras på säljarens faktiska kostnader det senaste året om inget annat särskilt anges.
Vilka driftskostnader köparen kommer att ha beror på hur bostaden kommer att användas, vilka abonnemang som kommer att tecknas och övriga omständigheter i det enskilda fallet.

Taxering

Byggnad: 713 000 kr
Mark: 104 000 kr
Totalt: 817 000 kr
Taxeringsår: 2024
Taxeringsvärdet är: Fastställt
Värdeår: 1980
Standardpoäng: 34
Typkod: 220, Småhusenhet, bebyggd

Pantbrev

Det finns 4 pantbrev uttaget om sammanlagt 545 000 kr.

Energideklaration

Status: Energideklaration ej utförd

Försäkring

Svensk Fastighetsförmedling samarbetar med If för att underlätta ditt bostadsköp. När du köper bostad eller fritidshus genom Svensk Fastighetsförmedling är den automatiskt försäkrad. Vi kallar det Flytta in-försäkring. Den är kostnadsfri och gäller under de första 30 dagarna. Fortsätter du sedan att försäkra hemmet eller fritidshuset hos If får du 10% rabatt och flera andra unika förmåner. Fråga din mäklare för att ta del av erbjudandet.

Alla bilder

+ 21 Visa alla 27 bilder
 

Planritning

Karta och område

Norrgatan 21D, Valdemarsvik

Kalkyl

Vad kostar nya boendet?

Fler värden

Här nedanför kan du ändra ränta, amortering och driftkostnader och se hur de påverkar kalkylen.

Återställ alla värden
Visa fler

Ränta

Amortering

Driftkostnad per månad

Driftkostnad/månad

Observera att driftskostnaderna som anges ovan baseras på säljarens faktiska kostnader det senaste året om inget annat särskilt anges.

Vilka driftskostnader köparen kommer att ha beror på hur bostaden kommer att användas, vilka abonnemang som kommer att tecknas och övriga omständigheter i det enskilda fallet.

Boendekostnad per månad

Ränta
+  kr
Driftkostnad
+  kr
Fastighetsskatt/-avgift
+ 511 kr
Skattereduktion
 kr
Summa
ca  kr
Amortering
+  kr
Inkl amortering
ca  kr

Ansök om lånelöfte

Hos vårt systerbolag Ordna Bolån kan du enkelt ansöka om lånelöfte eller bolån. En ansökan, svar från flera banker.

Visningsanmälan

Fyll i formuläret så kontaktar vi dig inom kort.

Välj mellan nedan alternativ
Torsdag 9 april
Anmälan krävs

Norrgatan 21D, 615 31 Valdemarsvik
Välkommen att boka tid till visning.
Jag vill veta mer om bostaden

Kontaktuppgifter
Vänligen ange förnamn
Vänligen ange efternamn
Vänligen ange telefonnummer
Vänligen ange e-post
500 tecken kvar
Har du lånelöfte?*
Vill du ha hjälp med lånelöfte?
Vill du få nyheter och erbjudanden?

Oj, något gick fel! Försök igen. 

Ett ögonblick!
Tack, dina uppgifter är sparade!
Du fyllde inte i någon e-postadress. Ange den nedan för att inte missa någon information.
 
 
 
Ta del av vår integritetspolicy
 
 
 

Liknande bostäder till salu

Valdemarsvik
Norrgatan 21D
Dela bostad: Dela på Facebook Dela med epost Dela med sms Kopiera länk Länken kopierad

Planritning