Hoppa till innehåll
Valdemarsvik

Lundavägen 1

  • Typ: Villa, Enplan med källare
  • Rum: 4, varav 2-3 sovrum
  • Boarea: 80 m2
  • Biarea: 80 m2
  • Tomtarea: 623 m2
  • Byggnadsår: 1962
  • Driftkostnad: 31 400 kr/år
  • Upplåtelseform: Äganderätt

Välskött villa i ett plan med källare.
Stora sociala utrymmen med vardagsrum i två sektioner och uterum i anslutning.
Källare med klinkergolv. Utrymmen för sovrum, hobby eller relax i massagebad.
I källaren finns också garage. Tomten är plan och lättskött, här finns altan och trädgårdsförråd.
Välkommen på visning!

Om Bostaden

Beskrivning

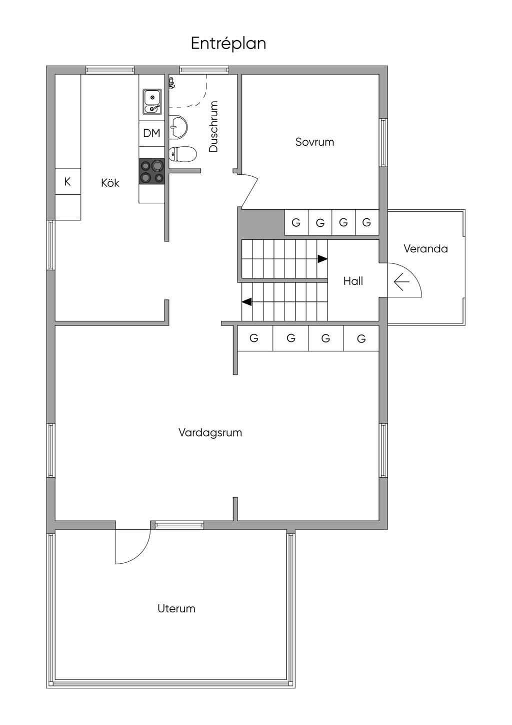
Entréplan:
Veranda
Hall med plastmatta.
1/2 trappa upp innerhall med plastmatta.
Vardagsrum i 2 sektioner med parkettgolv, utgång til inglasat uterum.
Kök med laminatgolv. Spis med häll, fläkt, kyl och diskmaskin, matplats.
Duschrum med våtrumsmatta och våttapet. Duschplats, wc och tvättställ.
Sovrum med heltäckningsmatta, garderobsvägg.

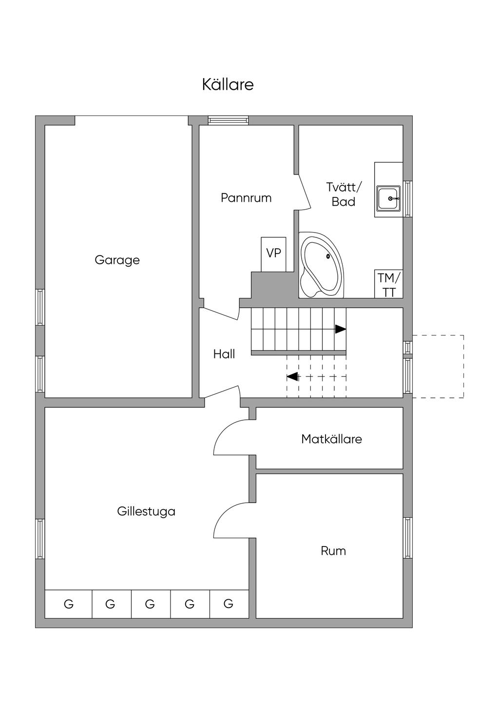
Källare:
Nedre hall med klinkergolv.
Gillestuga med klinkergolv, garderobsvägg.
Sovrum med heltäckningsmatta.
Matkällare med frys.
Pannrum med Värmepump luft/vatten.
Tvättstuga med målat betonggolv. Massagebadkar, tvättmaskin, torktumlare och tvättho.

Garage

Trädgårdsförråd

Sammanfattning

Typ: Villa, Enplan med källare
Rum: 4, varav 2 sovrum, möjlighet till 3 sovrum
Boarea: 80 m2
Biarea: 80 m2
Tomtarea: 623 m2
Pris (Utgångspris): 995 000 kr
Byggnadsår: 1962
Driftkostnad: 31 400 kr/år
Upplåtelseform: Äganderätt

Kommentar till boarean

Boareauppgift enligt: Lantmäteriet

Uppvärmning

Värmepump luft/vatten

Byggnadssätt

Vatten: Kommunalt vatten året om
Avlopp: Kommunalt avlopp
Grund: Betong
Stomme: Trä
Fasad: Träfasad
Fönster: 3-glasfönster
Takbeklädnad: Plåt

Allmänt

Län: Östergötland
Kommun: Valdemarsvik
Fastighetsbeteckning: VALDEMARSVIK BOKEN 5

Planbestämmelser

Storängen,del av, Stadsplan (Beslutsdatum: 1958-06-13, Senast ändrad: 1993-06-30)
Boken, Tomtindelning (Beslutsdatum: 1959-03-07)

Ekonomi

Pris (Utgångspris)

995 000 kr

Driftkostnader

31 400 kr/år
Årlig elförbrukning: 7000 kWh/år

Fördelas enligt följande

El: 17 500 kr
Vatten och avlopp: 6 000 kr
Försäkring: 4 000 kr
Renhållning: 3 900 kr

Utöver ovanstående eventuella driftkostnader tillkommer fastighetsavgift med belopp om 5 663 kr.

Observera att driftskostnaderna som anges ovan baseras på säljarens faktiska kostnader det senaste året om inget annat särskilt anges.
Vilka driftskostnader köparen kommer att ha beror på hur bostaden kommer att användas, vilka abonnemang som kommer att tecknas och övriga omständigheter i det enskilda fallet.

Taxering

Byggnad: 500 000 kr
Mark: 255 000 kr
Totalt: 755 000 kr
Taxeringsår: 2024
Taxeringsvärdet är: Fastställt
Värdeår: 1962
Standardpoäng: 24
Typkod: 220, Småhusenhet, bebyggd

Pantbrev

Det finns 8 pantbrev uttaget om sammanlagt 890 600 kr.

Energideklaration

Status: Energideklaration ej utförd

Försäkring

Svensk Fastighetsförmedling samarbetar med If för att underlätta ditt bostadsköp. När du köper bostad eller fritidshus genom Svensk Fastighetsförmedling är den automatiskt försäkrad. Vi kallar det Flytta in-försäkring. Den är kostnadsfri och gäller under de första 30 dagarna. Fortsätter du sedan att försäkra hemmet eller fritidshuset hos If får du 10% rabatt och flera andra unika förmåner. Fråga din mäklare för att ta del av erbjudandet.

Alla bilder

+ 19 Visa alla 25 bilder
 

Planritning

Karta och område

Lundavägen 1, Valdemarsvik

Kalkyl

Vad kostar nya boendet?

Fler värden

Här nedanför kan du ändra ränta, amortering och driftkostnader och se hur de påverkar kalkylen.

Återställ alla värden
Visa fler

Ränta

Amortering

Driftkostnad per månad

Driftkostnad/månad

Observera att driftskostnaderna som anges ovan baseras på säljarens faktiska kostnader det senaste året om inget annat särskilt anges.

Vilka driftskostnader köparen kommer att ha beror på hur bostaden kommer att användas, vilka abonnemang som kommer att tecknas och övriga omständigheter i det enskilda fallet.

Boendekostnad per månad

Ränta
+  kr
Driftkostnad
+  kr
Fastighetsskatt/-avgift
+ 472 kr
Skattereduktion
 kr
Summa
ca  kr
Amortering
+  kr
Inkl amortering
ca  kr

Ansök om lånelöfte

Hos vårt systerbolag Ordna Bolån kan du enkelt ansöka om lånelöfte eller bolån. En ansökan, svar från flera banker.

Visningsanmälan

Fyll i formuläret så kontaktar vi dig inom kort.

Välj mellan nedan alternativ
Måndag 27 april
Anmälan krävs

Lundavägen 1, 615 31 Valdemarsvik
Välkommen att boka tid till visning!
Jag vill veta mer om bostaden

Kontaktuppgifter
Vänligen ange förnamn
Vänligen ange efternamn
Vänligen ange telefonnummer
Vänligen ange e-post
500 tecken kvar
Har du lånelöfte?*
Vill du ha hjälp med lånelöfte?
Vill du få nyheter och erbjudanden?

Oj, något gick fel! Försök igen. 

Ett ögonblick!
Tack, dina uppgifter är sparade!
Du fyllde inte i någon e-postadress. Ange den nedan för att inte missa någon information.
 
 
 
Ta del av vår integritetspolicy
 
 
 

Liknande bostäder till salu

Valdemarsvik
Lundavägen 1
Dela bostad: Dela på Facebook Dela med epost Dela med sms Kopiera länk Länken kopierad

Planritning