Hoppa till innehåll
 
Aktiv matchning
Utgångspris: 
2 195 000 kr
Aktiv matchning
Detta är en bostad som visas exklusivt på svenskfast.se. Mäklaren letar aktivt efter rätt köpare och uppgifter som pris och visningsdatum kan saknas. Anmäl ditt intresse för att få alla uppdateringar och mer information om denna bostad.
Frövi

Granstigen 31

Aktiv matchning
Utgångspris: 
2 195 000 kr
Aktiv matchning
Detta är en bostad som visas exklusivt på svenskfast.se. Mäklaren letar aktivt efter rätt köpare och uppgifter som pris och visningsdatum kan saknas. Anmäl ditt intresse för att få alla uppdateringar och mer information om denna bostad.

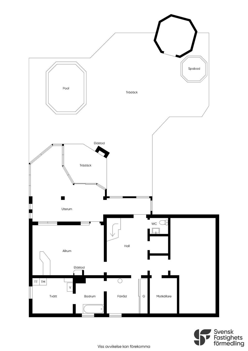
Drömboende med pool, grillkåta, uterum och generösa ytor – ett hem att leva i året runt!

  • Typ: Villa
  • Rum: 5, varav 3 sovrum
  • Boarea: 162 m2
  • Biarea: 79 m2
  • Tomtarea: 1 100 m2
  • Byggnadsår: 1963
  • Driftkostnad: 60 492 kr/år
  • Upplåtelseform: Äganderätt

Välkommen till Granstigen 31
Ett stort och modernt hus där både bostaden och tomten verkligen levererar. Här bor du på en generös tomt om 1 100 kvm med en genomtänkt utemiljö som bjuder in till både avkoppling och sociala tillställningar.

På tomten väntar en riktig oas med pool, spabad och stora trädäck som skapar en naturlig samlingsplats under sommarhalvåret. Här finns även växthus för dig med gröna fingrar samt en mysig grillkåta – perfekt för långa kvällar med vänner där du grillar året runt och avslutar med ett varmt bad i badtunnan.

Bostaden erbjuder generösa ytor om 162 kvm boarea och 79 kvm biarea fördelat på en modern och social planlösning. Här finns stora sällskapsytor, flera sovrum och ett härligt uterum som suddar ut gränsen mellan ute och inne. Från övervåningen nås dessutom en stor balkong som blir en självklar plats för morgonkaffet eller kvällssolen.

Huset kompletteras av garage uppfört för cirka 10 år sedan, vilket ger både bekvämlighet och extra förvaringsmöjligheter.

Läget är svårslaget med närhet till det mesta – gångavstånd till förskola, skola, buss och tågstation.
Härifrån tar du dig smidigt till Örebro, vilket gör detta till ett perfekt boende för dig som vill kombinera lugnet med goda pendlingsmöjligheter.

Det här är ett hem för dig som söker något utöver det vanliga.

Välkommen att kontakta mäklare Joacim Wiking för mer information!

Om Bostaden

Sammanfattning

Typ: Villa
Rum: 5, varav 3 sovrum
Boarea: 162 m2
Biarea: 79 m2
Tomtarea: 1 100 m2
Utgångspris: 2 195 000 kr
Byggnadsår: 1963
Driftkostnad: 60 492 kr/år
Upplåtelseform: Äganderätt

Kommentar till boarean

Boareauppgift enligt: Lantmäteriet

Byggnadssätt

Vatten: Kommunalt vatten året om
Avlopp: Kommunalt avlopp

Allmänt

Län: Örebro
Kommun: Lindesberg
Fastighetsbeteckning: LINDESBERG HEDEN 13:5

Planbestämmelser

Frövi municipalsamhälle, Stadsplan (Beslutsdatum: 1943-12-17, Senast ändrad: 2023-02-22)
Domherren, Tomtindelning (Beslutsdatum: 1961-05-12)

Övriga rättigheter och belastningar

Rättigheter last: Ledningsrätt: FJÄRRVÄRME

Ekonomi

Utgångspris

2 195 000 kr

Driftkostnader

60 492 kr/år
Årlig elförbrukning: 7562 kWh/år
Antal i hushållet: 3

Fördelas enligt följande

Uppvärmning: 37 880 kr
Vatten och avlopp: 16 262 kr
Försäkring: 5 750 kr
Sotning: 600 kr
Beskrivning: El + Värme ihop
Vatten + avlopp + sophämtning ihop

Utöver ovanstående eventuella driftkostnader tillkommer fastighetsavgift med belopp om 10 074 kr.

Observera att driftskostnaderna som anges ovan baseras på säljarens faktiska kostnader det senaste året om inget annat särskilt anges.
Vilka driftskostnader köparen kommer att ha beror på hur bostaden kommer att användas, vilka abonnemang som kommer att tecknas och övriga omständigheter i det enskilda fallet.

Taxering

Byggnad: 1 420 000 kr
Mark: 269 000 kr
Totalt: 1 689 000 kr
Taxeringsår: 2024
Taxeringsvärdet är: Fastställt
Värdeår: 1963
Standardpoäng: 40
Typkod: 220, Småhusenhet, bebyggd

Pantbrev

Det finns 2 pantbrev uttaget om sammanlagt 1 870 000 kr.

Försäkring

Svensk Fastighetsförmedling samarbetar med If för att underlätta ditt bostadsköp. När du köper bostad eller fritidshus genom Svensk Fastighetsförmedling är den automatiskt försäkrad. Vi kallar det Flytta in-försäkring. Den är kostnadsfri och gäller under de första 30 dagarna. Fortsätter du sedan att försäkra hemmet eller fritidshuset hos If får du 10% rabatt och flera andra unika förmåner. Fråga din mäklare för att ta del av erbjudandet.
Trygg affär - Varudeklarerad Villa

Alla bilder och 3D

+ 55 Visa alla 61 bilder
 

Planritning

Karta och område

Granstigen 31, Frövi

Kalkyl

Vad kostar nya boendet?

Fler värden

Här nedanför kan du ändra ränta, amortering och driftkostnader och se hur de påverkar kalkylen.

Återställ alla värden
Visa fler

Ränta

Amortering

Driftkostnad per månad

Driftkostnad/månad

Observera att driftskostnaderna som anges ovan baseras på säljarens faktiska kostnader det senaste året om inget annat särskilt anges.

Vilka driftskostnader köparen kommer att ha beror på hur bostaden kommer att användas, vilka abonnemang som kommer att tecknas och övriga omständigheter i det enskilda fallet.

Boendekostnad per månad

Ränta
+  kr
Driftkostnad
+  kr
Fastighetsskatt/-avgift
+ 840 kr
Skattereduktion
 kr
Summa
ca  kr
Amortering
+  kr
Inkl amortering
ca  kr

Ansök om lånelöfte

Hos vårt systerbolag Ordna Bolån kan du enkelt ansöka om lånelöfte eller bolån. En ansökan, svar från flera banker.

Intresseformulär

Fyll i formuläret så kontaktar vi dig inom kort.

Kontaktuppgifter
Vänligen ange förnamn
Vänligen ange efternamn
Vänligen ange telefonnummer
Vänligen ange e-post
500 tecken kvar
Har du lånelöfte?*
Vill du ha hjälp med lånelöfte?
Vill du få nyheter och erbjudanden?

Oj, något gick fel! Försök igen. 

Ett ögonblick!
Tack, dina uppgifter är sparade!
Du fyllde inte i någon e-postadress. Ange den nedan för att inte missa någon information.
 
 
 
Ta del av vår integritetspolicy
 
 
 

Liknande bostäder till salu

Lindesberg
Granstigen 31
Dela bostad: Dela på Facebook Dela med epost Dela med sms Kopiera länk Länken kopierad

Planritning