Hoppa till innehåll
Boden

Övre Svartlå 317

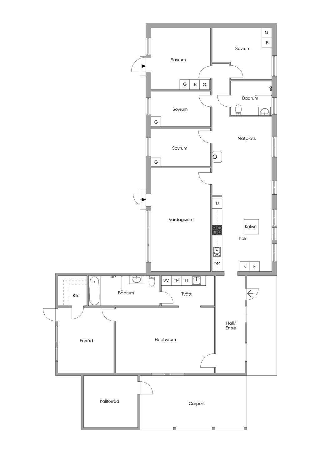
1-plans fasadtegelvilla i fint skick!

  • Typ: Villa, 1-plan
  • Rum: 5, varav 4 sovrum
  • Boarea: 112 m2
  • Biarea: 68 m2
  • Tomtarea: 871 m2
  • Byggnadsår: 1976
  • Driftkostnad: 69 008 kr/år
  • Upplåtelseform: Äganderätt

Fasadtegelvilla i 1-plan med ljus och öppen planlösning! 5 r.o.k. Invändigt har huset fått nya ytskikt till övervägande del. Badrum helrenoverat 2026. Fiber är ansluten. Luftvärmepump (2025). Nytt yttertak 2025. Det finns en carport med plats för en bil och ett vidbyggt kallförråd. Friköpt tomt 871 m² nära skola och förskola.

Om Bostaden

Beskrivning

HALL: Laminatgolv med värmeslingor, tapeter och vitmålat paneltak/målade skivor..
KÖK: Laminatgolv , tapeter och vitmålat paneltak. Köksinredning med massiva furuspegelluckor. Köksö. Spishäll och inbyggnadsugn (Whirlpool). Fläktkåpa (Futurum). Kylskåp, frysskåp och diskmaskin i arbetshöjd (Bosch). Inbyggd micro (Samsung).
MATPLATS: Laminatgolv , tapeter och vitmålat paneltak. Luftvärmepump (Samsung).
VARDAGSRUM: Laminatgolv , tapeter och vitmålat paneltak.
BADRUM: Klinkergolv med värmeslingor, kakel och vitmålat paneltak. Wc. Handfat i kommod. Duschplats med glasvägg.
SOVRUM 1: Laminatgolv , tapeter och vitmålat paneltak.
SOVRUM 2: Laminatgolv , tapeter och vitmålat paneltak.
SOVRUM 3: Laminatgolv , tapeter och vitmålat paneltak.
SOVRUM 4: Laminatgolv , tapeter och vitmålat paneltak.
HOBBYRUM (FD GARAGE): Ekonomidel. Laminatgolv, målad väv och målade skivor i tak. Utgång till carport.
BADRUM: Ekonomidel. Helrenoverat 2026 med våtmatta på golv och väggar. Fibertak med infällda ledspotar. Wc. Handfat i kommod. Duschplats med glasvägg. Badkar. Paxfläkt.
TVÄTTSTUGA: Ekonomidel. Våtmatta på golv och målad väv på väggar. Vitmålat paneltak. Tvättmaskin (BEKO). Torktumlare (Hisense). Tvättbänk. Varmvattenberedare.
FÖRRÅD: Ekonomidel. Laminatgolv och målade skivor på väggar och i tak.

Sammanfattning

Typ: Villa, 1-plan
Rum: 5, varav 4 sovrum
Boarea: 112 m2
Biarea: 68 m2
Tomtarea: 871 m2
Pris (Utgångspris): 945 000 kr
Byggnadsår: 1976
Driftkostnad: 69 008 kr/år
Upplåtelseform: Äganderätt

Kommentar till boarean

Boareauppgift enligt: Lantmäteriet

Uppvärmning

Direktverkande el med oljefyllda radiatorer + Samsung luftvärmepump (2023)

Byggnadssätt

Vatten: Kommunalt vatten året om
Avlopp: Kommunalt avlopp
Grund: Platta på mark
Stomme: Regelstomme
Bjälklag: Trä
Fasad: Fasadtegel
Fönster: 3-glasfönster
Takbeklädnad: Plåttak (2025)
Utvändiga plåtarbeten: Takavvattning i svart plåt (2025)
Ventilation: Mekanisk frånluft
Huvudsäkring: 20 A

Renoveringar

-Nya ytskikt i samtliga bostadsrum 2023.
-Nytt yttertak 2025.
-Helrenoverat badrum och hobbyrum 2026.

Övriga byggnader

Vidbyggt kallförråd c:a 10 m² med grusgolv.

Parkering

Vidbyggd carport c:a 18 m2 med grusgolv och plats för en bil.

Tv/Internetanslutning

TV och internet via fiber.

Allmänt

Län: Norrbotten
Kommun: Boden
Område: Övre Svartlå
Fastighetsbeteckning: BODEN SVARTLÅ 3:86

Planbestämmelser

Övre svartlå, Byggnadsplan (Beslutsdatum: 1962-09-13, Senast ändrad: 2021-09-15)

Övriga rättigheter och belastningar

Rättigheter last: Ledningsrätt: VATTEN OCH AVLOPP
Ledningsrätt: STARKSTRÖM
Ledningsrätt: VATTEN OCH AVLOPP

Ekonomi

Pris (Utgångspris)

945 000 kr

Driftkostnader

69 008 kr/år
Årlig elförbrukning: 34400 kWh/år

Fördelas enligt följande

El: 49 100 kr
Vatten och avlopp: 12 241 kr
Försäkring: 4 500 kr
Renhållning: 3 167 kr

Utöver ovanstående eventuella driftkostnader tillkommer fastighetsavgift med belopp om 4 380 kr.

Observera att driftskostnaderna som anges ovan baseras på säljarens faktiska kostnader det senaste året om inget annat särskilt anges.
Vilka driftskostnader köparen kommer att ha beror på hur bostaden kommer att användas, vilka abonnemang som kommer att tecknas och övriga omständigheter i det enskilda fallet.

Taxering

Byggnad: 521 000 kr
Mark: 63 000 kr
Totalt: 584 000 kr
Taxeringsår: 2024
Taxeringsvärdet är: Fastställt
Värdeår: 1976
Standardpoäng: 34
Typkod: 220, Småhusenhet, bebyggd

Pantbrev

Det finns 5 pantbrev uttaget om sammanlagt 399 600 kr.

Energideklaration

Status: Energideklaration är utförd
Energiprestanda: 185 kWh/kvm/år
Energiklass: FF
Specifik energianvändning: 142 kWh/kvm/år
Energideklaration utförd: 2023-07-18
Besiktningsman: Linus Banck, Anticimex AB

Försäkring

Svensk Fastighetsförmedling samarbetar med If för att underlätta ditt bostadsköp. När du köper bostad eller fritidshus genom Svensk Fastighetsförmedling är den automatiskt försäkrad. Vi kallar det Flytta in-försäkring. Den är kostnadsfri och gäller under de första 30 dagarna. Fortsätter du sedan att försäkra hemmet eller fritidshuset hos If får du 10% rabatt och flera andra unika förmåner. Fråga din mäklare för att ta del av erbjudandet.
Trygg affär - Varudeklarerad Villa

Alla bilder

+ 16 Visa alla 22 bilder
 

Planritning

Karta och område

Övre Svartlå 317, Boden

Visa avstånd som lista:
Avstånd avser alltid fågelvägen

Kalkyl

Vad kostar nya boendet?

Fler värden

Här nedanför kan du ändra ränta, amortering och driftkostnader och se hur de påverkar kalkylen.

Återställ alla värden
Visa fler

Ränta

Amortering

Driftkostnad per månad

Driftkostnad/månad

Observera att driftskostnaderna som anges ovan baseras på säljarens faktiska kostnader det senaste året om inget annat särskilt anges.

Vilka driftskostnader köparen kommer att ha beror på hur bostaden kommer att användas, vilka abonnemang som kommer att tecknas och övriga omständigheter i det enskilda fallet.

Boendekostnad per månad

Ränta
+  kr
Driftkostnad
+  kr
Fastighetsskatt/-avgift
+ 365 kr
Skattereduktion
 kr
Summa
ca  kr
Amortering
+  kr
Inkl amortering
ca  kr

Ansök om lånelöfte

Hos vårt systerbolag Ordna Bolån kan du enkelt ansöka om lånelöfte eller bolån. En ansökan, svar från flera banker.

Intresseformulär

Fyll i formuläret så kontaktar vi dig inom kort.

Kontaktuppgifter
Vänligen ange förnamn
Vänligen ange efternamn
Vänligen ange telefonnummer
Vänligen ange e-post
500 tecken kvar
Har du lånelöfte?*
Vill du ha hjälp med lånelöfte?
Vill du få nyheter och erbjudanden?

Oj, något gick fel! Försök igen. 

Ett ögonblick!
Tack, dina uppgifter är sparade!
Du fyllde inte i någon e-postadress. Ange den nedan för att inte missa någon information.
 
 
 
Ta del av vår integritetspolicy
 
 
 

Liknande bostäder till salu

Övre Svartlå, Boden
Övre Svartlå 317
Dela bostad: Dela på Facebook Dela med epost Dela med sms Kopiera länk Länken kopierad

Planritning