Hoppa till innehåll
Boden

Gamla Sävastvägen 65

30-talvilla med lantligt läge!

  • Typ: Villa, 1½-plansvilla
  • Rum: 5, varav 3 sovrum
  • Boarea: 131 m2
  • Tomtarea: 2 838 m2
  • Byggnadsår: 1939
  • Driftkostnad: 54 886 kr/år
  • Upplåtelseform: Äganderätt

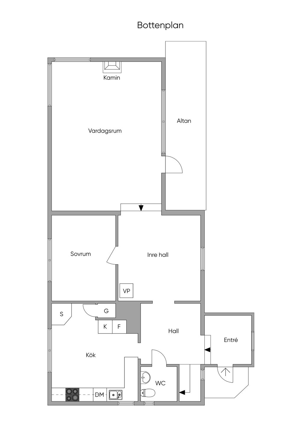
1½-plans timmerhus på 131 m² med 5 rum och kök, varav 3 sovrum. Lantligt kök med vedspis och ingångsskafferi. Rymligt vardagsrum med vattenburen golvvärme och kamin. Uppvärmning via ytjordvärme. Fiber. Fristående carport med plats för två bilar och intilliggande förrådsdel. Friköpt trädgårdstomt på 2 838 m².

Om Bostaden

Beskrivning

ENTRÉ: Klinkergolv, vitmålad pärlspont på väggar och vitlaserat paneltak.
HALL: Laminatgolv, tapet/synlig timmervägg och vitmålat paneltak.
INRE HALL: Laminatgolv, tapet och vitmålat paneltak. Värmepump (Nibe, 2017).
KÖK: Laminatgolv, tapet och målade skivor i tak. Köksinredning från IKEA med vita spegelluckor och laminatbänkskivor. Spishäll (Electrolux). Inbyggnadsugn (Electrolux). Köksfläkt. Hel kyl och frys (Bosch). Diskmaskin (Bosch). Ingångsskafferi. Vedpanna. Matkällare.
VARDAGSRUM: Laminatgolv (tilläggsisolerat och med vattenburen golvvärme), målade skivor på väggar och paneltak. Kamin. Luftvärmepump (IVT). Utgång till altan.
SOVRUM: Trägolv, tapet och vitmålat paneltak.
WC: Våtmatta, tapet och målade skivor i tak. Toalett och tvättställ i kommod.
HALL: Övervåning. Laminatgolv, tapet och vitmålad pärlspont/målade skivor i tak. Utgång till balkong.
BADRUM/TVÄTT: Övervåning. Våtmatta på väggar och golv och vitmålat paneltak. Toalett, tvättställ i kommod och duschplats. Tvättmaskin (LG).
SOVRUM 2: Övervåning. Laminatgolv, tapet och vitmålat paneltak.
SOVRUM 3: Övervåning. Laminatgolv, tapet och vitmålat paneltak.

Sammanfattning

Typ: Villa, 1½-plansvilla
Rum: 5, varav 3 sovrum
Boarea: 131 m2
Tomtarea: 2 838 m2
Pris (Utgångspris): 1 995 000 kr
Byggnadsår: 1939
Driftkostnad: 54 886 kr/år
Upplåtelseform: Äganderätt

Kommentar till boarean

Boareauppgift enligt: Lantmäteriet

Uppvärmning

Ytjordvärme
Ålder: 2017
Märke: Nibe

Byggnadssätt

Vatten: Kommunalt vatten
Avlopp: Kommunalt avlopp
Grund: Torpargrund
Stomme: Stående timmer/regelstomme
Bjälklag: Trä
Fasad: Stående träpanel
Fönster: Isolerglas (2001/2003)
Takbeklädnad: Plåt
Utvändiga plåtarbeten: Takavvattning i svart plåt
Ventilation: Självdrag
Huvudsäkring: 20 A
Murstock: Murad skorsten

Renoveringar

Om-/tillbyggnadsår: 1986

Tomt/balkong/uteplats

Altandäck med söderläge.

Övriga byggnader

Förrådsbod ca 10 m²

Parkering

Fristående carport ca 55 m2 med plats för två bilar samt intilliggande förrådsdel.

Tv/Internetanslutning

TV och internet via fiber.

Allmänt

Län: Norrbotten
Kommun: Boden
Område: Gamla Sävast
Fastighetsbeteckning: BODEN SÄVAST 2:30

Övriga rättigheter och belastningar

Rättigheter last: Avtalsservitut: KRAFTLEDNING - SE BESKRIVNING
Officialservitut: RÄTT ATT AVVERKA OCH RÖJA TRÄD OCH BUSKAR OMKRING JÄRNVÄGEN FÖR ATT SKYDDA SPÅRANLÄGGNINGEN OCH JÄRNVÄGSDRIFTEN. INOM MARK SOM INTE ÄR IANSPRÅKTAGEN SOM TOMT FÖR BEBYGGELSE HAR SERVITUTSHAVAREN RÄTT ATT UTANFÖR JÄRNVÄGSFASTIGHETEN, INOM ETT AVSTÅND AV 20 METER PÅ VARDERA SIDA OM SPÅRMITT, HÅLLA FRITT FRÅN TRÄD OCH BUSKAR. FINNS FLERA SPÅR RÄKNAS AVSTÅNDET FRÅN NÄRMASTE SPÅRMITT. OMRÅDET BENÄMNS SKÖTSELGATA. UTANFÖR SKÖTSELGATAN HAR SERVITUTSHAVAREN RÄTT ATT FÄLLA DE TRÄD SOM VID FALL KAN UTGÖRA FARA FÖR SPÅRANLÄGGNINGEN ELLER JÄRNVÄGSDRIFTEN. RÄTTIGHETEN AVSER ÄVEN DE TRÄD SOM TILL FÖLJD AV TILLVÄXT KAN UTGÖRA FARA INOM EN 15-ÅRSPERIOD FRÅN VARJE AVVERKNINGSTIDPUNKT. OMRÅDET BENÄMNS KANTZON. - TRÄDSÄKERHET
Avtalsrättigheter: Avtalsservitut KRAFTLEDNING

Ekonomi

Pris (Utgångspris)

1 995 000 kr

Driftkostnader

54 886 kr/år
Årlig elförbrukning: 21792 kWh/år

Fördelas enligt följande

El: 35 900 kr
Vatten och avlopp: 12 241 kr
Försäkring: 4 500 kr
Försäkringskommentar: Fastigheten är fullvärdesfösäkrad.
Renhållning: 2 245 kr

Utöver ovanstående eventuella driftkostnader tillkommer fastighetsavgift med belopp om 9 855 kr.

Observera att driftskostnaderna som anges ovan baseras på säljarens faktiska kostnader det senaste året om inget annat särskilt anges.
Vilka driftskostnader köparen kommer att ha beror på hur bostaden kommer att användas, vilka abonnemang som kommer att tecknas och övriga omständigheter i det enskilda fallet.

Taxering

Byggnad: 944 000 kr
Mark: 370 000 kr
Totalt: 1 314 000 kr
Taxeringsår: 2024
Taxeringsvärdet är: Fastställt
Värdeår: 1952
Standardpoäng: 30
Typkod: 220, Småhusenhet, bebyggd

Pantbrev

Det finns 4 pantbrev uttaget om sammanlagt 1 104 000 kr.

Energideklaration

Status: Energideklaration är utförd
Energideklaration utförd: 2026-02-18

Försäkring

Svensk Fastighetsförmedling samarbetar med If för att underlätta ditt bostadsköp. När du köper bostad eller fritidshus genom Svensk Fastighetsförmedling är den automatiskt försäkrad. Vi kallar det Flytta in-försäkring. Den är kostnadsfri och gäller under de första 30 dagarna. Fortsätter du sedan att försäkra hemmet eller fritidshuset hos If får du 10% rabatt och flera andra unika förmåner. Fråga din mäklare för att ta del av erbjudandet.
Trygg affär - Varudeklarerad Villa

Alla bilder

+ 15 Visa alla 21 bilder
 

Planritning

Karta och område

Gamla Sävastvägen 65, Boden

Kalkyl

Vad kostar nya boendet?

Fler värden

Här nedanför kan du ändra ränta, amortering och driftkostnader och se hur de påverkar kalkylen.

Återställ alla värden
Visa fler

Ränta

Amortering

Driftkostnad per månad

Driftkostnad/månad

Observera att driftskostnaderna som anges ovan baseras på säljarens faktiska kostnader det senaste året om inget annat särskilt anges.

Vilka driftskostnader köparen kommer att ha beror på hur bostaden kommer att användas, vilka abonnemang som kommer att tecknas och övriga omständigheter i det enskilda fallet.

Boendekostnad per månad

Ränta
+  kr
Driftkostnad
+  kr
Fastighetsskatt/-avgift
+ 821 kr
Skattereduktion
 kr
Summa
ca  kr
Amortering
+  kr
Inkl amortering
ca  kr

Ansök om lånelöfte

Hos vårt systerbolag Ordna Bolån kan du enkelt ansöka om lånelöfte eller bolån. En ansökan, svar från flera banker.

Intresseformulär

Fyll i formuläret så kontaktar vi dig inom kort.

Kontaktuppgifter
Vänligen ange förnamn
Vänligen ange efternamn
Vänligen ange telefonnummer
Vänligen ange e-post
500 tecken kvar
Har du lånelöfte?*
Vill du ha hjälp med lånelöfte?
Vill du få nyheter och erbjudanden?

Oj, något gick fel! Försök igen. 

Ett ögonblick!
Tack, dina uppgifter är sparade!
Du fyllde inte i någon e-postadress. Ange den nedan för att inte missa någon information.
 
 
 
Ta del av vår integritetspolicy
 
 
 

Liknande bostäder till salu

Gamla Sävast, Boden
Gamla Sävastvägen 65
Dela bostad: Dela på Facebook Dela med epost Dela med sms Kopiera länk Länken kopierad

Planritning