Hoppa till innehåll
Åseda

Kexagatan 12

Charmig villa med stor potential i Åseda!

  • Typ: Villa, 2-plansvilla med källare
  • Rum: 5, varav 3 sovrum
  • Boarea: 152 m2
  • Biarea: 76 m2
  • Tomtarea: 1 395 m2
  • Byggnadsår: 1923
  • Driftkostnad: 34 310 kr/år
  • Upplåtelseform: Äganderätt

På Kexagatan 12 i Åseda finner vi denna 2 plansvilla med källare från 1923. Bostaden har fina sociala ytor på entréplan med fina ljusa rum och vackra kakelugn, wc, kök samt en privat övervåning med äldre badrum samt tre sovrum. Grovkällare med tvättstuga med duschmöjlighet, pannrum, förråd. Uppvärmning genom bergvärme NIBE.
På tomten finns två äldre garagebyggnader/förråd samt uppfart plats för flera bilar. Uteplats i form av trädäck. Stor trädgårdstomt om 1395 kvm med plats för både odling och lek.
Huset är i äldre stil och standard och därav i behov av modernisering för dig som ny ägare.

Fastighetensäljes med friskrivning!

Varmt välkommen på visning! Johan Florå

Om Bostaden

Beskrivning

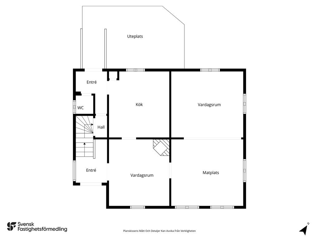
- ENTRÉPLAN -

HALL
Vi når hall med plats för avhängning.

WC
Äldre wc med toalett och tvättställ.

KÖK
Kök med gott om utrymme och plats för köksbord. Här finns utrustning i formav spis, ugn, fläkt och kombinerad kyl/frys.

TV-RUM
Genomgångsrum med kakelugn.

RUM
Plastmatta.

VARDAGSRUM
Stort vardagsrum med heltäckningsmatta. Rummet är ljust och rymligt plats för både matsalsmöblemang och soffgrupp.

- ÖVRE PLAN -

HALL
Vi når övre plan och möblerbar hall.

BADRUM
Äldre badrum med badkar, wc, bidé och tvättställ.

SOVRUM
Sovrum med en garderob.

SOVRUM
Sovrum med en garderob.

SOVRUM
Sovrum med utgång till balkong. Förvaring i form av flera garderober.

- KÄLLARE-

HALL
Här finns ett värdeskåp som ingår i köpet.

TVÄTTSTUGA
Tvättmaskin och duschkabin.

PANNRUM
Här med bergvärmepump.
Äldre pellets/el/vedpanna finns kvar.

RUM
Rum plats för hobby / förråd

Sammanfattning

Typ: Villa, 2-plansvilla med källare
Rum: 5, varav 3 sovrum
Boarea: 152 m2
Biarea: 76 m2
Tomtarea: 1 395 m2
Utgångspris: 1 200 000 kr
Byggnadsår: 1923
Driftkostnad: 34 310 kr/år
Upplåtelseform: Äganderätt

Kommentar till boarean

Boareauppgift enligt: Lantmäteriet

Uppvärmning

Bergvärmepump, luftvärmepump

Byggnadssätt

Vatten: Kommunalt vatten
Avlopp: Kommunalt avlopp
Grund: Källare
Stomme: Trä/plank
Bjälklag: Trä
Fasad: Liggande träpanel
Fönster: 3-glasfönster entreplan
2-glasfönster ov + källare
Takbeklädnad: Betongpannor
Utvändiga plåtarbeten: Plåt
Ventilation: Självdrag
Jordat/ojordat: Delvis jordat
Huvudsäkring: 16 A
Murstock: Murad skorsten

Tomt/balkong/uteplats

Trall på trädgårdssidan

Övriga byggnader

2 garagebyggnader/förrråd.

Parkering

Uppfart på gräsmatta
2 garage

Tv/Internetanslutning

Fiber är ej installerat finns vid tomtgräns på trädgårds sidan, köpare bekostar detta vid behov.

Allmänt

Län: Kronoberg
Kommun: Uppvidinge
Fastighetsbeteckning: UPPVIDINGE ÅSEDA 14:50

Planbestämmelser

Åseda municipalsamhälle, Stadsplan (Beslutsdatum: 1927-10-07, Senast ändrad: 2021-02-23)

Övrigt

Extra brunn för trädgårdsbevattning

FRISKRIVNINGSKLAUSUL: kommer att intagas i köpekontraktet, vilket innebär att den slutgiltige köparen förklarar sig godta fastighetens skick och avstår från alla anspråk mot säljaren på grund av fel eller brister i fastigheten.

Ekonomi

Utgångspris

1 200 000 kr

Driftkostnader

34 310 kr/år
Årlig elförbrukning: 6125 kWh/år
Antal i hushållet: 1

Fördelas enligt följande

El: 21 000 kr
Vatten och avlopp: 6 000 kr
Försäkring: 5 240 kr
Renhållning: 2 070 kr
Beskrivning: El, vatten och avlopp är det beräknade som anges på fakturorna då vi ej har full dokumentation för ett helt år.
Driftskostnaden är baserad på 2 vuxna. Hushållsström och uppvärmning går ej att separera.

Utöver ovanstående eventuella driftkostnader tillkommer fastighetsavgift med belopp om 6 083 kr.

Observera att driftskostnaderna som anges ovan baseras på säljarens faktiska kostnader det senaste året om inget annat särskilt anges.
Vilka driftskostnader köparen kommer att ha beror på hur bostaden kommer att användas, vilka abonnemang som kommer att tecknas och övriga omständigheter i det enskilda fallet.

Taxering

Byggnad: 612 000 kr
Mark: 199 000 kr
Totalt: 811 000 kr
Taxeringsår: 2024
Taxeringsvärdet är: Fastställt
Värdeår: 1929
Standardpoäng: 28
Typkod: 220, Småhusenhet, bebyggd

Pantbrev

Det finns 6 pantbrev uttaget om sammanlagt 105 000 kr.

Energideklaration

Status: Energideklaration är utförd
Energiprestanda: 104 kWh/kvm/år
Energiklass: DD
Specifik energianvändning: 56 kWh/kvm/år
Energideklaration utförd: 2026-04-07
Besiktningsman: Daniel Persson, Anticimex AB

Försäkring

Svensk Fastighetsförmedling samarbetar med If för att underlätta ditt bostadsköp. När du köper bostad eller fritidshus genom Svensk Fastighetsförmedling är den automatiskt försäkrad. Vi kallar det Flytta in-försäkring. Den är kostnadsfri och gäller under de första 30 dagarna. Fortsätter du sedan att försäkra hemmet eller fritidshuset hos If får du 10% rabatt och flera andra unika förmåner. Fråga din mäklare för att ta del av erbjudandet.

Alla bilder och video

+ 22 Visa alla 28 bilder
 

Planritning

Karta och område

Kexagatan 12, Åseda

Kalkyl

Vad kostar nya boendet?

Fler värden

Här nedanför kan du ändra ränta, amortering och driftkostnader och se hur de påverkar kalkylen.

Återställ alla värden
Visa fler

Ränta

Amortering

Driftkostnad per månad

Driftkostnad/månad

Observera att driftskostnaderna som anges ovan baseras på säljarens faktiska kostnader det senaste året om inget annat särskilt anges.

Vilka driftskostnader köparen kommer att ha beror på hur bostaden kommer att användas, vilka abonnemang som kommer att tecknas och övriga omständigheter i det enskilda fallet.

Boendekostnad per månad

Ränta
+  kr
Driftkostnad
+  kr
Fastighetsskatt/-avgift
+ 507 kr
Skattereduktion
 kr
Summa
ca  kr
Amortering
+  kr
Inkl amortering
ca  kr

Ansök om lånelöfte

Hos vårt systerbolag Ordna Bolån kan du enkelt ansöka om lånelöfte eller bolån. En ansökan, svar från flera banker.

Visningsanmälan

Fyll i formuläret så kontaktar vi dig inom kort.

Välj mellan nedan alternativ
Tisdag 12 maj
Anmälan krävs

Kexagatan 12, 364 31 Åseda
Välkomna att boka tid för visning via vår hemsida svenskfast.se, gå till "läs mer hos mäklaren" på Hemnet.
Jag vill veta mer om bostaden

Kontaktuppgifter
Vänligen ange förnamn
Vänligen ange efternamn
Vänligen ange telefonnummer
Vänligen ange e-post
500 tecken kvar
Har du lånelöfte?*
Vill du ha hjälp med lånelöfte?
Vill du få nyheter och erbjudanden?

Oj, något gick fel! Försök igen. 

Ett ögonblick!
Tack, dina uppgifter är sparade!
Du fyllde inte i någon e-postadress. Ange den nedan för att inte missa någon information.
 
 
 
Ta del av vår integritetspolicy
 
 
 

Liknande bostäder till salu

Uppvidinge
Kexagatan 12
Dela bostad: Dela på Facebook Dela med epost Dela med sms Kopiera länk Länken kopierad

Planritning