Hoppa till innehåll
Köpingsvik

Mjölnarens väg 9

Härligt boende med ljuvligt poolområde och med relax + garage!

  • Typ: Villa, 1-plansvilla
  • Rum: 7, varav 6 sovrum
  • Boarea: ca 150 m2
  • Biarea: ca 80 m2
  • Tomtarea: 1 248 m2
  • Byggnadsår: 1999
  • Driftkostnad: 56 250 kr/år
  • Upplåtelseform: Äganderätt

En sommarbostad deluxe med många sovplatser och ett fantastiskt poolområde med tillhörande relax. Här har du precis allt på hemmaplan! Hörninge är din perfekta utgångspunkt för Öland, nära Borgholm och Köpingsvik på cykel eller fin natur att upptäcka runt fastigheten! Huset erbjuder dessutom många sovplatser och har allting placerat i samma boendeplan.

En ljus och trevlig bostad som under de senaste åren har fått ett rejält lyft och genomgått många omfattande ombyggnationer. Det innefattar bla. kök, 2x duschrum, ytskikt, solceller på taket mm.
Så sent som 2020 uppfördes byggnaden med Relax + Garage tillsammans med en riktig 8*4m pool med tak + uppvärmning.

* Komplementbyggnad uppförd 2020
* Solceller monterade på yttertaket för låg drift.
* Pool 8*4m och med både uppvärmning + skjutbart pooltak.

Fint läge längst ner på återvändsgata med väldigt eller ingen trafik. Här bor man ostört med naturen som granne i Hörninge.
Här bor man på en plats där många grannar gärna vistas ofta och flera bor dessutom permanent.

Varmt välkommen på visning!

Om Bostaden

Beskrivning

-ENTRÉ-
Entréhall med avhängning bakom skjutdörrsgarderob.

-MATPLATS/KÖK-
Matplats för större matbord intill köket. Köket är ljust med mycket förvaring bakom skåp och i lådor.
Utrustat med kyl, frys, inbyggnadsugn, spishäll och diskmaskin.

-VARDAGSRUM-
Stort vardagsrum med en rejäl täljstenskamin. Hjärtat i huset som ligger placerat mellan köket och sovrummen.

-DUSCHRUM 1-
Fräscht duschrum med våtrumsmatta och våtrumstapet. WC, tvättställ med kommod, spegel och duschvägg i glas. Elektrisk handdukstork + Golvvärme.

-DUSCHRUM 2-
Fräscht duschrum med våtrumsmatta och våtrumstapet. WC, tvättställ med kommod, spegel och duschvägg i glas. Elektrisk handdukstork + Golvvärme.

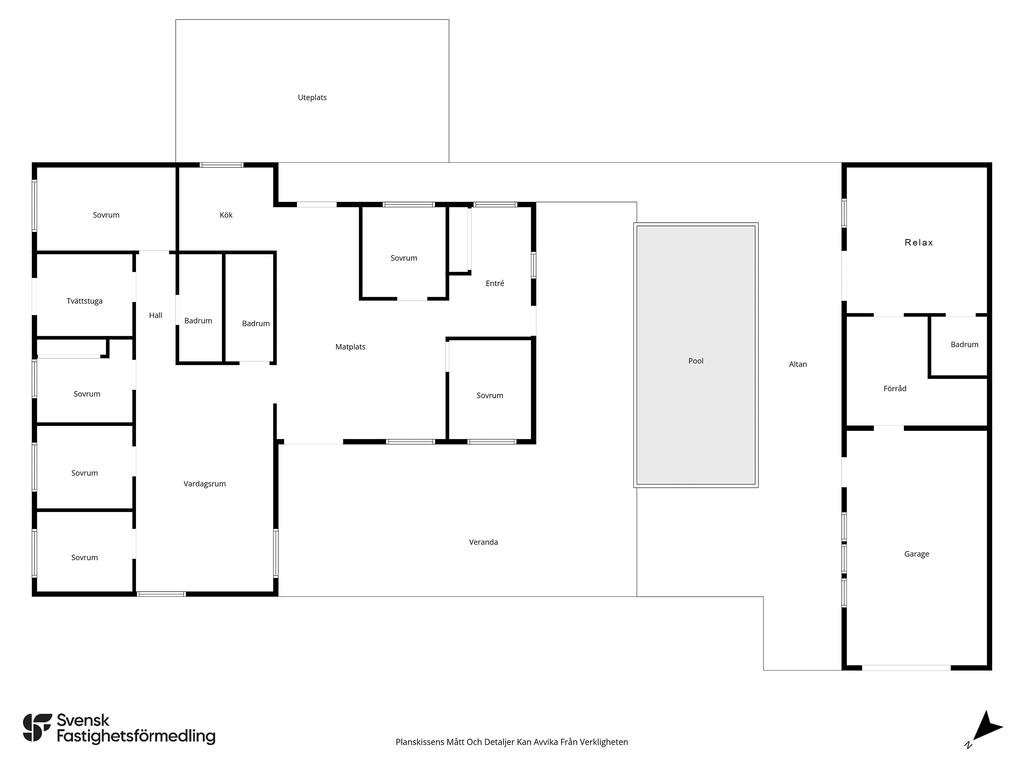
-SOVRUM-
Huset har totalt 6x sovrum varav ett är större och ligger längst bort i huset. Ett utav dem nyttjas också till kontor i dagsläget.
Det vore möjligt att ta ner väggen mellan några av sovrummen så man får färre sovplatser men större sovrum.

-TVÄTTSTUGA/GROVENTRÉ-
Kombinerat utrymme med klinkersgolv.

KOMPLEMENTSBYGGNAD
Uppförd 2020 med ett garage för en bil, förvaring samt en relaxavdelning med tillhörande bastu och helkaklat duschrum.
Detta skulle också kunna bli ett separat gästhus i framtiden om man vill utöka boendedelen.

Sammanfattning

Typ: Villa, 1-plansvilla
Rum: 7, varav 6 sovrum
Boarea: ca 150 m2
Biarea: ca 80 m2
Tomtarea: 1 248 m2
Utgångspris: 3 875 000 kr
Byggnadsår: 1999
Driftkostnad: 56 250 kr/år
Upplåtelseform: Äganderätt
Inflyttning: Enligt överenskommelse

Kommentar till boarean

Boareauppgift enligt: Lantmäteriet
Bi-arean om 80kvm avser komplementbyggnad

Uppvärmning

Direktverkande EL + Luft/Luft VP

Byggnadssätt

Vatten: Kommunalt vatten året om
Avlopp: Kommunalt avlopp
Grund: Krypgrund
Stomme: Trä
Bjälklag: Trä
Fasad: Stående träpanel
Fönster: Isolerglasfönster
Takbeklädnad: Plåt
Utvändiga plåtarbeten: Plåt
Ventilation: Självdrag
Huvudsäkring: 16 A
Murstock: Skorsten av plåt
Murstock kommentar: Täljstenskamin i vardagsrummet som är godkänd.

Renoveringar

Om-/tillbyggnadsår: 1969
2000 Altangolv
2006 Lusthus
2007 Plattsättning runt huset
2015 Grillplats med tak
2016 Fiber
2018 Vattenmätare brunn
2020 Garage
2020 Solceller
2020 Pool
2020 Ombyggnad av altangolv
2021 diverse Plattytor och murade planteringslådor
2025 Målning av husfasaden

Tomt/balkong/uteplats

Flera uteplatser i olika väderstreck. Stort poolområde som är mycket soltillgängligt.
Fint anlagd trädgård och tomt. Många planteringar samt plattsättningar med sten mm. Stort altandäck runt hela poolområdet.

Övriga byggnader

Fristående relax, garage och poolrum om 80kvm. Byggt med hög standard med gjuten betongplatta och klinkers på hela golvet. Idag ett garage med verkstad/förråd samt en relax med bastu och separat duschrum.
Allt ligger i anslutning till poolområdet vilket gör det mycket smidigt och ett uppskattat bi-utrymme till bostaden. Dessutom är det vattenburen golvvärme i hela byggnaden med en luft/vatten värmepump som är ansluten.

Parkering

P-plats för flera bilar på uppfarten samt i garaget för ytterligare en bil.

Allmänt

Län: Kalmar
Kommun: Borgholm
Fastighetsbeteckning: BORGHOLM HÖRNINGE 9:81

Planbestämmelser

Hörninge 8:1,4:2 m fl, Detaljplan (Beslutsdatum: 1991-09-25, Senast ändrad: 2023-10-11)

Övriga rättigheter och belastningar

Gemensamhetsanläggning: BORGHOLM HÖRNINGE GA:2
BORGHOLM HÖRNINGE GA:1
Inskrivna övriga rättigheter och belastningar: Solbergafältet, Vattenskyddsområde (Beslutsdatum: 2008-04-24, Registreringsdatum: 2008-11-11, Senast ändrad: 2025-09-26)
Rättigheter last: Avtalsservitut: JORDKABEL - SE BESKRIVNING
Avtalsservitut: KRAFTLEDNING - SE BESKRIVNING
Avtalsservitut: JORDKABEL - SE BESKRIVNING
Avtalsservitut: KRAFTLEDNING - SE BESKRIVNING
Avtalsservitut: KRAFTLEDNING - SE BESKRIVNING
Avtalsservitut: OMRÅDE - SE BESKRIVNING
Samfällighet: BORGHOLM HÖRNINGE S:2
Avtalsrättigheter: Avtalsservitut KRAFTLEDNING
Avtalsservitut JORDKABEL
Avtalsservitut JORDKABEL
Avtalsservitut OMRÅDE
Avtalsservitut KRAFTLEDNING
Avtalsservitut KRAFTLEDNING

Ekonomi

Utgångspris

3 875 000 kr

Driftkostnader

56 250 kr/år
Årlig elförbrukning: 11549 kWh/år
Antal i hushållet: 2

Fördelas enligt följande

Uppvärmning: 35 000 kr
Vatten och avlopp: 14 547 kr
Försäkring: 4 603 kr
Samfällighet: 1 400 kr
Sotning: 700 kr
Beskrivning: I kostanden för uppvärmning ingår även hushållsel.
Samtliga driftkostnader är beräknade utifrån användning som permanentbostad.
Solcellerna på taket bidrar till minskade driftkostnader sommartid i synnerhet.

Utöver ovanstående eventuella driftkostnader tillkommer fastighetsavgift med belopp om 10 425 kr.

Observera att driftskostnaderna som anges ovan baseras på säljarens faktiska kostnader det senaste året om inget annat särskilt anges.
Vilka driftskostnader köparen kommer att ha beror på hur bostaden kommer att användas, vilka abonnemang som kommer att tecknas och övriga omständigheter i det enskilda fallet.

Taxering

Byggnad: 2 023 000 kr
Mark: 584 000 kr
Totalt: 2 607 000 kr
Taxeringsår: 2024
Taxeringsvärdet är: Fastställt
Värdeår: 1969
Standardpoäng: 40
Typkod: 220, Småhusenhet, bebyggd

Pantbrev

Det finns 8 pantbrev uttaget om sammanlagt 1 745 000 kr.

Energideklaration

Status: Energideklaration är utförd
Energiprestanda: 127 kWh/kvm/år
Energiklass: EE
Specifik energianvändning: 88 kWh/kvm/år
Energideklaration utförd: 2026-02-19
Besiktningsman: Andreas Lundin

Försäkring

Svensk Fastighetsförmedling samarbetar med If för att underlätta ditt bostadsköp. När du köper bostad eller fritidshus genom Svensk Fastighetsförmedling är den automatiskt försäkrad. Vi kallar det Flytta in-försäkring. Den är kostnadsfri och gäller under de första 30 dagarna. Fortsätter du sedan att försäkra hemmet eller fritidshuset hos If får du 10% rabatt och flera andra unika förmåner. Fråga din mäklare för att ta del av erbjudandet.
Trygg affär - Varudeklarerad Villa

Alla bilder och video

+ 35 Visa alla 41 bilder
 

Planritning

Karta och område

Mjölnarens väg 9, Köpingsvik

Kalkyl

Vad kostar nya boendet?

Fler värden

Här nedanför kan du ändra ränta, amortering och driftkostnader och se hur de påverkar kalkylen.

Återställ alla värden
Visa fler

Ränta

Amortering

Driftkostnad per månad

Driftkostnad/månad

Observera att driftskostnaderna som anges ovan baseras på säljarens faktiska kostnader det senaste året om inget annat särskilt anges.

Vilka driftskostnader köparen kommer att ha beror på hur bostaden kommer att användas, vilka abonnemang som kommer att tecknas och övriga omständigheter i det enskilda fallet.

Boendekostnad per månad

Ränta
+  kr
Driftkostnad
+  kr
Fastighetsskatt/-avgift
+ 869 kr
Skattereduktion
 kr
Summa
ca  kr
Amortering
+  kr
Inkl amortering
ca  kr

Ansök om lånelöfte

Hos vårt systerbolag Ordna Bolån kan du enkelt ansöka om lånelöfte eller bolån. En ansökan, svar från flera banker.

Intresseformulär

Fyll i formuläret så kontaktar vi dig inom kort.

Kontaktuppgifter
Vänligen ange förnamn
Vänligen ange efternamn
Vänligen ange telefonnummer
Vänligen ange e-post
500 tecken kvar
Har du lånelöfte?*
Vill du ha hjälp med lånelöfte?
Vill du få nyheter och erbjudanden?

Oj, något gick fel! Försök igen. 

Ett ögonblick!
Tack, dina uppgifter är sparade!
Du fyllde inte i någon e-postadress. Ange den nedan för att inte missa någon information.
 
 
 
Ta del av vår integritetspolicy
 
 
 

Liknande bostäder till salu

Borgholm
Mjölnarens väg 9
Dela bostad: Dela på Facebook Dela med epost Dela med sms Kopiera länk Länken kopierad

Planritning