Hoppa till innehåll
Tvååker

Klockarevägen 10

Familjevilla på 179 kvm med naturskönt läge, vinterbonat uterum samt garage!

  • Typ: Villa, Villa, 1½-plan
  • Rum: 7, varav 5 sovrum
  • Boarea: 179 m2
  • Biarea: 21 m2
  • Tomtarea: 971 m2
  • Byggnadsår: 1980
  • Driftkostnad: 54 790 kr/år
  • Upplåtelseform: Äganderätt

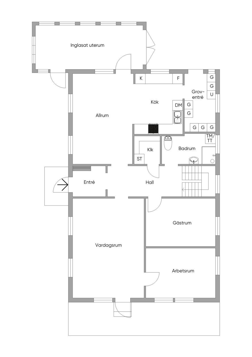
Välkommen till denna välplanerade och familjevänliga 1,5-plansvilla om 179 kvm belägen i Sibbarp. Med skogen som närmsta granne på baksidan och ett lugnt hörnläge erbjuds här ett boende som kombinerar natur och närhet till vardagens bekvämligheter.

Entréplan bjuder på sociala ytor där köket ligger i öppen planlösning mot allrummet perfekt för både vardag och umgänge. Vardagsrummet är placerat avskilt från kök och allrum och skapar därför en mer rofylld sällskapsyta. På entréplan plan finns även två rum som i dag används som kontor respektive finrum men som enkelt kan anpassas efter behov. Vidare erbjuds ett helkaklat badrum samt ett rymligt vinterbonat uterum om 21 kvm. Uterummet är vinterbonat med vattenburen golvvärme och blir en härlig förlängning av bostaden som kan nyttjas året om. Övre plan erbjuder en privat och inbjudande sovrumsdel med två trivsamma barnrum samt ett generöst master bedroom med egen klädkammare och wc i direkt anslutning. Här finns ett rymligt allrum med gott om plats för soffgrupp som blir en naturlig samlingspunkt för familjen. Den värmande braskaminen skapar en extra känsla av hemtrevnad och gör rummet lika uppskattat under årets kallare månader. På övervåningen finns även ett badrum vilket ger en bekväm och funktionell vardag för hela familjen.

Tomten är belägen i hörnläge och gränsar mot skog, vilket skapar en insynsskyddad och rogivande utemiljö. På fastigheten finns även garage, jordkällare samt förrådsbyggnad med goda förvaringsmöjligheter.

Med närhet till Sibbarps skola, barnvänliga omgivningar och fina naturstråk är detta ett hem som passar perfekt för familjen som vill bo bekvämt och långsiktigt.

Varmt välkommen att anmäla ert intresse!

Om Bostaden

Beskrivning

Välkomnande entré med laminatgolv samt plats för avhängning av ytterkläder och skor.

Kök och allrum ligger i öppen planlösning vilket skapar en luftig och social yta. Köket är utrustat med spis, ugn, diskmaskin samt kyl och frys (2020).

Från allrummet nås det vinterbonade uterummet om 21kvm med klinkergolv och vattenburen golvvärme vilket gör det behagligt att använda året runt.

Vardagsrummet erbjuder plats för soffgrupp och tv-möbel med direkt utgång till trädgården.

Sovrum som idag används som kontor med god plats för både säng och skrivbord.

Sovrum med god plats för säng samt annan möbel.

Helkaklat badrum utrustat med kommod, dusch, tvättmaskin samt torktumlare.

Groventré med klinkergolv samt gott om förvaring i flera garderober.

En trappa upp möts man av ett trivsamt allrum med plats för soffgrupp och tv-möbel. Här finns även en värmande kamin som bidrar till mysig stämning.

Rymligt sovrum med plats för dubbelsäng, egen klädkammare samt wc.

Badrum utrustat med dusch med vikväggar, wc samt handfat.

Två barnrum med gott om utrymme för sängar och förvaring.

Sammanfattning

Typ: Villa, Villa, 1½-plan
Rum: 7, varav 5 sovrum
Boarea: 179 m2
Biarea: 21 m2
Tomtarea: 971 m2
Pris (Utgångspris): 2 695 000 kr
Byggnadsår: 1980
Driftkostnad: 54 790 kr/år
Upplåtelseform: Äganderätt
Inflyttning: Enligt överenskommelse

Kommentar till boarean

Boareauppgift enligt: Lantmäteriet

Uppvärmning

Luft/vattenvärmepump via vattenburet system samt braskamin

Byggnadssätt

Vatten: Kommunalt vatten året om
Avlopp: Kommunalt avlopp
Grund: Betongplatta på mark
Stomme: Trä
Fasad: Stående träpanel
Fönster: 3-glasfönster isoler
Takbeklädnad: Halvvalmat tak, råspont, underlagspapp, läkt och betongpannor
Ventilation: Mekanisk frånluft

Renoveringar

1996 byggdes uterummet grundlagt med betongplatta på mark med vattenburen golvvärme. Samtidigt byttes husets träfasad på
gaveln åt nordväst och nya fönster monterades.
2000 delrenoverades köket med nya köksluckor.
2005 renoverades dusch/wc på entréplan med kakel och klinker som ytskikt. Arbetet utfördes av fastighetsägaren med hjälp av
fackman.
2007 delrenoverades dusch/wc på övre plan med kakel samt våtrumsskivor på väggarna. Arbetet utfördes av fastighetsägaren.
Ca 2012 målades/behandlades takpannorna av fackman.
2016 lades taket om på uterummet på grund av läckage. De missfärgningar som finns på takstolarna uppstod troligtvis på grund utav läckage innan taket lades om.
2024 installerades luft/vattenvärmepumpen.
2024 målades hela bostadens träfasad av fackman.

Tomt/balkong/uteplats

Uteplats under tak på framsidan med god plats för utemöbler

På baksidan finns en rymlig trätrall med god plats för umgänge och lek.

Övriga byggnader

Garage, växthus samt rymligt förråd.

Parkering

Plats för en bil i garage samt flera bilar på grusad uppfart.

Tv/Internetanslutning

Fibernät via net@seaside vilket medför att digital-tv, bredband samt telefoni går via fiber.

Allmänt

Län: Halland
Kommun: Varberg
Område: Varberg Södra
Fastighetsbeteckning: VARBERG SIBBARP 2:23

Planbestämmelser

Ändring av förslag till byggnadsplan för sibbarps samhälle, Byggnadsplan (Beslutsdatum: 1978-11-01, Senast ändrad: 2025-05-28)

Övriga rättigheter och belastningar

Gemensamhetsanläggning: VARBERG SIBBARP GA:1 - VÄGSTRÄCKOR,ALLMÄN PLATSMARK MED GÅNG OCH CYKELVÄGAR.TILL VÄGARNA HÖR KÖRBANA,SLÄNTER,SIDOOMRÅDEN,MÖTESPLATSER,TRUMMOR OCH ÖVRIGA VÄGANORDNINGAR.VÄGOMRÅDET OMFATTAR KÖRBANA,DIKEN,SLÄNTER OCH SIDOOMRÅDEN.

Ekonomi

Pris (Utgångspris)

2 695 000 kr

Driftkostnader

54 790 kr/år
Årlig elförbrukning: 14440 kWh/år
Antal i hushållet: 2

Fördelas enligt följande

El: 27 994 kr
Vatten och avlopp: 15 044 kr
Väg: 500 kr
Försäkring: 9 465 kr
Samfällighet: 1 587 kr
Sotning: 200 kr

Utöver ovanstående eventuella driftkostnader tillkommer fastighetsavgift med belopp om 10 425 kr.

Observera att driftskostnaderna som anges ovan baseras på säljarens faktiska kostnader det senaste året om inget annat särskilt anges.
Vilka driftskostnader köparen kommer att ha beror på hur bostaden kommer att användas, vilka abonnemang som kommer att tecknas och övriga omständigheter i det enskilda fallet.

Taxering

Byggnad: 2 074 000 kr
Mark: 460 000 kr
Totalt: 2 534 000 kr
Taxeringsår: 2024
Taxeringsvärdet är: Fastställt
Värdeår: 1980
Standardpoäng: 32
Typkod: 220, Småhusenhet, bebyggd

Pantbrev

Det finns 6 pantbrev uttaget om sammanlagt 634 500 kr.

Energideklaration

Status: Energideklaration är utförd
Energiprestanda: 105 kWh/kvm/år
Energiklass: DD
Specifik energianvändning: 57 kWh/kvm/år
Energideklaration utförd: 2026-01-14
Besiktningsman: Daniel Levin, Anticimex

Försäkring

Svensk Fastighetsförmedling samarbetar med If för att underlätta ditt bostadsköp. När du köper bostad eller fritidshus genom Svensk Fastighetsförmedling är den automatiskt försäkrad. Vi kallar det Flytta in-försäkring. Den är kostnadsfri och gäller under de första 30 dagarna. Fortsätter du sedan att försäkra hemmet eller fritidshuset hos If får du 10% rabatt och flera andra unika förmåner. Fråga din mäklare för att ta del av erbjudandet.
Trygg affär - Varudeklarerad Villa

Alla bilder

+ 20 Visa alla 26 bilder
 

Planritning

Karta och område

Klockarevägen 10, Tvååker

Kalkyl

Vad kostar nya boendet?

Fler värden

Här nedanför kan du ändra ränta, amortering och driftkostnader och se hur de påverkar kalkylen.

Återställ alla värden
Visa fler

Ränta

Amortering

Driftkostnad per månad

Driftkostnad/månad

Observera att driftskostnaderna som anges ovan baseras på säljarens faktiska kostnader det senaste året om inget annat särskilt anges.

Vilka driftskostnader köparen kommer att ha beror på hur bostaden kommer att användas, vilka abonnemang som kommer att tecknas och övriga omständigheter i det enskilda fallet.

Boendekostnad per månad

Ränta
+  kr
Driftkostnad
+  kr
Fastighetsskatt/-avgift
+ 869 kr
Skattereduktion
 kr
Summa
ca  kr
Amortering
+  kr
Inkl amortering
ca  kr

Ansök om lånelöfte

Hos vårt systerbolag Ordna Bolån kan du enkelt ansöka om lånelöfte eller bolån. En ansökan, svar från flera banker.

Visningsanmälan

Fyll i formuläret så kontaktar vi dig inom kort.

Välj mellan nedan alternativ
Söndag 3 maj
Anmälan krävs

Klockarevägen 10, 432 77 Tvååker
Visningsanmälan via våran hemsida!
Jag vill veta mer om bostaden

Kontaktuppgifter
Vänligen ange förnamn
Vänligen ange efternamn
Vänligen ange telefonnummer
Vänligen ange e-post
500 tecken kvar
Har du lånelöfte?*
Vill du ha hjälp med lånelöfte?
Vill du få nyheter och erbjudanden?

Oj, något gick fel! Försök igen. 

Ett ögonblick!
Tack, dina uppgifter är sparade!
Du fyllde inte i någon e-postadress. Ange den nedan för att inte missa någon information.
 
 
 
Ta del av vår integritetspolicy
 
 
 

Liknande bostäder till salu

Varberg Södra, Varberg
Klockarevägen 10
Dela bostad: Dela på Facebook Dela med epost Dela med sms Kopiera länk Länken kopierad

Planritning